Auslegung FBH
|
|
||
|
ich habe vorige woche fbh verlegt.. ich bin nicht der experte, kann dir nur meine empfehlungen/tipps mitgeben (was andere user mir versucht haben zum erklären)... -) versuche wenn möglich gleich lange kreise zu verlegen (wenn nicht anders möglich, zimmer übergreifende kreise) --> 20m und 30m kreise zu 100m wird nicht funktionieren. die solltest du unbedingt zusammenfassen.. -) wenn du selber verlegen willst, solltest du dir unbedingt einen verlegeplan machen (ich bin hier einige tage gesessen), sonst wird das mit den kreislängen als laie nichts -) bad soll der wärmste raum im haus sein -> unbedingt wandheizung! und ich würde im bad so eng wie möglich verlegen.. also verlegeabstand von 5cm sind bei aluverbundrohr möglich.. ich würde in deinem bad auch zwei kreise machen und die überlängen zB im Gang unterbringen.. aber wenn du wirklich 5er abstand legst, sollte da nicht viel übrig bleiben.. -) anbindeleitungen zu den hkv dürfen nicht unterdimensioniert sein.. min. 25x2,5 bei längeren anbindeleitungen wäre eine 32x3 vorteilhaft weil viel geringere druckverluste zu der auslegung, sollten dir andere experten ihre meinung sagen, da bin ich nicht der richtige... hast du bka verbaut? das würde die fbh um einiges entschärfen...
|
||
|
||
|
Ein Installationsschacht vom Keller in das OG sollte eingeplant werden. |
||
|
||
|
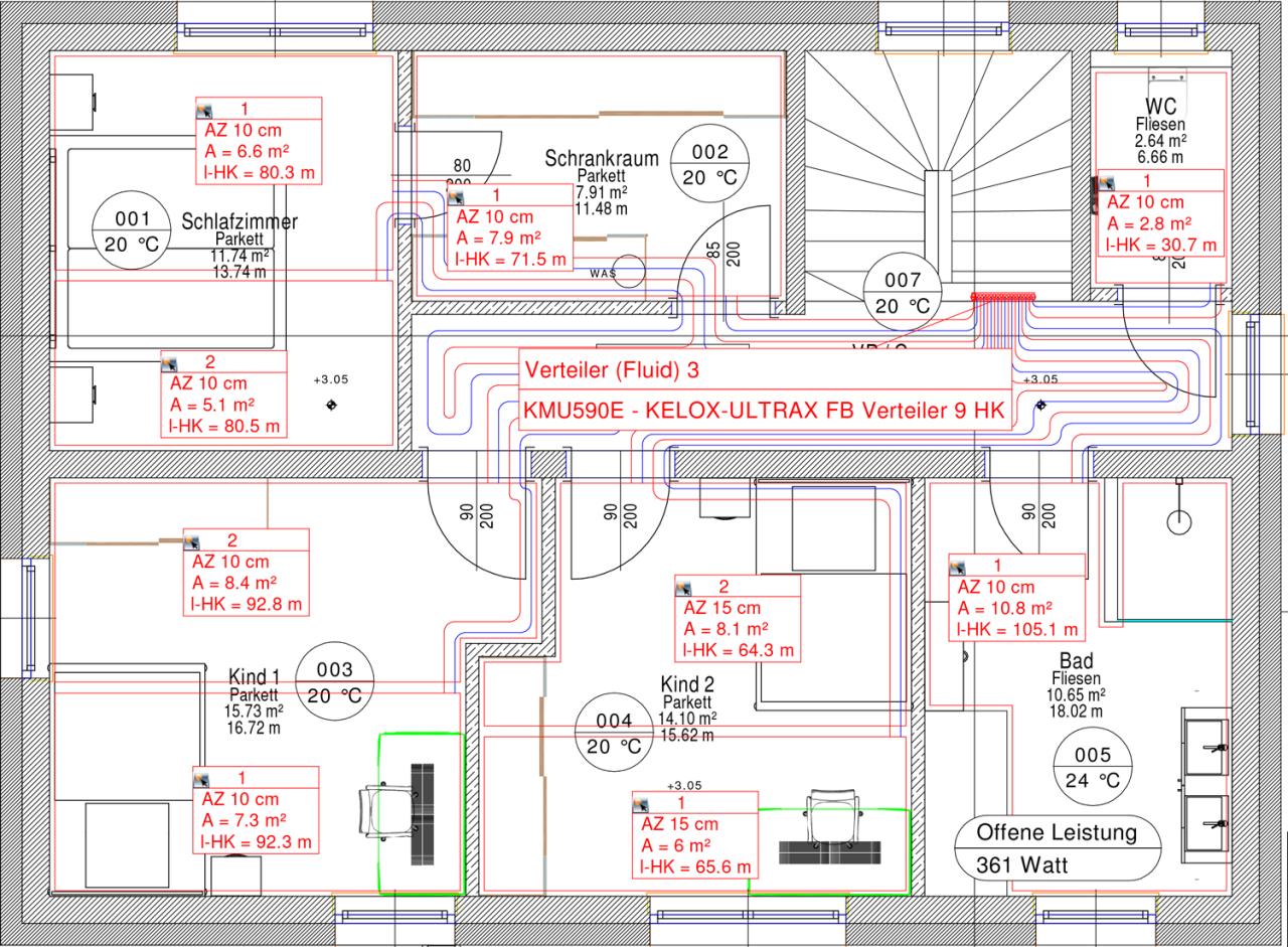
Also ich habe nicht vor die FBH FBH [Fußbodenheizung] selbst zu verlegen oder auch zu planen. Den Plan hab ich vom Installateur bekommen. Mich würde nur euer Feedback interessieren bzw. gerne eine Diskussionsgrundlage mit ihm haben. Ein Installationsschacht wurde eingeplant. Eine BKA BKA [Betonkernaktivierung] habe ich verbaut jedoch im EG nur im Wohn- und Esszimmer und im OG im Schlafzimmer und den beiden Kinderzimmern. Dh im • Keller würde es vermutlich Sinn machen den Vorraum und den HWR zusammenzulegen • Erdgeschoss könnte man Vorraum und WC zusammenlegen. • Im Bad evtl. den Verlegeabstand reduzieren und eine Wandheizung andenken. Im OG wird es schwierig beim WC noch etwas dazuzunehmen... |
||
|
|
||
|
||
|
Autsch, dann sollte das Bad mit WH WH [Wandheizung] zugepflaster werden sonst verlierst den benefit der BKA BKA [Betonkernaktivierung]. Abgehängte Decke im Bad wäre auch noch möglich. |
||
|
||
|
Tja, im Bad hab ich es mir leider vom Installateur ausreden lassen, weil es laut ihm mit Kühlen und Heizen über die BKA BKA [Betonkernaktivierung] zu problemen führt und das nicht gut funktioniert. 🙈 |
||
|
||
|
Tja, ein "Profi" |
||
|
||
|
BKA funktioniert für beides sehr gut, frage mal den HB wie er zu der Meinung kommt. Würde den gesamten Keller eine FBH FBH [Fußbodenheizung] verlegen. Die nicht verlegten Räume entziehen den anderen die Wärme, es ist besser hier alles leicht zu temperieren. Im EG das WC mit dem Gang/Flurkreis zusammen legen. Dadurch wird ein Heizkreis frei den man in den Ess/Wohn/Küchenbereich verwenden kann. Dadurch kann man durchgehend AZ10 hier verlegen. Die Rückleitung aus dem Bereich würde ich in der Speise als eine große Schleife hier jeweils durchziehen. Im OG hat das Bad den längsten Kreis und es geht einiges an Heizleistung ab. Ein wensentlicher Grund ist hier die Forderung von 24°, das anliegende Kinderzimmer hat 20°. Hier andere Werte annehmen, Kinderzimmer 21° und Bad 22-23°. Würde den WC Kreis verlängern und einen Teil im Bad verlegen, dadurch wird der vorgesehene kürzer. Wenn man es ausmittelt wird man ca. 65-70m lange Keizkreise bekommen. Eine Wandheizung würde ich hier auf die Außenmauer der Dusche sowie Waschbecken installieren. Wolfgang |
||
|
||
|
Es wurden schon einige wichtige Hinweise gegeben, denen ich mich vollinhaltlich anschließe. Was ich noch ergänzen möchte: • Schau, dass Du die Rohrlängen-Unterschiede deutlich reduzierst und mit allen Kreisen in den Bereich 60-90m kommst. Je kleiner die Unterschiede, desto besser. Das sollte überall mit den bereits genannten Tipps möglich sein. • Im EG würde ich vom Verteiler durch die Wand in die Wohn-Ess-Küche gehen, das spart einige Meter an Anbindeleitung. Bedenke, dass AR/Speis auch ohne FBH FBH [Fußbodenheizung] nur durch die Anbindeleitungen deutlich aufgeheizt werden wird. • Im KG würde ich mir überlegen, ob ihr in dem großen Raum nicht doch auch FBH FBH [Fußbodenheizung] verlegen wollt. Nutzungswünsche können sich mit der Zeit ändern und ein Raum dieser Größe könnte für so manches Hobby interessant werden - vorausgesetzt, er lässt sich beheizen! • Schau, dass Du unbedingt beim Verlegen der FBH FBH [Fußbodenheizung] dabei bist. Kontrolliere ob die Verlegeabstände eingehalten werden. Kontrolliere und dokumentiere die Längen jedes Kreises anhand der aufgedruckten Kilometrierung. Lass kein Stückeln des FBH FBH [Fußbodenheizung]-Rohres zu. Wenn Du unmöglich dabei sein kannst, dann kontrolliere alles so bald wie möglich danach und jedenfalls noch bevor der Estrichleger anrückt und sich nichts mehr korrigieren lässt. |
||
|
||
|
- Anbindeleitungen in den Durchgangsräumen isolieren. |
||
|
||
|
Nein, nicht andenken sondern machen. Du hast nämlich ein massives Problem, durch die BKA BKA [Betonkernaktivierung] wird sich die Heizmittelübertemperatur auf ca. die Hälfte reduzieren und das kriegst du nie mit einem geringeren Verlegeabstand hin. Die offene Leistung liegt ja gemäß Plan jetzt schon bei 361 Watt und ich wette mit dir, dein b********ter Insti hat die BKA BKA [Betonkernaktivierung] dabei nicht berücksichtigt, also ist das ganze noch viel schlimmer. Den Innenputz hast du, so wie ich einem anderen Thread entnehme, eh noch nicht oben. Nimm dir die Zeit und pflastere deine beiden Außenwände komplett mit einer Wandheizung zu, notfalls auch die Zwischenwand. Die Kosten werden zwar leicht höher sein als für die BKA BKA [Betonkernaktivierung], sich aber noch in Grenzen halten (ca. 10 -15 € p. m²). Eine Deckenheizung mit abghängter Decke wird um einiges teurer. |
||
|
||
|
Danke für eure Info und Hilfe, da hab ich wohl dem Insti zu sehr vertraut... Der Insti meinte, ich solle über die BKA BKA [Betonkernaktivierung] nur kühlen und nicht heizen. Dabei würde die Kühlung mittels Hebel manuell hinzugeschaltet werden. Würde das einen Unterschied machen bzw. macht das überhaupt einen Sinn? Soweit ich das jetzt Verstanden habe: Umso mehr Heizflächen ich habe, umso niedriger kann die Vorlauftemperatur sein. Das würde aber in Räumen wo ich nicht soviel Heizfläche habe, dazu führen, dass die nicht so sehr auf Temperatur gebracht werden können. Stimmt das so? |
||
|
||
|
Richtig! und jedes grad weniger vorlauftemperatur spart geld.. jap, die bka bringt dir ca. die hälfte der leistung wenn du bka und fbh verbaust. dadurch du im bad aber keine bka hast, wirst du hier die größten schwierigkeiten bekommen, weil es der wärmste raum vom haus werden soll aber du die wenigste fläche belegt hast.. deswegen --> im wohnen/essen/küche solltest du es auch ohne bka irgendwie hinbekommen, da es ein großer raum ist und die bka auch weiter wirkt als sie verlegt wurde... die hört nicht genau dort auf wo das letzte rohr verlegt wurde, wegen den guten eigenschaften des betons..
|
Dieser Thread wurde geschlossen, es sind keine weiteren Antworten möglich.Nächstes Thema: Datenverkehr Nibe



