KWL + Hausgröße
        
  | 
           
  | 
||
| 
180m² ergeben bei 2,5m Raumhöhe ein Volumen 450m³. Für einen 0,3-fachen Luftwechsel wären 150m³/h umzuwälzen - das kleinere Gerät Type 180 kann max. 238m³/h ... die 180 werden wohl für die Nennluftmenge stehen => Reserven auch bei mehr als 2,5m Raumhöhe.
  Nachdem aber die Aussage so fundiert wie die Ahnung von WP WP [Wärmepumpe]-Herstellern im KWL KWL [Kontrollierte Wohnraumlüftung]-Bereich tiefgehend ist, ist es vielleicht besser so. Es gibt keinen triftigen Grund, Heizung und KWL KWL [Kontrollierte Wohnraumlüftung] vom selben Hersteller zu nehmen - außer die beiden Dinge sind zusammengebaut (Kompaktgerät). Wenn Du eine KWL KWL [Kontrollierte Wohnraumlüftung] willst, die so gut ist wie eine WP WP [Wärmepumpe] von KNV, würde ich Dir Drexel&Weiss empfehlen - insbesondere wegen der Beratungskompetenz, die hier bisher fehlte. Ansprechpartner in Deiner Nähe findest Du hier: https://www.drexel-weiss.at/standorte/kompetenzpartner/ Und lass Dir bitte keine Plastikschläuche als Luftführungsleitungen einreden. 
                        
                          | 
||
           
  | 
||
| 
Oftmals sind KNV Partner auch D&W Partner.                          | 
||
           
  | 
||
| 
  Danke für die Info! Steht das im Datenblatt? Wäre interessant, wenn ich mir andere KWLs ansehe. Ok, auch hier dachte ich dass das von Vorteil wäre - ist ja bei vielen elektronischen Geräten so, dass es ein Vorteil ist, wenn alles vom selben Hersteller ist. D&W habe ich mir schon ein wenig angesehen und werde ich mir auf jeden Fall noch genauer ansehen, Danke für den Tipp! Naja, dzt. ist schon gedacht, die Lüftungsrohre direkt in der Decke zu verlegen. Ich weiß, dass das hier im Forum von einigen Leuten als nicht optimal angesehen wird, sondern eher eine abgehängte Decke mit Spiro-Rohren verwendet wird. Abhängte Decke kommt für mich aber nicht in Frage (kostet extra und habe dann weniger Raumhöhe). Habe halt auch gelese, dass für KWL KWL [Kontrollierte Wohnraumlüftung] heute schon Kunststoff-Rohre verwendet werden, welche innen beschichtet sind, sodass sich kein Staub o.a. ablagern kann und außerdem hat man ja eh noch Filter vor den Einlassöffnungen. Oh, thx auch für diesen Hinweis!  | 
||
| 
 | 
||
           
  | 
||
| 
  Ja, unten auf der Seite, die Du verlinkt hast http://www.knv.at/images/download/Prospekte/WRL/KNV_Freshline_180-400_2015_V2a.pdf Käme für mich auch nicht Frage ... haben nur die Decke in 4m² kleinen Bad abgehängt, der Rest war Planungssache => Technikraum zentral im Haus, in Speis und Technikraum kann man frei gehen ... und z.B. die Installationswand vom WC oder Bad a bissl dicker machen und dort verlegen. Haben den Lüftungsbauer ganz zu Beginn hinzugezogen, der hatte ne Menge Ideen für eine Verlegung auf kürzestem Weg. Die Schläuche müssen ja künstlich lang gehalten werden da sie gleichzeitig die Schalldämpfer sind ... eh schon hoher Luftwiderstand und dann auch noch lang.  | 
||
           
  | 
||
| 
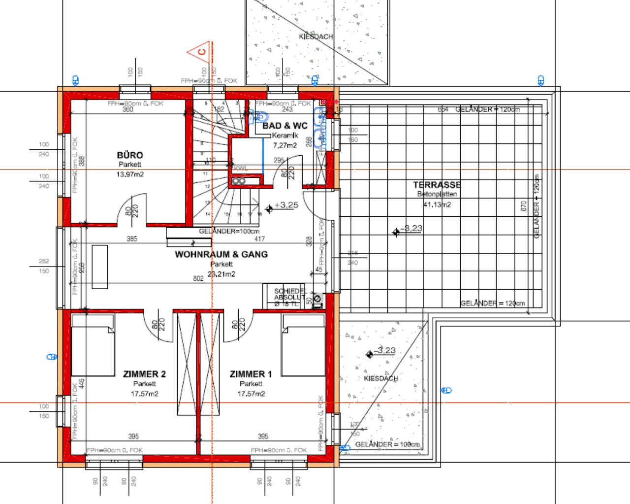
Noch eine wichtige Sache, welche mir erst beim letzten Gespräch mit dem Baumeister bewusst wurde: Im Haus gibt es einen Deckensprung, weil wir wollten, dass man auch vom OG eben auf die Terasse gehen kann, das war bewusst so geplant.
  Nachdem die Verrohrung der KWL KWL [Kontrollierte Wohnraumlüftung] in der Betondecke sein wird, müssen die Rohre diesen Deckensprung "mitmachen". Grundsätzlich werden die Rohre sowieso gebogen bzw. zu den Auslass- und Ansaugöffnungen geführt, verlaufen also sowieso nicht nur gerade - nun würden diese Rohre aber auch einen "Sprung" in der Höhe machen. Da bin ich mir gerade sehr unsicher, ob das bezüglich KWL KWL [Kontrollierte Wohnraumlüftung] ein Problem sein könnte. Ich werde dazu auch noch den vorgesehen Installateur kontaktieren und ev. kann dieser dann gleich direkt bei KNV nachfragen...möchte aber auch um eure Meinung dazu fragen. Zur Erklärung: Der nicht überbaute Bereich wo im OG die Terrasse ist hat eine niedrigere Raumhöhe, daher der Deckensprung. Alternative wäre, vom OG doch 2 Stufen nach draußen auf die Terrasse zu machen und dadurch den Deckensprung zu vermeiden und halt auf den ebenen Zugang auf die Terrasse zu verzichten.  
  
  | 
||
           
  | 
||
| 
Nachtrag: ...oder ist das eigentlich egal, wenn die KWL KWL [Kontrollierte Wohnraumlüftung] "Verteilerrohre" in den Wänden sind und jeweils schon im entsprechenden Teil der Decke zu den Räumen abzweisen und so in diesen Rohren zu den Auslässen/Ansaugungen garkein "Knick" wg. des Deckensprunges sein müsste?                          | 
||
           
  | 
||
| 
  Evt. eine ganz einfache Möglichkeit: Den Bereich des Deckensprunges nicht nur 25 cm breit (Wandstärke OG) machen, sondern z.B. 50 oder 75 cm, dann geht sich das schon aus ... und nur in dem Raum, in dem du die Leitungen führst. Dann könnte man z.B noch mit einer abgehängten Decke bis zur raumabschliessenden Wand die Deckenuntersicht eben machen, wenn du den Deckensprung mitten im Raum nicht sehen willst.                          
                        
                          | 
||
           
  | 
||
| 
@ap99: Danke für den Vorschlag!
  Ja, das müsste man sich überlegen, ob das gut geht. Die KWL KWL [Kontrollierte Wohnraumlüftung] Verrohrung ins OG soll im Eingangsbereich in der Garderobe geführt werden. Der Bereich mit der niedrigeren Decke wäre der Bereich in Richtung WC, Schrankraum, HWR, Schlafzimmer + Bad. Direkt nach dem Eingang wäre die Raumhöhe 2.85cm und da hätte man dann halt mitten durch den Vorraum die Abhängung.                            | 
||
           
  | 
||
| 
Dann würde ich die "Verbreiterung" des Deckensprungs nur im Stiegenhaus machen --> den Verteiler evt. ober der abgehängten Decke integrieren (falls die abgehängte Höhe nicht reicht (wird wohl nicht reichen), einfach eine Aussparung machen und in die Rigipsdecke den Revisionsdeckel bündig integrieren)                          | 
||
           
  | 
||
| 
Hallo,
  habe jetzt auch noch den Installateur gefragt: Antwort: Die angebotene KWL KWL [Kontrollierte Wohnraumlüftung] ist eine "Pluggit AP460". Scheint ein modernes Gerät mit allen möglichen Optionen (Filter, Sommerbypass, App Steuerung, ...) zu sein - kann jemand ev. genauere dazu sagen? Ich werde auch nochmal tel. beim Installateur nachfragen, um sicherzugehen, dass meine Problembeschreibung korrekt verstanden wurde...denn auch wenn die KWL KWL [Kontrollierte Wohnraumlüftung] Rohre im Fußbodenaufbau geführt werden würden (was ich eher nicht möchte), würde damit ja nachwievor das Problem mit dem Deckensprung bestehen.  | 
||
           
  | 
||
| 
  ... wenn es heißt "kein Problem" werde ich immer achtsam, denn das bedeutet meist nichts Gutes. --> ich rate dir dringend, die Rohre nicht im Terrassenaufbau zu verlegen (das müßtest du nämlich, wenn du dein Schlafzimmer, Bad und HWR etc belüften willst, wenn du nicht in der Decke fährst) ... Ich denke dein Installateur hat das Problem absolut nicht verstanden. (Ich rate dir außerdem gar keine Leitungen unter bodentiefen Fenstern oder in der Hochzugzone von Abdichtungen rauszuführen ... sehe ich immer wieder, betrifft aber eher den Elektriker) Außerdem liegt auch noch so manch anderes Rohr in der Beschüttung (Ablauf im Gefälle ... usw.), und dann kann es schon eng werden.  | 
||
           
  | 
||
| 
  Danke für deine Antwort! Ja, das glaube ich leider auch...werde daher versuchen, das tel. zu erklären, war bisher leider nicht möglich. Soweit mir bekannt wird die eigentliche Planung der KWL KWL [Kontrollierte Wohnraumlüftung] dann aber vom Hersteller der KWL KWL [Kontrollierte Wohnraumlüftung] durchgeführt und der Installateuer ist "nur" das ausführende Organ.  | 
||
           
  | 
||
| 
  Wenn möglich wäre es wahrscheinlich das Vielversprechenste alle beteiligten zusammen zuholen. Jeder hat seine eigene, meist berechtigte Sichtweise und deine KWL KWL [Kontrollierte Wohnraumlüftung] wäre für den Planer nicht mehr irgendeine xy Auslegung.  | 
||
           
  | 
||
| 
ich habe die 75er kunststoff kwl rohre auch im FB-Aufbau gelegt und bin dann an der Wand hoch. 
  auch 25cm FB-Aufbau und es war durch planung kein problem auch zwecks ablauf nicht. Kreuzungen mit den E-Leitungen sind sowieso kein Problem, Ablauf kann man durch geschickte leitungsführung auch relativ einfach umgehen. Eine Kreuzung hatte ich von Lüftung und Ablauf im OG und dort wurde weil es sich richtig blöd ausgegangen ist die Trittschalldämmung ein wenig eingeschnitten. Allein der Statik wegen würde ich nicht in der Decke verlegen sondern im FB-Aufbau, wenn du so wie ich keine abgehängten decken magst. 
                        
                          | 
        Dieser Thread wurde geschlossen, es sind keine weiteren Antworten möglich.Nächstes Thema: KWL nur für OG (Neubau)




