Baumeisterangebot für 130 Qu. + Garage
|
|
||
|
Hallo Crewe, Keller und Dach (welches?) auch dabei? |
||
|
||
|
Von 135 000 EUR (inkl Bodenplatte) waren meine bisher eingeholten Angebote (137m² ohne Garage / ohne Terrasse) Lichtjahre entfernt. |
||
|
||
|
@elanor
Halber Keller ist dabei, komplett geputzt und verspachtelt. @STP123, Lichtjahre entfernt, ich nehme mal an teurer als mein Angebot ? Es ist halt schwierig irgendwie die richtige Richtung zu finden bei dem Ganzen und noch schlimmer ist es wenn man damit in seinem LEben noch nix zu tun gehabt hat. Deshalb bin ich froh das es ein Forum wie dieses gibt. danke für eure mühe auch vorweg schonmal.. lg |
||
|
|
||
|
||
|
und was soll bei diesen 160.000 jetzt WIRKLICH alles dabei sein????
auch heizung, sanitär, elektrik??? weil du schreibst "innen fertig inkl. estrich" dann ist das viel zu billig, keiner kann zaubern
ein plan bzw. eintwurf vom haus würde da schon sehr viel weiter helfen |
||
|
||
|
Ohhhh okk...
Stop stop -Pultdach -Elektriker -Installatuer (Heizung) -Fenster/Türen sind natürlich in diesem Preis nicht enthalten. |
||
|
||
|
die bäume beseitigen aber schon???
lass das nicht dem BM machen, der "kann" das ja gar nicht, also ich meine, der lässt das ja eh nur von einem SUB-unternehmen machen, und schlägt natürlich was drauf |
||
|
||
|
Ja die Bäume wären dabei, drei kirschenbäume und einen großen Wallnussbaum,, da bin ich selbst nun dran da wem zu organisieren um wenig Geld. |
||
|
||
|
besser gehts leider nicht im moment... damit ihr wisst um was es geht.. lggg |
||
|
||
|
Bäume verkaufen! - Hallo!
Wenn der Nussbaum schön und groß ist kannst versuchen das Holz zu verkaufen. Schönes Nussholz kann bis zu 2500€/m3 kosten Kirsche bis zu 1500€/m³ (im Einkauf) ev. kannst ja gegen die Schlägerung eintauschen! Bitte nicht zu Brennholz verarbeiten!!! mfg |
||
|
||
|
Hallo Crewe, hier gibt es dazu Erfahrungen und Preise: Baumeisterangebot für 130 Qu. + Garage |
||
|
||
|
Ich will einen Mercedes S-Klasse - Baujahr 2015 mit allen Extras - 0km - fabrikneu - aber ich will nur 10.000€ zahlen.....
Hallo? Ziel ist es bei xy€ zu landen, dann musst halt die Garage weg lassen..... Ich bin kein Baumeister - ich hab mir nur einen blöden Nickname genommen.... Aber so funktioniert das wohl nicht. Wenn man zu Anfang gleich bei einem kleinen/feinen Baumeister landet, der faire Preise hat, wirst ihn wohl kaum noch drücken können, ohne bei der Leistung einbußen zu haben. 161.000€ finde ich persönlich okay, wobei natürlich zu bedenken ist ob Leistungen wie Abdichtung des Kellers, drainarbeiten, evt. Kanal usw. alles dabei ist..? |
||
|
||
|
Hier ebenfalls Lichtjahre bzw. Lichtjahrzehnte daneben!!
Haben leider erst ein Angebot erhalten, das ist um 100.000€ teurer als Deins!!! Allerdings MIT Dach (ebenfalls Pult mit Blecheindeckung). 164qm mit ca 40qm Terrasse, knapp 30qm NG, Carport, nicht unterkellert. Ebenfalls 25er mit VWS (möchten gern Mineralwolledämmung, die Fa hat leider EPS angeboten). Und ohne Baggerarbeiten. Wir erwarten Anfang Juli noch mehrere Angebote, ich fürcht mich schon :-/ Sind aus OÖ |
||
|
||
|
@baumeister3400, es ist gar nicht ziel den Preis so dermassen zu drücken aber ich habs von einigen Seiten gehört das einfach noch ein bisschen was möglich ist und deshalb wird auch so verhandelt. Ich hab keinen Zeitdruck und kann mir in Ruhe den richtigen und besten aussuchen. Der was am meisten für mein Geld macht, bekommt den Zuschlag. Und ja ich geb dir Recht eine S Klasse kann man um das Geld nicht bekommen, ich mag nur die beste Qualität zum fairen Preis und meine Frage war hier an alle gerichtet, rein sachlich.
@elanor, wird schon werden, nur nicht unterkriegen lassen von den Baumeistern lg |
||
|
||
|
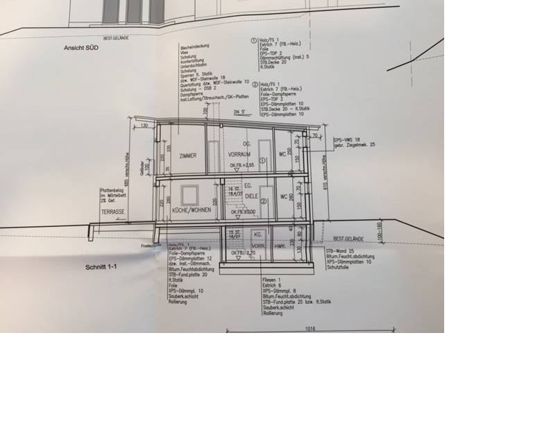
Ohne detaillierter Leistungsbeschreibung kann dir niemand sagen ob der Preis niedrig oder hoch ist.
|
||
|
||
|
Kann jeder gerne haben, lass ich gerne zukommen....kann ich hier so nicht reinstellen. |
||
|
||
|
Fotografieren und hochladen... |
||
|
||
|
da hat STP123 recht!
Wir haben ab Bodenplatte (inkl. Kanalarbeiten) für den Rohbau bezahlt knapp 100K: NG mit 36qm sowie 230qm auf 2 Etagen (untere Wohnkeller mit 3 Seiten aus 30cm WU-Beton) +24k für WDVS WDVS [Wärmedämmverbundsystem] 0,031 + 9k für Kalkputz + 8k für Estrichfirma. Viel Eigenleistung. Bei unserer Leistungbeschreibung war keine obere Geschoßdecke bei Haus und NG dabei - haben wir selbst gemeinsam mit 1 Zimmerer (auch Pultdach wie ihr) gemacht. Sonst müsste man wohl noch rund 10k dazu rechnen. Kein Traufenpflaster. Als Goodie allerdings noch ausgehandelt, die Herstellung der Unterbaus inkl. Randsteine für spätere Pflasterarbeiten. Vielleicht hilft der Vergleich. Denk wir waren mit Preis-Leistung schon sehr am Limit . 2013/14er Preise. |
||
|
||
|
schickt mir eure mailadressen dann schick ich es weiter.. gerne sogar.. wäre sehr nett von euch.. |
||
|
||
|
Miike danke für deine Ausführung, kann man sich dann schon in etwa bissschen was drunter vorstellen. Danke |
Dieser Thread wurde geschlossen, es sind keine weiteren Antworten möglich.Nächstes Thema: Bauschutt entsorgen in NÖ ... Gutschein?
