Bungalow für 2 Personen 130m² + Keller
|
|
||
|
Teil 2:
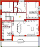
KG und EG sind gleich breit mit 13,02m. Die Aussenmauer des Reiki Behandlungsraumes und der Küche sind genau übereinander - Aussenmaß 13,2m. Die Küche springt 1,5m vor. Das restliche EG springt ggü dem KG zurück um Bauklasse I sicher zu stellen. Das Haus isrt aussen mindesten 3,72m und max 6,39m hoch. |
||
|
||
|
Ich finde den Entwurf gelungen. Gefällt mir.
Folgende Punkte würde ich dennoch nochmal überlegen. Bad sollte vom Gang erschlossen werden, damit auch Gäste dort Zugang haben und nicht in den Keller gehen müssen. Des Weiteren ist mir die Möblierung in der Küche nicht ganz klar (Kochen, Waschen, Kühlschrank). Wie sind die Abstände der Kästen zueinander? Die Kochinsel wirkt etwas verloren bzw. ich hab das Gefühl es steht am falschen Platz. Wieviel ragt die Treppe im KG in den Gang hinein? Daneben sollte mind. noch 1,20m Durchgang bleiben. Was ist das für ein gelber Punkt im Vorraum? Stütze? |
||
|
||
|
Statisch könnte noch ein Unterzug nötig sein. Daher würde ich die tragende Wand zwischen Küche und Schlafzimmer etwas weiter runter setzen.
Kinder sind wirklich kein Thema mehr? Wenn ja kann das so mit dem Masterbad funktionieren. Wenn doch noch Kinde sein sollten in jedem Fall vom Gang aus zugänglich machen. Auch wenn man sich in vielleicht 20 Jahren dazu entscheidet das Haus zu verkaufen und sich einen schönen Lebensabend mit Weltreisen etc... verwirklicht sollte man den Zugang bereits so wählen, da der durchschnittliche Käufer eine junge Familie sein wird, für welche damit dein Haus auch geeignet ist und du somit deinen Kundenkreis erweiterst. |
||
|
||
|
Hallo Shelby, hier gibt es dazu Erfahrungen und Preise: Bungalow für 2 Personen 130m² + Keller |
||
|
|
||
|
||
|
Danke für eure Beiträge.
ad Bad vom Gang zugänglich: das ist ein ausdrücklicher Wunsch meiner Frau und micht stört es auch nicht. Wir sind beide 48 Jahre und unsere Kinder erwachsen. Die Enkel können gerne zu uns ins Bad. Gäste können sicher die paar Stiegen in den Keller gehen. Das Büro/Reikizimmer im KG kann ebenfalls als Gästezimmer benutzt werden.Für einen möglichen Verkauf habe ich Wände so gewählt, dass man leicht die Tür vom SZ zum Bad zumauern kann und zw VZ und Bad durchbrechen kann. ad Küche: die Detailplanung fehlt hier noch. Prinzipiell sollen die Schränke oben im Bild Wandhoch sein und Platz für Kühlschrank, Backrohr, Mikrowelle und ev Geschirrspüler bieten. Links eine lange Arbeitsplatte mit Unter und Oberschränken. Die Kochinsel gefällt uns auch noch nicht ganz. Wichtig ist uns ein 1,2m Abstand zw Kochinsel und Schränken damit man zu Zweit durchgehen kann oder eine Schranktüre/Lade öffnen kann. ad Treppe: 50cm ragen die 1 1/2 Stufen in die Diele. Restdurchgangsbreite 1,66m. Stört nicht, man kann ja von der Diele aus direkt auf die erste Stufen steigen ad gelber Kreis: das ist eine Option auf einen Velux daylightspot ad Unterzüge: ist mit Baumeister besprochen und kein Problem die Überzüge bzw die Elementdecke einzubauen. Maximale Spannweite 6,3m |
||
|
||
3D Ansicht(alte Version mit Gartenzugang über Türe im Podestbereich der Kellerstiege und ohne Treppen von der Terrasse zum Westgarten) |
||
|
||
|
Ich würde die Küche als G-Form machen und normale Fenster einbauen. Ich nehme aber an, dass ihr die HST HST [Hebeschiebetür] unbedingt für den direkten Zugang auf die Terrasse und der Optik haben möchtet. Welche Küchenmaße habt ihr? LG |
||
|
||
|
Die G Form wäre sicher besser für die Anordnung der Küche. Wir wollen aber unbedingt die Fenster (HST) Front im Süden. 4,24 x 3,27m |
Dieser Thread wurde geschlossen, es sind keine weiteren Antworten möglich.Nächstes Thema: Hilfe für Grundriss bei Umbau
