Hallo,
ich habe eine Frage zum Thema Brandschutz in Oberösterreich.
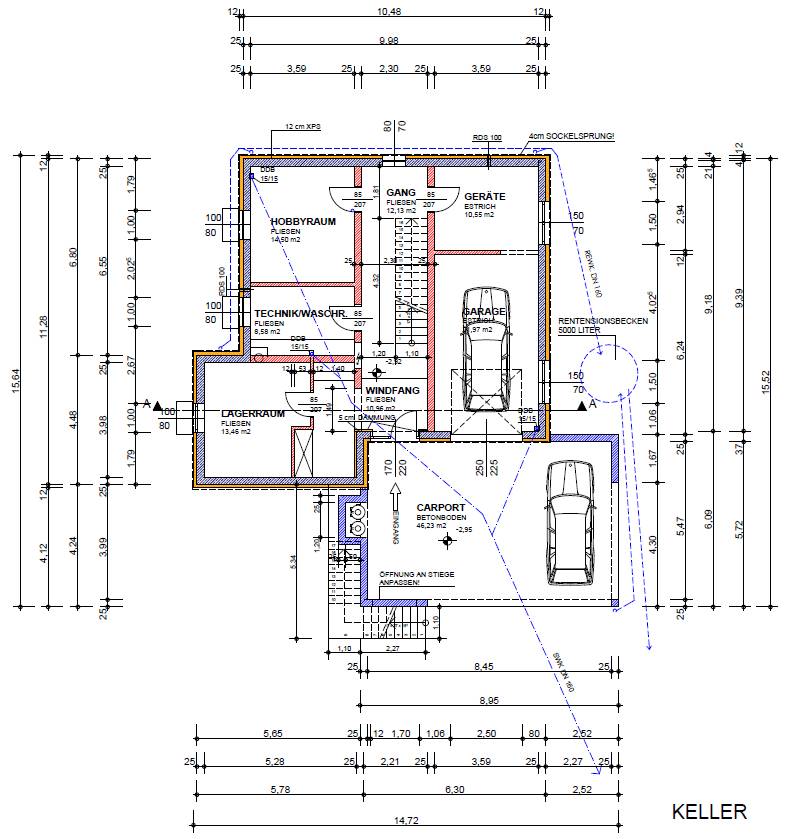
Mein "Problem" ist dass im Einreichplan keine Brandschutztür vermerkt wurde, darum ist das Thema bei mir auch irgendwie untergegangen.
Müsste beim angehängten Plan zwischen Geräteraum und Gang eine Brandschutztür gesetzt werden? Zwischen Garage und Geräteraum ist ein freier Durchgang.
Könnte ich eventuell die Garage als Lager deklarieren und die Sache so umgehen? Der Raum wird nämlich tatsächlich als Lager benutzt und nicht als Garage...
Wie verhält sich die Sache beim Carport?
Bin mir unsicher was die Rechtslage betrifft und möchte mich vorbereiten falls hier was auf mich zukommt.
Danke für eure Hilfe!
Gruß,
Jürgen

Gesamten Text anzeigen