« Hausbau-, Sanierung  |

Wintergarten als Wohnraum umbauen?

Teilen: facebook    whatsapp    email
  •  dynamike
9.1. - 10.1.2025
3 Antworten | 3 Autoren 3
3
Hi,

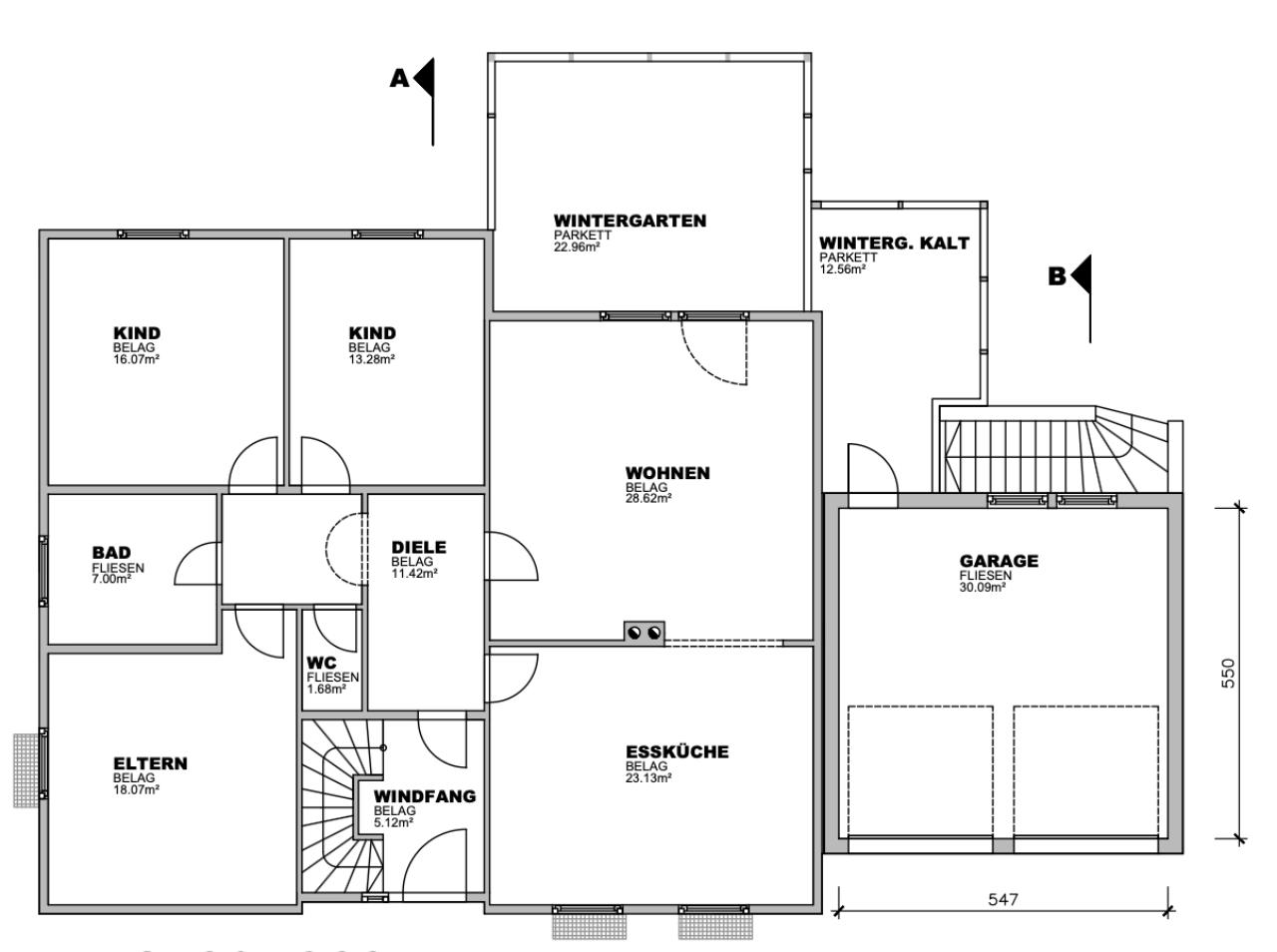
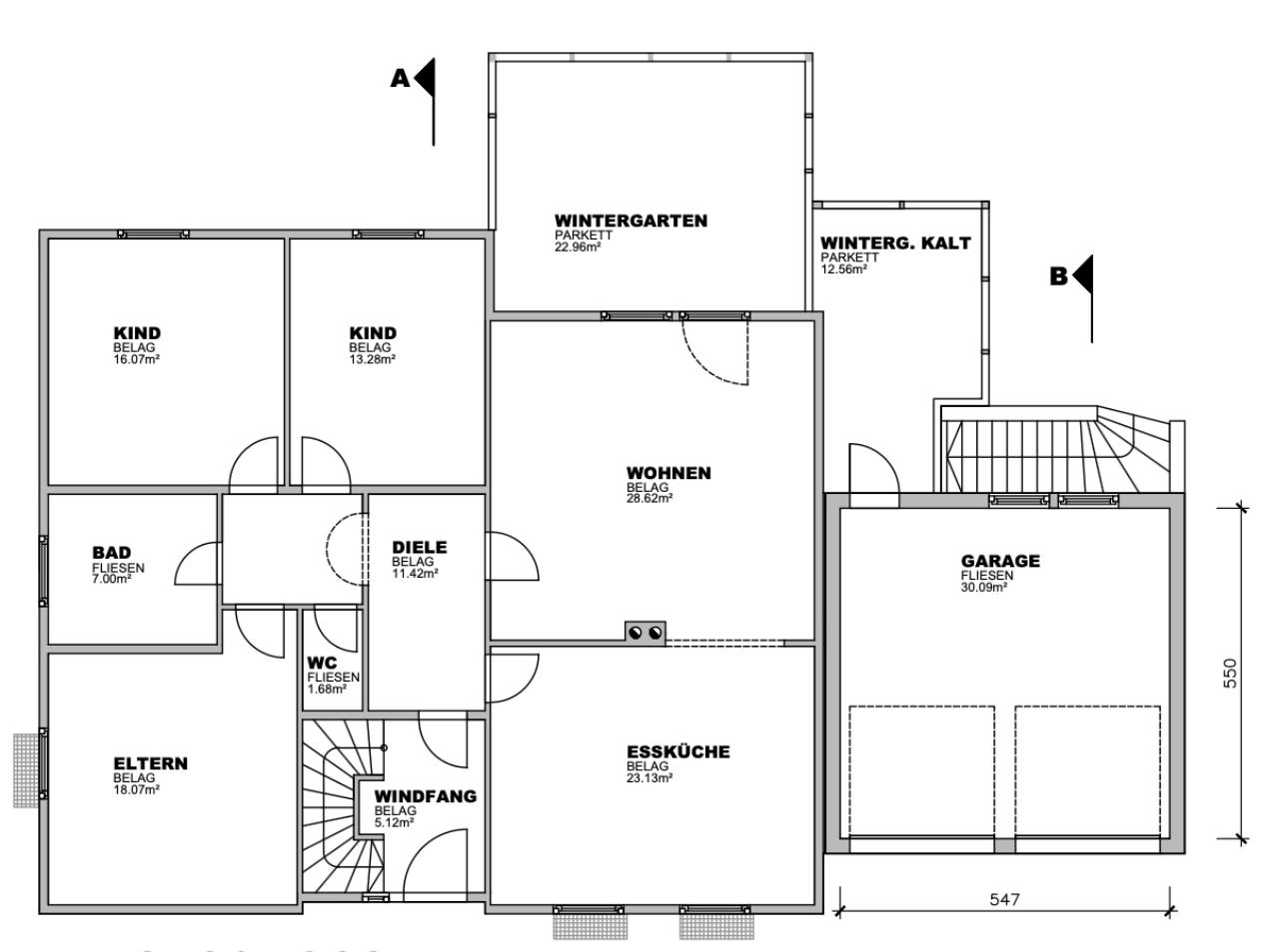
meine Frau und ich haben das Elternhaus übernommen und lassen es umbauen (der erste Stock wird geschliffen und komplett neu gemacht). Zusätzlich bestizt das Haus einen zweistöckigen Wintergarten.
Der eigentliche Plan wäre den Wintergarten abzureissen und den Wohnraum dafür entsprechend zu vergrößern (im ersten Stock) und somit automatisch auch eine geschützte Terrasse unter dem Zubau zu erhalten.
Da der Wintergarten aber an sich noch sehr neu ist, stellt sich die Frage ob es möglich wäre den Wintergarten so umbauen zu lassen um ihn ganzjährig als Wohnraum nützen zu können.
Im Moment ist er ganz nett in der Übergangszeit, aber im Winter muss der Kamin durchgehend beheizt werden und im Sommer ist es viel zu heiß.
Hat von euch jemand Erfahrung damit?

Natürlich könnte man den Wintergarten in den kalten Monaten beheizen und im Sommer mit Klimaanlagen runterkühlen, aber ist das wirklich sinnvoll?
Anbei noch der Grundgriss vom ersten Stock wie es jetzt aussieht, und wie es geplant wäre.


_aktuell/20250109572605.png

_aktuell/2025010965000.png

  •  Thuata
  •   Bronze-Award
9.1.2025  (#1)
Kommt halt auf so viel drauf an ;) Bedarf, Wünsche, Budget... ;)

zB: Ich fände es durchaus reizvoll von der Garage "direkt" in die Küche zu kommen um dort die Einkäufe abzuladen - das geht bei eurer aktuellen Aufteilung von Wohn/Esszimmer jedenfalls nicht ;) - wenn man die Küche ins Wohnzimmer gibt schaut das anders aus.

Wenns der Platz und das Budget hergibt würd ich persönlich eher den Wintergarten behalten und schauen, dass man ihn besser ans Klima anpasst (da mein ich jetzt nicht zwingend Heizen/Kühlen sondern eher Dämmen/Beschatten...

Und weils mir grad aufgefallen ist noch eine NAchfrage: Die Garage ist bei euch im 1. Stock?

1
  •  NicoKraus
9.1.2025  (#2)
Statt dem Tausch bon Wohnzimmer und Küche würd ichs für schlauer halten den Auftritt von der Außentreppe zu verkleinern und dort einen direkten Zugang von der Garage zum Koch/ Essbereich zu schaffen.

zum Thema Wintergarten: Ich würde die die (ohnehin schon sehr großen) Fensterflächen noch mal weiter vergrößern, dann habt ihr zumindest von der Atmorphäre her einen Wintergarten ohne die von dir bereits beschriebenen Nachteile. 

1
  •  leitwolf
  •   Gold-Award
10.1.2025  (#3)
Vielleicht kann man die Verglasung durch thermisch bessere Verglasungen tauschen und dafür einzelne Glasfelder durch opake, gedämmte Paneele ersetzen, Beschattung (natürliche Beschattung) einsetzen, gute Durchlüftung für Sommer, etc.

1



Beitrag schreiben oder Werbung ausblenden?
Einloggen

 Kostenlos registrieren [Mehr Infos]

Nächstes Thema: Wandausbruch in altem Steinhaus reparieren