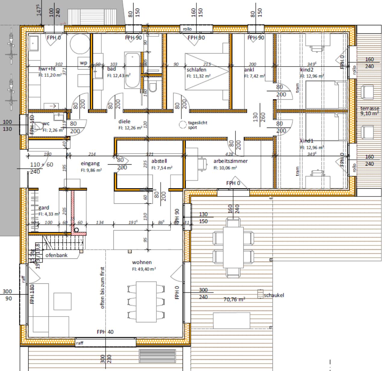
Wieviele Tageslichtspots in Diele
|
|
||
|
Keine Erfahrung damit, aber: Sind diese Tageslichtspots nicht sauteure Wärmebrücken? Ich würde einfache Downlights einbauen, kommt sicher um ein Eck billiger. |
||
|
||
|
Meiner Ansicht nach genügt ein Tageslichtspot. Die Fotos sind von einem Flur ohne Fenster. ![]() ![]() |
||
|
||
|
Schwierig zu sagen. Bei so einer Länge würde ich zu zwei tendieren. EDIT: Bei zusätzlichen Lichtquellen am Anfang und Ende könnte tatsächlich einer reichen. Never ever würde ich meinen Tageslichtspot gegen elektrische Spots eintauschen wollen*. Im Gegenteil ärgert es uns, im fensterlosen WC nicht auch so einen Spot installiert zu haben. Tageslicht ist nur mit Tageslicht zu ersetzen... 😉 Ad Wärmebrücken: Die Fläche vgl. zur restlichen Decke ist winzig. Wer mag kann aber auch einen Wärmeschutzeinsatz verwenden. Ich hab sowas, bin mir aber sicher, dieses wirklich sauteure Zubehör über die Heizkosten niemals nicht reinzubekommen. *Übrigens kann ich in meinem Tageslichtspot auch eine Lampe einbauen, um in der Nacht keinen zusätzlichen Spot zu benötigen. Sollte ich vielleicht mal anschließen... 🙈😜 |
||
|
|
||
|
||
|
Wir haben einen, würde zwei machen. LG |
||
|
||
|
Wir hatten es bei Bekannten gesehen, die 2 hatten in einem fensterlosem Gang mit geschlossenen Türen, da war es ein richtiger Wow - Effekt. Bei unserem Haus wo er den oberen Bereichen abdeckt und am Anfang das nordseitige Stiegenhausfenster den Gang "beleuchtet" war er Schade um Geld und Aufwand - Ausser bei Vollmond, da kommt er gut^^ Bisschen Licht von wo anders her und er geht unter wie ich finde. Beim Einbau war ich immer dabei, weil er ja die Geschossdecke und die Dachhaut durchdringt, das muss schon sauber gemacht sein. Daher auch Thermo Einsatz drin, damit keine Luft nach oben kommt, weiters den Kanal Isoliert damit ja nichts sein kann. |
||
|
||
|
Wir haben Deckenlampen mit gleichem Durchmesser wie ein Tageslichtspot. Ich könnte da keinen Nachteil erkennen, da ich auch die Spots schon oft gesehen habe. |
||
|
||
|
Wie teuer ist so ein Teil? |
||
|
||
|
Deckenaussparung, Isolierung, Dacheinbau, Abdichten und das Teil bist ein paar k los, wir haben einen, nochmals würde ich ihn NUR bei keiner anderen natürlichen Lichtquelle einbauen, sonst bringt er zu wenig. |
||
|
||
|
Im Flur wohnt doch keiner. Wäre mir tu teuer wenns nicht für einen Raum ist in dem sich aufgehalten wird. So würde ich es auch machen. Ich mag keine Durchdringungen durch ein Dach, daher alles dahingehend vermieden Schöner Grundris gefällt mir gut |
||
|
||
Danke für die Antworten. Ganz so teuer scheint es aber eigentlich nicht zu sein. Laut Angebot eines Zimmerers sind es 735 EUR netto. ![]() |
Beitrag schreiben / Werbung ausblenden?
Einloggen
Kostenlos registrieren [Mehr Infos]




