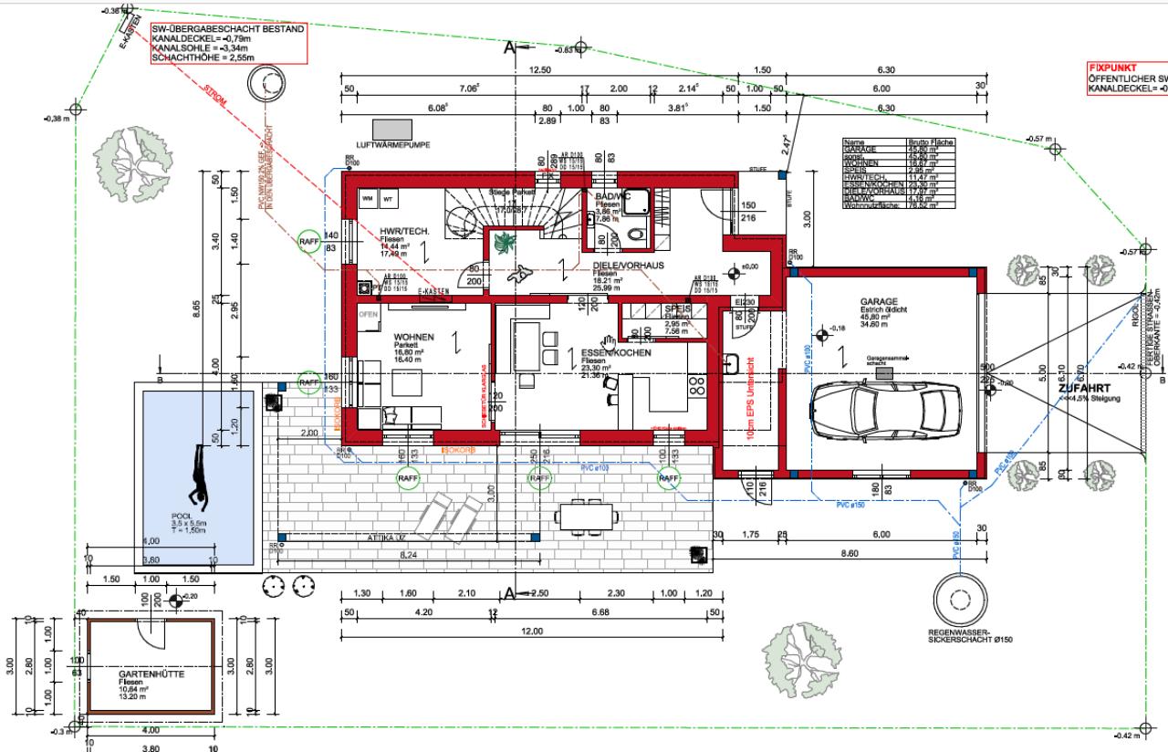
Unser Projekt: Polypropylen-Pool mit Überlauf 3x5m
|
|
||
|
wow - du bist mein Held. Blöde Frage: den Ausgleichsbehälter brauchst weils ein Überlaufpool ist - für den hätte ich nämlich keinen Platz. Wie bist du mit der Größe zufrieden - du hättest ja auch Platz für einen größeren Pool gehabt? Danke nochmal!!! |
||
|
||
Danke dir ja den Ausgleichsbehälter braucht man für den Überlauf. Das Wasser läuft über den Überlauf / die darunter liegende Rinne in den Behälter , welcher wiederum - wenn aktiv - das fehlende Wasser nachpumpt. Haben mal getestet wenn die Pumpe nicht läuft - man merkt es relativ schnell dass Wasser fehlt wenn zb die Kinder springen und plantschen, da der Pool ja bis oben hin voll ist ( im Gegensatz zb zu einem skimmerpool wo ja sicher 10 cm Wasser "fehlen"). Das wird dann eben wieder reingepumpt. die Größe passt, wir sind zu dritt und mit Besuchern passts auch. Natürlich hätte man ihn größer machen können, aber irgendwo mussten wir dann auch mal stoppen (obwohl 1-2 Meter jetzt auch nicht mehr die Welt gekostet hätten. Dort noch was größer, da noch was besseres....wir sind mittlerweile bei ca 630K Gesamtkosten, das reicht :-/. ) ich mach gerne wassergymnastik, da reicht er sowieso. Schwimmen kannst auch in 3x7 Meter nicht. Und zum abkühlen für uns erwachsene und zum springen und toben für ein paar Kids passt es gut. |
||
|
||
|
Also ich mach bei unsren 7m ganz normale 10 tempi und meine Frau schwimmt sogar im Kreis bei 3,5m breite 😉 |
||
|
||
|
Naja, schwimmen kann ich auch. Ich meinte damit "Längen schwimmen". Wenn ich im Freibad 50 Längen schwimm, werden weder du noch ich das zuhause im Pool machen. Dafür haben wir unseren Pool auch nicht gebaut . Aber schön wenn ihr in Kreis schwimmen könnt. |
||
|
||
|
sehr schön. Der größte Batzen war wahrscheinlich die Hinterfüllung? Habt ihr zusätzlich mit normalem Beton rund um den Pool oder auf den Monokorn Drainagemörtel/Split und Kleber/verfugt? |
||
|
||
|
17.400,- für den Pool, wieviel hat dann noch das Baggern und die Bodenplatte verschlungen, sprich Gesamtkosten? Wir haben auch lange überlegt ob PP oder herkömmliche Bauweise und sind jetzt für Pool+Technik+Kuppel bei 20k gelandet, excl. Bagger und Bodenplatte. |
||
|
||
|
Baggern ist etwas schwierig rauszurechnen da wir auch das Fundament gemacht haben, aber inkl Bopla und der ganzen Hinterfüllung bis zur Hütte und kleine Erweiterung der Terrasse via noch 12-13K dazu |
||
|
||
|
Nein es ist alles Monokorn rund um den Pool. Für den Unterbau unter den Fliesen hatten wir einen Silo mit Splitbeton |
||
|
||
|
Mal eine dumme Frage: Wie lange garantieren die Pool Lieferanten die Lebensdauer bei einem PP Pool? Ich bin zwar für PP immer sehr aufgeschlossen, aber offen liegend im Außenbereich mit "ständiger" UV Belastung von der Sonne hätte ich da schon einige Bedenken. Das PP wird zwar gut UV stabilisiert sein, das schützt aber auch nicht ewig. OK, der Pool an sich hält schon einige Jahre bei 5 mm Dicke, aber ich hätte da Bedenken, dass die Oberfläche wesentlich schneller angegriffen wird durch UV. Wird dann rau und Dreck empfindlich. Ein Pool Anbieter wird immer sagen, dass PP super ist. Stimmt für die ersten 2...3 Jahre auch bestimmt. Aber was passiert nach ~ 5 Jahren mit der Oberfläche, wenn die Garantie schon lange vorbei ist. Gibt es da nicht Alternativen - auch in Kunststoff, wo der Kunststoff absolut nicht UV empfindlich ist? Eine herkömmliche Bauweise mit Beton und verfließt ist auch keine wirkliche Alternative. Die sehen nach 15...20 Jahren auch schleißig aus. Aber eventuell gibt es hier schon jemanden, der einen PP Pool seit 20 Jahren hat und sagt: Auch heute noch super. Aber so lange gibt es warscheinlich noch keine PP Pools.... |
||
|
||
|
Ich denke deine Bedenken gelten dann aber ebenso für Folinpools. Wir haben den Vorteil, dass durch das Überlaufsystem die Poolelemente ja nicht ohne Wasser sind. Einerseits optisch schöner und sicher auch besser wegen UV. Schau dir mal einen Skimmerpool an, hier fehlen leicht 10-15 cm Wasser, da hätte ich schon mehr Bedenken. wegen Garantie muss ich noch nachsehen. PP kann man sehr gut reparieren im GGsatz zu zb Folie |
||
|
||
|
Die PP Pools sind so eine Sache. Im Poolforum war einer der hatte einen Riss unten am Boden. Er fand keine Firma die das schweißen wollte, da erstens das PP spröde wird mit der Zeit und zweitens niemand Garantie auf Dichtheit geben wollte. Da ist es mit Folienpools um einiges einfacher. Und nach Jahrzehnten tauscht man einfach die Folie und es ist wieder neu. Beim PP Pool geht das nicht. Da hat man dann nur eine Menge Sondermüll. Ich kann bis heute keinen Vorteil von PP Pools erkennen, aber jeder mag halt etwas anderes |
||
|
||
|
Genau so ist es |
||
|
||
|
Wohl eher genau umgekehrt |
||
|
||
|
Schweißen ?? |
||
|
||
|
PP ist super, wenn es richtig eingesetzt wird und das richtige PP (mit den passenden Additiven) verwendet wurde. Leider gibt es nicht "ein" PP, sondern 100 Unterschiede, zwischen den verschiedenen PP Typen. Für einen Laien absolut nicht durchschaubar. Und wenn man sich da schlau machen möchte, dann müsste man erfahren, welches PP "Design" und welche Additive (z.B. gegen UV) verwendet wurden. Keine Chance für einen Endanwender da durchzusteigen. Und die Pool PP Hersteller werden sich auch nicht auskennen. Ja, ein PP kann über Jahre verspröden. Ja, PP wird über UV abgebaut. Aber auch, ja - PP kann man fachgerecht bei einem Riß reparieren. Ein Folienpool ist ja mehr etwas kurzfristiges (wenn die Kinder klein sind, z.B.). Wenn ich mir einen Pool für Jahre und Jahrzehnte in den Garten setze, dann wohl eher beide nicht. Eventuell ist da Epoxidharz plus Glasfaser die bessere Wahl. Oder wirklich gut gefliest... Ich persönlich halte einen massiven Pool nicht für sehr sinnvoll - es gibt Seen, Freibäder, Flüsse, usw. Einen Pool mit Wasser füllen, ist ja auch nicht so Umwelt freundlich. Aber nur meine sehr persönliche Meinung zum Thema Pool. Manche brauchen einen Pool auf 200 m² Grundstück, weil das alle Nachbarn auch haben. Wie gesagt, bei kleinen Kindern zum plantschen einen Folienpool für 3...5 Jahre - ist für mich OK. Ein wirklicher Pool, da gehört dann kräftig investiert (~ 100.000 €), damit alles passt. |
||
|
||
|
ich glaub du weist nicht was hier mit einem folienpool gemeint ist!! und das mit den 100000,- ist natürlich blödsinn - kann man aber ausgeben wenn man will |
||
|
||
|
Du kannst Sinn und Unsinn eines Pools ja gerne in einem eigenen Thema behandeln. Hier sollte ein austausch und Info über ein fertiges Projekt erfolgen |
||
|
||
|
Ich glaub du verwechselst hier bei Folie die Plantschbeckenfolien mit einer ordentlichen 1,5mm Gewebefolie,... Bei einer GEwebefolie bekommst schon 10 Jahre Garantie und bei ordentlicher Pflege, sprich immer gute Wasserwerte sieht die Folie nach 10 Jahren noch so aus wie am ersten Tag. Glasfaser/GFK würde ich nie machen, da gibts das Thema Osmose,... Fliesen sind so eine Sache. Hält auch nicht auf Dauer wegen den Fugen. Und irgendwann sehen die Fliesen einfach nur alt aus. Im Endeffekt bleibt nur Folie oder PP. Oder wenn man einen Ferrari unter den Pools haben will, Edelstahl. Was aber in Wirklichkeit kein Mensch braucht im privatem Bereich. |
||
|
||
|
Also wir haben unser Folienpool jetzt ca. 18 Jahre und noch immer die erste Folie 1,5 MM Gewebeverstärkt. Wir ziehen jetzt um un machen dort auch wieder so ein Pool. Man ist an nichts gebunden weil die Folie wird vor Ort geschweißt |
||
|
||
|
Dito unseres, die Folie ist nicht mehr die beste, das liegt aber an den Putzmittel meines Vaters 😔 Ansonsten ist das Pool 24 Jahre alt und hat sogar ein Hochwasser überlebt. |
||
|
||
|
Hallo Neubau2018! Wir kennen uns ja schon aus meinem Grundriss Thema Ich hätte noch eine Frage zur Verfliesung rund ums Pool. Wieviel haben die 90m² verfliesen gekostet? Fliesen habt ihr wo gekauft? Kostenpunkt pro m² die Fliese? Gefällt mir sehr gut. LG |
||
|
||
|
Hallo neubau2018, hier gibt es dazu Erfahrungen und Preise: Unser Projekt: Polypropylen-Pool mit Überlauf 3x5m |
Dieser Thread wurde geschlossen, es sind keine weiteren Antworten möglich.



















