Tüfteln für die Effizienz - Kombitabelle sucht Perfektion
|
|
||
|
Weil du die Nibe S1256-8 erwähnt hast -> wenn ich mir deine Dämmung anschaue dann gehe ich stark davon aus dass diese viel zu groß ist. Mein Haus BJ81/82 bekommt nun diese WP WP [Wärmepumpe]. https://www.nibe.eu/de-de/support/handbuecher da solltest du im Installationshandbuch fündig werden. Soweit ich das mitbekommen habe bei FBH FBH [Fußbodenheizung] solte man die Rohre nicht so nah zusammenlegen wie du das im Gang gemacht hast. Als Isolierung gibt es so dünne Schläuche mit ca. 3mm Dämmung. Besser als nichts ist es sicherlich aber wohl kaum gut. Ich beschäftige mich nur mit Sanierung bzw. Heizungstausch (2 Jahre) und das was ich bisher gelernt habe sagt vergiss das Sanieren und das Isolieren den mehr als ein paar cm sind nur hinausgeworfenes Geld das in 100 Jahren nicht mehr hereinkommt. Da werden mir jetzt viele Wiedersprechen aber denen sage ich nur ihr rechnet noch mit Öl/Gas, Pelets bzw. Strom der zu Kaufen ist. Wenn du ein Haus hast dann mach PV drauf so viel wie geht (inkl Fasade, da kommt sie dir ausserdem Billiger) und Plane einen großen Akku (Batterieraum) ein. Der muss nicht von Anfang an da sein aber die Preise der Akkus werden weiterhin stark Sinken und Denke auch darann dass die nächsten Jahre wohl H2 stark am kommen ist (in DE betritt gerade ein neuer Spieler den Makt der wohl mit 50% niedrigeren Preisen aufmischt, vor allem kan man da die Abwärme der Elektrolyse und der Brennstoffzelle zum Heizen verwenden). Ich hab gesehen du hast eine Wp eingezeichnet, mit was soll die Betrieben werden? MMN wäre es ideal direkt daneben eine Tiefenbohrung zu setzen (vor dem Bau des Kellers so dass Sondenende neben WP WP [Wärmepumpe]) |
||
|
||
|
Hallo Mutantenzeh, hier gibt es dazu Erfahrungen und Preise: Tüfteln für die Effizienz - Kombitabelle sucht Perfektion |
||
|
||
|
Also ich glaub auch das Energieausweis nicht sagt das du eine 8er braucht oder? Die modelliert nicht so weit runter und Taktet nur. Im Bad fbh , bka, wandheizungen dann schaffst das. Also als erstes bka, kwl und dann elektro. Hatte alles in cad geplant. Aber gut ich mach elektrische Planungen und jetzt hauptsächlich Bus programmierungen |
||
|
||
|
Danke euch!! Die WP WP [Wärmepumpe] wird mit einem RGK RGK [Ringgrabenkollektor] betrieben (kennt in meiner Gegend gefühlt niemand). Ja, das Flachdach wird mit PV vollgeballert. Schön mit Ost-West-Ausrichtung, darunter noch ein Gründach. Heizlast (sorry, das hätte ich ja mal gleich hinschreiben können) laut Energieberater: 4658 W, allerdings nach DIN 12831 und damit ohne solare/innere Gewinne. Die Kombitabelle, die die KWL KWL [Kontrollierte Wohnraumlüftung] mit Wärmerückgewinnung 93% berücksichtigt (geplant ist eine WS 320), kommt auf 3521 W. Also ja, ich sehe es total ein, dass die 1256-8 überdimensioniert ist. Nur war bei meiner Entscheidung nicht, was ist die passende Wärmepumpe, sondern was ist die kleineste WP WP [Wärmepumpe] von N*** (aufgrund der offenbar guten Regelbarkeit). Sollte sich am Markt mittlerweile die Konkurrenz verbessert haben, bin ich dankbar für alternative Vorschläge. |
||
|
|
||
|
||
|
wo wohnst du? habe ich auch seit 7 Jahren erfolgreich in Betrieb, wo alle sagten, das kann nicht funktionieren aber ich hab immer an Arne geglaubt dann ist deine Pumpe ja sowieso viel zu groß, da reicht alle mal eine 6er. Die kann ein bisschen weiter runtermoduliernen. Meine moduliert im Herbst auf 1,5kw was fast gar nicht geht, wegen den hoehen Soletemps und taktet nur. Die S1255 gibts ja nicht mehr oder? DA hatte doch Arne die Heliotherm usw als Vorschlag. Ich weiß jetzt nicht ob sich da am Markt was getan hat. Aufgrund der neuen Kältemittel und das die neuen Nibe Pumpe softwaretechnisch auch eher ein Rückfall sind,.... |
||
|
||
|
Heliotherm glaub ich ja, hier schwärmt er von der Stiebel: https://www.energiesparhaus.at/forum-ringgrabenkollektor-gegenwart-der-erdwaerme/65789_15#866579 |
||
|
||
|
ich sehe die grenzen eher darin womit man ihn füttert. erst die raumweise simulation bringt belastbare ergebnisse für hocheffiziente niedrigstenergiegebäude... https://www.energiesparhaus.at/forum-mein-hydraulischer-abgleich/75472_5#865582 |
||
|
||
|
😘😘😘
|
||
|
||
|
Das Haus wird östlich von Berlin nahe Stadtgrenze gebaut. Ja, "das geht so nicht", "das war schon immer so/schon immer so gemacht", oder "noch nie gehört" sind auch meine Lieblingszitate. In D lebt die Baubranche hinter dem Mond, und viele glauben noch sie befinden sich in der Zeit von vor 2-3 Jahren, als Auftragsmangel ein Fremdwort war... Danke für die Links, ich werde mal den Stiebel-Support bemühen. Ich lese gerade, dass die 1256-8 auch bzgl. Solepumpe nicht optimal für die Einrohr-40x300-Hydraulik sei. Noch ein Argument weniger für Nibe. |
||
|
||
|
Hallo, meine Mitbewohnerin hat LoopCAD erfolgreich gemeistert und gemeinsam mit der Kombitabelle ist nun dieses Ergebnis herausgekommen: Wir haben die FBH FBH [Fußbodenheizung] auf 0°C AT AT [Außentemperatur] ausgelegt, da diese viel häufiger auftreten wird als NAT. und alles darüber verschwimmt immer mehr, ich glaube da wird das ganze Haus dieselbe Temperatur haben. Ich frage mich nun, ob die Werte im Tab HKV und meine Eingabe beim Druckverlust so hinhauen. Leider habe ich keine Ahnung von Hydraulik, könnt ihr bitte deshalb meine Eingaben kritisch hinterfragen? Die Längen habe ich entsprechend eingetragen. Dabei habe ich die reale Länge x2 genommen, für VL VL [Vorlauf], RL. Mein Sani verbaut mir auf Wunsch Kupferrohre 35x1,2 als Anbindungsleitungen. Nach diesem Schema werden die HKV angebunden: Der Vollständigkeit halber hier meine vollständige Tabelle: https://docs.google.com/spreadsheets/d/1okEnYSpdsHOrc0pR00uQM3zEn83K5UAeP-Tr81UMIDs/edit?usp=sharing Jeder Input hilft mir, danke im Voraus. |
||
|
||
|
Hallo, der Heizungsbauer hat mir, ohne dass ich davor informiert wurde, eine zusätzliche Heizkreispumpe eingebaut. Seine Begründung: Dann muss die WP WP [Wärmepumpe] mehr ackern da der Volumenstrom insgesamt dann zu niedrig ist und somit der Rücklauf mehr abkühlt da es langsamer durch die Kreise läuft. Mich wundert seine Entscheidung schon etwas, da ich schon geschaut habe, alles nach Flow30 auslegen zu lassen und zudem nie davon etwas hier gelesen habe, dass die Heizkreispumpe der Nibe S1256 so schwach sei. Kurzabriss zu meinem System: 3x 3 BKA BKA [Betonkernaktivierung] Kreise (KG, EG, OG) mit je ~95m 20x2mm FBH mit 3, 6 und 8 Kreisen, je ca. 80m DN 17x2mm Anbindungsleitungen 32mm Durchmesser, bis auf die letzten 3m ins OG, dort war beim Durchbruch nur Platz für 28mm In der Rechnung schreibt er Zusatzpumpe Heizkreis zur Volumenstromerhöhungund möchte inkl. Absperrkugelhähnen und Übergängen 275 EUR netto. Fühle ich mich zurecht über den Tisch gezogen? Was meint ihr zu dieser Entscheidung? |
||
|
||
|
Rausstreichen. Die Pumpe is fürn Lokus. Bei deiner Berechnung kannst noch mal dein Haus dazu stellen, das schafft die interne Pumpe auch so. Wie sieht denn die Einbindung aus? Hast du Bilder oder ein Schema zur Hand |
||
|
||
|
Wie oben schon geschrieben halte auch ich die S1256-8 für überdimensioniert für dein Haus, aber gut. Zumindest kannst mit PV deine BKA BKA [Betonkernaktivierung] schön aufladen und wirst dadurch zumindest in der Übergangszeit ganz gut mit sehr wenig Strombezug durchkommen, auch ohne elektr. Speicher. Die Begründung deines HB wegen der zusätzlichen Heizkreispumpe ist natürlich Bullshit. Du hast sehr viele parallele Kreise, dadurch sinkt insgesamt der Druckverlust, als das die Heizkreispumpe "zu stark ackern" muss. Es ist ja keine Pflicht, dass jeder Kreis unbedingt seine 1l Durchfluss erreichen muss, überspitzt formuliert. Bei mir ist es mit den falschen Topmetern gar nicht wirklich erkennbar (0,1 l/min?), und wird auch alles wunderbar warm. Vielleicht baut dein HB zu viele ERR ERR [Einzelraumregelung] ein, die den Volumenstrom abwürgen, und dann muss er mit der zusätzlichen Heizkreispumpe dagegen arbeiten. 🤣 Ich würde es nicht bezahlen - er kann die Pumpe ja wieder ausbauen. 😜 |
||
|
||
|
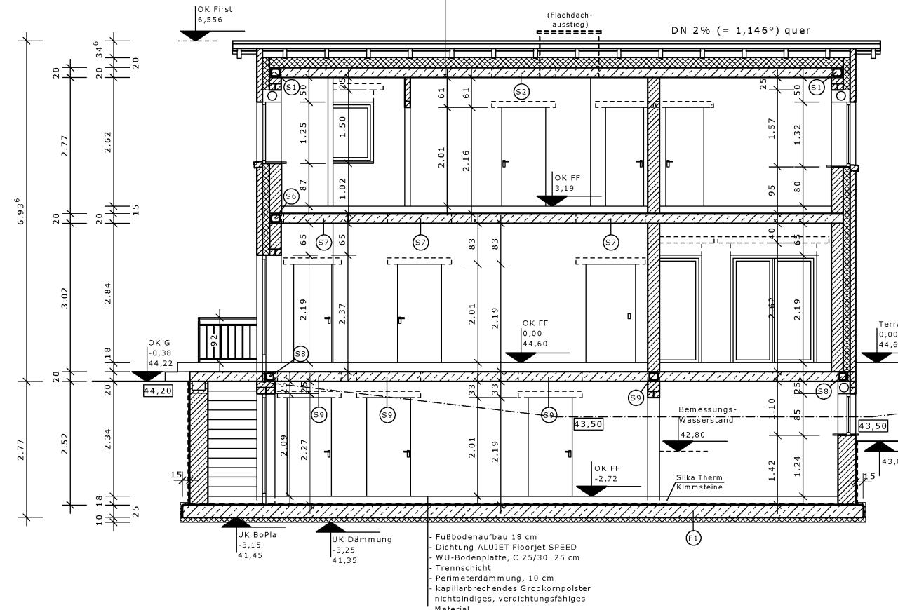
OK, vielen Dank für die Bestätigung. Ja, die WP WP [Wärmepumpe] ist überdimensioniert. Wo es mit Hausbau (-planung) losging, war Nibe/KNV das Maß aller Dinge, entsprechend habe ich einen Nibe-Partner in meiner Nähe herausgesucht. Dann kamen andere Fabrikate auf den Markt, für mich und dem Hausbaustress leider zu spät. @Akani Das Schema reiche ich mal nach. |
||
|
||
|
Wäre devinitiv super. Ich versteh sowas nicht welchen Müll sich Heizungsbauer als Argumente einfallen lassen. Gut dass du deine Heizlast und Heizkreisberechnung selber in die Hand genommen hast. DS hat dir das wirklich ausführlicher geschrieben. |
||
|
||
|
Ja hat auch mein Installateur gesagt, habe ihm dann gefragt, "Ich hoffe du schließt die Heizkreise paralell an? paralell => weniger Druckverlust" Er hatte dann bisschen überlgegen müssen, ist dann aber recht schnell auf seinen Denkfehler drauf gekommen. |
||
|
||
|
Nur zur Sicherheit: ERR hast eh keine, oder? 😉 |
||
|
||
|
Nein, keinen einzigen. Habe Lediglich KNX und Stromleitungen zu allen HKVs gelegt, falls man für die Zukunft irgendwas dort drin veranstalten will. Hier Bilder vom Aufbau. ![]() ![]() ![]() |
||
|
||
|
Die Pumpe im letzten Bild ist echt überflüssig. Die muss raus |
Beitrag schreiben / Werbung ausblenden?
Einloggen
Kostenlos registrieren [Mehr Infos]


























