« Fenster & Türen  |

Öffnungsrichtung Innentüren

Teilen: facebook    whatsapp    email
  •  Everest
  •   Bronze-Award
25.1.2021
2 Antworten | 2 Autoren 2
2
Hallo! 
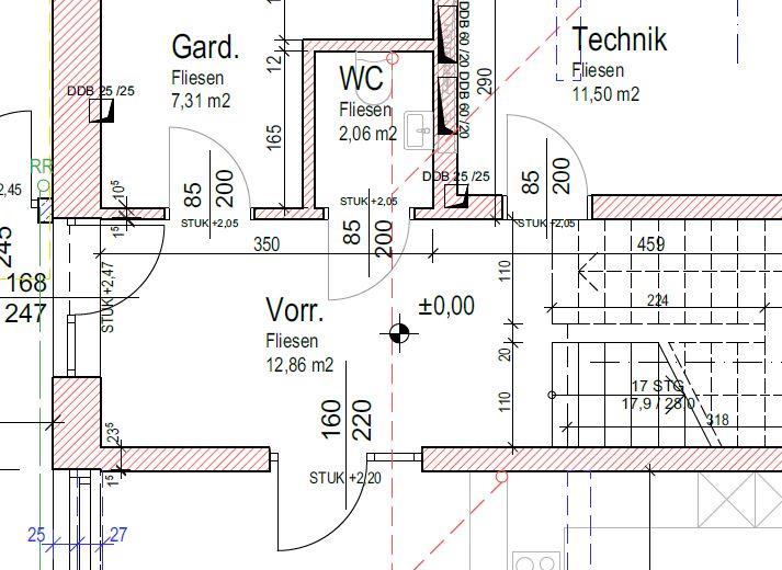
Ich habe vom Vorraum ausgehend 4 Türen geplant. Dabei ist eine Glastür mit Pendelbeschlag. 
Die verbleibenden 3 Türen gehen in die Gadarobe, WC und HWR / Technik. 
Das es einheitlich aussieht würde ich alle Türen nach innen (in den jeweiligen Raum) oder außen (in den Vorraum) aufgehen lassen. 
Wenn ich diese in den Vorraum aufgehen lasse, dann wird natürlich der Platz etwas weniger wenn Gäste kommen, da man sich nicht direkt vor die Tür stellen kann. Eventuell kann man nicht so gut in die Gadarobe gehen. 

Wenn man die Türe in den Vorraum aufgehen lässt, dann kann man mehr Platz in der Gadarobe bzw. HWR nutzen, da nicht auf die Türe Rücksicht genommen werden muss. Im WC wird es natürlich dann schon etwas eng. 


2021/20210125556436.jpg

  •  MissT
  •   Gold-Award
25.1.2021  (#1)
Wenn es Dir primär um die einheitliche Optik geht, dann verwende Reverso-Türen. Mein Fall wäre das aber nicht, weil vermutlich jeder Besucher die Tür in die falsche Richtung öffnen will. 

Beim WC hast Du eh keine Wahl, diese Tür muss nach außen aufgehen. Beim Technikraum wird es vermutlich wurscht sein, wenn dieser grundsätzlich groß genug ist. Am heikelsten finde ich die Garderobe: Wird diese Tür hauptsächlich geschlossen oder offen sein? Ich würde mal mit zweiterem rechnen, und dann ist das Öffnen in den Vorraum problematisch. Öffnen in die Garderobe hinein mag dort aber vielleicht auch unpraktisch sein, weil der Türflügel womöglich den Zugang zu Kästen u. dgl. blockiert. Aus diesem Grund würde ich Dir für die Garderobe eine Schiebetür empfehlen.

Davon abgesehen glaube ich, dass Du diesem Thema zuviel Aufmerksamkeit schenkst. Das gehört für mich zu jenen Details, denen man nach wenigen Wochen im Haus keine Beachtung mehr schenkt. Wenn man mal bereits eine Zeit lang im Haus wohnt, fragt man sich bei manchen Dingen, wozu man sich den Aufwand und ggf. auch die Mehrkosten überhaupt angetan hat. 

1
  •  babsi15at
  •   Silber-Award
25.1.2021  (#2)
Ich würde die WC-Tür auf jeden Fall nach außen aufgehen lassen, einfach aufgrund des Sicherheitsgedankens schon (jemand bricht im WC zusammen und blockiert die Tür). Außerdem ist es so sicher angenehmer ins WC hinein zu gehen (man muss in dem kleinen Raum nicht um die Tür herum). Bei den anderen beiden Räumen würde ich die Tür nach innen aufgehen lassen. Wenn du die Optik gleich haben willst, gibt es Reverso-Türen, die schauen zB aus als würden sie nach innen öffnen, gehen aber nach außen auf. Das haben wir anfangs auch für die WC-Tür überlegt, dann aber verworfen weil die Optik uns den Aufpreis nicht Wert war - ist bei uns eine andere Situation, bei so einer wie dir würde ich das eher in Kauf nehmen.

1


Beitrag schreiben oder Werbung ausblenden?
Einloggen

 Kostenlos registrieren [Mehr Infos]

Nächstes Thema: Sitzfenster Parapethöhe + Größe generell