mulettos Heizungsauslegung mit Mampfgnoms (berhans) Tabelle - Seite 2
|
|
||||||||||
selbstverständlich kenne ich den Danke für den Hinweis. Ich wusste, dass ich in den untiefen des Forums sowas schon gesehen hatte: Für mich oder die suchenden: Das Test-P: https://www.energiesparhaus.at/forum-heizungsauslegung-mit-berhans-tabelle/60386_6#617788 Abdrücken der verbauten Rohre 1: https://www.energiesparhaus.at/forum/redir_answer.cshtml?t=60386&a=621432 Abdrücken der verbauten Rohre 2: https://www.energiesparhaus.at/forum/redir_answer.cshtml?t=60386&a=624027 |
||||||||||
|
||||||||||
|
Mein Material für die BKA BKA [Betonkernaktivierung] für den Keller liegt nun hier. Mein Test-P habe ich auch gebaut. ![]() Wirklich gut machbar und das Handling mit dem Aluverbundrohr ist sehr angenehm. Nur das das mit dem einhanfen habe ich min 3x machen müssen, bis es zwischen Hahn und P dicht war. Ansonsten sind wir gut 2-3 Monate im Verzug. Die WP WP [Wärmepumpe] (S1255PC) wurde diese Woche geliefert (und steht nun in einer Gargage und wartet auf Ihren echten Platz). In ca. 3 Wochen soll die Decke kommen, dann wird es ernst. Wenn ich die Pläne vom Betonwerk habe würde ich diese hier einstellen. Grüße |
||||||||||
|
||||||||||
|
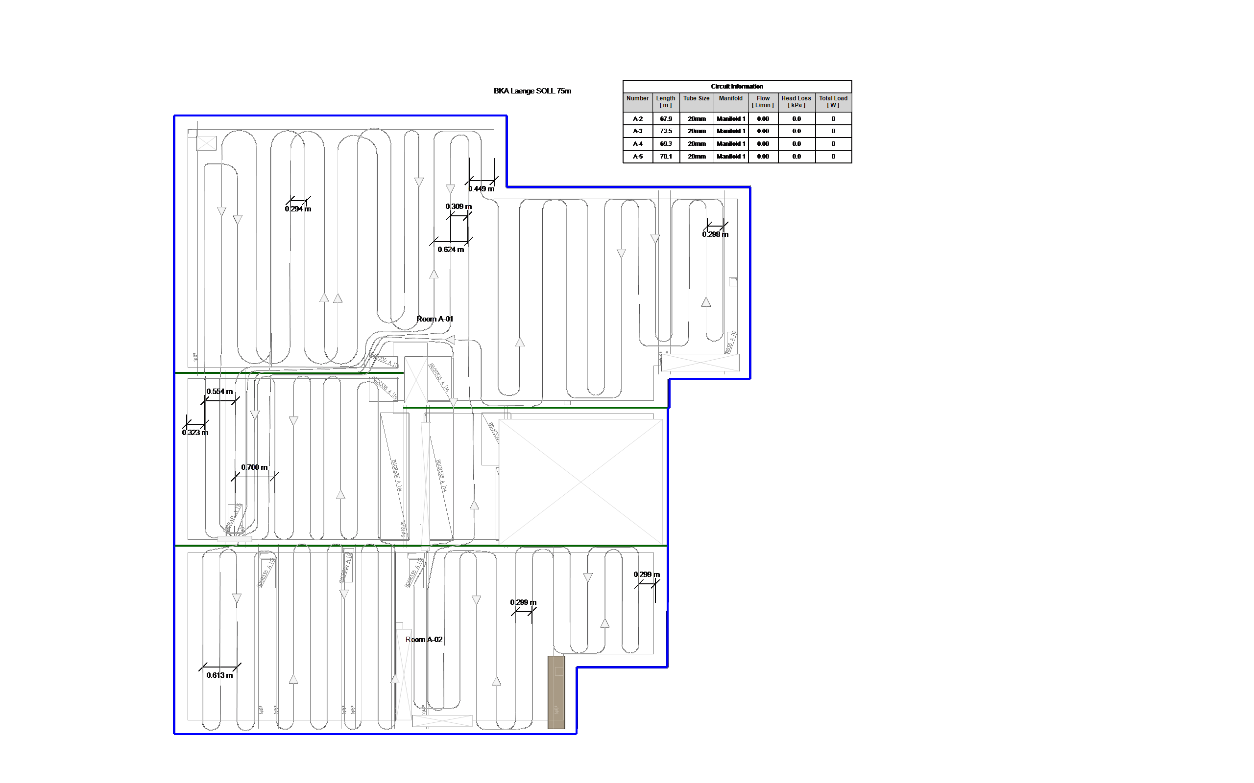
Hallo zusammen, Ursprünglich dachte ich mal im Mai ist ein Dach drauf.... wie dem auch sei, langsam wird es ernst. In gut 3 Wochen kommt die erste Decke (wirklich :-D). Daher möchte ich gerne eure Meinung hören. Anbei mein Entwurf. ![]() Und der Statikplan:. ![]() Dort gibts den Hinweis: Sämtliche Deckendurchbrüche sind konstruktiv mit Bügel Ø8/15 und Längseisen jeweils 1Ø10 je Seite auszuwechseln. Diese Deckendurchbrüche sind im Elementplan für die BKA BKA [Betonkernaktivierung] nun alle drin. Bei CircuitA3 ist die Flussrichtung falsch gezeichnet, das sehe ich jetzt erst. Dankeschön. Gruß Markus |
||||||||||
|
||||||||||
|
Endlich ging es mal los. Ich glaube die erste Decke war dankbar für die erste Verlegung. Wenig störende Elemente. Am Ende das Rohr durch die Gitterträger zu ziehen ging auch relativ gut. Für die ersten 2 Kreise haben wir zu zweit ca. 3 Stunden gebraucht. Für die folgenden 2 Kreise ca 2-2,5 Std. Einer hat immer nur abgerollt und die Rolle gedreht, der andere verlegt. Ich hatte die Kreise vorher mit Spray vorgemalt. (Nochmal bestimmt eine Stunde Arbeit). ![]() ![]() ![]() Folgende Längen sind es real geworden:
Daher bin ich sehr zufrieden.
|
||||||||||
|
||||||||||
Einführung Richtung Keller ![]() Abdrücken: Auf der anderen Seite sind Stopfen drauf. ![]()
|
||||||||||
|
||||||||||
|
Vielen Dank für den Bericht und die Fotos. Bin gespannt wie sich die kürzeren BKA BKA [Betonkernaktivierung] Kreise im realen Betrieb bewähren. Dazu hätte ich noch eine Frage. War das durchfädeln des Rohrs durch die Gitterträger bei jeder Schlaufe der BKA BKA [Betonkernaktivierung] nötig? |
||||||||||
|
||||||||||
Nein am Ende der Gitterträger geht es einfach eng dran vorbei. Dort habe ich sie auch gleich mit Kabelbindern befestigt. Nur die letzen paar Meter musste ich bei 2 Kreisen durchfädeln, damit man zum HKV zurück kommt. ![]()
|
||||||||||
|
||||||||||
|
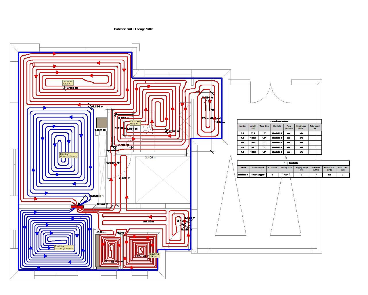
Ich schulde euch noch Bilder vom EG und OG: EG ![]() ![]() Folgende Längen sind es real geworden:
OG ![]() ![]() ![]()
|
||||||||||
|
||||||||||
|
Hallo zusammen, nicht alles läuft nach Plan... Der Installateur hat die BKA BKA [Betonkernaktivierung] getroffen. Nach dem weiteren freistemmmen: Heute hat er es ohne mein Beisein repariert. Doof finde ich die Bögen wegen dem Druckverlust, aber vermutlich muss ich sie akzeptieren. Was meint ihr dazu? Gruß |
||||||||||
|
||||||||||
|
Ihr Armen hattet ja gleich an zwei Stellen Pech. Welcher Installateur musste denn dort in die Decken bohren? Vom Gefühl her sollte einer dieser schrecklichen Winkel pro kurzen BKA BKA [Betonkernaktivierung] Kreis nicht kriegsentscheidend sein. Du könntest den Druckverlust ja ausrechnen. Den Volumenstrom kennst du aus deiner Tabelle und den Widerstandswert findest du bei dem Hersteller des Fittings. Ich drücke die Daumen dass alles dicht ist und die richtigen Rohrenden verbunden worden. |
||||||||||
|
||||||||||
|
Könntest du durch die aufgedruckten längen an den Rohren prüfen... |
||||||||||
|
||||||||||
|
Er wollte etwas Beton wegstemmen um mit der Entlüftung besser vorbei zu kommen.... Warum auch immer. Beim freistemmen hat er dann das 2. Rohr getroffen. Also noch weiter freistemmen. Es ist also quasi alles die selbe Stelle. Ich werde die Kreise jeweils einmal mit Luft durchpusten, dann weiß ich ob die Zuordnung wirklich richtig ist. Aber er hat sich auch Nummern auf die Rohre geschrieben. Hoffen wir das beste. Vorallem hoffe ich das es das letzte Missgeschick bleibt. Zumindest sind jetzt alle vorsichtiger geworden :-D |
||||||||||
|
||||||||||
|
Wäre mM nach auch nur mit geraden Kupplungen gegangen. Aber du wirst es bei der BKT mit Sicherheit nicht bemerken |
||||||||||
|
||||||||||
|
Danke für eure Einschätzung. Jetzt hoffen wir mal das alles dicht ist. Gruß Markus |
||||||||||
|
||||||||||
|
für die Interessierten: von unten geschalt. Es haben 25kg Beton reinpasst. Diese habe ich dann gestopft und gestochert. SEHR MÜHSAM und anstrengend. Ergebnis ist aber gut geworden. Bei der anderen Seite hab ich mir gedacht ich probiere es mit Betonspachtel. Diese darf man allerdings nur 30mm dick auftragen. Hier habe ich es in vielen Schichten probiert. Ergebnis: noch nicht fertig und auch sehr mühsam. FAZIT: Passt gut auf und lasst euch nicht die Decke bohren! 😡🧐 |
||||||||||
|
||||||||||
|
Diese Woche wird die Fussbodenheizung eigenhändig gelegt. So ist der Plan: Ich bin gespannt wie schwierig das ist. Aber ich denke es ist gut machbar. In meinem Tun auf der Baustelle vergesse ich oft Bilder zu machen. Hoffentlich denke ich ab und zu dran |
||||||||||
|
||||||||||
|
Viel Erfolg weiterhin. Ist machbar, wenn du das fertig hast bist eingespielt |
||||||||||
|
||||||||||
|
Alles verlegt. Zeitaufwand ca. 10-12 Stunden zu zweit. Ist wirklich kein Hexenwerk. Ich fand das PE-RT Rohr einfacher zu verlegen wie die BKA BKA [Betonkernaktivierung]. Allerdings hatten wir da auch einige Körbe bei denen man durchfädeln muss. Wandheizung: MSVR 16x2 ein paar Impressionen - FBH 17x2 PE-RT Frage an die Experten: Ich würde den Übergang von Wandheizung in FBH FBH [Fußbodenheizung] mit dem Schutzrohr so ausführen. Den Randdämmstreifen mache ich noch vor das Rohr. Oder gibts eine bessere (andere) Möglichkeit?
|
||||||||||
|
||||||||||
|
sieht passend aus. ist ja eh schon verputzt, sonst hätte ich den übergang länger gemacht. also erst in der ecke geführt und dann aus der ecke nach oben. das spart etwas platz. so sollte das aber gut funktionieren. der rest sieht doch aus ganz schön aus. WH bifillar mäandernd bringt auch schön gleichmäßige temperatur. |
||||||||||
|
||||||||||
|
Vielen Dank für die tollen Fotos - das macht Mut es auch selber zu machen! Das Tackersystem hat eher den Ruf als Anfänger schwieriger zu sein als z.B. das Noppensystem, hast du evtl. paar Tipps was hilfreich war beim Tackern. |
||||||||||
|
||||||||||
|
Also ich kann nur jeden ermutigen es selber zu machen. Macht richtig Spaß und ein tolles Gefühl. Es ist wirklich kein Hexenwerk. In meinem speziellen Fall hätte ich es jetzt auch nicht mehr abgeben wollen und können. Ich habe so viele Stunden mit Planung usw. Investiert, da kann es mir keiner Recht machen. Und so weiß ich das es gut wird 😉 Wenn es gut geplant und aufgezeichnet ist muss man sich nur an den Plan halten. Den ersten Kreis den wir gemacht haben ging trotzdem schief. Hier mussten wir nochmal anfangen. Hier haben wir einfach immer schön weitergelegt und auf dem Rückweg gemerkt, dass das Rohr viel zu lange wird. Daher immer in der Mitte nochmal die Länge kontrollieren. Hätten wir das gemacht wäre es gleich aufgefallen. Wie heißt es so schön: aus Fehlern lernt man.
|
Beitrag schreiben / Werbung ausblenden?
Einloggen
Kostenlos registrieren [Mehr Infos]

































