KWL "Planung" bzw. Überlegungen - Seite 2
|
|
||
|
naja, eigentlich nicht schlimm - einzig bei den 3 zimmern im og die jeweils 2,5m in der tragenden zwischenwand, weggelassen wurde da nichts, ich stemme das aus für die 3 rohre. das OG sollte ursprünglich 30cm niedriger werden, deshalb diese extreme optimierung hinsichtlich möglichst wenig abgehängten decken. jetzt mit der höheren decke hätte man es eventuell auch anders realisieren können, für mich persönlich aber denke ich noch immer die beste lösung. apropos - bei dir kommt ja die absaugöffnung in der dusche raus, oder? das war bei mir kein thema da unsere dusche so niedrig gewesen wäre - nun mit 30 cm mehr eventuell doch, dann könnte ich mir den abstecher in den gang ersparen und doch noch einen glasteil über die badezimmertür einbringen zur belichtung des gangs - in welcher höhe sitzt bei dir die absaugöffnung? duschkabine geschlossen? in welcher höhe sitzt der duschkopf? mit rohrschellen denke ich, gibts da eine alternative? |
||
|
||
|
Inzwischen ist die KWL KWL [Kontrollierte Wohnraumlüftung] bzw. deren vertikale Verrohrung mehr in die Mitte das Hauses gewandert, dadurch können die Leitungen effizienter verlegt werden.
Keller ![]() EG ![]() OG ![]() Gefällt mir so jedenfalls besser und ist wohl auch sinnvoller. Die Rohre sind wenn möglich immer gerade oder haben 45° Winkel. Falls es doch Spiro-Rohre werden (was mir immer noch nicht gefällt, würde die Verrohrung lieber in der Betondecke machen) könnte man diese wohl beim Abgang zum Keller oder vor der Durchgangstür zum Essbereich "verstecken". Noch eine Frage dazu: Wie habt ihr das dann im Bad und WC gelöst, ohne dass man diese Verrohrung sieht? Konkret z.B. im Bad - hier möchte ich die Absaugung zwischen Badewanne und Dusche, also am Besten mitten im Raum. Aber wie einen Absaugeauslass mitten im Raum machen mit Spiro-Rohren ohne dass man die Zuleitung sieht? Habt ihr hier ev. Bilder, wo man das bei euch sehen kann? |
||
|
||
|
Die Absaugung im Raum bringt nachweislich keine Verbesserung der Lüftungseffektivität gegenüber der Anbringung an der Wand. Jedoch im Boden wäre natürlich aufgrund der Thermik von Dampf nicht so gut.
Auch bei der Zuluft ist es genau so. Die Luftwechselraten bei KWL KWL [Kontrollierte Wohnraumlüftung] sind einfach niedrig (kleiner 1 x pro Stunde). D. h. die Raumluft hat sich bereits mehrfach gut durchmischt bevor die Absaugung das Luftvolumen eimal ausgetauscht hat.
|
||
|
||
|
Ok, wenn das so ist, kann ich ja die Ansaug/Auslassöffnungen einfach jeweils bei den Wänden platzieren - braucht man noch weniger Rohre und kann diese ggf. noch besser "verstecken". ;)
|
||
|
||
|
genau so funktioniert gute Spiro-Verrohung.
Schlanke abgehängte Decke im zentralen Vorraum, Auslässe direkt am Wanddurchbruch... Schau dir einmal den Lüftungsplan von 2moose an - konsequenter geht nimmer ... |
||
|
||
|
Hallo qwerty
Auch bei dir könnten die meisten Leitungen mit Zwischendecken in Nebenräume problemlos an der Decke geführt werden. Leitungssyteme mit Spirorohren sind bei fachkundiger Dimensionierung von der Gesamtlänge wesentlich kürzer und können von den Druckverlusten auf Grund der möglichen Durchmesser besser optimiert werden. Wenn noch zusätzliche Telefonieschalldämpfer eingesetzt werden, so ist ein relativ einfaches Luftkanalsystem zu installieren. Spirorohre sind seit Jahrzehnten Standardprodukte aus der Lüftungstechnik und daher auch günstig verfügbar. Viele KWL KWL [Kontrollierte Wohnraumlüftung] werden zu aufwendig und viel zu teuer konzipiert und so auch verkauft. |
||
|
||
|
Jetzt seh ichs grad. Frisch/fortluft durch boden. Solekreis, ewt box, zusätzlich wandheizungen.
Scheint so, dass haus wurde für die technik gebaut ;)
|
||
|
||
|
Das ist mir jetzt aber nicht verständlich - was hat die Länge der Rohre mit der Ausführung als Spiro-Rohr oder Rohr in der Betondecke zu tun? Beide würde ich ja gleich verlegen und kürzere Rohrlänge hätte sicher auch beim Verlegen in der Decke Vorteile bezüglich Druckverlusten. |
||
|
||
|
Beim schlauchsystem mit schläuchen in decke wären diese zu kurz. Oder du brauchst erst recht wieder schalldämpfer.
Bei spiro sind schalldämpfer immer dabei und die längen sehr sehr kurz ausführbar. Bei schlauchsystem sind üblicherweise keine schalldämpfer dabei, weil die kunststoffrohre selbst als schalldämpfer dienen. Aber brauchen entsprechend länge. |
||
|
||
endlich wieder ein entwurf bei dem die haustechnik gleichberechtigt mit den anderen anforderungen geplant wurde ...
er hat ein extrem kleines haus mit unglaublich großzügigem raumgefühl. die technik steht zentral im offenen grundriß... |
||
|
||
|
bzgl. keller/garageneinbindung..wurde schon einiges gesagt. in eine KWL KWL [Kontrollierte Wohnraumlüftung] mit wärmetauscher gehört keine abluft von nicht beheizten räumen eingebunden, das würde das konzept der wärmerückgewinnung vernichten. bei der garage müsste man auch eine brandabschottende verrohrung machen und natürliche belüftung ist zusäztlich vorgeschrieben. also für garage sinnlos.
bzgl. keller hat man meistens im sommer die feuchte luft. hier kann man eventuell mit einer absperrklappe des abluftrohres diese im sommer mitentlüften und im winter absperren. jedoch wird da kondenswasser aus dem ablufventil im keller tropfen, was einem bei entsprechender platziung vielleicht egal sein kann. man könnte die absperrklappe auch elektrisch steuern. wenn das KWL KWL [Kontrollierte Wohnraumlüftung]-zentralgerät eine automatische bypass-klappe hat, kann man dort ein relais einbauen welches den schaltzustand der bypassklappe erkennt und damit auch die absperrklappe der kellabluft zuschaltet (bypassbetrieb) bzw. wegschaltet (wärmetauscher aktiviert). die KWL KWL [Kontrollierte Wohnraumlüftung]-zentralgeräte entscheiden mit der elektronik von selbst augrund der aussenlufttemperatur, ob sie die luftführung durch den wärmetascher oder durch den bypass machen. jedoch ist das auch eine bastelei, die ein öffnen des zentralgerätes voraussetzt mit allen problemen (garantie usw.). aber ein lüftungsbauer mit elektronikkenntnissen könnte sowas machen, eventuell gibt es auch offzielle herstellerlösungen für solche anforderungen. |
||
|
||
|
Inzwischen habe ich den Entwurf des Instalateuers für die KWL KWL [Kontrollierte Wohnraumlüftung] Planung "zur Durchsicht" erhalten. Er hat mir erklärt, dass er die Einströmöffnungen in der Wand in Bodennähe macht und die Absaugöffnungen in Deckennähe bzw. in der Decke. Grundsätzlich möchte er die Verrohung im Bodenaufbau (und nicht in der Betondecke wg. Statik) verlegen.
Als Laie kann ich dazu natürlich nicht sinnvoll Feedback geben. Was mir auffällt ist, dass die Rohre schon einige "Knicke" machen. Im 3D-Plan sieht das Ganze auch sehr "gedrängt" aus. Oder ist das eh "normal"? Anbei die Bilder, was meint Ihr dazu? Ja, es ist keine Spiro Verrohrung in einer abgehängten Decke, wie von manchen hier im Forum favorisiert, das ist mir bewusst. ;) Keller ![]() EG ![]() OG ![]() 3D-Ansicht vom EG ![]() |
||
|
||
|
Anmerkungen dazu - @querty: vielleicht kannst Du diese Verbesserungsvorschläge so diplomatisch äußern, dass Du Deinen Installateur dabei nicht vergraulst.
KG: - Lüftungsgerät sollte so platziert werden, dass Leitungen nach außen möglichst kurz sind. Ansaugung und Fortluft können auf der gleichen Gebäudeseite sein. Damit entfällt die lange Fortluftleitung in der Garage und die Brandschutzmanschette in der Wand. Ich kenne den Lageplan nicht, aber es gäbe noch die Option mit freistehendem Turm bzw. Türmen zu arbeiten, damit man mit der Ansaugleitung nicht hinauf ins Wohnzimmer muss. - statt der Abluftleitung im Mehrzweckraum, wäre eine zweite Zuluftleitung besser, Überströmung folgt sowieso ins Bad. EG: - wurde die Abluft im HWR vergessen? Ich würde einen Schlauch vom Schrankraum in den HWR verlegen. - im WZ reichen 2 Zuluftschläuche, d. h. besser Abluftüberschuss in diesem großen Raum verhindert Geruchsausbreitung von Küche im Haus OG: - je 2 Schläuche für die Kinderzimmer. Was ist wenn dort statt 1 Person, 2 Personen schlafen (mehr Kinder oder Übersiedlung der Eltern)? Bei der Verlegung darauf achten, dass weite Radien verlegt werden. Beim Übergang Boden-Wand lässt sich das leider nicht realisieren. Um das System später einmal reinigen zu können sollten bei 75 mm Rohren nicht mehr als 2 enge 90° Bögen je Leitung bis zum Durchlass vorhanden sein. Das Einstemmen der Leitungen in die Außenwand ist für die Gebäude-Luftdichtheit problematisch. Beim Übergang vom Boden in die Wand muss hinter dem Rohr verputzt werden.
|
||
|
||
|
Danke für deine Rückmeldung @leitwolf - ich weiß ja, dass du dich mit dem Thema sehr gut auskennst!
Jaaaa, das wird sicher interessant. :) Ich werde bei diesen Punkten "nachfragen" ob man diese nicht so und so... machen könnte und ggf. warum nicht. Auf der Nordseite sind 3m Platz zum Nachbargrundstück, dort könnte man ggf. die Ansaugung oder auch Auslass machen, dann müsste man aber mit dem Schlauch durch den halben Keller in Richtung Norden. Im EG ist die Ausnehmung auf der östlichen Seite eine überdachte Terrasse, hier sollte also wohl auch nicht direkt der Auslass daneben sein. In Richtung Westen sind am Grundstück ca. 30m Platz, in Richtung Süden 8m. Danke für den Hinweis, dann werde ich den BM auch noch separat darauf hinweisen! Blower Door Test haben wir vorgesehen, aber die KWL KWL [Kontrollierte Wohnraumlüftung] wird ja vom Installateur separat, also unabhängig vom BM, gemacht. Da könnte es im Zweifelsfall ev. Uneinigkeiten geben, wer "schuld" ist, wenn due Luftdichtheit nicht 100% passt. Anbei noch ein "Lageplan" (in Sweet Home 3D selbst gezeichnet)
|
||
|
||
|
wäre es denn nicht möglich, das Gerät im nordseitigen Lagerraum unterhalb der Küche zu platzieren. Dann ergeben sich auch viel kürzere Leitungen zur Steigleitung?
|
||
|
||
|
Ja, möglich wäre das schon.
Der Raum unter der Terrasse hat halt eine geringere Raumhöhe, weil darüber Dämmung ist und ist als Technikraum vorgesehen. Dort soll auch die Erdwärmepumpe hinkommen, Warmwasserspeicher und der Durchbruch für die Soleleitungen (Ringgrabenkollektor) erfolgen. Der Raum auf der Nordseite wäre als Raum für Fitnessgeräte gedacht und ev. kommt dort auch eine Dusche rein (später mal). |
||
|
||
|
Bin mir nicht sicher, ob ich das korrekt verstehe - mit den dzt. 3 Zuluftschläuchen im Wohnzimmer hat man ja auch viel Zuluft und der "Luftstrom" sollte eher von Wohnzimmer/Esszimmer zur Küche hin (statt davon weg) gehen und dadurch die Geruchsausbreitung vermindern, oder? In der Küche wird es weiters einen Dunstabzug (Umluft) direkt über der Herdplatte geben, wg. Fetterfilterung aus der Luft - möchte das der KWL KWL [Kontrollierte Wohnraumlüftung] nicht alleine zumuten bzw. vermeiden, dass die Rohre durch Fett verdreckt werden. |
||
|
||
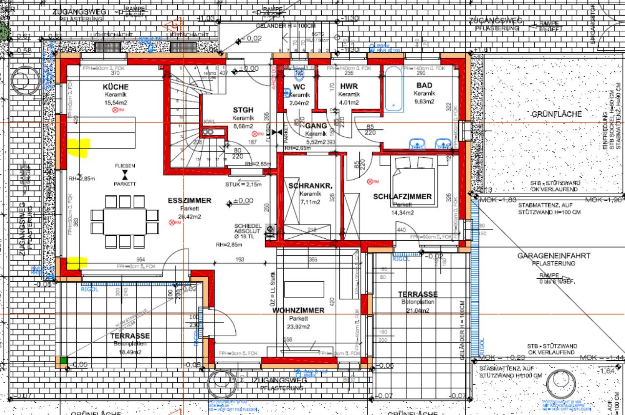
Soooo, im Keller wurden nun noch paar Dinge angepasst und paar kleinere Änderungswünsche haben wir immer noch, siehe Bild anbei.
Was wir leider bis zum Gespräch mit dem Baumeister und Installateuer nicht bedacht hatten: Bei der Zuluftleitung (grüner Schlauch) ist es so, dass diese vom KG kommt, ins EG geht und dort im Innenbereich die Wand nach oben geht. In der derzeitigen Version hätte man im EG also in der Ecke des Esszimmers die Verrohrung, siehe Plan EG (untere gelbe Markierung).
Alternativ: Ansaugung weiter oben, zwischen EZ und Küche, dann hätte man bei der Kücheninsel nach oben die Verrohrung. Gefällt uns beides nicht. :( Wir möchten, dass man die Verrohrung für die Ansaugung im EG nicht sehen kann. Derzeit wäre diese sehr gut sicherbar im Esszimmer. Jetzt suchen wir nach Altenrativen. Eine Überlegung wäre: Direkt vor dem Gehweg auf der Westseite im Trauffenkies einen Lichtschacht und dort dann im Keller die Wand durchbrechen und die KWL KWL [Kontrollierte Wohnraumlüftung] Ansaugung machen. Dadurch würde man von der KWL KWL [Kontrollierte Wohnraumlüftung] im EG überhaut nichts sehen. Hat das irgenwelche Nachteile? Dort sammelt sich ja ggf. Laub und Schmutz und liegt im Winter Schnee auf der Abdeckung des Lichtschachtes. Oder sind diese Bedenken unbegründet? Von einem Bekannten kenne ich es, dass er sich einen "Luftbrunnen" gebaut hat, also die Luft bewusst durch Erde+Schotter+Flies ansauft...ist aber natürlich nicht direkt mit dieser Variante vergleichbar. Eine weitere Überlegung wäre: Ansaugung in der Nähe der Säule auf Terrasse, also die Decke vom Technikraum nach oben im Außenbereich durchbrechen und natürlich müsste man das dann auch irgendwie "verstecken", also z.B. die Säule breiter machen. Weiters könnte das nur auf der Seite der Säule sein, welche Richtung Haus zeigt, weil rechts neben der Säule und oberhalb ja Mauerwerk und Träger sind und man diese nicht einfach mit KWL KWL [Kontrollierte Wohnraumlüftung] Verrohrung durchbrechen kann. Was meint ihr? Wo sonst nocht könnnte man die KWL KWL [Kontrollierte Wohnraumlüftung] Ansaugung gut "verstecken"? Eine Überlegung wäre sogar, diese auf der selben Hausseite wie die Ablauft zu machen, dass würde die Ansaugleitung aber stark verlängern und außerdem ist in diese Richtung die Straße...möchte von dort nicht die Luft ansaugen. |
||
|
||
|
...die 3. Überlegung wäre noch, die Ansaugung der KWL KWL [Kontrollierte Wohnraumlüftung] in der Ecke der Terrasse zu machen, also rechts neben der Balkontür. |
||
|
||
Das wäre der Platz auf der Terrasse, was meint ihr dazu?
|
||
|
||
|
das ist akustisch nicht optimal, da die Ecke wie ein Trichter wirkt, d.h. die Schallabstrahlung konzentriert auf die Terrasse gerichtet wird.
|
Dieser Thread wurde geschlossen, es sind keine weiteren Antworten möglich.















