KWL-Berechnung richtig? - Seite 3
|
|
||
|
.Scheint nicht mehr online zu sein... Ich hab´s über den Google Cache aber aufrufen können.
Gruss mikee |
||
|
||
|
@dandjo: - das, was du uns da als "studien" verkaufen willst, sind verkaufsunterlagen für kwl-vertriebler.
nehmen wir doch mal die hier so oft genannte "studie" http://www.nachhaltigwirtschaften.at/hdz_pdf/081204_vortragsfolien.pdf , kapitel 1, folie 2: aha. jetzt kommt aber die 2. "studie" http://www.komfortlüftung.at/fileadmin/komfortlueftung/EFH/komfortlueftung.at-Info09_Luftmenge-Luftfeuchte_EFH_V_1.0.pdf unter berufung auf top-aktuelles, weil 150jähriges wissen von pettenkofer zu , um die willkürlich - und so praktisch - mit genau 1000ppm festgelegte co²-konzentration nicht zu übersteigen. klar, 597,963587252458ppm liest/merkt ja keiner... und die messmethoden vor 150 jahren waren sicher supergenau... aber gut, kaufen wir die 36m³. aber kommt deswegen - trotz toller filter und irgendwelchen rotorblattln - supersaubere luft rein? schlicht und einfach nein, co² und vco kann kein kwl-filter aus der luft filtern und bei allen anderen schadstoffen http://www.umweltbundesamt-daten-zur-umwelt.de/umweltdaten/public/theme.do?nodeIdent=3604 (bis auf recht grobkörnige a la pollen) ändert die kwl nix, sondern tauscht nur luft aus. verkehrsbedingte vco werden durch kwl-filter schlicht nicht gefiltert, sonst wären die unbezahlbar. mit viel glück schaffen die dieselruß... |
||
|
||
|
Hallo rasar, hier gibt es dazu Erfahrungen und Preise: KWL-Berechnung richtig? |
||
|
||
|
Luftbedarf - Benji hat das schon am Anfang verständlich erklärt:
Der Denkfehler liegt in der Vermischung. Ein Mensch atmet 25l/min weg, wenn man nun diesen Menschen per Schnorchel direkt an die KWL KWL [Kontrollierte Wohnraumlüftung] anschließen tät, würden diese 25l/min tatsächlich reichen. Erstaunlicherweise möchte so aber niemand in seinem Haus rumlaufen. Deshalb vermischt sich die verbrauchte Atemluft mit der normalen Raumluft, die "böse" Luft wird stark verdünnt, und wenn ich von dieser verdünnten Raumluft die 25l/min weglüfte, hab ich nur einen Bruchteil der bösen Luft entfernt. Wenn ich mit einer Tauchausrüstung im Haus herumlaufe benötige ich nur 25 Liter/min. Ideal wäre es also, wenn unsere Häuser nur wenige m³ groß wären, dann würden wir mit wesentlich kleineren Luftmengen auskommen. Warum ist die Größe des Innenvolumens nicht egal für den Luftbedarf? Das hängt mit der Lüftungseffektivität zusammen. Aber selbst wenn wir unsere Ausatemluft direkt abführen würden, bleibt aber immer noch 2/3 der Feuchtelast übrig, die weggelüftet werden muss und die Luftqualität wäre ganz schlecht (aber das wäre bei Atemschutzmasken egal). |
||
|
||
|
.Nach Lektüre von dandjo´s Link bin ich leider auch nicht schlauer, da dieser in erster Linie auf die Raumfeuchte-Thematik abzielt. Nun ja.
@leitwolf Danke für die Ausführungen - bringt mich jedoch wieder zu meiner Ausgangsfrage zurück: Wie böse ist denn die böse Luft wirklich bzw. wie kommt man auf diese Ausgangswerte? Das konnte mir bisher noch niemand beantworten, jeder schreibt immer nur davon, dass die böse Luft weg muss und dass wegen der Durchmischung und der Lüftungseffektivität eben diese 25 m³ bzw. eine allgemein anerkannte Luftwechselrate angesetzt werden. Ich kapier´s nicht.... Sorry für meine Penetranz
Gruss mikee |
||
|
||
|
leitwolf, ich weiß nicht wo die 25l/min bei normaler - ... bewegung herkommen sollen - das ist die maximalleistung. wenn du davon keine vorstellung hast, geh' zu irgendeinem cpap-hersteller oder zu bständig und lass dir mal 25l/min reinblasen. dann ist klar, wie angenehm das ist, selbst wennst karate, radfahren oder tauchen als leistungssport betreibst, wird das ned lustig... wahrscheinlich kriegt der berater dort einen lachkrampf oder große augen, wennst erklärst, du willst 25l/min mal ausprobieren... dann kriegst das sicher nie in die hände.
feuchtelast im winter - gerade da klagen ja die kwl-besitzer über trockene luft... |
||
|
||
@creator - Verstehst du eigentlich, was ich meine bzw. wissen möchte? Schön langsam verzweifle ich.... :-S
Gruss mikee |
||
|
||
|
@creator - Verkaufsunterlagen? Definitiv nein. Bitte belege was du behauptest. Die Vortragsfolien fassen nur zusammen, was zig Studien schon dargelegt haben. Komfortlüftung.at bringt die Punkte nur verständlich gesammelt für jeden auf den Punkt. Da ist kein einziger Hersteller oder Vertriebler von Geräten oder Rohren dabei, das sind großteils vollkommen unabhängige Personen.
CO2 Messungen von Pettenkofer ungenau? Du nimmst uns auf den Arm und hast null Ahnung, wie CO2 detektiert wird, gib's zu. Ich denke du hast da einiges misverstanden. Es geht nicht darum die VOCs aus der Frischluft zu filtern, sondern die VOCs, die im Wohnraum entstehen abzulüften. @mikee Sorry, lies Pettenkofer (gibts in jeder Bundes- und Landesbibliothek). Verständlicher kann man es nicht mehr erklären. |
||
|
||
|
Was ist schlechte Luft? - Dazu gibt es auch eine gute Arbeit vom Institut für Wohnen und Umwelt in Deutschland. Diese Arbeitet befasst sich detailliert mit der Bewertung von "guter" oder "schlechter" Raumluft.
Und creator, nein, das sind keine KWL KWL [Kontrollierte Wohnraumlüftung]-Verkäufer. http://www.iwu.de/fileadmin/user_upload/dateien/energie/neh_ph/Einsatzrandbedingungen_LuQuaS_Web.pdf |
||
|
||
.Danke, dandjo! Werd mir diesen Link nächste Woche zu Gemüte führen, da ich für den Rest der Woche auf die Baustelle verschwinde
*ggg* Ich hab mich zerkugelt
|
||
|
||
|
dandjo, ich nehme an, du kennst deine eigenen linkshttp://www.nachhaltigwirtschaften.at/hdz_pdf/081204_vortragsfolien.pdf
dann brauchst nur das kapitel 2 - marketing - anschauen. was soll das sonst sein, außer einer verkaufsunterlage? da gibt's ned nur tolle "lernziele" (für wen eigentlich?), sondern auch der einstieg ins verkaufsgespräch wird mit dem slogan "luft ist unser wichtigstes lebensmittel" und den höchst wissenschaftlichen fragen "würden sie schmutziges wasser trinken?" und "verdorbene lebensmittel essen?" gottseidank - wenn auch wenig überraschend - mit einem großen "NEIN!" beantwortet. sonst könnte ja ein vertriebler - pardon, wissenschaftler - wasserentgifter verklopfen wollen... um dann zu der noch wissenschaftlicheren frage zu gelangen "warum atmen sie dann unnötigerweise "verbrauchte" luft ein?" die attribute "unnötigerweise" und "verbrauchte luft" stellen wohl schon den wissenschaftlichen status unmissverständlich klar, führen aber über weitere wissenschaftliche statements zu verkaufsgesprächen a la "heizen früher" und "lüften früher", die eines corrigendums bedürfen, denn ich lüfte aktuell händisch und konnte auch schon "früher" zentral alle räume heizen, zum ultimativ wisseschaftlichen auftrag "verkaufen sie die vorteile!" auf seite 3 mittels finanzen, emotionen, umwelt und technik. noch fragen oder weitere belege gewünscht...? |
||
|
||
|
@creator - Das ist ein Vortrag im Rahmen des Bundesministerium für Verkehr, Innovation und Technologie für Interessierte und Handelspartner, keine Verkaufsunterlagen. Hier wird unter anderem gezeigt, wie man die Vorteile schmackhaft macht, aber hauptsächlich Hintergrundwissen vermittelt. Nur weil das Kapitel 2 Marketing umfasst sind alle anderen Dinge widerlegt und gleichzeitig nicht aussagekräftig?
Die Folien habe ich nur gebracht, weil hier schön die Vor- und Nachteile der rückwärtsgekrümmten Ventilatoren beschrieben sind, nicht als Studie über die Sinnhaftigkeit der Wohnraumlüftung. Pack deine "jemand will dir unbedingt eine KWL KWL [Kontrollierte Wohnraumlüftung] andrehen"-Phobien bitte wieder ein. Mir geht's um Informationsbeschaffung. |
||
|
||
|
Irgendwie entwickelt sich das schon wieder von einer - schlichten KWL KWL [Kontrollierte Wohnraumlüftung] zu einem Technik-Overkill der Superlative ... Zonensteuerung, Feuchteregelung, Luftqualitätsregelung, aus Zulufträumen Überströmräume machen, usw ...
Wenn man den Wäschetrockner weglässt und die Wohnfläche halbwegs realistisch dimensioniert (3 Personen auf 240m² gehören da nicht dazu, die werden entweder nur kompliziert oder unzufriedenstellen zu belüften sein) dann passen Luftmenge/Person, die Luftwechselrate von 0,3 und die Luftfeuchte im Raum recht gut zusammen und man muss das Rad ned neu erfinden. Denn selbst die Feuchterückgewinnung stößt sehr schnell an Ihre Grenzen wenn kaum ein Eintrag da ist ... und der Wirkungsgrad beträgt keine 100%. Wir haben 3 Auslässe a 35m³/h im Haus, einer davom im SZ, 2 im WoZi. Geschlossene Türen gibts bei uns keine und ein Teil der WoZi-Zuluft geht übers SZ in SR und Bad. In dem Fall ist der eine Auslass mit 35m³/h bei 2 Personem voll ausreichend. Keep ist simple! Die eierlegende Wollmilchsau, mit der man jedes Rindvieh mit 300 Sachen auf der rechten Spur überholen kann, macht nur Kopfweh. |
||
|
||
|
grundriss - danke für die vielen antworten
ich schicke einmal wie gewünscht den grundriss. im wohnzimmer ist beim fenster an der nordseite eine abluft. in der küche eine zuluft, in der offenen speis daneben gleich eine abluft. wir sind derzeit noch vier Personen. reicht eure meinung nach die leistung aus? Kann ich nicht mit diesen Dingern die Luftzufuhr zum Beispiel für unser Schlafzimmer leicht erhöhen? |
||
|
||
|
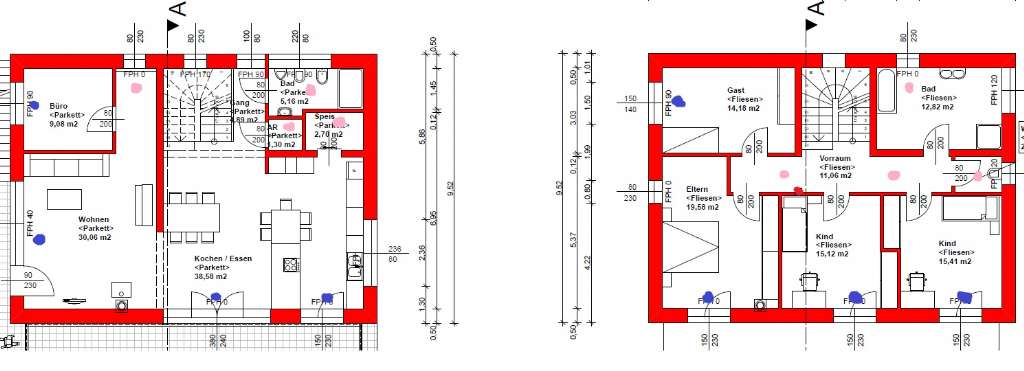
@rasar - Wenn genug Luftdruck vorhanden ist und das Tellerventil den Luftstrom reguliert, dann ja. Um besonders Überströmbereiche beurteilen zu können, wäre ein Plan mit den Ventilpositionierungen interessant. Hast du so etwas? Falls nicht, versuche die Ventile einzuzeichnen (rot Abluft, blau Zuluft) und in höherer Auflösung hochzuladen, damit man was erkennt. Dann kann man beurteilen, wo was passt. |
||
|
||
|
|
||
|
||
|
@rasar - Toll, sieht eigentlich sehr ok aus. Damit wird eine gute Durchmischung erreicht. Im Keller in der Garderobe, das ist ein klassischer Kurzschluss, das sollte anders gelöst werden. Nun sollten nur noch die Volumenströme zugunsten des Schlafzimmers erhöht werden. |
||
|
||
|
@2moose
das Weglassen von Zuluft im Wohnzimmer ist doch kein Overkill? Wie einfach ist doch so eine Lüftungsanlage im Vergleich zu einer modernen Heizungsanlage. Früher hätte man auch den Kopf geschüttelt über Thermostatventile auf jedem Heizkörper/Zone oder über eine Regelung der Heizkurve. Ich bin deiner Meinung zum technischen Overkill wenn es um überzogene technische Spielereien bei Bussystemen im Haushalt geht. Aber wir sollten es doch nach 15 Jahren Entwicklung endlich schaffen sehr gute Raumluftqualität, ausreichende Raumluftfeuchte und niedrigen Strombedarf gleichzeitig realisieren zu können. Eine Feuchterückgewinnung funktioniert auch bei niedrigen Luftfeuchten. Muss sie aber nicht, da es erst gar nicht dazu kommt. Das muss man beachten. Eine FRG hat nämlich die gleiche Wirkung, wie eine Reduktion der Luftwechselrate! D.h. schafft man es, die Luftwechselrate zu reduzieren und gleichzeitig die Luftqualität im Aufenthaltsbereich zu verbessern, dann kann man auch ohne FRG auskommen. Alle Innentüren offen zu lassen, das mag zwar für einzelne Familien akzeptabel sein, aber wenn man länger zusammenlebt...
2013 kann ich euch vielleicht sogar überzeugen, dass eine raumweise Steuerung keinen Overkill darstellt, sondern eine zukünftige Lösung sein wird. |
||
|
||
|
Die Zuluft im WoZi kann ich weglassen, wenn ich - einen (Schlaf-)Raum samt Zuluftventil im selben Geschoß habe, von dem ich überströmen kann. Hab ich i.d.R. aber nicht. Find ich auch nicht wirklich erstrebenswert, verbrauchte Luft ins WoZi überströmen zu lassen. Diese Methode ist in der Tat kein Overkill ... im Gegenteil.
Ein Thermostatventil kostet heute kein 10 Euro mehr - was kostet präsenz- und luftqualitätsabhängige Lüftungszonenregelung? Aber ... wenn wir schon beim Fortschritt sind - wer hat heute noch Heizkörper? Wo doch ne Flächenheizung in Verbindung mit dem geringen Wärmeverlust des Gebäudes und einem hydraulischen Abgleich das Zonenzeugs überflüssig macht. Bussysteme sind schön - ich leb von dem Zeugs - aber sie binden Mittel im Hausbau, die an anderen Stellen einen mehrfachen Nutzen bei einem Bruchteil der Erhaltungskosten bringen. Eine Aufrüstung von KWL KWL [Kontrollierte Wohnraumlüftung]'s in diese Richtung sind für mich daher bloss "technischer Fortschritt" aber kein Fortschritt für den Lebenszyklus eines Hauses und der Bewohner. Wenn Kohle da - gerne ... aber es zum Standard erheben zu wollen macht die Hürde "pro KWL KWL [Kontrollierte Wohnraumlüftung]" nur noch schwerer zu überwinden. Was die FRG betrifft - da bin ich ganz bei Dir: Brauchts ned. Auch ohne Überströmung nicht. |
||
|
||
|
@rasar - Schaut nach der typischen Luftschlauchinstallation aus, wo die Zuluftventile möglichst weit weg gesetzt und mit möglichst dünnen Schläuchen angefahren werden ... also maximaler Luftwiderstand und minimale Effizienz erzeugt werden. In kurz: Nicht optimal.
|
||
|
||
|
@2moose - Da muss man entscheiden. Will ich maximale Durchmischung, dann so wie geplant mit längeren Wegen, oder will ich kürzeste Wege, dann muss ich die Ventile zentraler setzen, worunter die Durchmischung leidet. Man kann nicht alles haben. ;)
Bei mir sind die Ventile auch zentral im Haus (Steigstrang neben Kamin), was aber leicht zulasten der Durchmischung geht. Ventile bei den Fenstern sind das Optimum für gute Durchmischung (da fast der gesamte Raum durchströmt werden muss). |
||
|
||
|
dandjo maximale! :) Durchmischung wird - ein wenig überbewertet oder gar fehlinterpretiert ... wenn ich die Zuluft, die (unbeheizt) kühler als die Raumluft ist, bei den Süd-KiZi's maximal weit weg vom Bett einbringe, wird die (auch Dank Fenster) schon vor dem Bett zu Boden sinken und sauber und undurchmischt sich unter der Tür gen Gang verkrümeln. Da muss man ein wenig auf die Situation Rücksicht nehmen, mal mit Quelluftauslässen, mal mit Weitwurfdüsen arbeiten. Aber sicher ned in unnötige Meter Weg investieren, um die Ventile in den Sichtbereich (beim Betreten des Raumes) zu verlegen.
In dem Fall gilt wie so oft: Weniger ist mehr! Und die Situation ist eine ganz andere als bei den "ausgewachsenen" Anlagen, die bewusst diagonal/diametral duchströmen und viel mischen sollen. |
Dieser Thread wurde geschlossen, es sind keine weiteren Antworten möglich.