Küche U-form - aber wie????
|
|
||
|
plan - |
||
|
||
|
Hallo lacknerc,
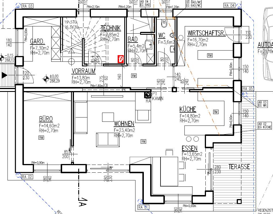
ist Euer Haus schon im Bau? Bzgl Küche würde ich an die Wand zum Wirtschaftsraum (der ist ja riesigst, was hast denn da drin alles vor?) Hochschränke machen, d.h. Kühlschrank, Backrohr, Vorratsgeschichte, Spüle vors Fenster, Ceranfeld an die Südwand, so hättest ein schönes Arbeitsdreieck. Wobei ich persönlich finde, dass bei diesem flächenmäßig großzügig gestaltetem Grundriss die Küche auf dem Plan ein bisserl klein und eigtl durch den Erker, in dem sie "verschwindet", auch nicht offen wirkt. Würde zum Küchenplaner/Tischler Deines Vertrauens gehen, Du brauchst ja schon beim Rohbau den Installationsplan und budgetmäßig weiß man auch, mit was man ungefähr kalkulieren muß - falls das für Euch wichtig ist. LG |
||
|
||
|
deine idee ist gut! mache mir nur gedanken dass die verbauung der nordwand zu "wuchtig" rüber kommt, wenn man aus dem wirtschaftsraum (ist sowas wie kellerersatzraum!) in die küche geht. |
||
|
|
||
|
||
|
Hallo,
sehe ich das richtig, man kommt nur von der Küche in den Wirtschaftsraum? Was ist dass dann am Gang, nur ein Fenster? Ich persönlich würde den Zugang von der Küche aus weglassen und über den Gang in den WR WR [Wechselrichter] gehen. Man hat ca 1.5m mehr weg und halt 2 Türen. Denke aber dass die linke Schiebetüre sowieso die meiste Zeit offen stehen wird. So kannst du die Küche an der Nordwand bis fast nach vorne zur Türe ziehen. Der erste Kasten muss ja nicht gleich die vollen 60cm tiefe haben. ev mit 35x40 anfangen und dann auf 60 steigern. Würde, wie elanor gesagt hat, auch mal die Küche planen lassen und mir so ein paar Tips holen. lg |
||
|
||
|
Hallo
Lade dir den kostenlosen Küchenplaner von alno(www.alno.de) runter, gib nur den Grundriss ein und poste dann das ganze auf www.kuechen-forum.de. Dort gibt es jede Menge Spezialisten, die dir beim Küchenplanen helfen und dir dann aus dem Grundriss 3d-Entwürfe machen, die du dir dann im Alno-Planer ansehen kannst. mfg Sektionschef |
||
|
||
|
@sektionschef guter tipp! werde ich machen! die spezialisten in diversen möbelhäusern/tischler haben mir bisher nicht viel weiter geholfen.... online planen in 3D kann ja jeder, aber die idee wie es wirklich am klügsten gelöst ist.... darauf muss man mal kommen! @hoth haben wir auch schon 1000 mal überlegt, jedoch ist es schon richtig so gedacht, dass diese tür an der nordwand ist und ich direkt u nicht über den gang in die küche gehe... wenn man es so macht wie du vorschlägst hat man plötzlich eine 20 m2 küche! aber ich kann einfach nicht darauf verzichten, dass diese beiden räume doch irgendwie eine direkte einheit bilden..... |
||
|
||
|
ecklösungen sind teuer und unpraktisch.
so könnte man zumindest eine ecke vermeiden: |
||
|
||
|
sehr gute idee! hatte ich persönlich auch schon, um auch den kühlschrank geschickt zu integrieren ohne dass er "im weg ist" ... leider wurde dass von der familie gleich wieder abgetan.... im moment schaut die planung so aus
oder alternativ: |
||
|
||
|
@sektionschef !!!!!!! traum, der alnoplaner ist wirklich 3D ! super qualität, damit man sich wirklich was vorstellen kann... die bedienung muss ich noch etwas studieren, aber das krieg ich noch.... :) vielen dank! gibt es da eigentlich keine "freien räume" zu zeichnen? ich habe mehr als 4 ecken :0 |
||
|
||
|
Ist schon Jahre her, als ich zuletzt den Alnoplaner verwendet habe. Ob man da auch freie Räume machen kann, weiss ich nicht mehr. Kannst Du aber sich auch im kuechen-forum erfragen. Ich habe dan Alnoplaner damals nur anfangs benützt um die Küche grob zu planen und bin dann auf den Ikea-Küchenplaner umgestiegen weil wir dann schon wussten, dass wir die Küche bei Ikea kaufen werden.
Großer Vorteil vom Alnoplaner ist, dass man die Entwürfe als Datei abspeichern kann. Nicht so selbstverständlich für Gratissoftware. Dadurch eignet er sich gut für das kuechen-forum. Du postest die Grundriss-Datei bzw. deine Entwürfe+Beschreibung und du erhälts dann fertige Entwürfe und kannst sie im Planer in 3D ansehen. mfg Sektionschef |
||
|
||
|
Hallo lacknerc, hier gibt es dazu Erfahrungen und Preise: Küche U-form - aber wie???? |
||
|
||
|
Das Küchen-Forum kann ich auch nur empfehlen. Da gibt's bessere und praktischere TIpps als bei den meisten Küchenplanern.
-die momentane Planung ist sehr unruhig. ich würd die Hochschränke auch an die Nordwand stellen. Ob es aus dem Wirtschaftsraum kommend nicht gut wirkt egal, da kommt eh kein Besuch raus. oder eben eine Einheit die nicht so tief ist am Anfang. - Geschirrspüler würde ich unbedingt hochstellen. - Spüle beim Fenster hab ich auch und mag es sehr gern. Aufpassen, dass der Wasserhahn nicht beim Fenster öffnen stört. |
||
|
||
|
Schon mal daran gedacht den HWR "durch die Küche" zu betreten? Integrierte Tür in den Küchenschränken.. |
||
|
||
|
ist der wirtschaftsraum denn jetzt über küche UND gang aus erreichbar?
was wäre, wenn du zwar den zugang von der küche aus behältst, aber diese zwischenwand nach oben verschiebst, so würde der wirtscahftsraum ein bissl kleiner aber die küche würde vielleicht nicht so reingequetscht ausschauen zum küchenforum und alno planer ja da laufen gute leute heum, ich war da auch schon eine zeit lang aktiv, und sie werden dir sagen, dass "ecken" keine teuren lösungen sind, wenn sie als "tote ecken" ausgeführt werden!!!! im alno planer kann man mittels tricks alle formen planen (ist bei mir aber auch schon eine zeit lang her) einfach einen übergroßen raum zeichnen, und dann wandelemente einfügen, so hat man dann den gewünschten grundriss Edit: hier mal ein vorschlag von mir, es wäre gut zu wissen, wie lange diese wand zum wirtschaftsraum ist in rot die variante mit zusätzlichem zugang in den wirtschaftsraum vom gang aus PS: wenn ihr den zugang direkt von der küche aus "aufgebt" dann könnt ihr mindestens einen großen voratsschrank in dieser küchenzeile unter bringen, womit du sicher nur mehr in 30% der fälle in den wirtschaftsraum musst (aber bitte merken voratsschrank ist NICHT gleich apotherkerschrank) |
||
|
||
|
Könnt mir einen netten eigenständigen Block mit Backofen in der mitte vorstellen. Guck in meine galerie. Wenn den Block dann nach links schiebst könntest die tür zum WR WR [Wechselrichter] auf die rechte Seite versetzen. Küche hört in der linken ecke neben dem fenster auf(eine ecke weniger) dann die tür und dann ein 2 oder 3 reihiger Block. Easy oder? :)
Parapethöhe vlt auch ändern am Fenster oder auf ne schmale fixverglasung setzen und darüber schmale hochschränke. Dafür rechts noch ein fenster direkt auf die terrasse. Hängt aber natürlich von der optik aussen ab. |
||
|
||
|
Eventuell könnten in der Wand Richtung Wirtschaftsraum die Hochschränke integriert werden, sozusagen nach hinten in den Raum ragen. Dort könnte dann auch der Kühlschrank integriert werden. Wir haben es so ähnlich....
|
Dieser Thread wurde geschlossen, es sind keine weiteren Antworten möglich.Nächstes Thema: Küchenplanung - bitte um input
