Kaminofen nahe Kühlschrank
|
|
||
|
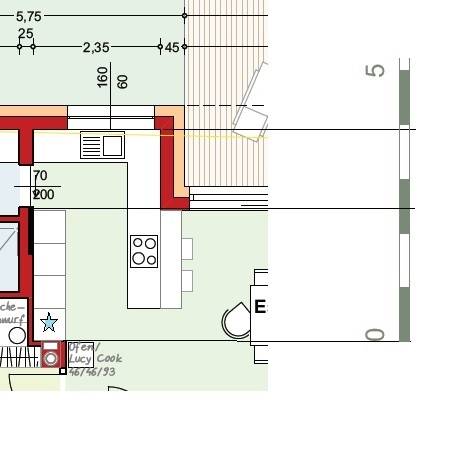
Ich würde die Position des Kühlschrankes im allgemeinen überdenken. Ist der Kaminofen in Betrieb und du öffnest die kühlschranktüre zieht dir die ganze Hitze in den kühlschrank, vor allem bei dem von dir im Plan eingezeichneten Ofen. Cook bedeutet ja, das du auf der Oberfläche eine heiße Platte haben wirst, Oder? |
||
|
||
|
Außerdem scheint die Durchgangslichte zu eng. Ich schätze mal 70-80cm Abstand vom Kaminofen zur Insel. Da wirds heiß beim vorbeigehen.....
Kurz gesagt, der Platz für den Ofen ist nicht der beste... |
||
|
||
|
Wird dir aufs jahr halt 20-40 euro mehr kosten. Sprich der kompressor wird häufiger laufen und du wirst auf lebenszeit statt 2 vielleicht 3 kühlschränke verbrauchen. Wie oft läuft der kamin?? Für zweimal am tag heizen würd i das net als schlimm empfinden. Ma muss die kirche im dorf lassen, du machst das türl ja net zig mal auf wenn der kamin heizt. |
||
|
|
||
|
||
|
ja zum Kamin würd ich dämmen...wie gesagt, kaminposition für uns schwierig woanders zu machen.
Durchgangsweite check ich nochmal ab und schaus mit im 3D-Modell an. Mit Vorbeigehen an einem Ofen hat ich bisher keine Probleme eigentlich. Könnte die Insel auch noch mal um 20 cm einkürzen.Hätt dann immer noch gut 3m. |
||
|
||
|
Kamin ist max in der Übergangszeit zum heizen in Betrieb. Sobald die FBH FBH [Fußbodenheizung] läuft wird er wohl weniger in Betrieb sein. Höchstens wenn wir wegen Urlaub oder so abgesenkt haben zum schneller warm werden.
Und wenn Stromausfall ist natürlich. Ich als kleiner Krisenparanoiatyp würd mich ned wohlfühlen ohne. Deshalb auch der mit dem Ceranfeld drauf :P |
||
|
||
|
Check mal mit dem Rauchfangkehrer. Es gibt meines Wissens Mindestabstände zw Kamin und Môbel die eingehalten werden müssen. |
||
|
||
Den Mindestabstand musst sowieso einhalten. Gibt unter anderem der Ofenhersteller an in der bauaufsichtlichen Zulassung. z.b: ... zu brennbaren Baustoffen und Einbaumöbeln, deren Wärmedurchlasswiderstand <1,2m2KW beträgt, muss seitlich 40cm und nach hinten 6cm (Rauchrohranschluss oben) betragen... Also frag mal den Kühlschrank welchen Widerstand der hat.
Wie sieht der Rest vom Grundriss aus? Find die position vom Ofen schon irgendwie komisch. Vlt gibts ja doch ne Alternative. Hängt noch was anderes am Kamin? Wär ein Aussenkamin denkbar? Der Kamin wird gerne genutzt nur aus "optischen" Gründen und der Behaglichkeit. Selbst wen die Bude schon 22° Grad hat und der Bodenheizung des sowieso wurscht is. Den Frauenfaktor also nicht unterschätzen. ;) |
||
|
||
|
Dann würd ich an deiner stelle net viel herumtun, wenn der kamin abgedämmt wird hast a miniproblem mit der strahlungswärme. Wenns a pelletsofen ist mit dem du die fbh durchgehend betreibst würd i ma vielleicht was überlegen......die frau soll eine tupperparty im jahr einsparen und dann sind die mehrkosten wieder herin (:. Die hitze beim vorbeigehen find i kein argument, darum macht ma ja so an ofen. Heiss wirds erst wenn i 30 cm vorm türl a weile steh... |
||
|
||
|
Überleg mal ob - Posi vom Ofen nicht mittig zum Rauchrohranschluss besser wäre, also etwas Richtung Wz rücken. Der eingezeichnete Kamin ist doch ein Schiedel Absolut Formstein mit Zuluftanschluss. Diesen Anschluss könnte man doch gut in einer nun möglichen Trennwand unsichtbar verstecken - oder? |
||
|
||
|
@salu: Richtung WZ kommt er ohnehin noch (Abstand zur Wnad). Das ist aber im Bild rechts. Nach unten kaum möglich da eben die Tür gleich darunter.
@Innuendo: ja, leider Hängt noch einiges am Kamin. OG muss natürlich passen. Es gibt eigentlich nur 1 Wand wo er noch stehen könnte, dort beisst er sich aber mit dem Wohnzimmer. Grundsätzlich spricht nichts gegen einen Aussenkamin ausser das der Kamin wohl nicht an einer Aussenmauer stehen wird. Was anderes, können diese Kamine frei stehen oder müssen die an einer Mauer anlehnen? Eigentlich sind sie ja immer mit Dämmung getrennt. Könnt ich den Kamin allein (also ohne Mauer) im Raum stehen haben? Kann ich diese dann direkt netzen und verputzen? Eventuell könnte ich ihn dann am Ende des Block wo unterbringen. Muss ich mit OG abchecken....hmmm |
Dieser Thread wurde geschlossen, es sind keine weiteren Antworten möglich.Nächstes Thema: Luftwärmepumpe: Außenluft erwärmen
