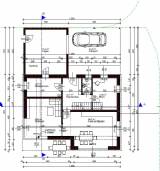
Grundriss Niedrigstenergie-/Passivhaus
|
|
||
wieder mal ein Kinderbad
abgesehen davon find ichs ganz nett ev. etwas wenig platz in der garderobe und wenig möglichkeit für schnell zugänglichen stauraum. wenn ich wegen jedem gurkenglasl oder mal schnell die leiter aufstellen ins lager muss... |
||
|
||
|
Mir gefällt es auch sehr gut.
Vorallem das abgetrennte Wohnzimmer vom Esszimmer sowie die Treppe im Vorzimmer finde ich besser als wenn alles offen ist. Die Grösse der Garderobe wird oft unterschätzt und solltest Du ebenfalls grösser machen. mfg Sektionschef |
||
|
||
|
Der Bereich beim Stiegenantritt im EG schaut sehr eng aus. Falls hier eine Schiebetüre zwischen KÜ/Esszi und Wzi geplant ist, könnte das eng werden.
Ebenso die Türe im OG ins WC. Wenn du die Tür mit 100 planst, dann muss das WC mind. 120cm breit sein. Eigentlich könnten alle Innentüren 80cm breit sein. Die Türe im EG ins Büro ist auch ohne Spielraum. Die Stiege hat bei der Bürowand circa 180cm Höhe. |
||
|
|
||
|
||
|
Mir fällt auch auf dass (für mich) zu wenig Platz für das "aktuelle" Gewand und Schuhe ist. Oder ist hier ein Platz im "Waschraum" vorgesehen? Wobei es dort eher feucht sein wird.
Über das WC-Fenster neben der Eingangstüre ist eh schon öfters diskutiert worden - die einen würde es stören, die anderen nicht (Geruch, bzw. Geräuschemissionen). Könnt ihr den Stiegenanfang im EG etwas nach Osten verschieben so dass der Durchgang ins WZ nicht behindert ist? Beim OG wäre höchstens zu überlegen ob der Schrankraum vom Gang erreichbar sein soll (wurde auch schon in einem eigenen Thread diskutiert) und ob ihr die Wand zwischen Schlafzimmer und Kinderzimmer nicht doppelt beplankt (Schalldämmung). Türbreiten würde ich generell 90cm machen (ausgenommen WC, da reichen 80cm). Ich persönlich möchte auch kein SZ im Süden (v.a. das Südfenster würde mich "stören"). Gut finde ich die 2 Bäder-Lösung mit getrenntem WC und dass keiner der Nassräume an ein SZ oder KZ grenzt. |
||
|
||
|
Mich würde interessieren wie die Kinderzimmer fertig möbliert aussehen, Sprich: 140er Bett + Schreibtisch und ein ordentlicher Kasten, da sind die Bodentiefen Fenster/türen hinderlich.
Die Garnitur auf der Terrasse würde ich mit einer Breite von ~3m im Plan einzeichnen, dann schaut es nicht so realitätsfern aus. FBH 140 schaut sicher interessant aus Der Plan gefällt mir. |
||
|
||
|
Danke für die spannenden Beiträge. Ganz neue Sichtweisen sind immer gut, denn es kommt unweigerlich zu einem Scheuklappendenken.
Das zweite Bad im OG soll auch als Gästebad dienen. Eine Schlafcouch ist im Büro vorgesehen. Der Waschraum soll in die Garderobe mit einbezogen werden. D.h. hier gibt´s dann, neben den notwendigen Geräten, ein Schuhregal und einige Möglichkeiten Kleidung aufzuhängen/abzulegen. In die Garderobe sollen nur die Alltagsschuhe und -jacken (samt diversem Kleinkram - Möbellösung ist noch nicht durchdacht). Stauraum an sich wird es (hoffentlich) in der Küche geben. Bügelbrett und Co kommen in den Waschraum. Konserven und Werkzeug kommt natürlich ins Lager - wird ja auch nicht täglich/stündlich benötigt. Bei den Türen habt ihr recht. Da muss sich die liebe Architektin wohl noch etwas überlegen :) WC-Fenster neben der Eingangstüre...wohin sonst mit der Pipibox? Es steht ja Gott sei Dank nicht permanent jemand vor der Haustür... Zur Stiege: Diese wird im EG im untersten Bereich "offen" ausgeführt, also 3-4 Staffel ohne Geländer bzw. Wand. Es ist somit keine Wand, die den Eingang Richtung Küche behindert. @Planquadrat: Deinen Einwand mit der Schiebtüre verstehe ich nicht ganz. Eine Schiebtüre kommte zwischen WoZi und Kühe. Von der Garderobe her ist bis jetzt eine normal Türe geplant. Das Südfenster im Schlafzimmer ist als Fixglas geplant. Die Hauptausrichtung des SZ ist definitiv "westen", mit der großen Fensterfront. Da ist auch auf 300m kein Nachbar. Doppelte Beplankung zur Kinderzimmer ist eine sehr sehr gute Idee... :) Freu mich auf weitere Anmerkungen. |
||
|
||
|
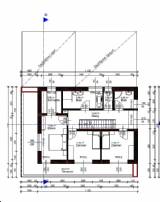
Bzgl. KiZi: wir haben daran gedacht, den Schreibtisch teilweise ins Fenster hinein gehen zu lassen. Gutes Licht auf dem Tisch und durch den Balkon störts nicht, wenn´s mal hinter dem Tisch nicht ganz so sauber ausschaut. Die Variante mit "Türe und nur halbhohes Fenster" hat irgendwie einen Hotelcharakter... Bzgl. Terrassen: Das Eck wo die Möbel stehen ist 3,05 breit. Wir denken, dass es damit breit genug ist, um vom Wohnzimmer aus nicht ständig Gartenmöbel zu sehen. Richtig? Was meinst du konkret mit de FBH FBH [Fußbodenheizung] 140. Am Ende der Stiege? Wäre als Tageslicht für den Stiege bzw. Gangbereich gedacht, mit einem durchgehenden möglichst vollständig aufkippbarem Fenster, das dann (voll ausgeklappt) gut von Innen gereinigt werden kann. |
||
|
||
|
Ist die Schiebetüre seitlich neben der 15cm Wand küchen-seitig angeordnet? Dann könnte sie mit der 100er Türe zusammenschlagen. Oder ist die Türe innerhalb der 15er Wand geplant? |
||
|
||
|
So wäre es angedacht. Sicher eine Kostenfrage :) |
||
|
||
|
Hat das eine Architektin geplant? Noch ein paar Kleinigkeit meiner Meinung nach: *) alle Fenster im EG sind 100 breit, nur im Waschraum ist es 110. *) WZI Fenster ist 250 hoch, in der Küche 220. Da hast du einen Sprung in der Fassade. Falls die Untersicht vorm WZI gedämmt wird, hier auf die Höhe aufpassen *) wird das Lager auch als Garage verwendet? Dann wäre die Türe in den Garten genau gegenüber vom Einfahrtstor an der falschen Stelle, weil sie nicht mehr aufgeht wenn das Auto drinnen steht. *) der Kasten beim Eingang ist sehr schmall, wenn du da eine Sitzfläche/Gaderope anordnen magst, würde ich mindestens 60cm einplanen. *) Küchenfenster, hier Gedanken machen wegen Einrichtung (Hängekästchen) die sind dann nur auf der oberen Länge möglich. *) L-Form bedeutet natürlich auch viele Laufwege *) Küche/Esszi, ... wenn die Aussenwand bündig mit der Wand der Schiebetür wäre, würde das eventuell besser ausschauen |
||
|
||
|
vielen dank für deine anregungen! |
||
|
||
|
Sorry hätte, FPH140 heißen sollen |
||
|
||
|
trotzdem...meinst du dast fenster am ende der stiege? oder wie oder was ;) |
Dieser Thread wurde geschlossen, es sind keine weiteren Antworten möglich.Nächstes Thema: Q-Symbol Flächenwidmungsplan
