« Bauplan & Grundriss  |

Grundriss - Eure Eindrücke und Ideen - Seite 2

Teilen: facebook    whatsapp    email
 1  2 
  •  DieNestbauer
18.10.2024 - 28.1.2025
23 Antworten | 9 Autoren 23
23
Hallo zusammen,
meine Frau und ich wollen auf unserem Grundstück ein schönes Haus bauen und sind am Grundriss planen. Wir sind hierzu auch schon mit einem Bauunternehmen im Gespräch und in der Planung, nun hätten wir aber auch gerne den Rat des Forums.
Wir haben uns für einen 50er Massiv Ziegel entschieden.
Eckdaten:
Größe des Grundstücks: 1035 qm² (30m breit & 34,5m lang, komplett flach)
Dachform: Walmdach
Zufahrt von Osten, im Norden und Süden sind Nachbarn, im Westen soll in mittlerer Zukunft eine kleine Häusersiedlung entstehen.
Wir sind derzeit noch zu zweit, wollen aber mindestens 1 Kind.
Raumbedarf im EG: Büro/Gästezimmer, Küche mit Speis, Wohnen/Kochen/Essen, Gästebad, Technikraums als Schleuse zur Garage
Raumbedarf im OG: 2 KiZi, Schlafzimmer mit Schrankraum, Bad, HWR
Garage mit Technikraum, Lagerraum/Werkstatt, WC/Dusche
Uns gefällt der Plan schon sehr gut. Was haltet ihr davon?

2024/20241018161367_th.jpg

2024/20241018530900_th.jpg


  •  DieNestbauer
15.1.2025  (#21)

zitat..
baustoff schrieb: Mir fehlt eine Garderobe. Wie ist das gedacht?

Wir werden zu 90% über die Schleuse reingehen, da soll die komplette rechte Wand ein Kastenverbau sein.
Gästegaderobe befindet sich an der Wand zur Speis (Eingangstür soll so gedreht werden, dass sie Richtung Bad aufgeht).


1
  •  Thuata
  •   Bronze-Award
15.1.2025  (#22)

zitat..
DieNestbauer schrieb:

──────..
baustoff schrieb: Mir fehlt eine Garderobe. Wie ist das gedacht?
───────────────

Wir werden zu 90% über die Schleuse reingehen, da soll die komplette rechte Wand ein Kastenverbau sein.
Gästegaderobe befindet sich an der Wand zur Speis (Eingangstür soll so gedreht werden, dass sie Richtung Bad aufgeht).

Ich würde dringend schauen, dass die Schleuse, Vorraum und Haustür direkt nebeneinander liegen. Die 90% halt ich nämlich für ein Gerücht in dem Moment in dem der Garten in Verwendung kommt.


1
  •  DieNestbauer
28.1.2025  (#23)
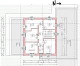
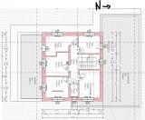
Vielen Dank für euren wertigen Input, wir haben jetzt versucht alles einzuarbeiten und kamen zu einem für uns sehr guten Ergebnis.
Schlafzimmer und Badezimmer im OG sind noch nicht final ausgeplant, für den Einreichplan wird dies aber auch nicht benötigt.


_aktuell/20250128503292_th.jpg

_aktuell/20250128735633_th.jpg



1
 1  2 


Beitrag schreiben oder Werbung ausblenden?
Einloggen

 Kostenlos registrieren [Mehr Infos]

Nächstes Thema: Entwurfsplan Einfamilienhaus 106m² + Keller in NÖ