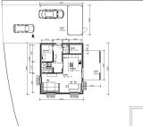
Grundriss Bungalow 130m² und Stockhaus 142m²
|
|
||
|
Servus, Wo werden bei den Entwürfen Waschmaschine etc. stehen? Wenn du WM/TR und die gesamte Haustechnik (WP, E-Verteiler, LAN etc) im aktuellen Technikraum unterbringen willst, wirds eng. Vor allem beim 2. Entwurf mit 7m2. Bei Entwurf 2: Überleg dir vlt. wo du eine Garderobe unterbringen willst. Das sieht mir hier nach nicht viel Stauraum aus, Schuhe, Jacken etc wollen irgendwo verstaut werden ;) Ich find außerdem den Balkon ziemlich sinnlos, ich hab mir immer überlegt, wie oft ich den nutzen würde (v.a. ist der Ausgang vom SZ aus, eher noch würden die Kids den nutzen, weil wir sind ja eh unten auf der Terrasse) Noch ein Punkt, der mir sehr wichtig war bei der Planung: Schrankraum ist nur über SZ erreichbar! Das geht (bei uns zumindest) gar nicht. Da wir zu unterschiedlichen Zeiten aufstehen, müsste einer immer Lärmen im SR, dann wieder durchs SZ durch und dann raus. Deshalb würd ich das ganze einfach umdrehen. Ich hab dir mal eingezeichnet, wie ich das meine. Ahja, wie ist die Speis im 2. Entwurf zugänglich? Eine Tür in der Küchenfront integriert? (wenn ja, find ich mega!) Viel Erfolg bei der Planung. |
||
|
||
|
Das kann ich nur bestätigen. Beim Planen empfiehlt es sich generell immer die Tagesabläufe durchzuspielen. |
||
|
||
|
Danke für eure Antworten. Das mit dem Schrankraum ist eigentlich gar keine so schlechte Idee! Im Technikraum sollten natürlich auch Waschmaschine und Trockner Platz finden und auch Platz für ein Katzenklo ! Wir bauen über E.. bzw. Partner davon und wir hätten dann eine KWL KWL [Kontrollierte Wohnraumlüftung] mit einem Kompaktgerät von Nilan. Also die gesamte Heizung ist das Gerät welches im Technikraum eingezeichnet ist. Dachte mir dann schon das ich mit 7-8m² auskommen sollte. |
||
|
|
||
|
||
Achja... Speis wäre in beiden Fällen mit Tür in der Küchenfront |
||
|
||
|
Wo wird gebügelt und ev. auch Wäsche getrocknet? Schau dir mal den Grundriss vom Vario Bungalow 141 an. Hat uns sehr gut gefallen war aber letztendlich zu klein Wir haben jetzt als Basis das Danwood perfekt 171 genommen. wird aber in Ziegel gebaut |
Dieser Thread wurde geschlossen, es sind keine weiteren Antworten möglich.Nächstes Thema: [Gelöst] Geländeplanung




