Flachdach (als Dachterrasse genutzt) auf Ziegeldecke - Details
|
|
||
|
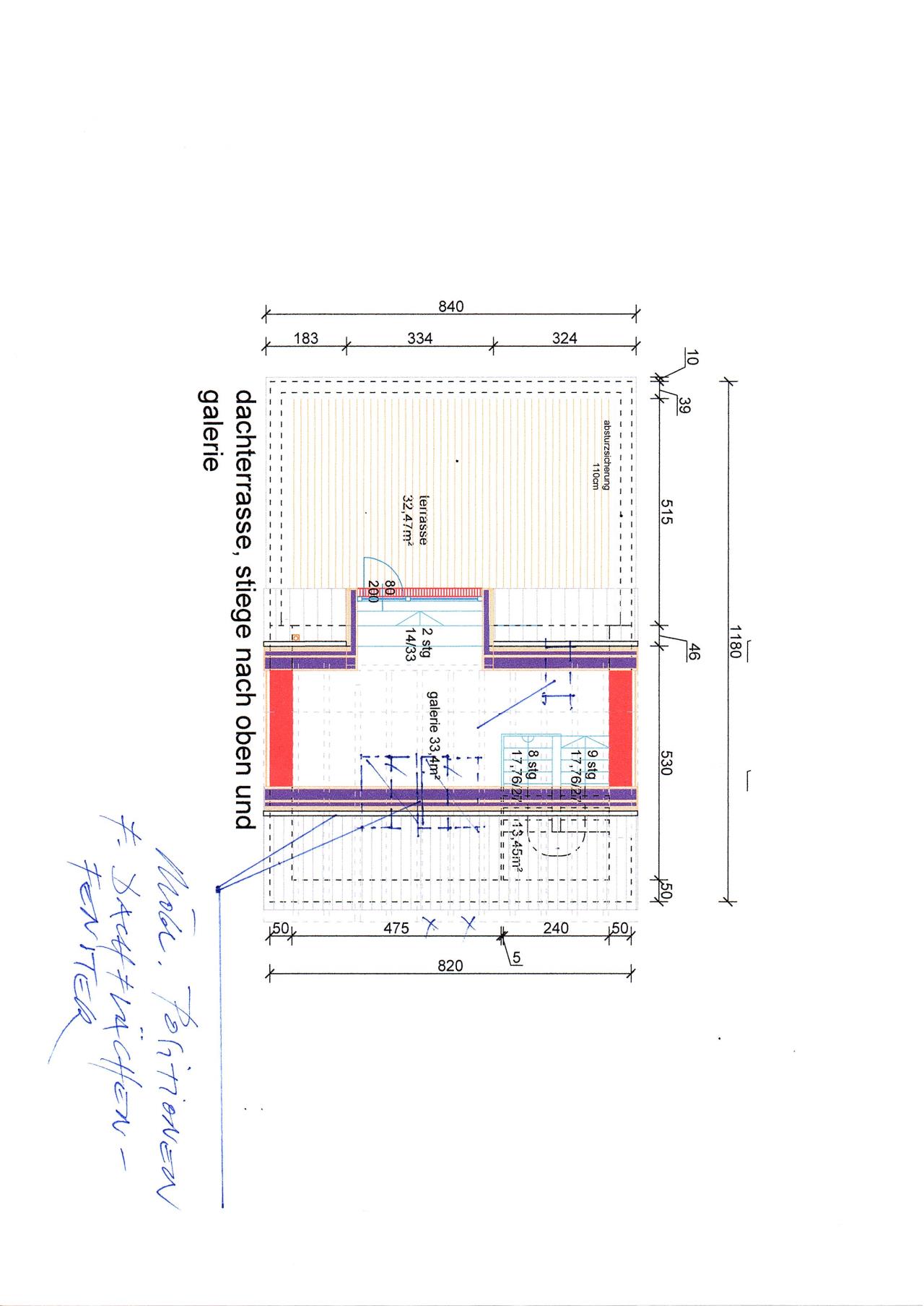
Könntest du mal einen Planausschnitt hochladen, dann wäre das gleich um einiges einfacher zu verstehen. |
||
|
||
Statt dem Dachschiebefenster kommt eine Gaube und eine normale Terrassentüre, aber sonst circa so. Ich mach den Plan nachher auf dem PC nochmal in guter Auflösung hier rein. Mein Architekt hat sonst immer bituminöse Abdichtungen gemacht und nicht EPDM und hat deshalb diesbezüglich nicht den aktuellsten Stand, da wollte ich das nachher halbwegs auf Augenhöhe diskutieren. Beim Rest des Hauses sind es die üblichen Standardlösungen (unten 38er Ziegel und 12cm XPS rausgehen, Dachrostdämmung, Stufensturz). Denke sowas gibt's hier auch aber da werde ich nicht ganz schlau daraus... |
||
|
||
![]() Diesen Aufbau hatte mein Architekt vorgescvhlagen, wobei wir bei PUR Dämmplatten waren. Könnte ersetzt da die EPDM-Folie einfach den 2-schichtigen bituminösen Abdichtungsaufbau? Ist die Dränschicht sinnvoll oder setzt sich die mit der Zeit voll, und kaönnte ich über dem EPDM auch zB direkt mit Lagern die Betonplatten verlegen, oder sogar auf einen Holzboden wechseln wenn uns das besser gefällt? Sprich könnte ich mir beim EPDM den Kies komplett sparen? Weil was nicht da ist kann auch nciht mit Feinteilen zusetzen, wäre meine Theorie. |
||
|
|
||
|
||
|
Hast du schon überprüft ob das mit Ziegeldecke überhaupt funktioniert. Hast ja schon einige an Lasten. Punktlast Dachstuhl, Flachdachaufbau, Schnee. |
||
|
||
|
Und wenns mit Ziegeldecke funktioniert wie starck ist dann dein Gesamtaufbau, dadurch ergibt sich dann deine Fußbodenhöhe innen. Wenn man das weiß kann man sich über ein Anschlußdetail gedanken machen. |
||
|
||
|
Mittig im Haus ist die tragende Wand, die Spannweiten sind 5.1m lichte weite und 5.5m lichte Weite. Die Last vom Dachstuhl wird über besagten Betonüberzug beim Terrassenausgang abgeleitet, der in der Skizze noch falscherweise als Mauer eingezeichnet ist. Der Statiker schaut aber noch detailliert drüber, die Dachform etc. ist mittlerweile von der Gemeinde bzw deren Gutachterin (weil momentan offizieller Baustopp wegen Erarbeitung eines Bebauungsplanes) abgesegnet worden. ![]() |
||
|
||
Über die Dämmstärke etc. haben wir uns Gedanken gemacht, wir kommen mit 2 niedrigen Stufen auf die Dachterrasse hinaus. Ich glaube um die 20cm ist der Höhenunterschied. ![]() Da ist aber der Aufbau beim Ausgang noch falsch gezeichnet, das wird eben als Betonüberzug und dann luftseitig XPS Dämmung ausgeführt. Daher funktioniert das wohl dann recht ähnlich wie bei der Attika. Den fertig angepassten Plan bekomme ich wahrscheinlich Anfang der kommenden Woche, aber dann muss der Aufbau rasch sitzen da wir den Plan dann dem Bauphysiker geben. |
||
|
||
|
Ja genau, wurde bei mir so gemacht. Dränbeton würde ich weglassen seh da überhaupt keinen Vorteil. Wasser wird eh über EPDM Ebene abgeleitet. Das würd ich mir noch einmal überlegen. Da hast du dann ja eine super Wärmebrücke. Außerdem würde dir empfehlen als Fußbodenaufbau im ganzen Haus 25cm vorzusehen. Mit 18 cm hast du sicher irgendwo ein Problem |
||
|
||
|
Die vorgesehene Drainageschicht ist glaub ich so ein Geotextilverbundstoff, aber da frage ich nochmal was genau für ein Produkt gemeint ist. Aufbaustärke: bespreche ich nochmal. Die weiteste Distanz wäre der Abfluss von Dusche und Badewanne zum Hauptstrang, die haben jeweils etwa 2m Distanz. |
||
|
||
|
Wäre eine Attika aus Ytong besser sofern das statisch gesehen funktioniert? |
||
|
||
|
@MalcolmX ich hab mal probiert wie man das ganze thermisch halbweg trennen kann. der Betonüberzug ist halt nicht optimal. aber ich glaube so könnte das funktioniern. Damit man die Tür aus der Ebene des Betonsockels bekommt und hier keine Wärmebrücke ensteht könnte ich mir vorstellen die Tür über einen Stahlwinkel zu fixieren. Das dass Detail nur ein erster Gedanke ist, ist hoffentlich klar. Sowei du genaue Angaben bezüglich Überzughöhe hast kann man es noch anpassen. so wie es jetzt gezeichnet ist ensteht auch ein Stufe von 4cm nach außen, ds kann man auch noch optimieren. p.s.ein Standartdetail wirst du für sowas nicht finden, da must schon selber bisl grübeln. hoffe ich bin nicht komplett am Holzweg, und das hilft ermal was. ![]() |
||
|
||
|
Ich glaub so in der Art könnte das was werden, danke dir vielmals. Attika werde ich meine grauen Zellen anstrengen aber prinzipiell wäre es am Besten, die Grunddämmung bis zur Rostdämmung der Ziegeldecke hinauszuziehen bzgl. Wärmebrücke. Dann bleibt aussen allerdings nicht mehr sehr viel Platz für die Attikakonstruktion selber... |
||
|
||
|
Attika ist nicht das große Problem. Wird die Attika gleichzeitig dein Brüstungsmauer oder kommt ein Geländer? Wenn Geländer wo wird das montiert innen, außen oder oberhalb der Attika? p.s. mir ist gerade aufgefallen die Hochzugdämmung die ich eingezeichnet habe ist natürlich blödsinn, Grund-und Gefälledämmung kann man ja gleich zum XPS vom Beton zurückziehen. |
||
|
||
|
So hab ich es eh verstanden. Geländer wird von innen an die Attika geschraubt. Architekt meinte er schaut sich noch an wie man die Montageplatten dann schlau abdichten kann... es ist ein Netzgeländer, aber die Horizontalkräfte von Personen die sich anlehnen muss die Befestigung natürlich in die Attika einleiten...Windkraft wohl kaum. |
||
|
||
![]() ![]() @MalcolmX hab mir mal Gedanken zum Geländer gemacht. Ich würde auch hier mit Stahlwinkel arbeiten, dann brauchst du nicht die Hochzugsabdichtung durchtrennen. Was halltest davon? XPS auf der Innenseite der ATTIKA habe ich mir gedacht wäre nicht vom Nachteil um die Abdichtung sauber hochziehen, hat aber keine weitere Funktion.( |
||
|
||
|
Die Stahlwinkel gibt es scheinbar von Breuer schon fix fertig, danke für den Tipp... das könnte passen. Und als Ziegel aussen eventuell die 18cm dämmstoffgefüllten von Wienerberger :) |
||
|
||
|
Hast du einen link für die Winkel? danke |
||
|
||
|
https://www.sicherheitskonzepte-breuer.com/de/produkt/attika-gelnder-variante-ha/ Da muss man hald schauen ob man die Attikaneigung dann mit der 3Schichtplatte herstellt odgl |
||
|
||
Was haltet ihr von dieser Bauart bei der Attika, ganz schnell aufskizziert (ohne Holzfassade, ohne Abdichtungen etc dargestellt)? |
||
|
||
|
warum man auch bei so komplexen bauweisen unbedingt mit 50er bauen muss verstehe ich nicht - vor allem wenn man eh so viel styropor verbaut - ist aber ein anderes thema. bez. stahlwinkel: unbedingt edelstahl verwenden - haben auch einen besseren u wert |
||
|
||
|
Ausser der Attika ist die Hütte ziemlich simpel :) Edelstahl macht sicher auch wegen der Dauerhaftigkeit Sinn... Wärmeleitfähigkeit Edelstahl vs Stahl ost mir soweit klar :) |
Beitrag schreiben / Werbung ausblenden?
Einloggen
Kostenlos registrieren [Mehr Infos]








