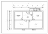
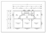
Entwurf für unser EFH ca. 154 m²
|
|
||
|
Hallo Hannes17
Gratuliere zu deinem Erstentwurf Erstentwurf schaut ja schon ganz ok aus Hier meine Kritik: EG: Gang mMn zu schmal - wenn die WC oder AS Türe offen ist kann man nicht mehr durchgehen Auch bei der Küche ist der Zugang sehr schmal - zwischen Kasten/Kühlschrank und Anrichte Weiters wäre noch interessant zu wissen wie ihr die Einrichtung im Ess/Wohnzimmer plant um weitere Tipps zu geben OG: auch ziemlich schlauchiger schmaler Gang Keller Für eine Außenstiege in den Keller gibt es ja sehr gespaltene Meinungen - müsst ihr wissen ob ihr eine braucht - klar praktisch allemal z.B. wenn man mit Holz heizt und das Holz nicht über die Innenstiege transportieren muss - da ihr aber mit Erdwärme plant würde ich die Außenstiege einmal hinterfragen - bring auch einige Nachteile mit sich zur Fensteraufteilung: sind großteils ziemlich große Fenster - wird wahrscheinlich nicht allzu günstig im Keller würde ich mehr Lichtschächte machen da es sonst wirklich dunkel ist lg Tagtraumer |
||
|
||
|
Was sind den die Nachteile der Aussenstiege? Mir fällt nur die schlechtere Isolation im Bereich der Türe, sowie die Mehrkosten ein.
Dafür muss ich mit nassen und dreckigen Sachen nicht durch den Hausflur. |
||
|
||
|
Ich weiß nicht wie au eurem Grundstück die Gegebenheiten sind, aber bei Überschwemmungen... bleibt dann im Keller nichts mehr trocken
Dazu musst du dir bewusst sein das es eine weitere Gefahr für Einbrecher ist aber ich glaube zu dem Thema gibt es schon einige Threads Wenn man wirklich viele dreckige und nasse Sachen in den Keller tragen muss, dann ist eine Außenstiege natürlich klar von Vorteil - ich weiß ja nicht was du alles in deinem Keller deponierst ;) lg Tagtraumer |
||
|
|
||
|
||
|
Schlauchiger schmaler gang bei 1,30m rohbaumaß? (= die norm für behindertengerechtes bauen) 1m durchgang in der küche nicht genug?
Entschuldige Tagträumer, aber selten so schwachsinnige tipps bezüglich verkehrswegen gelesen. Ich finde den eingangsbereich perfekt gelöst mit der garderobennische - endlich einmal jemand der das wc aus dem schmutzbereich verbannt hat. Aussenstiege: ordentlich entwässern bzw idealerweise den stiegenbereich überdachen. Wenn schon keller, dann unbedingt mit aussenstiege Wc tür im og auch nach aussen aufgehen lassen. Ansonsten schöner, stimmiger plan |
||
|
||
|
Ich sehe keine wirklichen Probleme bei eurem Entwurf. Eventuell würde ich die WC-Tür im OG nach außen öffnen lassen. Gangbreite finde ich gar nicht zu schmal wenn die Maße stimmen.
Ist die unterschiedliche Breite der südlichen Fenster Absicht? Ich würde nochmal überlegen, ob das kleine Fenster in der Küche wirklich notwendig wäre. Im OG würde ich das darüber liegende Fenster im SZ dafür weglassen. Eine Möblierung des Zimmers ist sonst nicht so einfach. Wo hast du dir überlegt, das Bett zu positionieren? Das Fenster im Bad könnte auch etwas größer sein. Ich würde überlegen ob nicht ein Fenster im Stiegenhaus reichen würde. Zum Thema Aussenstiege wurde das wichtigste schon gesagt. Mein Tipp: überleg dir eine Möblierung für alle Räume! Viel Erfolg bei der weiteren Planung! |
||
|
||
|
Wegen den Gangbreiten
Hab nicht auf die Kotierung geschaut Bin in einem Haus aufgewachsen mit Gangbreiten von ca 1m, dazu noch Türen die großteils in den Gang aufgegangen sind - spreche daher aus Erfahrung und das das alles andere als komfortabel ist - 1,3 ist natürlich schon was anderes aber ich scheue trotzdem noch davor zurück lg Tagtraumer |
||
|
||
|
Danke für die Anregungen!
Bei der Aussenstiege sind wir uns grundsätzlich noch recht unsicher, ob und wie. Die Fenster sind auch erst ein Entwurf. Da werden wir sicher auch noch etwas ändern. Danke. |
||
|
||
|
Fast 1:1 unsrer Eingangsbereich und ähnlicher Grundriss generell aber ich geb dir natürlich jetzt keine Tipps wie es sich in der Praxis verhält und was wir anders gemacht hätten. :)
- AS und WC vlt. tauschen. Wir haben auch keine Speiss und da landen Teile aus der Küche schon gerne im Kammerl - unser Gang ist auch nicht viel breiter aber wirkt nicht als Schlurf durch die offene Garderobe. Steht sogar noch ne schmale Kommode drinn. - Garderobe Nische ist mini bei uns aber dafür eine bodentiefe Fixverglasung und diese wertet den Raum und Flur mächtig auf. Trotzdem genug Platz für Schuhkasten etc. - Vlt. auch die Türe in den Wohn/Essbereich weglassen. Aber Geschmackssache und manche haben Angst vorm Fettgeruch im Haus. Würde aber noch offener wirken IMHO. - Küchenfenster West vlt. grösser oder anders gestalten. Hat sich als sehr praktisch erwiesen weil dann sieht man schön vor die Tür was sich da abspielt. - Würde dir eine gerade Treppe mittig gefallen. Könntest mal umplanen. - Kellerabgang aussen sicher praktisch aber kommt dann halt wieder was kosten und planungstechnisch dazu. Überdacht gehörts auch. Bei uns kein Thema da der Keller nur von aussen begehbar ist. (Hanglage) - Im OG haben wir ausserdem vom SZ ins Bad auch direkt eine Tür. Äusserst praktisch. |
||
|
||
Also mir gefällts auch
Küche würde ich anders machen, aber das ändert nichts am Grundriss. Bad muss schallmäßig gut abgetrennt werden vom Schlafzimmer! |
||
|
||
|
Auf Wunsch von meiner Frau habe ich noch eine Variante mit einer kleinen Überdachung für die Terrasse (2x2,5m) erstellt.
Ich denke, dass das Wohnzimmer auch so noch groß genug ist und ein wenig Schatten kann sicher nicht schaden. Speziell wenn wir Temperaturen wie aktuell haben. |
||
|
||
|
Vergiss es. Was willst mit dieser mini überdachung erreichen? Kostet nur geld und verschlechtert deine energiebilanz. Überdachung entweder extra, oder von vornherein in der planung des grundrisses mitgrstalten, dann wirds zumindest keine ich will aber kann nicht überdachung. Wir haben in unserer aktuellen wohnung 2,5 x 6m (balkon der wohnung über uns) - ein traum - beim haus wirds sicher noch größer |
||
|
||
|
Eingang im Osten - Wir haben uns auch lange mit dieser Problematik beschäftigt, wenn der Eingang nicht wie "gewohnt" im Norden, sondern im Osten liegt. Die Anordnung mit Eingangstür im oberen östlichen Drittel mit Verkehrsweg bis etwa zwei Drittel nach Westen ist so ziemlich die beste Lösung, bei dem Verhältnis Länge zu Breite des Hauses. Die weitere Grobanordnung Garderobe, AS, WC, Stiege im Norden ebenso. Die Küche im Südosten haben wir auch so platziert. Das WZ im Südwesten macht meiner Meinung nach auch Sinn. Zu Bedenken sind noch Kleinigkeiten mit Sonneneinfall im Westen beim Fernsehen und dergleichen. Auch eine Speis direkt bei der Küche wäre möglich, wenn man AS weglässt und Garderobe nach Westen ausdehnt. Gang find ich gerade nach breit genug. Aussparung im Südwesten in dieser Form sicher unnötig!
lg sel |
Dieser Thread wurde geschlossen, es sind keine weiteren Antworten möglich.Nächstes Thema: Fußbodenoberkante - Asphalt?
