EFH ~130m² Süd-West ohne Keller, leichte Hanglage - Seite 2
|
|
||
|
Ein gewisser Grundbretrag fürs Haus wird immer fällig (Baustelleneinrichtung, Anschlussgebühren) - der immer gleich ist. Aber ein paar m² mehr potenzieren sich über alle Geschosse einfach schon extrem. Eine gute Ausführungsplanung vom Profi kostet auch Geld. |
||
|
||
|
Da ich nicht dazukomme, auf alle punkte gemeinsam zu antworten, fange ich einfach mal an... Danke, dh für uns: wenn 90er Platz haben, nehmen wir die und machen uns keinen Kopf mehr...
|
||
|
||
|
-Muss kein 80x80 sein, ihr habt nur bei den anderen 80x80 verwendet gehabt. -Technikraum - Tageslicht ist durch nicht zu ersetzen. Aber ja geht natürlich - Ja genau, 12m² sollten das AZ schon sein, dann kann man es für alle möglichen Dinge verwenden, auch als Kinderzimmer. -Ja genau integriert, kostet beim Neubau nicht mehr, man spart sich ja auch das Punktfundament |
||
|
||
Wie seht ihr konkret das Thema mit der Höhe/Differenz vom Carport/NG zum Haupthaus?
Ursprünglich hat uns Variante b gut gefallen - da man dadurch bei der Terasse etwas Höhe gewinnt und die größer ausführen kann (bzw. dort die Terrassierungen etwas sanfter machen kann). Vorteil auch sicher beim Schutz vor Wasser, durch die klare Trennung vom Haus - da das Wasser nicht bei der Zufahrt direkt zum Haus geht... Andererseits hat man immer die 3 Stufen zu bewältigen (wäre in unseren Augen kein Problem, und für den Notfall gäbe es immer noch Platz für eine Rampe durch die Schotterumrandung... Aber man verliert mit dem ganzen Haus auch noch zusätzlich 1m Tiefe vom Garten/Terassierung - dh das Carport/NG schluckt nochmal 1m mehr Platz vom Grundstück... Und ist bei der Variante B mit höheren Kosten zu rechnen (klar, Stützmauer und größeres Carport-Dach kostet, dafür aber weniger Stützmauer/Erdbewegung im Garten)? Welche Variante wäre in euren Augen sinnvoller? |
||
|
||
|
Das Haus gehört meiner Meinung nach einen Hauch höher als das Carport. Also Variante A. Wäre ja grotesk, wenn du bei einem Haus ohne Keller am Hang Gefahr läufst, Wassereinbruch zu haben. Wenn schon eine Stützmauer, dann als Teil des Carports / Nebengebäudes ganz planoben. |
||
|
||
|
Kurzer Zwischenbericht zu unserem Status: Wir haben den Vorentwurf zum Bebauungsplan bekommen, das Nebengebäude bekommen wir nicht wie geplant (nördlich vom Haus) unter. Das Nebengebäude darf jedoch an die Grundgrenze gebaut werden, dadurch könnten wir Platz gewinnen und hätten im Nord-Westen sogar die Möglichkeit, den Garten noch mit Traktor, LKW, ... zu erreichen - so in etwa: Haben für den Bebauungsplan noch 2 Punkte eingeworfen, die wir gerne geändert hätten und warten da noch auf das Ergebnis. Auch wird aktuell gerade die Erschließung durchgeführt. |
||
|
||
|
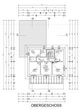
Sind mit unserem Entwurfsplan soweit fertig. Haben die Idee mit dem NG an Grundstücksgrenze verworfen - hatte in unseren Augen zu viele Nachteile. Sind jetzt bei folgendem Plan gelandet: Nächster Schritt: Einreichplan zeichnen und angebote einholen... |
||
|
||
|
Bitte gib dem einen Kinderzimmer noch ein Fenster. Sieht auch in der Ansicht fürchterlich aus. Als hätte man 1 Fenster vergessen. Ansonsten wurde schon viel gesagt. Ich würde auch auf 150-160m² gehen und eine Podesttreppe machen. Da aber euer Plan schon in Stein gemeißelt zu sein scheint, Viel Erfolg beim Bauen! |
||
|
||
|
mir wäre es zu wenig natürliche Belichtung im Vorraum UG und OG Ich würde auch die Eingangsituation in den Wohnraum großzügiger gestalten mit zusätzlichichen Fixverglasungen seitlich und oben. Würde auch dem Vorraum zwecks Belichtung sicher guttun. |
||
|
||
|
Also ich finde den Grundriss sehr gut - kompakt und effizient. Die Aufteilung zwischen Bad und HWR ist auch sehr originell, wir wollen auch das die Wäsche im Bad bleibt und die Wege kurz sind. Ja bitte halte uns auf den Laufenden, bin gespannt wo ihr preislich hinkommt. |
||
|
||
|
Kurzes Update von unserer Seite: Haben uns jetzt viel mit dem Aufbau selbst beschäftigt und ein paar Angebote eingeholt. Im Groben sind wir aktuell bei folgenden Kosten: Die grauen Positionen sind aktuell noch geschätzt. Eckdaten:
Nächster Schritt ist jetzt dann der Energieausweis und Einreichplan und parallel weitere Angebote einzuholen, zu vergleichen und auch die Eigenleistung besser zu berechnen und zu schätzen... Im Endeffekt sind wir damit bei ~600k€, was ich doch noch recht ordentlich finde - trotz geplanter Eigenleistung (Dämm und Fassadenaufbau, Dachboden dämmen/aufbau, Innenausbau - Beplankung, Spachteln und Malen, Leitungen legen und anschließen, Böden und Fließen, KWL einbauen). Wie schätzt ihr das ein, sind da Posten die in euren Augen deutlich zu hoch sind und wir noch ansetzen können? Klar, es kommt immer auf die Details an - aber sticht euch etwas ins Auge? |
||
|
||
|
Vorbereitung ist was genau? Erdarbeiten 105k? Ist das so teuer heute? Bei den restlichen Gewerken sind ganz gut kalkuliert. Einige eher zu hoch finde ich aber besser so als anders herum. |
||
|
||
|
Das sind Posten bevor wir mit dem Bau beginnen zB Einreichplan & Energieausweis, Vermessung vorab, WC. Sind nicht nur Erdarbeiten sondern beinhaltet auch: Bodenplatte (Haupthaus, Nebengebäude und Terrasse), Sockelwand (ca 1m) für Lager/Carport, Schotterung der Einfahrt, Kanalanschlüsse, Regenwasserzisterne (6.500l) und Sickerschacht (16.000l). |
||
|
||
|
Zu CLT. Geniales Baumaterial, aber schwierig als Schallschutz zwischen Wohnräumen. Habt ihr da 10cm CLT plus Beplankung oder Riegel bei den Innenmauern? CLT ist als Innenmauer relativ hellhörig. Zu 10cm außen. Die tragende Schicht bei CLT sind fast nur die stehenden Schichten. 10er sind meist 3/4/3 cm Aufbau, tragend damit 6cm (2*3cm). Die 9er haben 3/3/3, also ebenfalls 6cm tragend. Die 9er wären 10% weniger Holz ... |
||
|
||
|
Finde ich auch hoch. Da würde ich auf alle Fälle noch Vergleichsangebote einholen. |
||
|
||
|
Haben aktuell noch 2 Angebote offen für den Posten - ich hoffe, wir kommen da noch runter ohne dass die Angebote unrealistisch und unvollständig werden... Bzgl. CLT Innenwände: Die Innenwände sind auch in CLT geplant. Teilweise komplett Nicht-sicht (beidseitig beplankt mit Installationsebene gedämmt) bzw. teilweise einseitig auf Sicht (dann aber auf der anderen Seite wieder beplankt, da überlegen wir stellenweise auch Federschienen - zB im EG Büro an der Wand zum Wohnzimmer). Hoffe das reicht, damit wir nicht zu viel Geräuschübertragung haben... Bezüglich Außenwand: Je nach Anbieter entweder 3s oder 5s, je nachdem ob die Firma (bzw. auch das Werk) die Flanken verleimt oder nicht... |
||
|
||
|
Bezüglich den Innenwänden, die schallkritischer sind - wie wäre da der Aufbau korrekt zu machen? a) ![]() b) ![]() Ist jetzt nur für das OG gezeichnet (Kiesschüttung)... |
||
|
||
|
Definitiv Variante B, du willst ja Wand und Boden entkoppelt. Und du musst die Leitungen auch in die Ebene einbringen. Baulich ist eh so erst Wände und am Schluss der FB Aufbau |
||
|
||
|
Var B) Falls Schallentkopplung von Wand zu Decke gewünscht ist wären Matten (rothoblaas Aladdin, Sylomer, Phonestrip (wolf)) etc zum unterlegen sowie unbedingt die Befestigungs-Winkel auch zu entkoppeln. Gibt eigene Winkel mit Sylomerlager bzw Beilagen |
||
|
||
|
Habt ihr für den CLT Rohbau schließlich noch weitere Angebote bekommen? |
||
|
||
|
Status update: Bei uns haben die Grabungsarbeiten begonnen. Sickerschächte sind gesetzt, der Graben für den RGK RGK [Ringgrabenkollektor] ist ausgehoben. Fehlen nur noch die Alligatoren😃 Morgen kommt der RGK RGK [Ringgrabenkollektor], dann wird wieder zugemacht... ![]()
|
Beitrag schreiben / Werbung ausblenden?
Einloggen
Kostenlos registrieren [Mehr Infos]














