Benötigter Platz zum Umkehren
|
|
||
|
Skizze bzw. Planausschnitt? - Würde es etwas einfacher / nachvollziehbar machen, wie es gemeint ist. Wendekreis des Autos ist auch hilfreich bzw. Fahrzeugabmessung (insbes. Länge) plus Reserve, falls mal ein größeres Auto kommt |
||
|
||
|
HiJedes auto und jeder fahrer ist anders.
einige schaffen andere ausparksituationen als andere. wenn ich die beschreibung richtig deute sehe ich kein großes problem, ABER ich würd einfach holzpflöcke und absperrband nehmen und mir das auspflöckeln oder mit sachen makieren und mal ausprobieren. wir haben auch bei uns ausprobiert da wir mit dem hänger möglichst leicht wenden wollen zb. aber der einschlag und wendekreis und radstand beeinflussen die situation sehr org! also ich würde es einmal ausprobieren. lg! |
||
|
||
|
Stimmt - Stimmt,
wir werden's wohl einfach mal ausprobieren müssen. Hier trotzdem mal ein erster Plan. Danke |
||
|
|
||
|
||
|
kommt auf eure bedürfnisse anwenn ihr camper seid, wäre das eng.... |
||
|
||
|
Orientierungshilfe Nehme mal an, dass der graue Streifen unterhalb des rechten Nachbargrundstückes die Einfahrt ist?
Rein gefühlsmäßig wird das recht eng, wenn man nicht unbedingt ein handliches Auto im Smart-Format hat. Habe es mir bei unseren Plänen so angesehen (geht auch bis zu einem gewissen Grad): Wendekreis bei einem größeren Mittelklasse-Auto (Passat, Mondeo, V70 ...) ist maximal 12 Meter - ein bisserl Reserve noch dazu = 12,50 m. Also zeichnet dir am Plan einen Kreis oder besser gesagt Ring mit diesem Außendurchmesser ein. Inndurchmesser ist dann Außendurchmesser minus Fahrzeugbreite plus Reserve (ca. 2,40m). Als Beispiel das Pic - 2 Fahrzeuge (orange & blaue Linien), damit man es sich ein bisserl vorstellen kann. Da kann man sich dann mit 1/4-Kreisen spielen und es macht es etwas anschaulicher. Sicher nicht 100 %, aber das macht es anschaulicher und vor allem dann gut, wenn man es in natura (noch) nicht probieren kann. P.S. Ist bei uns leider auch sehr eng, aber wir können nicht aus. |
||
|
||
|
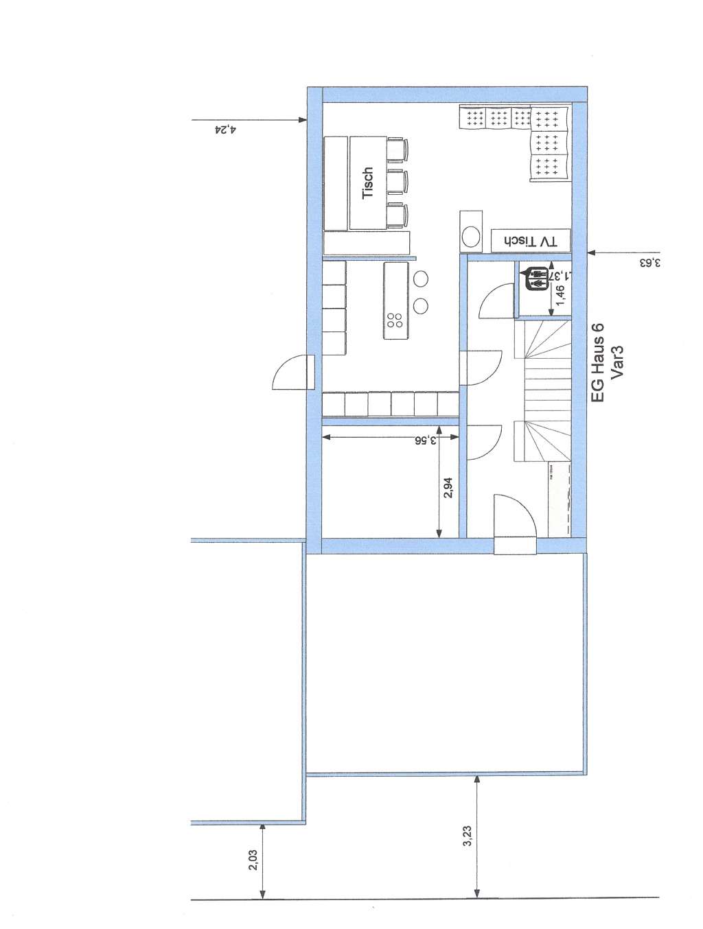
Übrigens - cooler Grundriss!
Bitte mehr davon - vor allem OG und größer - bitte, bitte - |
||
|
||
|
grundriss - Hallo Heislplaner,
sorry hat länger gedauert. Aber wir sind mit dem Grundriss unseres Architekten noch nicht ganz glücklich. Deshalb sind wir mal selbst am Zeichnen... Hier zwei Grundrisse (je EG und OG) die derzeit unsere Favoriten sind. freuen uns über jede kritik... |
Dieser Thread wurde geschlossen, es sind keine weiteren Antworten möglich.Nächstes Thema: Feuchtigkeit im EG
