Badgröße
| 
 | 
| 
 | ||
| Wir haben 7m2, gleiche Ausstattung. Ich vermisse das alte 12m2 Bad kein bisschen. Kommt aber auch auf Gewohnheiten an - wir sind da nicht lange drin, das längste ist Zähneputzen und bettfertig machen mit Kind. Da hab ich lieber 5m2 mehr WZ oder so - aber das konnten wir uns nicht aussuchen, war halt so groß und passt für uns | ||
| 
 | ||
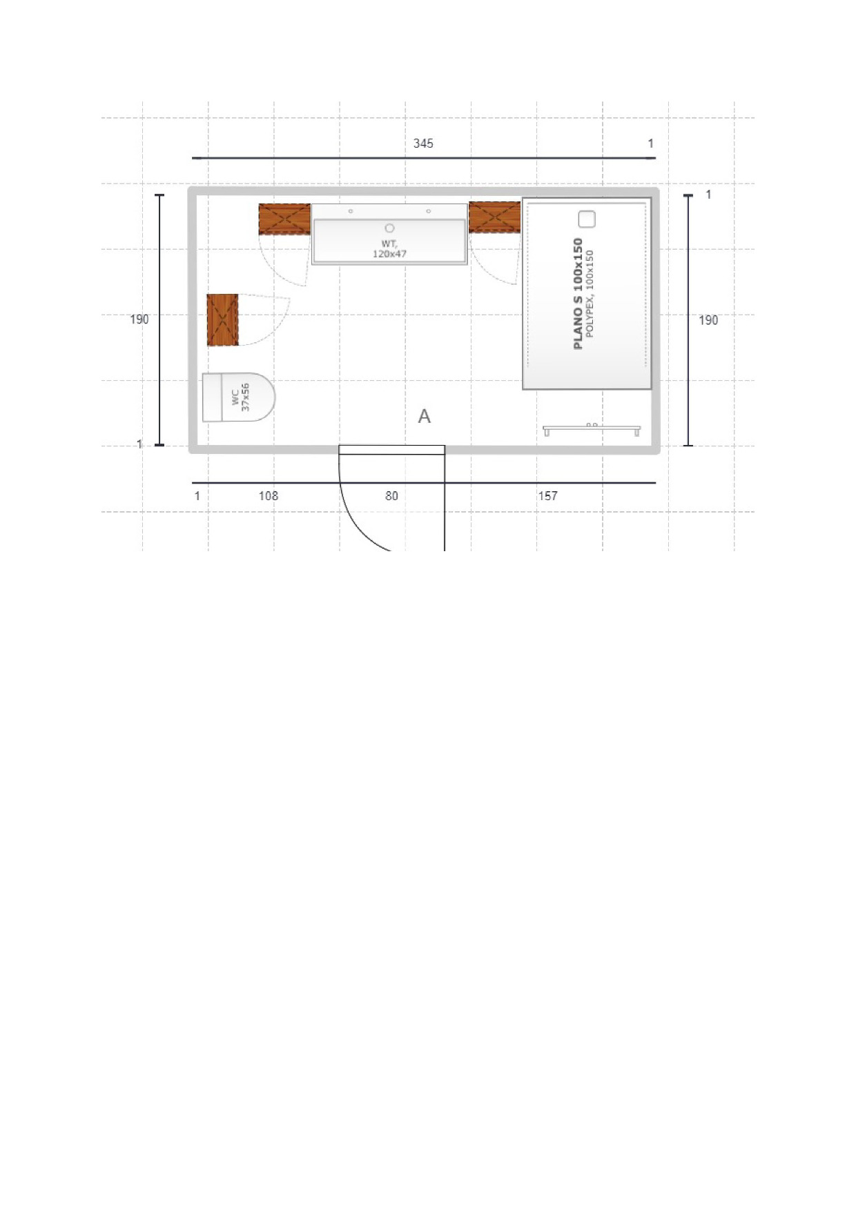
| Das Eck links oben ist nicht nutzbar, da könnte man was verbessern. Ist der Zugang zur Dusche wirklich nur einen halben Meter breit? Das schaut sehr eng aus. Die Hühnerleiter macht die Sache nicht besser. Ist die eh nicht wasserführend? Unser aktuelles Bad hat rund 4m², ohne WC und dafür mit Waschmaschine. Geht auch, ist aber doch etwas eng. Auf 6,5m² kann man schon was machen. | ||
| 
 | ||
| Ich komm auch aus dem "kleinen Bad Eck". Unseres ist mit 9qm zwar großer, aber sehr schlauchförmig. Ein Bad ist für mich ein Funktionsraum. Ich halte mich tun Zähneputzen und Duschen darin auf. Platz hast du im oberen Raum genug. Ich würde das Doppelwaschbecken (wenn auch gesetzt) überdenken. Ich hatte als Kind eines im Elternhaus, das war außer mehr zum Putzen, kein Gewinn. Den Ausstieg aus der Dusche eventuell ausprobieren. Wir haben 70cm, das ist ein guter Abstand. Vielleicht kannst du die Dusche drehen (Richtung Waschbecken) und dafür das Waschbecken ins "tote Eck" setzen. | ||
|  | ||
| 
 | ||
| @Hedensted hat mich auf eine Idee gebracht: Waschtisch die linke Wand, Dusche drehen und nach rechts unten schieben. Das WC dann vor Blicken geschützt an der rechten Wand hinter der Dusche. So könntest du eventuell sogar noch Fläche sparen. | ||
| 
 | ||
| Unsere Bäder haben 6,5 bzw 6m². Wir vermissen nix... Bin grundsätzlich auch sehr pro kompaktes Bad. | ||
| 
 | ||
| Bad gross oder klein ist Ansichtssache. Für ein Hauptbad fehlen mir eine Badewanne und das WC müsste Weg. Unser Kinder Bad hat 4m2, da ist ein WC, eine Dusche und ein Waschbecken. Für das ist es okay - wenn wir aber zu 4 im Hauptbadezimmer sind (Kleinkinder) ist die Größe schon sehr angenehm (9m2). | ||
| 
 | ||
| Diese Kernfrage ist für mich unbeantwortet. Soll es das Hauptbad werden? Wenn ja, wäre es für mich kein Highlight. Genau deswegen. Als Zweit-/Kinderbad völlig ausreichend. | ||
| 
 | ||
| Für eine Walk In Dusche ist das Setup sehr suboptimal. Am Layout an sich würde ich noch arbeiten. Die Hühnerleiter kann man auch gleich einmal stanzen, bringt bei Wärmepumpen nix. | ||
| 
 | ||
| Morgen, Wenns ein Zweitbad is, warum a Doppelwaschbecken? @leito99 bitte aufklären.. Gibts da kein Fenster? Hoff zumindes Abluft..... Doppelwaschbecken und Dusche nehmen in Der Konstellation recht viel Platz weg. Lg | ||
| 
 | ||
| Warum nicht wasserführend? Was muss ich da bedenken? | ||
| 
 | ||
| Es wird kein Zweitbad. Sollte als Hauptbad für 2-3 Personen - ohne Badewanne - gedacht sein. Bzgl. Fenster stelle ich einen neuen Plan hinein, hab ich übersehen ;) | ||
| 
 | ||
| Kurzfassung: 1. Hydraulisch nicht trivial einzubinden 2. Wird in Kombination mit FBH FBH [Fußbodenheizung] dank niedriger Vorlauftemperaturen nicht besonders warm 3. Materialmix - Potenzial für Korrosion Such mal im Forum nach Hühnerleiter, Handtuchtrockner oder hydraulischem Abgleich, dann findest du die Details. | ||
| 
 | ||
| Ist ein Kompaktwagen zu klein? Ohne weitere Angaben ist das wohl schwer zu beantworten. Gibts Kinder oder sind welche geplant? Dann würde ich eine Badewann vorsehen und dafür ist das Bad dann recht klein. Falls die Erwachsenen gerne baden möchte, würde ich auch eine Badewanne vorsehen, also eigentlich immer. ;) WC würde ich auf jeden Fall als separaten Raum machen...oder möchrtest du am WC sitzen, während eine andere Person gerade duscht? Für mich ist ein Bad auch ein "Funktionsraum", wir haben unser 9m² Bad aber trotzdem barrierefrei und mit Badewanne und Doppelwaschbecken geplant. | ||
| 
 | ||
| WC ist Vorgabe (alter Anschluss)   | ||
| 
 | ||
| Wir haben jetzt eine Badewanne und benützen sie eingentlich nie 2 Erwachsene Hauptbad (evtl. 2 Enkel auf Besuch :) ) WC separat steht zur Diskussion- danke | ||
| 
 | ||
| Dh: Alternativ elektrische Hühnerleiter? oder? | ||
| 
 | ||
| Das wäre eine Möglichkeit. Man kann auch aus dem Warmwasserspeicher einen eigenen Heizkreis mit deutlich höherer Temperatur fahren, das wäre zumindest etwas effizienter. Wenn ihr nicht unbedingt vorgewärmte Handtücher braucht, tuts auch ein einfacher Haken 😉 Also ich persönlich würde das Geld lieber in eine richtig dimensionierte Wand- und Deckenheizung stecken. Wobei wir hier von einer Sanierung sprechen, wie mir gerade klar geworden ist. Da muss man unter Umständen anders vorgehen. Für die Heizung würde ich einen eigenen Thread aufmachen. | ||
| 
 | ||
| Unser Bad hat 12m² ohne WC, mit großer Badewanne und begehbarer Dusche. Das WC hat 4m². Wir wollen auch im Alter noch bequem ins Bad kommen. Die Tür und alle anderen Bewegungsbereiche haben eine Mindestdurchgangsbreite von 90cm. | ||
| 
 | ||
|  Hier unser Bad 194x 350. Dusche 1mtr, WT 160 und fürs WC bleibt a noch knapp 1mtr. Gegenüber WC sind hohe Schränke mit Stauraum | ||
| 
 | ||
| Wir haben keine Badewanne und vermissen sie nicht. 2 Kinder - 4 und 1,5 - und auch mit ihnen / für diese ist's kein Problem. Klar planschen die in dem Alter gern, aber für 8 Jahre planschen ist es mir der Nachnutzungszweck als Gewandablage dann doch zu aufwändig. Wir haben auch das WC im Bad. Waren damit zu Beginn nicht zufrieden, mittlerweile find ich's ganz praktisch. Sofern also ein zweites WC im Haus ist sehe ich das nicht als Problem. | ||
| 
 | ||
| @Hühnerleiter (wär übrigens a spitzen Username 🤣🤣) bei @leito99: Vielleicht solltest du bei solchen Reizwörter hier auch immer dazusagen, dass du eine Pelletsheizung hast und du sanierst. Denn allgemein geht man in diesem Forum eher von einer WP WP [Wärmepumpe] aus. 😉 | 
                
Beitrag schreiben oder Werbung ausblenden?
                 Einloggen
 Einloggen
                 Kostenlos registrieren [Mehr Infos]
 Kostenlos registrieren [Mehr Infos]
                

