Angebot Neubau Ziegelmassiv
|
|
||
|
Fundament
17.049,67 € da brauch ich gar nicht weiterlesen.... uns mit den Worten meines Vaters zu sagen... "Bist du deppert"
Ich glaub es gibt hier schon genut Beiträge, wo du gute Richtwerte hast, aber bei den Summen bauen andere ein ganzes Haus... ....fertig.... und ned nur den Rohbau... p.s. wenn ich das alles nur für die Platte zusammenrechne, komm ich da auf einen 30er... Da stellt sich schon die Frage, ob die gute Firma das ernst meint... |
||
|
||
|
du hast aber schon gelesen welche bebaute Grundfläche der TE hat? |
||
|
||
|
Hmm, da ist was mit der Formatierung schief gegangen. |
||
|
|
||
|
||
|
hätte mich jetzt auch nicht soo geschreckt wenn man die fläche berücksichtigt...
woher deine aussage teslason? |
||
|
||
Ich würd meinen nicht nur mit der Formatierung |
||
|
||
|
Nochmal richtig formatiert
|
||
|
||
|
Grundriss - Stimmt nicht mehr ganz, Wohn/Essraum ist ein wenig kleiner geworden und Erdkeller ist jetzt Technik. Oben anschließend an "Erdkeller" ist das Carport und östlich neben Carport ist das Überdachte Lager (aus Holz) welches bis zu Gartengeräte + Lager runter reicht.
|
||
|
||
|
ah das war nur fürs haus ^^
also nur als beispiel hab mal kurz nachgesehen: bei uns hat der m³ beton c25/30 rd. 84 € gekostet (netto) sauberkeit c20/25 kam bei uns auf 77 €/m³ Hast du keine Dämmung unter der Platte? |
||
|
||
|
Der Betrag ist für Haus, Carport und Nebengebäude und überdachtes Lager. Haben das Angebot noch nicht besprochen. In unserer Aufbautenbeschreibung sind 24cm XPS drinnen, hab ich aber auch bisher im Angebot vermisst. |
||
|
||
|
Erfahrungswerte, da Haus schon gebaut...
Ja, hab selbst 120m² Grundfläche + 50m² Garage |
||
|
||
|
Hab mal eben in ein Angebot eines unserer Bestbieter reingesehen, da stand zB für:
Herstellen Ziegelmauerwerk 25er HLZ inkl. Gerüstung und Überlager: € 58,00/m2 (unverhandelt). Wenn ich das hochrechne könnte es somit sein, dass es da locker 15-20 % Luft gibt. Vl hast gerade einen BM erschwischt, der ein gut gefülltes Auftragsbuch hat. Genau wirst du es nur erfahren, indem möglichst viele Angebote eingeholt werden oder du eine professionelle Ausschreibung machen lässt. |
||
|
||
|
spätestens bei dritten hast du einen guten Überblick....
bei uns lagen zwei sehr eng beisammen. Fast genau die selben Preise bei den anderen gab es dann doch deutlich Unterschiede (nach oben) |
||
|
||
|
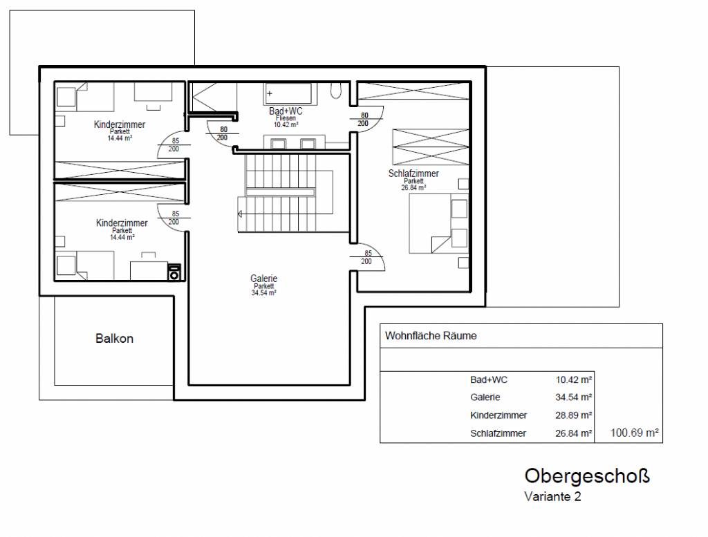
Würde auch 3-4 Angebote einholen, dann hast einen brauchbaren Querschnitt. Sind die 132k für den Rohbau also Netto? Vielleicht könntest du uns noch das OG posten :) |
||
|
||
|
Haben bei 4 BM um ein Angebot angesucht, haben aber erst eines bekommen. Denke das es danach sicher leichter wird. @Miike, wie lange ist es her das du gebaut hast? |
||
|
||
|
132k sind Netto.
|
||
|
||
|
Wir haben die Preise 01/2014 verhandelt und fixiert.
Nachlesen kannst hier: http://www.energiesparhaus.at/forum/32771_6 Wir sind übrigens ähnlich katastrophal in die Angebotsphase gestartet. |
||
|
||
|
hallo,
wir sind auch gerade in der Angebotsphase mit ca. der gleichen m² Anzahl und so ein günstiges Angebot haben wir noch nicht bekommen, auch wenn euer Angebot älter ist. würdest du mir die Firma verraten? bzw auch mit wem ihr dann gebaut habt? gerne auch pn danke lg Tanja |
||
|
||
|
nur mal so als vergleich, ich hab nen bungalow mit 150 m2 wnf ca 187 m2 bodenplatte, dazu noch 72 m2 bodenplatte für garage, ca 50 m2 platte terasse, nochmal das selbe elementdeckn, gebaut mit 50er ziegel dryfix und garage 25 gemauert.
280 m2 walmdach und 72 m2 flachdach. der rohbau mit dach und erdarbeiten hat mich die hälfte gekostet was du als angebot hast, brutto. ist zwar nicht 1:1 vergleichbar aber trozdem finde ich deins n bisl teuer |
||
|
||
|
wenn ich mir den grundriss anschau, schreckt mich das nicht wirklich. |
||
|
||
|
Wir haben dann günstiger gebaut, jedoch nicht mehr mit einem GU sondern alles selbst ausgemacht und die Baustoffe direkt beim Baumarkt und von einem Baumeister die Arbeit machen lassen. |
Dieser Thread wurde geschlossen, es sind keine weiteren Antworten möglich.Nächstes Thema: Fix pin - geflämmte bodenplatte
