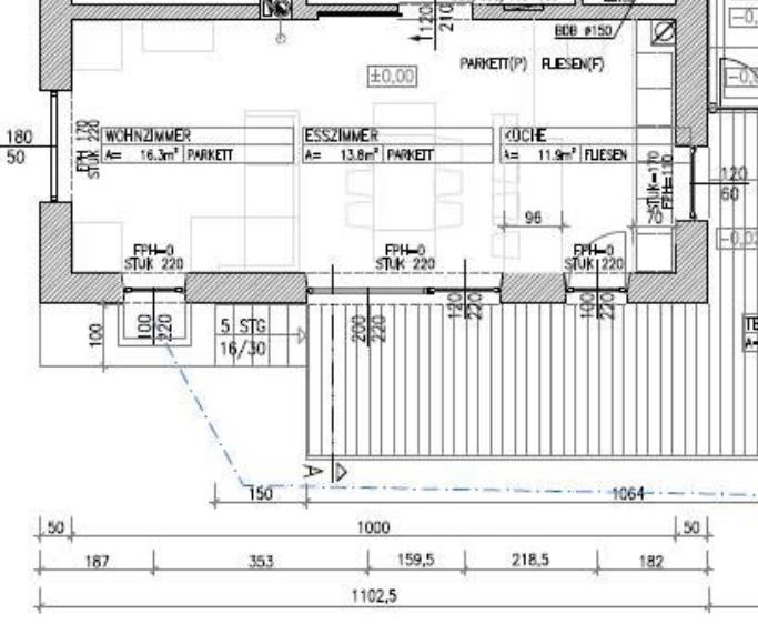
10m Breite für Küche, Wohn- und Essbereich ausreichend?
|
|
||
|
Esstisch an der Insel anschließen kommt nicht in Frage? |
||
|
||
|
Ich finde eine Bank bzw. eine Eckbank immer gemütlicher als mitten im Raum, gerade bei so großen Fensterflächen - quasi in der Auslage - zu speisen. |
||
|
||
|
Wenn's mein Raum wäre würde ich die Kücheninsel auf das Maß der Sitzbank vom Esstisch verbreitern und die Essgruppe direkt an die Küche anstellen... Eventuell wäre ein quadratischer Tisch auch eine Option |
||
|
|
||
|
||
|
Wir haben genau 10m und finden es überhaupt nicht beengt. Sind mittlerweile zu viert und wohnen schon seit über 7 Jahren so. Der Esstisch ist bei uns 160 x 100 und die Stühle sind wenn unbenutzt immer unter den Tisch geschoben. Aber auch wenn wir essen oder Besuch da ist, ist es nicht eng sondern eher gemütlich. Klar, eine riesen Party mit vielen Leuten können wir im Koch-/Ess-/Wohnbereich nicht feiern, dafür haben wir eine große überdachte Terrasse und den Garten. Wir hätten auch L-förmig machen können, haben uns aber lieber für ein zusätzliches (Gäste-)Zimmer im EG entschieden. LG ![]() ![]()
|
||
|
||
|
Mein Bruder hat es genau so - mit Küche, Ecksitzbank an der Halbinsel, dann Tisch, dann Tür, dann WZ. Ist insgesamt recht "eng", da die Tiefe für den Tisch fehlt (200cm max Länge und dann blöd wegen Durchgang zur Küche). Sitzbank ist für Erwachsene aus meiner Sicht auch ein ewiges Schlurfen, bin nicht der Fan davon, spart aber massiv Platz. In Summe sicher ausreichend, va, wenn Tiefe ausreichend ist. Großer Tisch wird aber generell problematisch, da er den Gehbereich blockiert - wenn ihr so etwas wollt. Wir haben einen 240*100 Tisch, der braucht schon Platz. LG |
||
|
||
|
Eventuell einen runden Tisch nehmen ? |
||
|
||
|
Ist nicht so mein Fall, wäre aber eine Überlegung wert, wenn es gar nicht anders geht. |
||
|
||
|
Ohhh danke! Da bin ich etwas erleichtert, da wir auch zu viert sind und genauso sind wir am überlegen, weil wir bei einer l-form das Gästezimmer opfern müssten. Hast du vielleicht noch fotos? Wäre sich da eine "freie" Insel ausgegangen? Wie lang ist bei euch der Raum? |
||
|
||
|
Wir haben nur 4,2 m Tiefe. Eine freie Insel wäre sich daher nicht gut ausgegangen bzw. wäre sie uns sonst viel zu klein gewesen. Wir haben ja auch keine Speis und müssen alles in den Küchenschränken unterbringen 😅. Bilder z.B. von der Küche findest du in meiner Galerie. LG |
||
|
||
|
Oder vielleicht Insel und Esstisch kombinieren. So schaut das bei uns aus. Wir sind begeistert und würden nichts anderes haben wollen.
|
||
|
||
|
Schaut auch toll aus! Ich hätte es aber schon lieber getrennt von einander und die sitzbank würde nicht gehen, weil wir die großen terassentüren wollen. |
||
|
||
|
Ok wir haben 4,5m und die freie Insel wär mein Traum, wie groß ist eure? Wir haben noch einen kleinen Speis und Abstellraum von dem her müsste nicht alles nur in die Küche. Und wie groß ist die Terassentür beim Esstisch? im Plan hätte ich 2,20m gelesen die schaut aber auf dem Bild größer aus? Würde sich bei euch ein 2m Tisch ausgehen? Oder wärs dann schon zu eng? Tolles Haus habt ihr! LG |
||
|
||
|
Danke! 😊 Unsere Insel ist 2,25m lang und der Barteil steht dann noch einmal 45cm über. Wenn du nur hinten eine Küchenzeile hast, die nicht ums Eck geht, dann würde ich sagen geht sich bei dir locker eine mindestens 2m lange freistehende Insel aus. Die Terrassentür hat 3,20m. 2m Fixteil und 1,20m Schiebeelement. Auf Dauer wäre es mir mit einem 2m Tisch zu eng denk ich... Unseren Tisch können wir auf bis zu 2,40m verlängern, haben wir aber noch nie gemacht 😊. Ihr habt ja 30cm mehr Raumtiefe, da müsste sich ein 2m Tisch auch gut ausgehen. Ich würde aber nur schauen, dass ich Sessel dazu kauf, die man gut reinschieben kann unter den Tisch. LG |
||
|
||
|
@BK1982 Sehr schöne Lösung - wunderbarer Ausblick und genau der richtige Beitrag um katarina die Größenverhältnisse zu zeigen 👍 @Webs Komplett anders - eine interessante Idee. Wirkt alles sehr hochwertig. Ihr habt auf jeden Fall eine sehr praktische Lösung mit extrem kurzen Wegen und gleichzeitig enorm viel Arbeitsfläche! @katarina Einfach genau überlegen wie ihr gerne sitzen möchtet. Vor allem ob euch mitten im Raum stört oder angenehm ist. Jeder möchte es gerne ein wenig anders. Wichtig ist, dass ihr euer Wohlfühloptimum findet. Ich fand es auf der Eckbank in der Wohnung gemütlich, möchte das aber nicht mehr eintauschen. Wir haben den Tisch jetzt vor einer Fixverglasung, der hellste Patz im Haus. Uns stört es nicht in der "Auslage" zu sitzen. (Edit: Es gibt viele Leute, die sich so nicht wohl fühlen. Ich vermute mit dem Auslage sitzen, sind wir eher Ausnahmen, sicher bin ich aber nicht). Wenn dort direkt eine Straße vorbeiführte, wäre das anders. Bei uns ist Küche und Essbereich L-förmig (bedingt durch Speis und Bad). Unsere Küche ist viel kleiner, sprich wir haben keine freistehende Insel. Für euch selber muss es passen und an eure Tagesabläufe angepasst |
||
|
||
|
Also wir haben aktuell im Haus ebenfalls einen offenen Raum mit 9,8x4,2m. Da geht sich schon alles ganz gut aus mit Küche samt frei stehender Kochinsel, relativ großer Wohnlandschaft. Der Esstisch dazwischen hat für den Alltag für 6 Personen Platz, ausziehbar für 10 Personen ist möglich, dann wirds aber schon relativ kuschelig. Ist natürlich eine individuelle Sache, aber im Neubau werden wir ein abgetrenntes Wohnzimmer ausführen, nach 8 Jahren mit der aktuellen Lösung fehlt uns etwas die Rückzugsmöglichkeit. |
||
|
||
|
Vielen Dank für die Antworten, ich tu mir einfach schwer das vorzustellen anhand des Planes wieviel Platz da letztendlich wirklich bleibt zwischen den Möbeln. @shan und @newHome wie ihr schon sagt ist das ja sehr individuell, für uns passt grundsätzlich der offene Grundriss wir leben zurzeit in der Wohnung auch offen nur anders verwinkelt. Rückzugsmöglichkeiten sind für uns die jeweiligen Schlafzimmer. Im Wohnbereich machen wir alles zusammen und wollen uns auch während dem Kochen unterhalten können. In der Auslage sitzen wir auch nicht da wir einen schönen Ausblick auf Felder haben deswegen auch die großen Terassentüren. @BK1982 nicht so schön wie bei dir, aber das ist doch traumhaft von jeden Bereich so einen Ausblick zu haben. Falls noch jemand so einen Grundriss hat würd ich mich über Fotos freuen wie das bei euch aussieht. Mir geht es hauptsächlich um die 10m Breite. |
||
|
||
Wir haben sehr änlichen Grundriss im grossen Wohn/Ess/Küchenbereich aber wohnen noch nicht drinnen. Sind noch am Bauen. Die Innenmaße sind ein bissal mehr mit 10,5 x 4,5 Meter und die freistehende Kücheninsel hat 2,26 x 1,12 Meter. Da hat man zum vorbeigehen noch genügend Platz. Wir werden auch in der Auslage sitzen, was aber nicht stört da keine Strasse vorbeigeht. Aufgrund ![]() der südseitigen Ausrichtung ist der ganze Raum von früh bis spät sonnenduchflutet. Als Rückzugsmöglichkeit haben wir im OG ein Sitzfenster. Also noch keine praktischen Erfahrungen aber es passt perfekt für uns. Habe es gefühlt 100x ausgemessen 😁 Lg ![]() |
||
|
||
|
@LukasH Dankeee!! Das zeigt mir wieder wie sehr mir der Plan eigentlich gefällt, nur man hat doch immer Angst etwas nicht zu beachten oder dass es dann am Ende in echt anders aussieht als man sich das vorgestellt hat. Darf ich fragen wo da bei euch der Fernseher hinkommt? Wollte die Couch ursprünglich auch so plazieren, aber wo kommt der dann hin wenn da Terassentüren oder Fenster sind? Die Küche ist ja toll! Wollt ihr überall Holzboden? Da es ja alles ein Raum ist kann man schwer verschiedene Böden verwenden. |
||
|
||
|
Ja das Gschichtl mit dem Fernsehr hat auch ewig gebraucht. Aus dem Grund werden wir auf Beamer umschwenken und das Wohnzimmer verkommt nicht zu einem reinen Fernsehzimmer. Fernsehr würde vor dem grossen Eckfenster zumindest von aussen aus doof aussehen und würde wieder die Aussicht nach draussen schmälern. Die Leinwand soll südseitig runterfahren, so wirkt es aufgeräumt wenn man nicht kuckt. Wir haben einen Hund. Hinter dem Küchenblock wo man kocht und viel Rumsaut nehmen wir Fliesen. Im restlichen Raum Holzboden (Eiche) |
||
|
||
|
Ich bin immer wieder erstaunt wieviel Fläche für Küchen geplant werden, die dann im Verhältnis wenig Arbeitsfläche bieten. Bitte nicht falsch verstehen, bin optisch ein absoluter Fan von Inselküchen. Wenn dann aber dafür der Esstisch mitten im Raum steht und quasi alle Gehwege um diesen herum führen müssen, dann finde ich das zumindest überlegenswert. Unsere Küche hat etwa 10m2 (G-Küche) und 3,40 lfm Arbeitsfläche. LG |
||
|
||
|
Hätte in dem Thread jetzt noch keine Küche mit extrem wenig Arbeitsfläche gesehen. Btw die 3,40lfm kommen mir jetzt auch nicht soo viel vor oder wie rechnet man das eigentlich "offiziell"? Wird da spüle und Kochfeld abgezogen? Wie wird bei der Insel gerechnet? |
Dieser Thread wurde geschlossen, es sind keine weiteren Antworten möglich.





