KWL planung bei Sanierung
|
|
||
|
super!
wickelfalz 125 ...
wir planen das ganz ähnlich - ebenfalls sanierung, ebenfalls in abgehängter decke im flur eg ... |
||
|
||
|
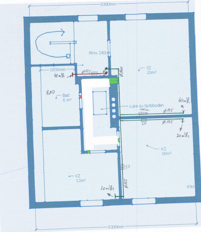
Hallo Bin auch am sanieren und plane KWL KWL [Kontrollierte Wohnraumlüftung] allerdings habe ich mich eher auf die 75mm Kunststoffschläuche eingeschossen (irgendwie gibts da mehr und einfachere möglichkeiten und Zubehör finde ich) Finden deinen plan etwas schiwerig zu lesen, man sieht teilweise die Türen nicht .... wie hast du das überströmen bei den Türen geplant? Deine Fortluft und Abluft geht am gleichen Ort aus dme Haus raus? als Interesse ... Welche Rohre und Abzweigungen verwendest du genau? |
||
|
||
|
Hallo, Türen sind eigentlich immer iffen bzw haben unten 1 cm luft, da kommt genug durch. Abzweigungen: spiro-T-stücks mit dichtlippen. Fortluft und ansaugung sind höhenversetzt ca. 70cm |
||
|
|
||
|
||
|
Ah okey, ich überlege bei meinen türen zusätzlich die Zargen oben anzufräsen. und im Schlafzimmer eine PLANET MinE-S einzubauen. |
||
|
||
|
Beim Sanieren ist die KWL KWL [Kontrollierte Wohnraumlüftung] vom Rohbau nicht eingeplant gewesen, daher ist man meist mit den 75mm-Kunststoffrohren im Vorteil, weil es läuft immer in Richtung der Lösungsidee dass man nur beim Flur die Decke abhängt. Wenn man dort aber zB 2,7m Raumhöhe hat kann man auch mit Spiro-Rohre arbeiten, wird aber planerisch herausfordernd. Ich würde statt klassische Telefonie-Schalldämpfer Luftverteiler mit integrierten Schalldämpfer nehmen, einfach um Platz zu sparen. Ich meine, die Planung passt schon soweit - ich würde allerdings die KWL KWL [Kontrollierte Wohnraumlüftung]-Zentrale nicht in so ein großes Zimmer stellen weil der Nutzungszweck des Zimmers auf ewig als Nicht-Schlafraum definiert bleibt. Ich weiß, mein Vorschlag klingt vielleicht etwas eigenartig aber trotzdem: Ich würde die KWL KWL [Kontrollierte Wohnraumlüftung]-Zentrale ins Badezimmer geben, Dort einen Schrankverbau. Ideal zB über der Warschmaschine. Beim Sanieren würde ich Frischluft über die Fassade anziehen (nicht so heiß wie am Dach) und Fortluft über das Dach abführen (kann sehr feucht sein und Fassade nach Jahren fleckig werden). |
||
|
||
|
hmmmm Fortluft über Dach klingt zwar gut, aber glaub gerade beim sanieren wird sowas schwierig den Fortluftkanal (Der ja auch nicht gerade klein ist) aufs dach zu bringen. Noch dazu sollten die Frischluft und Fortlluft ja eher sehr kurz sein oder? |
||
|
||
![]() ![]() ![]() fortschritt nach 1Tag Lüftungsbau. Von oben nach unten: -Aussenwanddurchführungen im Büro EG -Leitungen im Flur, ohne Kreuzungen -Leitungsführung im Büro Wird das bei mauerdurchbrüchen rund ums rohr eigentlich nur ausgeschäumt oder braucht man da eine spezielle masse? Ich nehme an, mauerwerkontakt zu rot soll net sein wegen möglicher schwingungen/geräuschübertragungen... |
Dieser Thread wurde geschlossen, es sind keine weiteren Antworten möglich.Nächstes Thema: Steinwolle oder Holzweichfaser WDVS





