Kostenaufstellung Einfamilienhaus 200m²
|
|
||
Wo baut Ihr? Wasseranschluss EVN ist zB 2750. Fliesen für 50 ist wohl ohne Verlegearbeiten? Asphaltieren für 1500? Oder Fassade für 15000? |
||
|
||
|
Ach da sind einige Punkte etwas grob niedrig geschätzt. Das läppert sich aber leider. Rechne lieber mit 100t+ - oder streich wo runter
|
||
|
||
Jetzt muss ich kurz daran denken als ich meine erste Kostenaufstellung im Forum präsentiert hab...ach war ich naiv
Für Anschlussgebühren: NACHFRAGEN. Die Preise die hier im Forum stehen kannst auch nicht hernehmen. BGR schreibt 2750€ bei der EVN, bei mir sinds aber laut schriftlicher Auskunft genau 1672€ (ebenso EVN )
Was aber sicher ist: du hast zu wenig kalkuliert! Keller: da hast ja schon ein Angebot, aber da fällt der noch nicht raus? Wahrscheinlich wegen der Hanglage, oder? Wir haben ihn aufgrund eines ähnlichen preises sofort gestrichen und Ebenerdig für mehr Platz gesorgt - für uns die besser Lösung (weniger Treppen ). Satteldach: Ich hab eine Geschossfläche von 95m² und die ersten unverhandelten Angebote pendeln sich bei ~25.000€ gesamt ein - allerdings mit Giebel. Deins ist "einfach" aber dafür muss eine Geschossfläche von 105m² überbaut werden. Wird also vom Preis her nicht viel anders sein wie meins. Vielleicht etwas Reserve einplanen. Fürs Flachdach ebenso noch Reserven einplanen! Bodenbeläge sind mM nach schwer zu kalkulieren. Ich hab da sicher auch noch immer zu wenig kalkuliert, aber da gibts von 20€ bis 200€ / m² alles. Da der Belag aber eh am Ende des Hausbauens kommt (naja...), kommt hald das rein was sich ausgeht bzw. was wir uns leisten wollen. 15€/h für einen Arbeiter? Das geht sich nichtmal steuerschonend aus mM nach. Rohbauversicherung ist im Normalfall kostenlos. Notar geht auch sicher um an 1000er günstiger (vergleichen!, da gibts teilweise Unterschiede von 1500€ für einen dämlichen Kaufvertrag!) |
||
|
||
| Hallo Casemodder, kostenlos und unverbildlich kann man das auf durchblicker.at vergleichen, geht schnell und spart viel Geld. | ||
|
|
||
|
||
|
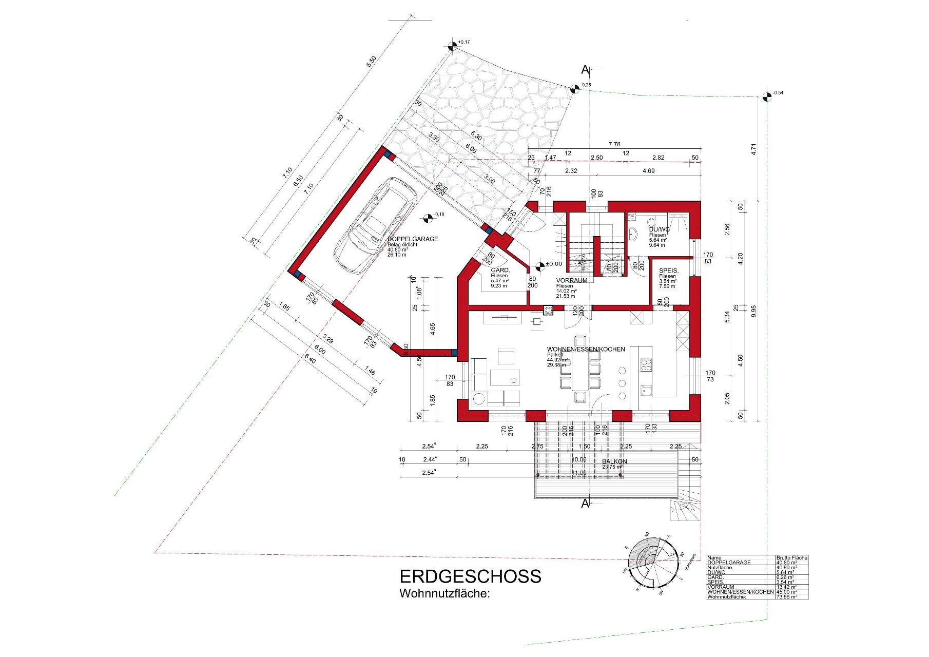
Der Rohbau kommt mir sehr günstig vor. 105.000 Euro für Keller + 2 Geschosse?
Ist da die Garage auch schon dabei? Die konnte ich nicht als extra Posten finden. |
||
|
||
|
Ah, jetzt seh ichs erst 105.000€ für den kpl. Rohbau...verdammt, das ist unglaublich günstig!! Baukoordinator kannst auch eher mit 2000-3000€ rechnen. Gleichenfeier? Verdammt, hab ich in meiner Budgetplanung glatt vergessen |
||
|
||
|
anschlusskosten für wasser und kanal häng jeweils ne 0 drann an deine 500€. geh zur gemeinde und hohl dir m2 preise.
verpflegung ist auch n bisl was, wir hatten in 8 wochen ca 1500€ für essen und getränke verbraucht. immer 5-10 mann auf der baustelle |
||
|
||
|
Mir kommen auch die Türen so billig vor und wie schon angemerkt wurde Helfer um 15€/h gibt's nicht mehr oft. Würde da eher mit 20-25 rechnen. Bei den Belegen ist das mit Arbeitszeit? |
||
|
||
|
Ich finde ihr geht es falsch an.
Nimm alle Kosten die du so hast, dann nimm die Obergrenze und schlag nochmal 10% auf. Wenn du dir dann alles leisten kannst, hast nie eine schlaflose Nacht. Lieber zuerst Negativ sein und später merken dass es um paar Hunderter billiger wird und es bleibt Budged über für weitere Dinge. Bei euch wird es am Anfang super aussehen und dann kommt das Erwachen und dazwischen schlaflose Nächte. Nehme ich mal an. Der Rohbau ist ja echt ein Schnäppchen. Sehr merkwürdig. Die Anschlußkosten machen mich extrem stutzig. Bei uns : Strom war 4.900€ Kanal war 3.300€ Wasser wäre 4.200€ (haben lieber einen Brunnen gemacht) Frag mal lieber nach. Kannst auf der Homepage von der Gemeinde auch finden was die Kosten pro m² sind oder Pro Person bzw. wie es abgerechnet wird. Bei Grabungsarbeiten ist nur das Baggern für Haus drin oder auch die Künetten für Kanal und Strom etc.? Weil Energienetze verlangen nur für das EINLEGEN und Anschließen am Masten die 5k. Die kommen nicht mit Schaufeln :) |
||
|
||
|
Erstmal vielen Dank für euren zahlreichen Antworten.
@ BGR wir bauen in Oberösterreich, Urfahr Umgebung. Auf wie viel schätzt du die Asphaltierung der Zufahrt? Oder die Kosten bei Verlegung von Steinen lt. zweitem Bild? Fließen für 50 ist ohne Verlegung und geht daher meiner Meinung nach auch noch günstiger. Kann jemand die Kosten der Fassade abschätzen? Ist ja nur der Außenputz ohne Vollwärmeschutz? @ Casemodder OK, ich werde die Kosten im Vorfeld anfragen. Aber was kostet hier soviel? Das Grundstück ist voll aufgeschlossen. Die Anschlüsse für Strom, Wasser und Abwasser sind alle bereits auf unseren Grundstück vorbereitet. Keller war aufgrund der Hanglage fast zwingend notwendig. Anschütten war aufgrund Bebauungsplan nicht möglich. Wir hätten zwar nur zweistöckig Bauen können, haben uns aber aufgrund des sowieso schon eher kleinen Grundes dagegen entschieden da wir sonst noch weniger Gartenfläche hätten. Beim Satteldach ist der Dachstuhl ohne Holz und Arbeitszeit gerechnet. Ich denke wenn ich das dazurechne würde ich auch auf 25.000 kommen. Hat jemand ein Angebot über ein ähnliches Flachdach. Sind hier 8000 unrealistisch? Wir möchten es ohne Eigenleistung über eine Firma machen (Gewährleistung ist uns beim Flachdach besonders wichtig). Uns wurde von der Baufirma empfohlen, auch Bauhelferversicherungen abzuschließen. Diese werden nicht bei der Rohbauversicherung inkludiert sein? @ DITC101 und Casemodder Ja 105.000 ist mit den zwei Geschossen und der Garage. Jedoch ohne Dachstuhl und Dacheindeckung. Ist mit einer geplanten Rohbauzeit von 7 Wochen und einem Vorarbeiter gerechnet. @ Twenty Eine Tür um 400-500 Euro ohne Arbeitszeit sollte meiner Meinung nach nicht unrealistisch sein. Lasse mich aber gerne eines besseren belehren. Hat jemand die Preise für den Einbau einer Innentüre über eine Firma? @ BozM Wie soll ich alle Kosten nehmen die ich so habe? Die muss ich ja vorher abschätzen oder ermitteln. Die Anschlusskosten waren nur geschätzt und sind wie schon in den vorherigen Beiträgen geschrieben wahrscheinlich viel zu niedrig angesetzt sein. Ja die Künetten für Strom und Wasser etc. würden wir schon bei den Baggerarbeiten mitmachen. Es ist bereits ein Schacht für Strom, Wasser und Schmutzwasser auf unseren Grund gesetzt. Das einlegen und Anschließen an den Masten müsste also wegfallen. LG, Alex |
||
|
||
|
Wenn dir jemand eine Preisspanne gibt... zwischen 1000 und 1500€ für ein Gewerk. Dann rechne mit 1500 und schlage noch 10% drauf oder sogar 15% um eine echte Schattenrechnung zu haben. Dann wird dich die Zahl am Anfang vielleicht schockieren aber zumindest wird dich dann kein "böses Erwachen" treffen. So hab ich das gemeint. Das haben wir auch gemacht. Es kommen in der Bauphase immer noch zusätzliche Ideen und Wünsche, die am Ende auch gleich paar Tausender ausmachen, und diese Schattenrechnung gibt dir dann auch ein gewissen Puffer, für flexible Wünsche. |
||
|
||
|
Neben den bereits gegebenen Ratschlägen noch ein kleiner Tipp:
Falls du luftdicht bauen willst und dir der U-wert wichtig ist, dann wird die Brandschutztür von der Garage ins Haus kein Schnäppchen. Liegt dann bei 1500-2000€. Und falls in der Einrichtung nicht enthalten - auch Vorgänge, Plissees können ganz schön ins Geld gehen... Alles Gute! |
||
|
||
|
@ Alex Darf ich fragen mit welchem Bauunternehmer du den Rohbau errichten willst. Komme selbst aus UU, jedoch wirds bei uns erst in gut einem jahr losgehen.
Lg |
||
|
||
|
Ok, danke für eure Tipps. Schreib mir deine Mail Adresse, dann kann ich dir nähere Auskünfte geben. LG |
||
|
||
|
Danke vorab. Lg |
||
|
||
|
Hausplanung - Mich wundert immer wieder, dass Häuser mit Kosten bis weit über 0,5 Millionen Euro locker geplant und auch ausgeführt werden. Für Planung, Projektplanung, Ausschreibung und Projektüberwachung jedoch nicht einmal 1% der Bausumme angedacht und auch aufgewendet werden.
Kein Wunder, dass am Ende das Ergebnis meist anders ausfällt als angedacht.
|
||
|
||
|
Nachdem der Planer immer ein halbes Jahr braucht bis er antwortet... |
||
|
||
|
Wenn ihr dran bleibt und die restliche Positionen klärt seid ihr sicherlich am richtigen Weg.
Anschlusskosten, Fliesen und Parkett fertig verlegt, Malen und Spachteln sind Themen die ihr euch nochmal genau anschauen solltet. Retentionsbecken, Wohnraumlüftung, Kamin sind 3 Punkte die man sich ebenfalls anschauen könnte falls es schlussendlich mit den Kosten alles viel zu knapp wird. Es ist halt einfach ein Unterschied ob ich mit 150qm Wohnfläche auskomme oder 200 brauche. Wir haben uns für weniger qm entschieden und dafür mehr in die Qualität vom Innenausbau gesteckt (Böden, Fliesen, Einrichtung) - war für uns die beste Lösung. Aber da ist jeder anders... Wenn es 200qm sein MÜSSEN, dann muss man bei gewissen Punkten einfach sparen. Den besten Vergleich liefern dir noch immer die Firmen die sich hoffentlich gegenseitig ein bissl Konkurrenz machen. |
||
|
||
|
Wir bauen ebenfalls in uu und haben mit sehr viel Eigenleistung und 250qm ein sehr ähnliches Budget.
Bei uns steht gerade der Rohbau mit Dach und wir sind sogar unter dem kalkulierten. Da die Baufirma ebenfalls mit 7 Wochen angeboten hat (nur ein Polier) und wir aber schon nach 5 Wochen den Dachstuhl drauf hatten. Die kann ich nur weiterempfehlen! Heuer gab es im Mai gwasi keinen Regentag! Ich finde das die kalk realistisch ist wenn man vieles selber macht. wenn du mir deine mail Adresse gibt's , schick ich dir gerne meine kalk zum Vergleich. |
||
|
||
|
Was mir gerade noch aufgefallen ist.
Woher bekommt ihr die Fenster um 16t inkl Montage. Meine Angebote sind bei 25t ohne Montage? Bitte um rasche Info ich muss diese bald bestellen! Danke |
||
|
||
|
Haltet ihr das wirklich alle für günstig??? Teilweise geht das WESENTLICH billiger.
OK, ein paar Positionen sind vielleicht zu billig angesetzt, wie z.B. die Fenster. Aber ansonsten??! Oder wird hier kein Handgriff selbst getätigt, und alles von Firmen erledigt? |
||
|
||
|
ich würde sagen das ist sehr realistisch eingeschätzt, da hatten wir in letzter zeit öfter threads wo man den TE die augen öffnen musste und sagen das geht so nicht
lieber am ende 10.000 übrig wobei das gibts eigentl. nicht da findet sich immer was was man noch will also das man 100.000 nachfinanzieren muss oder jahrelang auf einer baustelle leben |
Dieser Thread wurde geschlossen, es sind keine weiteren Antworten möglich.





