Planung FBH - Kreislängen
        
  | 
           
  | 
||
| 
Noch ein Hinweis. Im EG haben wir zwei Verteiler weil KÜ/EZ/WZ auf der unteren Ebene des Halbstocks liegen...                          | 
||
           
  | 
||
| 
  wenns eben richtig ausgelegt ist sollte eine einzelregelung eigentlich komplett überflüssig sein.  | 
||
           
  | 
||
| 
Vielleicht hab ich mich falsch ausgedrückt.
  Wir haben keine Einzelraumregelung... Ich meinte, wenn man irgendwann mal einen Kreis anders haben möchte und ihn dann separat regeln will... Per Hand am Verteiler.  | 
||
| 
 | 
||
           
  | 
||
| 
Da drin findest du alles
  http://www.energiesparhaus.at/forum/39756  | 
||
           
  | 
||
| 
  Den Faden kenn ich... Ich tu mir allerdings schwer selber zu entscheiden wo man am Besten anfängt zu optimieren...   
  | 
||
           
  | 
||
| 
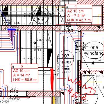
was sind die nummern in den kästchen. ganz oben. also zb 4 und 3 kasternl. og hat nur 1-er und 2-er.
  --- ich habe zb "windfang" (nicht wirklich getrennt) und wc/dusche miteinander verbunden. da ich wc ja sowieso nicht extra regeln möchte. wenn du eben drauf verzichten könntest, einen der räume drosseln zu können, könntest als optimierung eher 100er kreise statt 2x 50er kreisen machen. in eg gibt's 4 räume/kreise, die potentiell optimierbar sind. ansonsten, bei dir scheinen die längen vernünftig zu sein, finde die auslegung ganz gut. im og fällt mir nur der gang auf. der hat den kürzesten kreis aber sehr viel fensterfläche. da könntest den verlegeabstand von 10 auf 7,5 oder 5 reduzieren. aber auch so lassen und ein wenig eindrosseln, wenn dir die temp am gang eh nicht so wichtig ist.. ;)  | 
||
           
  | 
||
| 
  Das ist die Raumweise Durchnummerierung. Essküche 5 Kreise - Nr. 1-5 WZ 2 Kreise - Nr. 1-2 usw. Was bedeutet, dass durch die Fenster viel Wärme verloren geht und du deshalb den Abstand verringern würdest. Richtig? Und das wiederum würde die Kreislänge erhöhen... Im EG werde ich Windfang und WC zusammenfassen. Bei dem Kreis im Stiegenhaus bzw. bei der Halbstocksiege muss ich mal überlegen wie ich da das Niveau überwinde um zusammenfassen zu können.... Danke für deine Tipps.  | 
||
           
  | 
||
| 
Passt zwar jetzt nicht produktiv dazu - aber - finde deinen grundriss ehrlich gesagt großartig !!                          | 
||
           
  | 
||
| 
  Richtig :) --- Achso, das war mir nicht gleich ersichtlich mitbdem großen raum und dem halbstock. Du könntest noch überlegen, zb nr 5 ess/küche durch aufteilen der zuleitungen der 1-4 zu ersetzen. Was ist das für ein raum unter der stiege? Falls du dort eh keine großartige temperatur brauchst, ginge es ev mit va 20 und auch als "zuleitungen" von windfang/wc. Damit wären aber schon 18qm einer hauseckfläche versorgt, was mir dann fast schon zu viel vorkommt. Also doch 2 kreise irgendwie..  | 
||
           
  | 
||
| 
Ich würde auch die Kreise zusammenlegen zb: Windfang und WC und 1 ordentlichen Kreis machen. Den Vorlauf würde ich dazu im WC beginnen.
  Sowie Abstellraum und Kreis 5 im Koch Ess Bereich. Dazu den Vorlauf im Koch/Ess Bereich das Abstellkammerl muss nicht warm sein. Ich habe da nicht einmal einen Kreis rein gelegt.... Ist trotzdem im Sommer einer der wärmsten Räume aber in Winter einer der Kühleren. OG Würde ich im SZ nur 1 Kreis mit ca. 100 - 120m Länge machen. Dort soll es ja Tendenziell etwas Kühler sein oder? Mein SZ ist 19m² groß und es liegen 115m drin. Die Diele würde ich auch mit dem Schrankraum zusammen legen. Und auch hier schauen dass du Richtung 100 - 120m gehst. Den Vorlauf dazu in der Diele. Das alles benötigt zwar etwas Planung. Aber mit ein bissl Glück kannst den nächst kleineren Verteiler nehmen. Und deine Kreislängen sind Hydraulisch eng beisammen und man muss nicht drosseln.  | 
||
           
  | 
||
| 
wie er schön schreibt:
  --- guter einwand  
 ich habe bei mir im keller auch statt 3-fach einen 2-fach eingesetzt. im og nur einen 5-fach statt 6-fach. im eg einen 7-fach statt 8-fach. streber.                             | 
||
           
  | 
||
                               | 
||
           
  | 
||
| 
  Der Abstellraum ist der Stiegenaufgang ins OG  
 Is schwer ersichtlich, ich weis... Die Tür beim Esszimmertisch führt in den Keller. Danke Richard und Brink für eure Vorschläge. Ich werd mich jetzt mal ans CAD sitzen und ein paar Versionen aufzeichnen. Und außerdem nach einer Lösung suchen wie ich mit dem selben Kreis vom oberen Niveau (Stiegenhaus) ins untere Niveau (KÜ/ESS Nr.5) komme...Theoretisch könnte ich ja an der Wand neben der 2m Treppe runter fahren. Das wäre dann FBH FBH [Fußbodenheizung] + Wandheizung kombiniert.  | 
||
           
  | 
||
| 
So schaut die Halbstocktreppe in Echt aus....
  | 
||
           
  | 
||
| 
Hallo Leute!
  Hab mich die letzten Tage mal ans CAD gesitzt und mir überlegt wie ich die FBH FBH [Fußbodenheizung] Schläuche so verlegen soll... Nun hab ich eine Frage. Bei der Auslegung von Kelit sind für das Esszimemr/Küche vier Kreise geplant. Soweit so gut. Die beiden Kreise bei der 6m Fensterfront sind mit einem Verlegeabstand von 5cm und 10cm angedacht. Nun bin ich mir nicht ganz sicher wie das mit den 5cm aussehen soll. Hab mal meinen Entwurf dazu unten angehängt. Stimmt das so? Abstand von der Wand 5 oder 10cm? So sieht der Plan von Kelit aus:  
 Das ist dann meine Interpretation:  
  | 
||
           
  | 
||
| 
genau.
  oder du "zerteilst" die kreise. in fensternähe machst ein mäander vorlauf und den rest in spiral form. ich wollte es zuerst auch so machen, aber dann habe ich einen eigenen "dünnen" kreis entlang der fensterflächen gezogen. kein mäander. wobei das war schon minimale kosmetik. bsp bei den fensterflächen auf va7,5 gelegter kreis, ggü va10 kreisen im restlichen raum.  
 bsp küche. wo die küchenkasteln stehen, ist der rücklauf als eigener kreis mit va~20, die zentrale fläche va10.                            | 
||
           
  | 
||
| 
  Ich kann das auch empfehlen! Randzone VL VL [Vorlauf] Mäander welcher dann übergeht in Schneckenform im Aufenthaltsbereicht! So hast du bei den kalten großen Glasflächen die höhere Fußbodenoberflächentemperatur und dein Raumklima wird Behaglicher! mfg  | 
||
           
  | 
||
| 
  Das könnte dann so aussehen, oder? Habs jetzt lt. Kelit Berechnung mit 5cm und 10cm Abständen gemacht.                            | 
||
           
  | 
||
| 
Mike, schaut super aus!
  5cm Mäander kann man nicht mit jedem System legen. Nimmst du die Noppenmatten und legst selber? Dann geht's, in Richards Faden gibt's Bilder, bei Hannes auch... Vom Verteiler weg würde ich hier unbedingt rückwärts durch die Wand anfahren... Wenn du den Längenraster den du jetzt hier gefunden hast in den anderen Räumen beibehalten kannst wird das eine tolle Auslegung!                            | 
||
           
  | 
||
| 
  Jep. Das wird a schöne Beschäftigung für den Weihnachtsurlaub  .
 Wenn die von Kelit 5cm Verlegeabstand hinschreiben sollte es gehen oder? Wie ist es euch da bei Richard gegangen? Warum? Ich hab mir gedacht wenn ich alle Leitungen von vorne reinfahre (wie gezeichnet) bekomme ich noch eine Temperierung des Kellerabgangs. (Keller unbeheizt) Sprich eine Wärme Barriere von der Stiege rauf... Liege ich da falsch? Da ist eigentlich von Kelit schon fast alles richtig definiert worden. (siehe Eingangspost) Nur ein paar Kreise sind von denen etwas zu kurz geraten. Da werde ich noch optimieren. Mal schauen ob ich überall 100m +/- 10m unterbringe                            | 
||
           
  | 
||
| 
  war meine lieblingsarbeit beim sanieren ...  
 wenn du ja die kreislängen kennst kannst entsprechend runterzwicken und legst den bund locker über die schulter und trittst das rohr mit spezialwerkzeug (crocks) in die noppen... steht ja nicht das system dabei ...  
 mit noppen gehts gut mit tacker tricky mit pex-rohr unmöglich da hat mir der blick aufs ganze gefehlt. bin nicht gewohnt daß bauherren da so weit drinnen sind.  
 du schaffts das!                            | 
        Dieser Thread wurde geschlossen, es sind keine weiteren Antworten möglich.




