Zubau Wintergarten, Keller ohne Fenster?
|
|
||
|
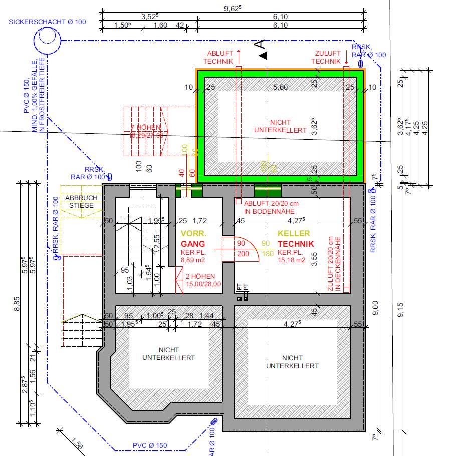
so schaut es aktuell aus
|
||
|
||
|
Zubau Wintergarten, Keller ohne Fenster? - Also ich würde das so machen: - Im Gang ein (einfach kleineres) Kippfenster machen. Vorteil - Du kannst das bei Bedarf auf- oder zumachen und hast Licht im Gang. - Bei der Tür zum Technikraum einen Überströmer. - Im Technikraum eine Zu-/Abluftöffnung. Wenn es geht direkt in der Aussenwand (?) weil da die Öffnungen nach Aussen nicht in der gleichen Windrichtung wären. - Zum Wäschtrocknen eignet sich der Raum aber trotzdem nicht. Gruss HDE |
||
|
||
|
das wird auch so geplant. fällt weg, bleibt nur der Türstock muss ich schauen ob ich das darf (Brandschutz)ansonsten würde ich den weg durch da alte Fenster wählen und dann rechts raus.. ist auch eine Möglichkeit und würde mir das Bohren ersparen. Frage ist nur ob es ein Problem ist wenn die Luft durch 5 Meter Rohr durch muss? das lassen wir dann meine Frau entscheiden ich hätte wenn das ganze mit einer Taupunkt-Lüftungssteuerung vorgesehen gehabt. Erstmals würde ich abwarten wie es sich verhält und danach entscheiden ob ich das wirklich benötigen würde http://www.keller-doktor.de/content/53/43/kellerlueftung |
||
|
|
||
|
||
|
|
Dieser Thread wurde geschlossen, es sind keine weiteren Antworten möglich.Nächstes Thema: Epoxidharzbeschichtung Garage
