Wohnraumlüftung mit Klimaanlage
|
|
||
|
Kwl ist nicht klimaanlage und ich würde die zwei auch nicht kombinieren.
Zur vedeutlichung der menge an luft, die kwl bewegt: bei einem stärkerem wind aussen (50 pascal druck) wird ca. genauso viel luft durch die haus-aussenhülle gedrückt wie die kwl es selbst tut. |
||
|
||
|
Ja, mir ist klar das die KWL KWL [Kontrollierte Wohnraumlüftung] keine Klimaanlage ersetzt, deswegen will ich ja zusätzlich eine(mehrere) machen. Auch beim KWL KWL [Kontrollierte Wohnraumlüftung] Gerät (Hoval Homevent 300) wird das ja dezidiert angegeben, das eine aktive Kühlung nur in Kombination mit einer Klimaanlage möglich ist. Statt Wärmerückgewinnung gibt es dann eine Kälterückgewinnung.
Mir geht es hier um den Aufstellungsort und die Anzahl der Geräte. Also wo ich am besten die Geräte platziere. |
||
|
||
|
bei allen kühlungsmaßnahmen fällt ev. kondensat an und das bedeutet potentiell schimmel. zumindest regelmäßige (nicht einmal im jahr!) reinigung des ganzen kältekreislaufs. mit
und und massiver bauweise brauchst du keine klimaanlage! --- meine eltern haben in der wohnung eine klimaanlage (nachträglich eingebaut) für 2 räume - wohnzimmer und schlafzimmer - also 2x inneneinheit und 1x ausseneinheit. zeige deine pläne her und welchen raum du wie temperieren möchtest. vor allem räume mit viel sonnenwärmeeintrag werden ein thema sein.. |
||
|
|
||
|
||
|
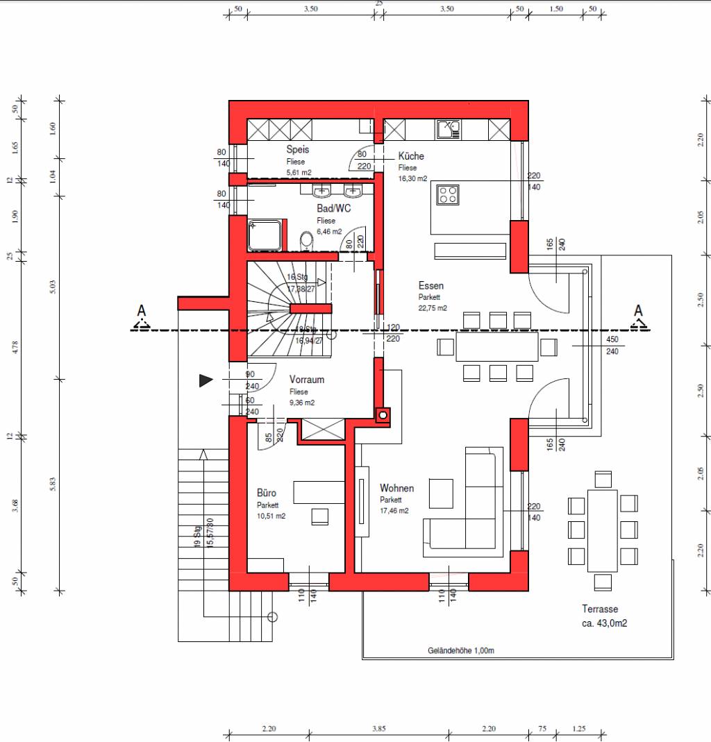
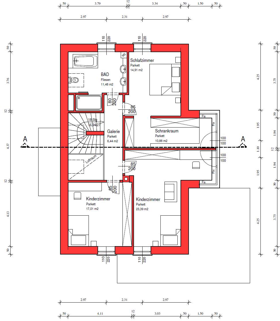
Solange die Leitungen keine andere Temperatur haben wie die Luft, sollte ja kein Kondensat anfallen. Schließe die Klimaanlage ja nicht direkt an die Wohnraumlüftung an. Die Klimaanlage hat ja einen Kondensatablauf. Und daher möchte ich schon eine Abflussleitung vorrichten, sollte ich wirklich eine Klimaanlage benötigen. Wäre fein wenn ich mit der Beschattung und der massiven Bauweise auskommen würde. Gebaut wurde mit 50iger Ziegel mit Satteldach. Südseite ist auf der Erkerseite. Gekühlt soll der offene Wohnraum, das Schlafzimmer und die Kinderzimmer werden. Dort sind natürlich auch die größten Glasflächen. Ein Kollege hat ziehmlich gleich gebaut und hat eine Klima nachrüsten müssen, sonst hätte er es im OG im Schlafzimmer nicht ausgehalten. |
||
|
||
|
Wieso ein Klimagerät?
wie wärst mit erdwärmetauscher für die KWL KWL [Kontrollierte Wohnraumlüftung] + Kühlung durch die fussbodenheizung? Welches Heizsystem hast du? evtl Passive kühlung durch eine EWP möglich? über kondensat würd ich mir keine gedanken machen, wo soll es denn auftreten? die Klimaanlage wird dir den raum sagen wir mal auf maximal 20°C bringen .... das ist nicht so kalt das irgendwo kondensat auftreten wird .... ausser direkt im Wärmetauscher der KWL KWL [Kontrollierte Wohnraumlüftung] wo die warme aussenluft angesaugt wird, aber dort soll es ja auch auftreten und dort gibt es ja einen Ablauf. Selbst wenn es in den KWL KWL [Kontrollierte Wohnraumlüftung] leitungen auftreten würde, würde es maximal im Abluft Schlauch auftreten, und solange deine KWL KWL [Kontrollierte Wohnraumlüftung] nicht beschließt die Richtung zu ändern sollte alles auch da drin bleiben ;) |
||
|
||
|
Als Heizung habe ich eine Erdwärmepumpe mit Tiefensonden. Hab mir auch schon Sole EWT für die KWL KWL [Kontrollierte Wohnraumlüftung] angesehen, welche ich auch direkt an die Tiefensonden anschließen könnte, aber in anderen Threads hier wird ja herumgestritten ob solch ein EWT auch was bringt da die Kühlleistung ja unter 1KW liegt und eine Klimaanlage doch ein Vielfaches leistet.
Kühlung durch Fussbodenheizung muss ich mir nochmal anschauen, hab ich damals nicht weiter verfolgt weil: Geringe Wirkung, Schlecht für die Füße, Kondensatbildung, etc. |
||
|
||
|
du hast relativ wenig fensterfläche und als ausgleich dann die vollverglasung. naja.
ich verstehe zwar die intention, aber im og werden die räume relativ dunkel bleiben. der erker wird im sommer überhitzt. nachteil des 50er ziegels ist, dass er sich unter tag aussen mit wärme "anspeichert". mit vws wäre es weniger das problem. ist halt der in-trend mit monolithisch. ;) du solltest noch eine ordentliche konstruktive verschattung überlegen: vordach, brise soleil, raffs, rollos. würde ich dir abraten. wenn du nicht verschattest und viel kühlst und keine hohen luftgeschwindigkeiten hast, würdest mit tiefen graden in die kwl-rohre reinfahren, die sich dann wie bierflaschen aus dem kühlschrank verhalten würden. aussen an den rohren wäre es feucht. aus erfahrung meiner eltern würde ich dir zur lösung 1 raten, die du auch später nachrüsten könntest. denn: mit konstruktiver verschattung, passiver kühlung (ja, fbh wird nicht den super effekt haben, aber trotzdem), massiver bauweise, vernünftiger anwendung (nicht balkontüre dauernd offen lassen, raffs immer zu halten wenn's draussen schmort), .. wirst keine klimaanlage brauchen. ein paar tage extrem-sommer, wie heuer mit 2-3 wochen 30°+, wirst innen mit 26-27° überleben. |
||
|
||
|
interessant wäre natürlich wer dir sowas einredet ;) wäre auch wieder interessant woher du diese info hast. Aber klar hat sowas weniger leistung als eine richtige Klimaanlage, aber die mehrkosten dafür sind extrem gering, und selbst wenns nur 800W sind, sind es 800W für die ich nur ein paar watt für die Pumpe ausgeben muss, diesen COP bekommt keine Klimaanlage hin ;) ich würd die Klimaanlage erst nachdem ich alles andere ausgeschöpft habe einbauen, ich mein das kannst ja dann immer noch machen. und noch viel besser wäre eine vorgehängte fassade ;) Bier aus den Kühlschrank hat ~6°C ... wenn du die Luft im Stiegenhaus auf 6°C abkühlst hast du sowieso einige Probleme, die KWL KWL [Kontrollierte Wohnraumlüftung] rohre sind da dein geringstes. falls die Rohre z.b. in die decke mit eingegossen werden, werden sie kaum aussen tauwasser ansetzen selbst bei 6°C also ich würd die brink schon sagt vorerst auf die klima komplett verzichten, und schauen das ich mit den "normalen" mitteln wie KWL KWL [Kontrollierte Wohnraumlüftung]-EWT, passive FBH FBH [Fußbodenheizung] kühlung und verschattung durchkomme. Wenn alle Stricke reissen kannst dir noch immer eine Klima einbauen. |
||
|
||
|
Richtig hauslbauer. Bin irgendwie von meiner kwl installation ausgegangen. ;)
Bei kunststoffrohren ist weiters weniger das problem, weil kunststoff selbst isolierend ist. Tempunterschied meinte ich nicht 22 vs 6, sondern 30 vs 15 ;) Ja, ewt wird auch ein bisschen was helfen. (Ich selber habe auf den verzichtet.) Die kühlleistung einer fbh wäre bei 2-3 kw. Blöd nur, dass die kälte unten bleibt. Besser wäre eine deckenkühlung. Aber das ist dann wohl zu übertrieben/teuer. Überlegenswert wäre noch wandheizung/kühlung, direkt mit fbh gekoppelt. Die wände sollten dann nicht komplett durch schränke verdeckt werden. Die wandkühlung hättest du dann viel günstiger im betrieb. A&O ist aber dennoch die verschattung! |
||
|
||
|
naja auf 15°C wirst deine hütte ned abkühlen (können) ich mein eine raum temp unter 20°C bei über 30 aussen Temp da bekommst schüttelfrost :D
Was die FBH FBH [Fußbodenheizung] angeht ... naja die Kälte würde unten bleiben ja ... wenn er keine KWL KWL [Kontrollierte Wohnraumlüftung] hätte, die hat er aber, dadurch sehe ich da kein Problem, da die kalte luft ja sowieso "abgesaugt" wird und im wärmetauscher der KWL KWL [Kontrollierte Wohnraumlüftung] so die einströmende luft abkühlt. Ohne KWL KWL [Kontrollierte Wohnraumlüftung] hast du recht ja, aber mit KWL KWL [Kontrollierte Wohnraumlüftung] seh ich kein Problem, da die Luft ja konstant umgewälzt wird. Aber klar Ohne Verschattung brauch ich mich ned wundern wenn mir heiß wird ;) Solare-gewinne sind der Hit .... im Winter ;) |
||
|
||
|
So, ich musste mich da selber noch mal einlesen. Der beste thread ist wohl dieser: http://www.energiesparhaus.at/forum/32162_3
Wenn man effektiv kühlen möchte, muss es eine kühllösung sein, zb nachtlüftung, klimaanlage oder kühlung via wärmepumpe. Ewt bringt fast nichts, klimaanlage / extra gekühlte luft in die kwl rohre zu pusten ist nicht gut - also ich dürft's bei meiner installation nicht machen. Die lösungsvorschläge wurden schon gebracht :) |
||
|
||
|
OK, ich werde es mal mit der Fußbodenkühlung probieren, aber zumindest die Kondensatabläufe und Elektroleitungen für Klima und Sole EWT vorrichten. |
Dieser Thread wurde geschlossen, es sind keine weiteren Antworten möglich.Nächstes Thema: ...
