« Bauplan & Grundriss  |

Hauseingang Katzenausbruchssicher machen

Teilen: facebook    whatsapp    email
  •  Pretender810
23.8. - 3.9.2015
20 Antworten 20
20
Hallo,

wir möchten uns ein Haus kaufen. Da wir 3 Wohnungskatzen haben, möchten wir halt nicht, dass die Katzen draußen rumlaufen.
Derzeit haben wir auch das Problem, wenn wir heimkommen, die Katzen rauslaufen bzw. wenn wir gehen die Katzen vor der Tür lauern und auf den Startschuss warten.
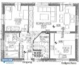
Das möchten wir im, vielleicht, zukünftigen Haus vermeiden. Das Hauptproblem ist, dass die Stiege ins OG direkt neben der Haustür ist.
Jemand eine Idee was man da machen kann?

Danke für Eure Hilfe,

Christian


2015/20150823187435_th.JPG

2015/20150823168193_th.JPG

  •  Superbunny
  •   Silber-Award
23.8.2015  (#1)
hahahhaha - ich lieg hier grad am boden. katzenausbruchssicher. so geil.

sorry. ich hoffe du bist nicht beleidigt *g*

1
  •  Superbunny
  •   Silber-Award
23.8.2015  (#2)
nein im ernst. ich bin auf einem hof aufgewachsen, und was ich gelernt habe: man kann eine katze schlecht daran hindern irgendwohin zu gehen, wo sie hin will.

warum dürfen die nicht raus? wenn sie geimpft sind und keine schnellstraße vor der haustüre ist...?

1
  •  Pretender810
23.8.2015  (#3)
Schnellstraße nicht, aber immerhin Durchfahrtsstraße. Sie waren ja mal Freigänger, aber alle wurde bereits angefahren, und somit hat sichs auch mit der Freigängerei erledigt.

1


  •  Superbunny
  •   Silber-Award
23.8.2015  (#4)
ja... ich denke ich kann dir da wohl nicht weiterhelfen. ich bin der meinung eine katze in ein haus zu sperren entspricht nicht ihrem naturell. du siehst ja, sie versuchen aus dem goldenen käfig auszubrechen.

ich sehe bei eurem grundriss auch nicht die möglichkeit einen windfang einzurichten. also alle katzen zuerst ins wohnzimmer sperren bevor man das haus verlässt.

1
  •  atma
  •   Gold-Award
24.8.2015  (#5)
erziehung ;)
unsre dürfen mit uns zb raus, kommen aber beim ersten mal rufen sofort angerannt und gehn auch brav wieder rein. über die haustüre wird das haus gar nicht verlassen, auch nicht, wenn die türe offen steht. wir habens ihnen so beigebracht, dass sie nur bei den terrassentüren (da sind die autos ein stückl weiter weg) raus und rein gehen.
ohne vorraum bzw vorraum mit stiegen ist das natürlich blöd. ich hätte zur not bei uns noch einen mini-vorraum und könnte den als "schleuse" nutzen.
gibts irgend ein gräusch, welches sie gar nicht mögen und mit dem du ihnen das beibringen kannst? (wär bei uns zb plastiksackerln) oder einen spielball beim eingang hinlegen und wenn du gehst/kommst balli werfen, damits dem mal nachlaufen. alternativ leckerlis werfen, dann lernens, dass es was gutes gibt, wenn die tür aufgeht und sie drin bleiben.

1
  •  Innuendo
  •   Gold-Award
24.8.2015  (#6)
Hund? Der ist schneller bei der Türe und könnt die Katzen in Schach halten. emoji
Wobei ein Hund nachträglich wohl meist den kürzeren zieht bei 2 Mauzis...

1
  •  Foxy
24.8.2015  (#7)

zitat..
atma schrieb: erziehung ;)


Manche Katzen lassen sich einfach nicht erziehen. ;)
Bei meinen beiden hab ichs nur bei einer geschafft, dass sie nicht mehr rausrennt. Die zweite büchst nach wie vor immer aus.

Pretender, mir fällt auch nicht wirklich eine Lösung ein, außer weiterhin geduldig hinten nach laufen und die Katzen wieder einsammeln.

1
  •  AndiBru
  •   Gold-Award
24.8.2015  (#8)
Hallo - Ich kenne auch so eine Familie, die haben einfach ca. 1,5m nach der Haustüre eine Glastüre eingebaut, somit war immer eine türe zu ... nur wegen deiner stiege geht dass nun mal nicht.

da würde nur ein Vorbau / Vorhaus sinn machen ... also einen Windfang... sonst fällt mir nichts ein.

1
  •  Superbunny
  •   Silber-Award
25.8.2015  (#9)
Wenn man sie kastriert bzw. sterilisiert werden sie auch ruhiger

1
  •  atma
  •   Gold-Award
25.8.2015  (#10)
das ist leider ned für jede katze zutreffend ;)

edit: ich geh mal davon aus, dass ex-freigänger eh kastriert sind.

1
  •  michiaustirol
  •   Gold-Award
25.8.2015  (#11)
haben die Katzen im OG ihr Zimmer ? du brauchst doch eigentlich nur die Wohnzimmertüre zu lassen bzw nicht offen lassen dass sie gar nicht in den Vorraum oder OG kommen

1
  •  atma
  •   Gold-Award
25.8.2015  (#12)
emoji naja, dann hast das katzenkistl auch im wohnzimmer...


1
  •  Superbunny
  •   Silber-Award
25.8.2015  (#13)
http://m.weidezaun.info/item/32303530

1
  •  atma
  •   Gold-Award
25.8.2015  (#14)
das ist tierquälerei! bitte sowas nicht einsetzen!


1
  •  Superbunny
  •   Silber-Award
25.8.2015  (#15)
Ich würde sie rauslassen und hoffen das sie zurückkommen. Katzen kann man nicht immer einsperren. Mit einem Hund geht man ja auch raus und eine Katze ist sicher noch freiheitsliebender.

1
  •  atma
  •   Gold-Award
25.8.2015  (#16)
da hast schon recht - aber mit stromschlägen im garten halten ist der falsche weg :( nicht umsonst sind diese halsbänder auch für hunde mittlerweile verboten.
ich bin noch immer für erziehung - entweder trainieren, dass sie drin bleiben oder eben, wenns raus dürfen, auf den namen trainieren, damit die auch wieder kommen und dann stundenweise mit ihnen raus gehn.

1
  •  Superbunny
  •   Silber-Award
25.8.2015  (#17)
Das mit StromSchlägen hab ich gar nicht gelesen ich dachte da ertönt ein Pfeifton.
Das hätte ich mir sonst auch für meine Kinder überlegt

1
  •  deejay
3.9.2015  (#18)
also ich glaube ja, dass man in einem haus die katze nicht auf dauer drinnen halten kann.
die terrassentüre wird früher oder später mal offen stehen.
die grillsachen, getränke werden raus getragen usw.
für die nerven wäre es wohl das beste, die vierbeiner einfach raus zu lassen.
das sie raus möchten, liegt an der natur, wenn sie es dann auch schon kennen, werden sie das auch immer wollen.
ich denke das du deinen katzen und dir nichts gutes tust, wenn du sie ewig einsperrst. vor allem ist es aber auch keine artgereche haltung.

1
  •  BAU2014
  •   Bronze-Award
3.9.2015  (#19)
aussen einen kleinen windfang dranbauen. dann geht im winter auch nicht so viel wärme verloren und die schuhe haben auch gleich einen sauberen platz. muss man jdoch mit der gemeinde und den bebauungsbestimmungen abklären.

1
  •  altenberg
  •   Gold-Award
3.9.2015  (#20)
mein Senf - Unsere zwei Katzen sind in einer Wohnung geboren worden, und immer drinnen gewesen. Danach bei uns im Haus, bis sie ein Jahr alt waren - wir haben ein paar rauflustige Nachbarskatzen - danach, als sie eben größer waren, gab es kein Halten mehr, die wollten ungedingt hinaus.

Sie haben dann in der Kellertür ein Katzentürl bekommen und können gehen und kommen wie sie wollen.

Als Anlocktrick - funktioniert recht gut - haben wir eine kleine Box mit Leckerlis, wenn diese geschüttelt wird, kommen sie gleich angerannt.


1

Thread geschlossen Dieser Thread wurde geschlossen, es sind keine weiteren Antworten möglich.

Nächstes Thema: Kosten Einreichplan