Bauplan so in Ordnung?
|
|
||
|
Wo ist er denn, - der Plan? |
||
|
||
|
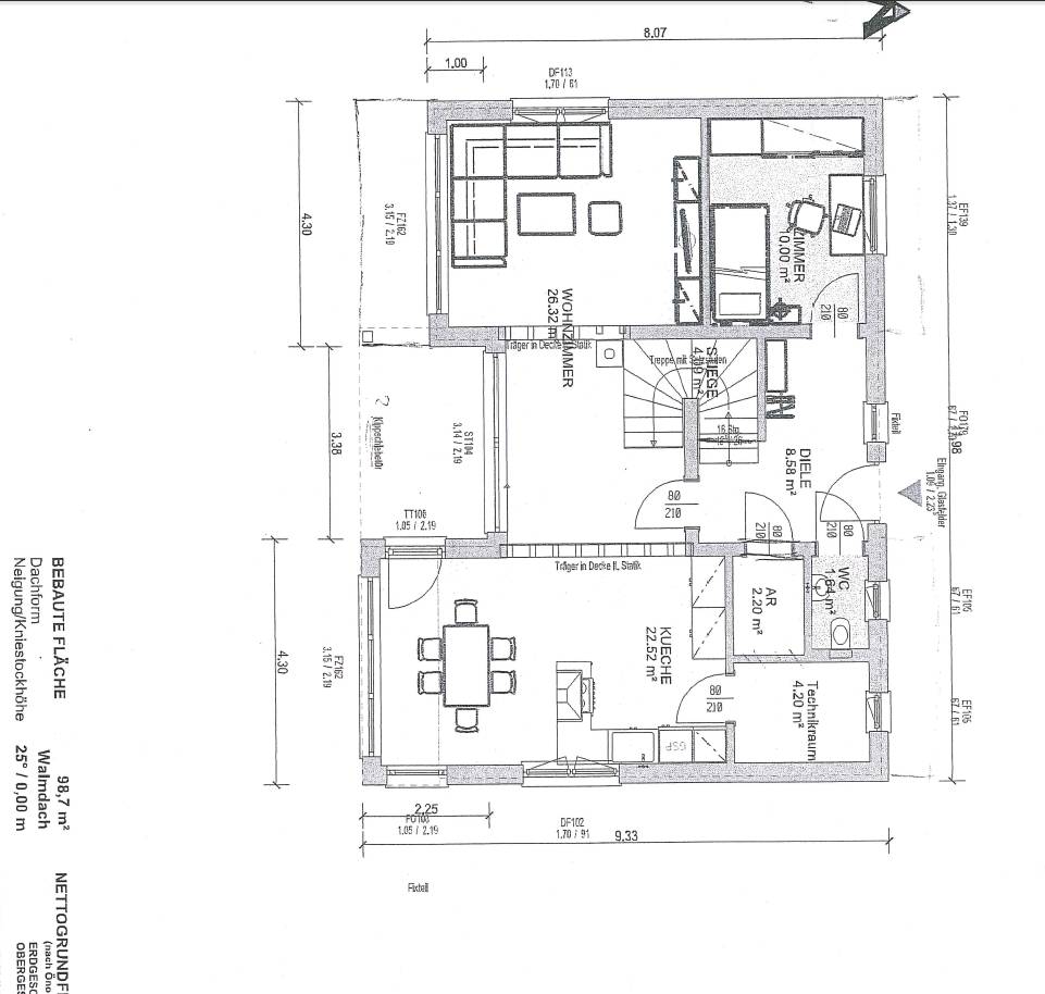
sorry !! hier Erdgeschoss und Obergeschoss: |
||
|
||
|
HiStaker,
...zuerst vergisst den Anhang, dann machst es doppelt. Säufst du heimlich oder wie?
Wenn du später dein Häuschen auch so baust, wird es nix werden.
FYI: OG fehlt... lG TheBoss |
||
|
|
||
|
||
|
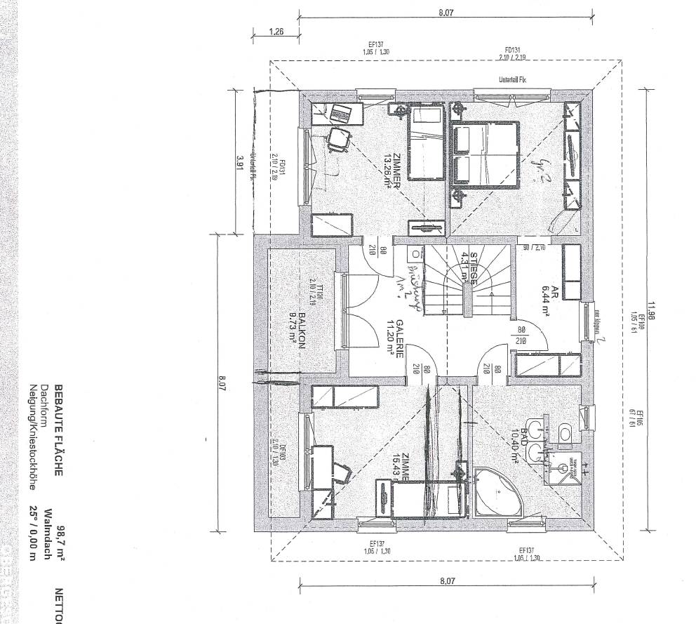
sorry blöder Fehler!! hier das Obergeschoss !!!
|
||
|
||
|
im EG Büro 10m2: für ein Büro ok, aber zu klein für ein Schlafzimmer. Ein Kind wird irgendwann größer, d.h. min. 12m2 sollte es schon sein. AR im OG später als Büro zu nutzen wird einfach zu klein sein. Außerdem wo wird dann Schrankraum für die Elternschlafzimmer sein? Vorschlag OG kann man z.B. so anordnen: Bildquelle: http://www.elk-fertighaus.de/fileadmin/elk/gr/CO_141_2011_OG_S_var.jpg
Dafür müsste man im EG die Treppen an die Aussenwand stellen. |
Dieser Thread wurde geschlossen, es sind keine weiteren Antworten möglich.Nächstes Thema: estrich trocknen +decke abhaengen

