Hi!
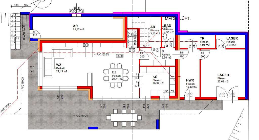
Sind gerade am Überlegen wo wir die WRL aufstellen. Entweder in dem langen AR links hinten, oder im TR Raum rechts hinten. (TR wird etwas größer ausgeführt)
Untergeschoß:
Der Installateuer sagt, im AR wäre es zentraler und somit besser. Habe aber gelesen das es besser ist die Entfernung zwischen Luftauslass und Lüftungsgerät größer zu haben, da somit der Schall geringer ist, somit wäre der TR besser geeignet. Denke mir auch, so wäre Heizung und WRL in einem Raum beisammen und in den AR komme ich zum Filterwechseln nur von außen.
Was haltet ihr davon?
Erdgeschoß:

Gesamten Text anzeigen