Bitte um Feedback zur ersten Raumplanung
|
|
||
|
finde den Plan grundsätzlich gut eingeteilt.
würde nur noch versuchen den WC Raum ein bisschen größer zu machen, damit du auch eine kleine Dusche unterbringen kannst. Die Tür in die Gaderobe müsstest dann auf die Eingangsseite drehen (dann hast gleich mehr Platz weil du 2 Wände mit Kästen vollstellen kannst). würde aus der Türe gleich eine Schiebetür machen. KiZi südlich finde ich immer gut :). auf der anderen Seite kann man sich aber noch nicht vorstellen, wie das Elterzi, Bad und Schrankraum eingeteilt werden soll. was ist das für ein Raum mit den 5,85m2? kann das auf dem plan nicht erkennen. Gruß ThinkAbout |
||
|
||
|
mir gefällts, einzig eine diele im EG mit 18m2 kommt mir ein wenig viel vor, aber wenn du die vorschläge meines vorposters thinkabout bez. garderobentür und wc-vergrösserung umsetzt --> wird's kleiner ;) |
||
|
||
|
Thinkabout, danke für das Feedback.
Würdest du das WC verbreitern? Dann habe ich ja keine Tür ins Gästezi? Oder check ich was nicht? Welche Tür würdest du zur Schiebetür machen? Der Raum mit den 5,82 m2 ist ein WC mit Dusche und Waschbecken. (Könnten wir eigentlich nach vorne vergrößern...) Lg, Wolfgang |
||
|
|
||
|
||
|
nicht schlecht - nur das mit der Garderobe im EG würde mich so stören, würde die Türe nach rechts geben, weil man sonst immer aus der Garage den Dreck vor der Klotür verliert.
Oben fehlt mir das Bad, oder soll das wirklich auch für die Kinder im Schlafzimmer sein? |
||
|
||
|
Chris5020, okay, Tür nach rechts ist überlegenswert, dankr.
Oben habe ich gegenüber der Treppe eine Dusche + WC für die Kinder? Das im Schlafzimmer mit Dusche, Badewanne, WC, Doppel-Waschbecken ist für die Eltern. |
||
|
||
|
Ich finde das eg nicht so gut. Zu gewollt erscheint der zugang aus der garage, die qm aus diele und der sog. Garderobe - so richtig viel platz gibts aufgrund fenster und türe ja nicht - wären mirzuviel.
Auch die raumbreiten in küche und wz waren mir zu schmal. Wir haben 4,65 M im wz und das ist nicht uebertrieben. Ich weiß, dasy der zugang aus der garage fuer viele eine heilige kuh ist. Wenn ihr euch davon loesen koenntet wuerde das viele neue moeglichkeiten schaffen. Edit. Das mit meinem tabmachtso keinenspass
|
||
|
||
|
hab das in etwa so gemeint:
Gruß ThinkAbout |
||
|
||
|
ein paar Ideen - Bei den Platzverhältnissen in der Diele würde ich eine Podesttreppe an Stelle der gewendelten vorziehen. (Ich finde den Dielenbereich auch fast zu groß)
Du könntest dir auch eine Variante überlegen, in der du Küche und Büro vertauschst (inkl. Wand). Dann sparst du dir die derzeitige Bürotür und hast mehr Platz für den Garderobe/WC Bereich. Weiters hättest du alle Abflüsse auf der gleichen Hausseite, weil ja oben auch das Bad auf der Nordseite wäre. |
||
|
||
|
Vielen Dank bisher für die Antworten - ich habe mich hingesetzt und eine altrnative Variante gezeichnet die ich hiermit zur Diskussion stelle:
Was ist besser? Was schlechter? |
||
|
||
|
mir kommt die Speis sehr schmal vor. zeichne mal ein Regal ein und schau wieviel du noch an Durchgangslichte hast. würde wirklich noch probieren hbinspe ideen einfließen zu lassen. dann hast du auch das Problem mit der knappen Tür beim Büro weg ;). oder du lässt die Speis wegfallen und machst das Büro größer.
find es sehr schön, dass du jetzt viel mehr licht in den Wohn/Essbereich bekommst. Schiebetüre hätte ich bei der Gaderobe an die Außenwand gesetzt. Sonst hast ja gar keinen Platz mehr für ein Regal. Gruß ThinkAbout |
||
|
||
|
Danke für die guten Vorschläge - finde es jetzt auch optimal dass mein schwenkbarer TV ins Wohnzimmer, Esszimmer und auf die Terasse schauen kann :)
Anbei mit aktualisierter Speisekammer. Thinkabout, das mit der Schiebetür an der Außenwand hab ich nicht ganz verstanden? Aktuelle Version - bitte wieder um Feedback: |
||
|
||
|
.. nur zur Anregung - Ich habe mal schnell deinen ersten Vorschlag abgewandelt, um meine zuvor kundgegebenen Ideen darzustellen.
Mir hat es auch immer geholfen etwas Anderes zu sehen und dann aus den verschiedenen IDeen das Beste rauszuholen! |
||
|
||
|
meinte das so:
würde unbedingt noch vorher zum Küchenplaner gehen. hab bei mir auch lange herumgetan mit der Küche. Dann war ich im DAN Küchenstudio und schon war eine schöne U-Küche geplant. Da kriegst dann genug rein, dass du keine Speis mehr brauchst. ansonst würde ich sie eher kleiner machen (siehe Plan oben). hier mit U-Küche: |
||
|
||
|
Hallo Thinkabout, hbinspe, danke für eure Beiträge!
Der Entwurf von dir Thinkabout. Gefällt mir eigentlich am besten bisher. Werde mit dem Planer reden, dass wir das WoZi verbreitern, die Treppe mehr nach links geben. Dafür können wir das Haus etwas schmäler machen. Eins verstehe ich noch nicht: Was ist an einer Podesttreppe besser? |
||
|
||
moment mal, nicht so schnell
Türen sind hinsichtlich Nutzen zu hinterfragen (man braucht davor und dahinter Gehwege, man kann nix einrichten), zB 1x in die Küche und 1x recht feudal ins WZ. Dort würde ich für "ruhe" sorgen. Das bringt einen immensen Gewinn fürs WZ. Das TV ist untypisch plaziert, ok. Wir haben zB gar keinen (noch). ABER: Warum starrst du dann auf die Wand und zB nicht in den Garten? Desweiteren ist die Westöffnung bezüglich Licht (wenn man abends von der Arbeit heimkommt) sehr wichtig und gut. In Kombination mit dem Ofen, ich nehme an mit sichtfenster) macht das das Einrichten nicht leicht. Ich habe das Sofa an Wand links und starre in den Garten... (bei gleicher Orientierung und Aussenabmessung des Hauses, selbe Eingangssituation, selber Grund-Grundriss). die Speis brauchst nicht, der schlurf ist auch schwer nutzbar (besteht nur aus Gehweg). Die halbgewendelte treppe ist halt am platzsparendsten. Aber: Sie ist denke ich eher schmal geplant: 2,52 im Rauhbau, minus Treppenauge mind 25 cm, besser 2 x 17 cm versetzt für Handlauf, ergibt verputzt 110cm Laufbreite. Naja, geht so. Interessant würde ich finden, die Garage unter dem STGH-Fenster vorzusetzen, das STGH Fenster UK also ab OK Gargenflachdach (ok, ja so habens wir. Dadurch kann die Treppe Richtung links zur Haustüre rutschen und das WZ bekommt die Tiefe, dies braucht. Dann kannst dir meinen Einreichplan kopieren. Gerne per PN. |
||
|
||
|
Schaushauns, danke dein Angebot, meld mich per pn.
Du würdest also die Tür ins WoZi ersatzlos streichen? Schlägst du eine andere Treppe als eine halbgewendelte vor? Lg, Wolfgang |
||
|
||
|
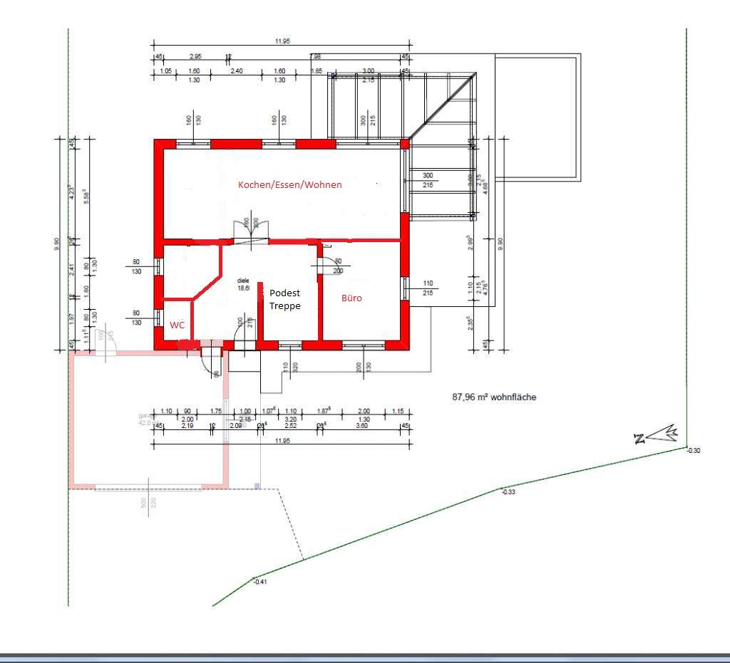
Basierend auf all dem Feedback anbei die aktuelle Planung:
Was meint ihr? |
||
|
||
|
finde es gut das ihr schon einiges von der Diele verkleinert habt. Bei der Stiege fehlt aber die mittlere Wand. Würde das noch auf kosten des Eingangsbereiches verschieben.
Ansonst würde ich dann mal zum Planer schauen. Vielleicht hat der auch noch ein paar Tipps Und das muss ja auch noch auf statischer Sicht geprüft werden. Besonders EG / OG Situation. Im OG werdet ihr wahrscheinlich noch einiges umplanen müssen.
Gruß ThinkAbout |
||
|
||
|
ohne treppenauge hat man spitze innenwinkel der gewendelten stufen, selbst bei einer 25 ist das mE ein Problem - optisch, verlegetechnisch, von der Nutzbarkeit her. 2 x 17 o. 25 ergeben einen "runden" Wendelungsverlauf, es ergibt sich eine andere treppendimension. Nur eine Mauer ergibt ein "schluchtenfeeling", daher mein tipp: 2 abgesetzte 17er parallel.
Die Speis macht wenig Sinn: Durch die Tür ergeben sich tote Flächen (dahinter und davor), die ewig verloren sind. Dazu kommen längere wege, als bei einem handreichweiten Zugriff auf die durchgehende Kuchenfront. der Raum dahinter ist verhunzt und kaum nutzbar. Die doppleflügelige WZ Tür würde ich ersatzlos streichen, anstelle in die Küche eine 90er nehmen. Mit der kochinsel wirds dann eng - wir haben dann die 2,8x1m kochinsel von links nach rechts erstreckt (selbe Situation, 4,1m breite des raumschenkels). Wie soll die lange Fensterfront realisiert werden, mit Stahlsäulen zur Lastabtragung? Das geht sich mit meinen bescheidenen Statikkenntn nicht aus. Wie wird das TV versorgt? Bodensteckdose? In der Fensternähe wirst eher immer zuviel Helligkeit haben - einfach weglassen, den brauchst eh nicht
WZ noch immer unter 4,5 m - so wuerde ich nicht bauen. Eine Couch hat mind. 1 meter Tiefe, da blieben 2,6m bis zur gegenüberliegenden Wand - noch ohne Kastl. Ich würde versuchen, dem wohnschenkel 3/4 der EG Grundfläche zukommen zu lassen. Der Garagen-NR hat 3 Türen... Sorry: Der Plan ist mE nicht gut. |
||
|
||
|
Hallo schaushauns,
Die beiden erwähnten Türen werden Schiebetüren. Kannst du diesem Passus bitte genauer erklären: "ohne treppenauge hat man spitze innenwinkel der gewendelten stufen, selbst bei einer 25 ist das mE ein Problem - optisch, verlegetechnisch, von der Nutzbarkeit her. 2 x 17 o. 25 ergeben einen "runden" Wendelungsverlauf, es ergibt sich eine andere treppendimension. Nur eine Mauer ergibt ein "schluchtenfeeling", daher mein tipp: 2 abgesetzte 17er parallel. " Danke |
||
|
||
|
Bei duennem treppenauge ergeben sich bei den gewendelten trittstufen tortenstuecke, bei dickerem auge fehlt denen die spitze.
Sonst einfach mal aufzeichnen, dann wirds klar. Nochwas: nicht erst beim treppenauge zu wendeln beginnen, sondern bereits bei zb. Dritter, vierter stufe und auch entsprechend spaeter aufhoeren, entschaerft ebenso die spitzen. Schluchtenfeeling beim antritt unten links..... Schiebetueren, wohin werden die geschoben.... |
Dieser Thread wurde geschlossen, es sind keine weiteren Antworten möglich.Nächstes Thema: Kamin - Aussparung PU-Schaum?
