Eure Meinung zum Plan
|
|
||
|
und wo finden wir den Plan?
mfg Sektionschef |
||
|
||
|
jetzt fehlt nur noch der Plan, dann kann man auch was dazu auch sagen ;) |
||
|
||
|
Hopala - ... war gestern wohl doch zu spät... habe nicht gesehen, dass keine TIFFs angenommen werden (PDFs auf nicht)... na gut, also alles einzelne JPGs.
|
||
|
|
||
|
||
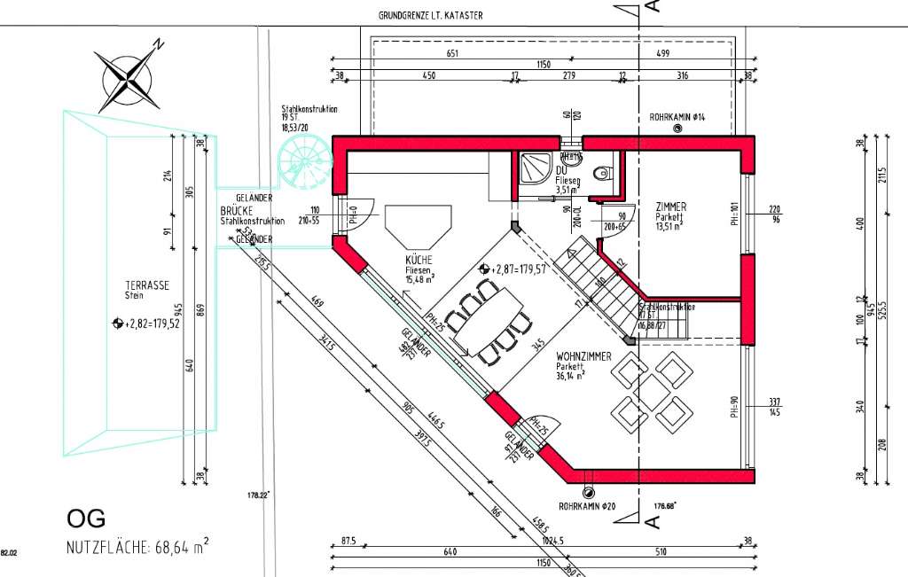
Der hat was, der Grundriss ... recht kompromisslos - auf Sonne getrimmt :) Im EG würde ich das WC noch separieren. Auf jeden Fall einen barrierefreien Außen-Weg von der Straße ins OG berücksichtigen. Solarthermie besser an der Süd/Ost-Fassade anbringen (ist groß genug um den Minderertrag durch Ausrichtung/Neigung zu kompensieren und sorgt für gleichmäßigen Ertrag übers ganze Jahr) ... oder ganz weg lassen und aufs Dach ne Photovoltaik stellen (schaut optisch ned so brutal aus) .. 2 Strings mit Ost- bzw- Westausrichtung und damit ne Erdwärmepumpe betreiben |
||
|
||
|
Respekt - der Plan hat was!!
wie 2moose, WC im EG separat bei euch wird das OG der "Lebensraum" werden. somit wäre hier ein separates WC auch von Vorteil. Zumindest eine optische Trennung von der Dusch mittels Ytong zu überlegen. kein Styropor. dafür aber einen 38er Ziegel? Welche EKZ soll das rauskommen? Gibt es einen Aussentreppe um vom OG in den Garten vor dem EG zu kommen? |
||
|
||
|
EKZ - ... da kommt lt. EA EKZ = 46.59 kWh/m²a
der OG hat innen eine Verbindung über die Treppe zu EG, sonst nur die Brücke auf die Terrasse in den Garten; eine direkte Außen-Treppe von OG nach EG hat leider kein Platz, dann würde das NG nicht mehr zugänglich (oder nur von Nord-Ost, was uns nicht gefällt), diese Seite ist die Straßenseite. |
||
|
||
|
Sehr interessant und gewagt. Wc's wurden angesprochen. Spannend wird auch das Einrichten werden, aber das habt ihr euch sicherlich auch gut überlegt. Der einzige zugang durch den wirtschaftsraum gefällt mir nicht so gut.
Alles andere Gefällt mir! |
||
|
||
|
EKZ46??? - Zukunftsgrundriss mit Steinzeithülle? Des schmerzt ...
P.S. Wenn man auf Styropor verzichtet (sehr löblich!) darf man trotzdem andere, natürliche, Dämmstoffe verwenden! Man muss ned zwischen kalten Wänden sitzen ... |
||
|
||
|
Die ekz schreckt mich auch ein wenig. Das muss heut zu tage besser gehen.
Warum keinen 50er ziegel? |
||
|
||
|
@humi: 50er Ziegel hätte ich gern, da war aber dann der Grundriss nicht mehr in der Form zu realisieren, wir haben nur 9.45 m mögliche Breite.
Der WR WR [Wechselrichter] bzw. das NG hat ja 2 Zugänge, eins drin, eins draußen. Noch eins nach nord-ost stört die Heizungsanlage; |
||
|
||
|
Hab ich übersehen, sorry. |
||
|
||
|
hatte ähnliches vor hab' dann drauf verzichtet und lieber kg und viereckig gebaut...
der plan ist falsch beschriftet, 2x süd-ost-ansicht... schlafen unten - küche oben find ich ned so toll, zur statik og mit nur 2 säulen und unterzügen bin ich skeptisch, auch, was die dachentwässerung betrifft. für unpraktisch halte ich die wendeltreppe zur terrasse und den kaminanschluss, auch insektenschutz bei der og-fenstergallerie wäre zu überdenken. kritisch würde ich die entwässerung bei starkregen sehen und ggf. die wc-entlüftung samt steigleitung. abstellflächen udn ein bidet im bad wären zu überlegen... wärmedämmung laut berechnung ist wurscht, praxis schaut eh anders aus... |
||
|
||
|
mal was anderes - aber eigentlich sehr kompakt, da wundert mich die schlechte EKZ, aber das liegt vermutlich am reinen 38er-Ziegel.
da könnte man mit 20/15 oder Holzriegel vermutlich deutlich runter kommen. |
||
|
||
|
GR an sich ist tollaber die EKZ wäre echt zu überdenken...
Mit 25 Ziegel + 12 EPS kommt man auf 0,19, der reine 38er hat 0,3 U-Wert... wäre eine Überlegung wert! Ansonsten gelungen, nur die Statik würd ich überdenken - mit einer 20er Elementdecke stößt man bei ausgefallenen Grundrissen bald an seine Grenzen, ev braucht ihr tragende Zwischenwände. ng bautech |
||
|
||
|
Gleiche Bauschmerzenvor lauten Bäumen sieht man den Wald ni mehr (2x die gleiche Beschriftung der Ansicht)...
& Volks: Danke für die lupenreine Analyse und die wertvollen Hinweise! @creator: - EG schlaffen OG wohnen: hat seine licht-bedingte Gründe, die mikro-Faktoren des Grundstücks sieht man auf den Plan nicht, dort ist es eben relativ dunkel und die gesamte Dreieck-Terrasse ist umgeben von 1.50m hohen Mauern. - Auf die Statik bin ich auch mittlwerweile gespannt wie ein Flitzerbogen. - die Wendeltreppe ist "nur" um aufs Dach zu gehen, Terrasse aus der Küche über die Brücke; - insektenschutz=schiebefenster zu; dann habe ich immer noch 3 fenster die ich aufmachen kann und wo vieh-schutz hängen kann; - Kamin; hmm, wohin damit wenn der Innenraum "kostbar" ist? - @chris5020: liegt u.a. auch an der Annahme, dass Glasschotter "erdfeucht" angenommen wird. und die 40m² Fensterflächen machen den Rest... +@bautech: Kombi-Wand (25+12 usw) will ich nicht, kein Styropor oder Holzwände; |
||
|
||
|
Raumeinteilung - ich nehme mal stark an, dass auf von südwest sehr wenig
Lichteinfall aufgrund der Hanglage vorhanden ist. Warum also nicht im EG das SZ mit dem östlichen KiZi tauschen? Im derzeiten SZ ist eigentlich nur ein Schrank mit dem Massen: ca 270 x 60 möglich (Balkontüre + Türe) Das ist nicht gerade viel Stauraum. Beim Raumwechsel wäre ein Schrankbereich möglich. Dafür würde ich die Balkontüre + Fenster teilen und die Balkontüre wie gehabt und das Fenster auf nordost Seite machen. (eventuell sogar ein Eckfenster, ist aber eine Preis/Statikfrage) Damit gewinnst du ca 60 cm freie Wandfläche und kannst dort einen 345 cm Schrank (Stauraum) machen. Den Gangbereich im EG wird seeehr finster werden. Möglicherweise sogar elektrisches Licht tagsüber. Lösung dafür fällt mir aber auch keine ein. (Glastüren in SZ und KiZi ????) Ach ja, schlafen im EG: wenn das meine Holde sehen würde.... Trotz Alarmanlage darf ich im EG kein Fenster gekippt lassen. Es könnte ja der böse Einbrecher kommen. |
||
|
||
|
@ sensai;
- Raumaufteilung: Grundsätzlich wollen wir am Anfang unten die 3 Zimmer gar nicht mit Trennwänden aufteilen, sondern nur erstmal mit Möbeln u.ä. und schauen wo welche Bereich am besten passt; auf diese Weise müssen wir nicht in wenigen Monaten/Jahren die Trennwände abreisen und versetzen; Die Kids kommen demnächst in die Schule; mit 15 wollen die eben was anderes als jetzt und sind die erstmal raus, haben wir die qual der wahl... :) - Gangbereich EG: so sah ich das auch, dann fiel mir ein, dass das Licht der Süd-Fassade durch die Stiege in den Flur fallen wird, und zwar auf der fast ganzen Länge der Stiege; außerdem sollen wenn das technisch aufgeht, alle Türen Oberlichter haben, was gerade im hinteren Eingangsbereich zur NG etwas weiter hilft. - Sicherheit: stimmt; das war ein harter Brocken, daher sind alle Fenster unten nur einseitg zu öffnen, zweiter Teil ist immer fix; so können wir die Fenster gekippt und zusätzlich rafstores runter fahren lassen. |
||
|
||
|
Hat jemand 'ne Idee, wie ich die Hebeschiebetür oben im OG günstiger (monetär) gestalten kann? Das blöde Ding kostet an die 8k... |
||
|
||
|
was ist mit klassischen Türen mit 180° Öffnungswinkel, die kannst komplett zurückklappen und kosten vermutlich die Hälfte |
||
|
||
|
EKZ
... da kommt lt. EA EKZ = 46.59 kWh/m²a So futuristisch es auch ausschaut, so extrem veraltet das System der Wände! lg |
||
|
||
|
hebeschiebetür: würde da mal schauen, ob's eine balkontür mit 2 kempfern auch tut...
zur wand: ist die romberger-variante mit den 25cm-liapor+20cm-zementgebundenes styropor keine überlegung? ansonsten mal liaporsteine mit perlit-füllung anschauen... |
Dieser Thread wurde geschlossen, es sind keine weiteren Antworten möglich.