Meinungen Entwurf Grundriß
|
|
||
|
die grundrichtung stimmt schon mal... die garagentüren solltest du dir überlegen (ned nur wegen der wand bei hauseingang). ich würde die türen nach außen öffenen lassen (weg von den autos) und ggf. eine mittige garagentür vorsehen, um einen durchgang zum garten zu ermöglichen (mit größerem gerät). der eingangsbereich ist eng, da würde ich auf den vorsprung verzichten und die wand gerade lassen, ggf. vordach oder so montieren, dann hast du die chance, ein mini-bad im eg zu machen und die schife wand gerade zu belassen, ggf. die treppenwand etwas zu kürzen - dann ist das geräumiger... die eckverglasung im westen ist ned so meins, das licht dort müsste man sich vor ort anschauen... ich würde die speis streichen und die küche erweitern. das extra-wc im og ist auch nicht meins, wenn, dann würde ich es über das im eg setzen und das bad schlauchförmiger machen.2 fenster im bad sind auch ziemlich unpraktisch. |
||
|
||
|
grundsätzlich ganz ok - aber das mit der Tür mitten zwischen den Treppen find
ich komisch? Warum nicht in Verlängerung des Vorratsraums? Ähnliches gilt für die in den Raum stehende Mauer zwischen Eingang und Treppe, wie creator schon geschreiben hat macht es das ein wenig eng. Die Mitte im Wohnbereich ist mir etwas zu groß und ungenutzt. Das OG ist ok, aus der Ankleide würde ich einen allgemein zugänglichen Schrankraum machen. Extra-WC oben ist Geschmackssache. |
||
|
||
|
|
||
|
|
||
|
||
|
.. hoppala - also zu deinen Anmerkungen:
Garagentüren breiter und nach aussen - geb ich dir zu 100% recht. Was du in diesem Zusammenhang mit der Hauseinganstüre und der Mauer meintest kann ich nicht so recht verstehen. Denk mal, dass du meintest, dass die Garagenwand direkt beim Hauseingang quer verläuft?? Ich finde das auch nicht soooo toll, denke aber, dass wir es "grundstückstechnisch" nicht anders hinbekommen. Der Vorsprung im Eingangsbereich ist eine Überlegung wert. Generell haben wir im Bereich der Stiege das Problem, dass die Mauer der Stiege so weit herein reicht. Hat zwei Gründe. Erstens benötigen wir eine Möglichkeit dort Träger aufzulegen um von Garagenwand zur Stiege und weiter zur Aussenwand Küche zu gelangen. Ausserdem reicht die Treppe auch ganz bis zum Ende dieser Mauer )Am Entwurf konnte ich das aber softwaremäßig nicht darstellen, darum ist die Stiege so "schmal" eingezeichnet. Wir möchten auf jeden Fall, dass der Abgang zum Keller ausserhalb des Wohnbereices ist und der Aufgangn in das OG sich im Wohnbereich befindet. Ein Minibad im EG wird von uns nicht unbedingt angestrebt. Das Rechteck im EG Wohnbereich soll ein Kaminofen (Spartherm oä) sein. Einen solchen möchten wir als Raumteiler zwischen WZ und EZ haben. Ich persönlich bin mit der Situation im EG auch noch nicht zufrieden und hoffe hier andere Anregungen zu bekommen, da wir schon einen Tunnelblick haben. Extra WC im OG ist auch wieder das Problem mit der Mauer der Stiege. Hast aber sicherlich Recht, dass dort das WC direkt über der Couch im Wohnzimmer ist. Werd mich in den nächsten Tagen damit intensiver beschäftigen. Danke einstweilen PS Eckverglasung im EG ist direkt im Süden und, so denken wir, nicht so verkehrt. Speiß werden wir vermutlich benötigen, da wir sonst keine Möglichkeit haben zB Staubsauger udgl abzustellen |
||
|
||
|
Chris auch dir ein Danke - - wie gsagt, Mauer im Stiegenbereich ist, so denke ich, notwendig.
Ist acuch schlecht gezeichnet. Stellt euch einfach vor, dass die Treppen bis ganz nach vor zum Mauerende gehen. (Im Keller kann man sehen, dass die Trepppe ganz nach vorne soll) Tür in den Wohnbereich aus dem Grund, weil wir irgendwie versuchen, dass der Aufgang OG im Wohnbereich ist. Bez Extra WC sind wir uns auch nicht einig. Extra od im Bad - naja, beides hat vorteile. Ankleide wird bedacht. danke |
||
|
||
|
,,, damit man sich betr der Stiege besser zurechtfindet - Hier eine andere Zeichnung - Ausschnit OG Bereich Bad usw
Da kann man erkennen wie weit die Stiege nach vor kommen soll |
||
|
||
|
Hallo Antje, -
danke für deine Erläuterungen, jetzt ist einiges verständlicher. trotzdem finde ich die Lösung im EG sub-optimal. Hier entsteht ein schmaler Schlurf vom Eingang, und vor der Stiege in den Keller ist das fast erdrückend eng. Eventuell könnte man vom Wohnraum bei der Couch noch einen halben Meter abzwacken, würde es breiter machen. Das Thema "Aufgang aus dem Wohnbereich" kommt für uns gar nicht in Frage, vor allem aus 2 Gründen: 1.) Lärm von den Gästen im Esszimmer zieht nach oben (kennen wir von Bekannten und ist störend) 2.) Die Kinder können nicht am abend heimkommen ohne an den Eltern im Wohnbereich vorbeizumüssen Das extra WC im OG stört mich gar nicht selbt, mehr wieder dieser "Miniraum" mit den 2 Türen der sich hier bildet am Eingang. lg, Christian |
||
|
||
|
bezüglich statik ist der plan noch nicht ausgereift, - deshalb musst du dir eh überlegen, wo du was (unterzüge/säulen/tragende wände) platzierst.
der keller schaut schon mal ganz ok aus, da brauchst nur die wand hwr-gz tragend machen und ggf die ecke gz-radkeller verstärken/säule. dann ist das mal bombenfest. im eg kommt'sd dann drauf an, was du machen willst, ggf. rückst halt die treppe - wie bei fast 90% aller fth - als erker raus oder du belässt es und ziehst von der treppe ein bis zwei unterzüge, alternativ ziehst nur einen bei der treppe garagenseitig und einen a la kg-lager in der küche. je nachdem, was du im eingangsbereich machst, kannst ja neben dem wc auch einen abstellraum platzieren. die idee mit dem ofen als raumteiler ist ok, nur überleg dir, ob du den kamin durchs dach führen willst. dann brauchst bei den kizis platz. statik im og dasselbe, de facto kannst dir überlegen, ob du die kizi2-wände tragend und was du wirklich mit den sanitäräumen machst. ich würde mir mal heizbirne vom kamin und luftverwirbelung anschauen und ggf. den kamin in den süden rücken und den rauchfang außerhalb an der fassade hochführen - risiko dachdurchbruch ist so ausgesschlossen, putztüren auch alle außen. kommt auf die dachform an, bei flachdach sicher sinnvoll. p.s.: garage war ohne türdurchgang gezeichnet... |
||
|
||
|
OG finde ich persönlich schon super gelungen, würd ich nichts mehr ändern. Der Ankleideraum soll ja für euch sein und somit is ok.
EG: gefällt mir der Eingangsbereich auch noch nicht, die schiefe Wand, hmm vielleicht bringt man das besser hin. WC würde ich persönlich gerne ein Fenster haben, aber nicht neben dem Eingangsbereich. hier kannst du dir mal unseren plan ansehen. http://www.energiesparhaus.at/forum/25053 |
||
|
||
|
danke, danke danke - für eure tolle Hilfe!
wir werden in den nächsten Tagen mal versuchen anhand eurer Tips zu optimieren! Werd das Ergebnis zur neuerlichen Begutachtung einstellen!! lg |
||
|
||
|
Update EG - planänderungen im eg - eure meinungen?
mauer stiege ist gekürzt - stiege reicht wieder bis ganz zur mauer vor - kann ich leider nicht zeichnen. Durchgangsbreite von Mauer Stiege bis zur Wand Wohnzimmer ca 1,3m evt überlegen wir noch auf der westl Seite Bereich Küche und EZ einen halben Meter vom Grundriß wegzunehmen, da der Raum in der Mitte des WZ doch relativ groß und leer ist. danke euch! |
||
|
||
|
großzügiger - Also ich finde den neuen Entwurf deutlich großzügiger.
Der EIngangsbereich ist so sicher freundlicher, und dem Wohnraum fehlt das Eck auch nicht wirklich. lg, Christian |
||
|
||
|
hi chis - wir finden es so auch besser - aufgang og via wohnraum - haben uns deine meinung durch den kopf gehen lassen und mit einem kollegen gesprochen der genau so gebaut hat - hab ich vorher nicht gewusst - der hat deine meinung zu 100 bestätigt und würde auch keinen aufgang mehr durch den wohnraum machen |
||
|
||
|
schaut schon viel besser aus... aber vergiss nicht, die statik zu berücksichtigen - zumindest ein unterzug im ess- bzw. küchenbereich fehlt da noch und wenn ihr das fenster so belassen wollt, wäre die laternative eben die verlängerung der treppenmuer. denke, dass auch og und keller noch entsprechend angepasst werden sollten, denn das stimmt dann mit lager im kg bzw. kizis-trennwand ned so ganz zusammen. wobei ich immer noch glaube, dass der unterzug in der küche besser passen und billiger zu realisieren sein würde, ggf. eine etwas kleinere ankleide beim sz stört me weniger... |
||
|
||
|
gefällt mir auch wesentlich besser.
jetzt versuch vielleicht noch, alle wasseranschlüsse übereinander zu machen. |
||
|
||
|
danke euchmim wc im eg bin ich noch nicht 100% zufrieden, weil eben fenster neben eingang;
optimal wär ein tausch abstellraum und wc - wär von den anschlüssen auch besser - aber will ich nicht, da ich sons surround-beschallung auf der couch habe. denke mal, dass ich das fenster neben dem eingang in kauf nehmen werde müssen |
||
|
||
|
da kannst vielleicht ein oberlichten fenster einbauen, nur so als idee. |
||
|
||
|
hallo - Hi Antje,
falls ihr nach einen ähnlichen Haus sucht, hier ein link, wo dieser Grundriss angeboten wird, mit gutem Preis: http://www.haas-fertigbau.at/erdwaerme/haas_erdwaerme/la_grande_nova.php lg Johannes |
||
|
||
|
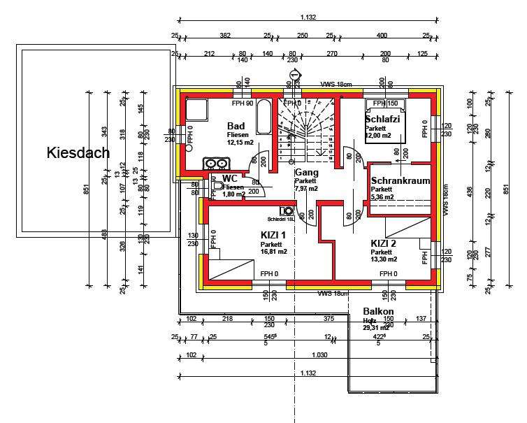
update - Hallo wiedereinmal;
nachdem ich hier sehr gute Kritiken zum ersten "Vorentwurf" bekommen habe, stelle ich nun den Entwurf ein, welchen das Bauamt mal als "Vorausinfo" bekommt. Wür mich auch über eure Meinungen freuen - vgl mit den ersten Bildern
Danke euch! PS: Einrichtungsgegenstädne wie zb Küche, Bad dienen nur der Illustration! EG: og: kg: Ansichten: |
||
|
||
|
Rückschritt - Irgendwie kommt mit der Entwurf im Vergleich zum Vorentwurf als ein massiver Rückschritt in der Planung vor.
Auf den ersten Blick wirkt es ganz nett, aber mir fehlt die Garderobe, oder kommt das zeug alles in die Schleuse Den Einschnitt beim Esszimmer find ich nicht sehr praktisch, aber vermutlich ist sonst die Terasse zu klein im OG find ich das Zurücksetzen über der Terasse nicht gut, wofür ist dieser Minibalkon? Mehr als für eine Rauchpause ist der nicht wirklich gut (und zum Fensterputzen vom Klo) Insgesamt zu viele Ecken und Vorsprünge, das war im Vorentwurf deutlich sinnvoller. Ist ja kaum eine Mauer in der Flucht der anderen Auch die Anordnung der Fenster ist sehr gewöhnungsbedürftig, warum sind z.B. die beiden Fenster im Westen nicht gleich breit Ich hoffe ihr verbessert euch bis zum echten Plan noch lg, chris |
||
|
||
|
ich sehe es nicht als vortschritt und finde sehrwohl das ihr euch wesentlich verbessert habt.
das einzige was mir auch fehlt, ist eine gaderobe. |
Dieser Thread wurde geschlossen, es sind keine weiteren Antworten möglich.