Entwurf
|
|
||
|
grundsätzlich find ich den grundriss nicht schlecht. Einige Dinge, dir mir persönlich aufgefallen sind: - mich würde es stören, dass der Lagerraum nur von außen begehbar ist (wo stellst du Gefrierschrank hin-musst du dann jedesmal rauslaufen, wenn du was brauchst?) -5m² für Technik ist meines Erachtens eng bemessen. Du musst ja auch irgendwo die Waschmaschine/Trockner hinstellen können. Platz für die Wäsche an sich brauchst du auch. -ich würde die Balkontüre auf die Terasse zumindest doppelflügelig machen, wenn du etwas hinaustragen möchtest (Sessel, Tischerl, etc...tust dir erheblich leichter, wennst mehr Platz hast) Ansonsten, alles gute bei deinem Bauvorhaben
LG Matty |
||
|
||
|
Entwurf - Finde ich prinzipiell nicht schlecht, obwohl es wieder ein Beispiel dafür ist, dass ein oder zwei Autos und Lagerfläche mehr verbaute Grundfläche beanspruchen als 4 Personen.
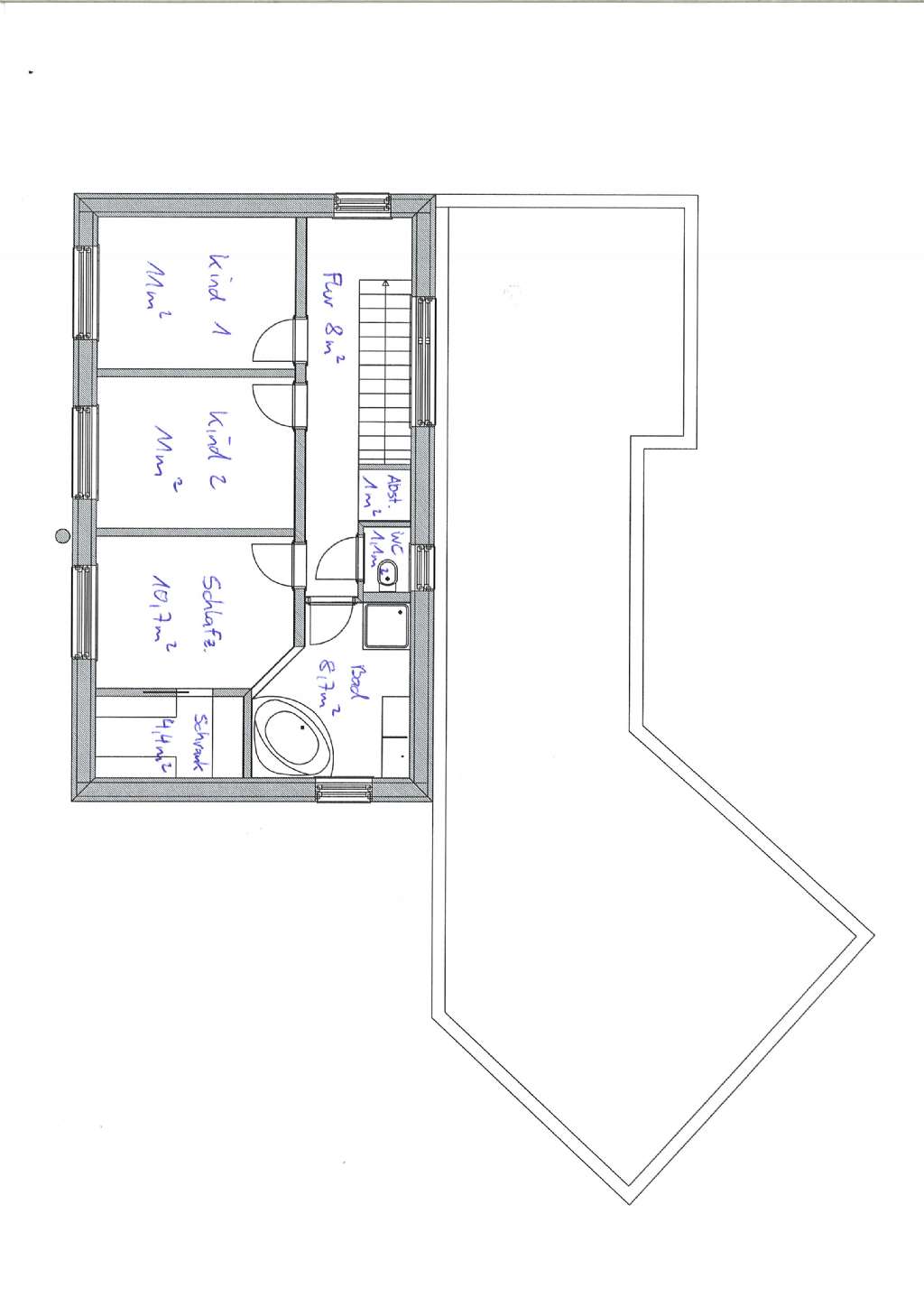
Ich finde die Raumaufteilung im OG noch verbesserungswürdig. Das liegt zum Großteil an der Treppenlösung. Wir haben auf der gleichen Fläche ein 17m² Schlafzimmer mit Schrankbereich, ein 14m² Zimmer, ein 11m² Zimmer, ein 10m² Bad inklusive WC und 5m² Galerie inklusive Treppenhaus (einläufig, zweimal viertelgewendelte Treppe). http://www.immobilienscout24.de/de/bauen/bauplaner/hausplanung/bauteile/treppen/treppen_arten.jsp (Typ H) |
||
|
||
|
@matty da es ein Niedrigstenergiehaus (EKZ 20) werden soll ist der Lagerraum außerhalb der luftdichten Hülle vorgesehen. Ich bräuchte als eine zusätzliche Passivhaustüre für den direkten Zugang vom Haus. @dandjo eine gerade Treppe war eigentlich immer mein Favorit.. im EG unterhalb der Treppe hab ich außerdem ein kleines "Büro" vorgesehen. Ich war immer der Meinung das ich sehr wenig Verkehrsflächen habe - wenn ich richtig gerechnet habe hast du mit deiner Treppenlösung ca. 4m² mehr Nutzfläche? lg didi |
||
|
|
||
|
||
|
Dein Entwurf ist sehr schön kompakt.
Die konsequente Ausrichtung der Hauptfensterflächen nach Süden finde ich gut. Im EG fehlt mir der Platz für Hauswirtschaft/Wäsche etc. Ich persönlich würde die Treppe breiter machen (z.B. 1,20m), dann sind WC und Dusche im OG etwas barrierefreier (und auch die Speis und der Abstellraum würden profitieren). Ich würde wenigstens ein WC/Dusche so gestalten, dass es annähernd barrierefrei ist. Siehe z.B. http://nullbarriere.de/oenorm_1600.htm Denn gerade wenn dir oder einem deiner Lieben mal gesundheitlich was fehlen sollte, ist es doch umso wichtiger, dass man wenigstens im eigenen Haus weiterhin zurecht kommt... Hinterher etwas anzupassen ist immer teurer und macht Ärger, wenn man eh schon belastet ist... lg turmer |
||
|
||
|
Hy, Dein Entwurf gefällt mir ganz gut. So einen hatten wir zwischendurch auch mal, ziemlich ident sogar. Haben uns dann aber wg. des Stiegenaufgangs im WZ umentschieden. Haben in einem bauähnlichem Haus probegewohnt und akustisch wars ein Alptraum, leider. Optisch nämlich sehr nett. Ah genau, jetzt weiß ich wieder, woran mich Euer Entwurf auch so erinnert, an genau dieses Probewohnhaus (www.probewohnen.at) - solltet Ihr ausprobieren, bevor ihr einreicht, hoffentlich gehts Euch dann nicht so wie uns.
Was ich Dir raten würde, ist: Verlängere den Vorraum raus bis zur Vordermauer vom Lager. Dein Vorraum ist zwar nicht so klein, nur durch die Türsituationen hast Du trotzdem kaum Stauraum u. den wirst Du mit 2 Kids brauchen, ich merke es jetzt schon mit einem Kind (unser jetztiges VZ ist genauso klein wie Eures, hat sogar etw. mehr Stauraum als Euer künftiges), daher kriegen wir im neuen Haus eine gscheite Garderobe, denk mal an das ganze saisonale Gewand u. Schuhwerk, das man mit Kids hat (Gummistiefel, Regengewand u. Co u. Ihr habt ja dann keinen Kelelr). Abgesehen davon, hättest Du dann einen direkten Zugang zum Lager vom Haus aus (wie schon erwähnt, Gefrierschrank u. Co). Wenn Du einen Zugang vom Freien ins Lager willst, dann evt. 2. Tür von außen, würd ich aber nicht als so notwendig empfinden. Oder wird das Lager auch Lager für Gartenzeugs? Hast ja eh eine Garage zus. Optisch würde das Deiner Hausansicht mmn nämlich nichts nehmen u. ohne Keller wirst Du das Lager sehr, sehr nutzen. Treppe: auch meine Meinung. Zu schmal. Für später od. Treppenlift glaub ich eher eine Qual. |
||
|
||
|
Ich find den Plan nicht so schlecht...
Würd den aber trotzdem noch mal überdenken. Lagerraum wurde eh schon angesprochen...den würd ich gleich mit der Garage mitmachen, die dafür etwas grösser. Im Eingangsbereich hast du durch die vielen Türen kaum eine Möglichkeit, Sachen hinzustellen. Die Kinderzimmer sind mit 11 m2 sehr klein. Das Elternschlafzimmer und Bad sind Räume, die man besser nord- oder ostseitig anordnet. Beide Räume werden kaum benutzt oder wenns ohnehin draussen finster ist/Rollos unten. Bez. Büro unter der Treppe weiss ich natürlich nicht, wie du das nutzen willst. Wenn das der Platz für den PC zum gelegentlichen Internetsurfen, Platz für Drucker und ein paar Ordner sein soll, wirds vermutlich passen. Wennst in dem Büro wirklich produktiv arbeiten willst, wirds eher ungeeignet sein, da im WZ/Küche sich ja der Lebensmittelpunkt abspielt und somit immer Leute/Lärm/Fernseher ist. |
Dieser Thread wurde geschlossen, es sind keine weiteren Antworten möglich.Nächstes Thema: Wurfsteinmauer ?!?
