Wer kann mein Hausbauangebot bewerten?
|
|
||
|
Wird schwierig wenn du nix postest :) |
||
|
||
Na gut, dann versuch ichs mal mit den Screens. |
||
|
||
|
Ohne Massen/Mengen lässt sich da leider nicht viel zu sagen. Der Bagger scheint aber deutlich überteuert zu sein - 9to für 6400EUR netto? Kostet normalerweise mit Fahrer 80-100EUR/h, das wären 65h, also fast 2 Wochen. |
||
|
|
||
|
||
|
Für mich fragwürdig warum nur die Positionspreise angegeben werden und keine Einheiten, Mengen und Einheitspreise. |
||
|
||
|
Mir kommt es etwas teuer vor. Ein Beispiel wo ich ganz sicher bin, dass es überteuert ist: Ich habe letzte Woche eine Drainage mit Agrosil Rohren verlegt/verlegen lassen. Listenpreis bei Pipelife ist EUR 118,20/6lfm. Wenn man beim LH kauft kriegt man (ich) 60% Rabatt, d.h. ich habe EUR 47,28/6lfm gezahlt. Bei dir sind es EUR 142,80...Übrigens braucht man da noch Revisionsschächte an den Ecken... |
||
|
||
|
Ja, es gibt keine Mengenangaben. Es wird pauschal pro m² kalkuliert. Mir ist bewusst dass es mit einem GU etwas teurer wird, da mir die Zeit für die Koordination von Einzelgewerken fehlt....lassen sich die höheren Preise damit begründen? |
||
|
||
|
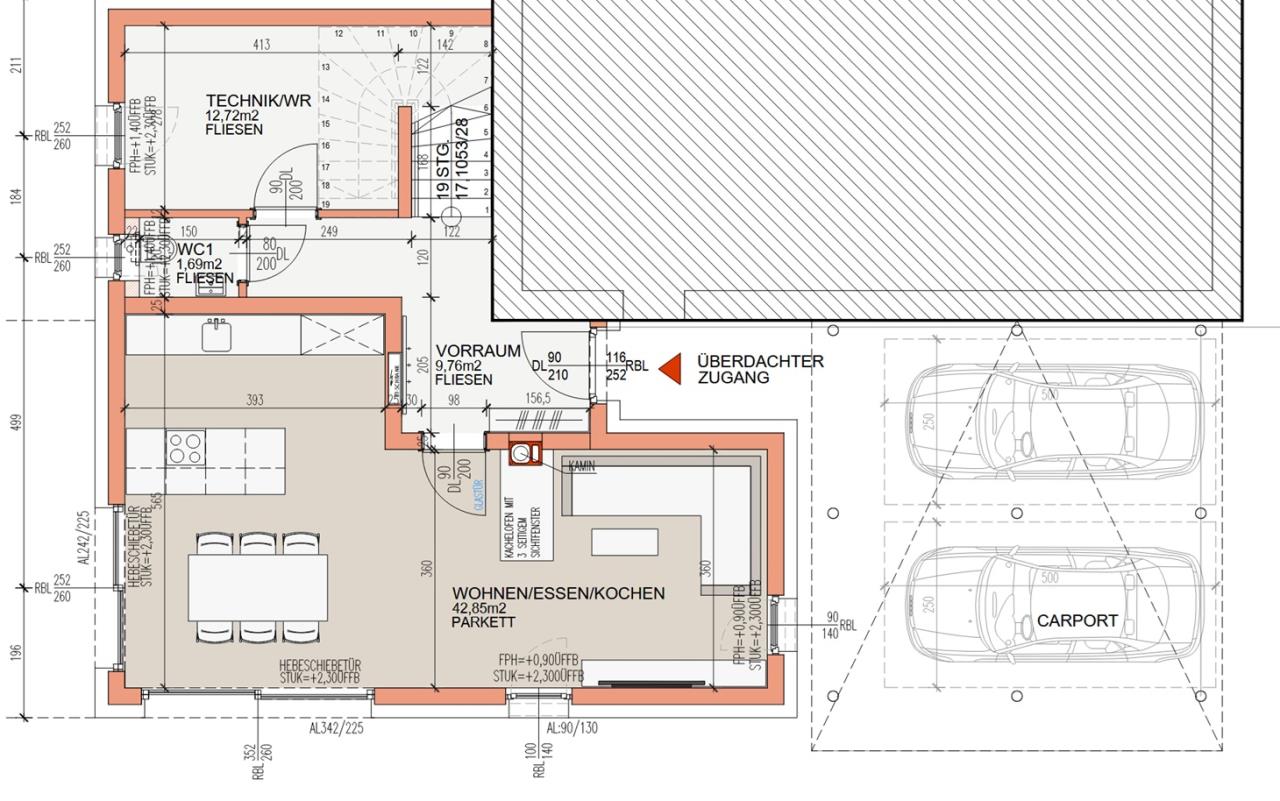
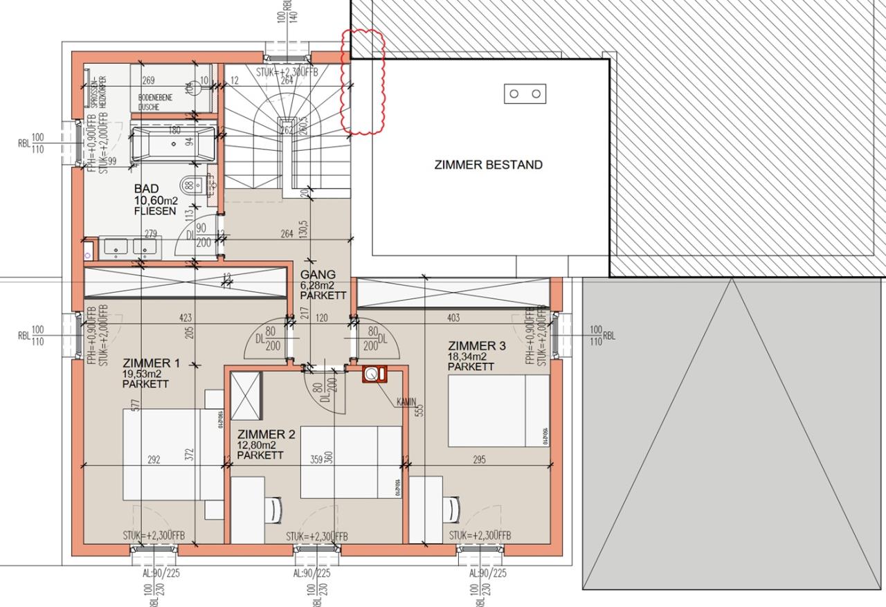
Wieviel m² sind es? Dürfte mehrgeschossig sein, zumindest ist ein Keller geplant, aber nur 160cm hoch? Kannst du auch einen Plan posten? |
||
|
||
|
135m² Wohnfläche Anbau an ein Bestandsgebäude, kein Keller - teilweise aber dicht ausgeführt. Siehe Plan Bin gerade dabei weitere Angebote einzuholen. Anfangs vor dem Plan war die Rede von ca 300k für das Haus bei dieser m² Zahl. Ein paar Positionen sind natürlich auch abzurechnen, Carport, Außenanlage, Einfahrt.... |
||
|
||
|
Also wenn die Baufirma 3% Skonto anbietet, wird sie sie auch nach den 8 Tagen anbieten. :) Mit der 160cm hohen Kellerwand ist wahrscheinlich der hintere Bereich des Hauses welcher im Hang ist gemeint. Im Angebot sind auch Punkte, die nicht nur das Haus an sich selbst betreffen: Außengestaltung 9k€, Carport 8k€ Wenn man sie von den 418k€ abzieht, ist man bei ca. 400k€, davon die 3% Skonto ist man bei 388k€. Also 388k€ für 135m² schlüsselfertig, entspricht einem m²-Preis von ca. 2900€, was recht mMn ganz ok, zumindest wenn ich es mit mit dem was mir angeboten wird vergleiche. Als Gesamtes finde ich den Preis attraktiv - zumindest ist es eher schwer so etwas in der Wiener Gegend zu finden. Bei einem Holzriegelfertigteilhaus bist bei ca. 2600-2700€/m². Es gibt aber auch Positionen, die recht teuer sind, z.b. beim Dach mit ca. 135m² finde ich den m²-Preis teuer. Dagegen die Betonstiege mit 19 Stufen um 625€ netto extrem günstig. Das man sich den Aufwand macht alle Positionen so detailiert aufzulisten ist für mich auch etwas besonderes. Ich bekomme keine so detailierten Auflistungen (wenn überhaupt) in Wien Umgebung... |
Beitrag schreiben oder Werbung ausblenden?
Einloggen
Kostenlos registrieren [Mehr Infos]












