« Hausbau-, Sanierung  |

Sanierung + Anbau

Teilen: facebook    whatsapp    email
  •  feer9200
17.1. - 18.1.2025
5 Antworten | 3 Autoren 5
5
Hallo zusammen,

ich würde gerne etwas Erfahrung vom Forum für unsere anstehende Saneierung + Anbau mitnehmen.

Wichtigsten Daten:
  • wohnen im EFH (mit zwei Kleinkindern)
  • Im März soll es losgehen - energetische Sanieurng (Fenster, Fassade, OG, Keller Dämmung)
  • zusätzlich im EG:  Anbau, Bad Sanierung, FBH

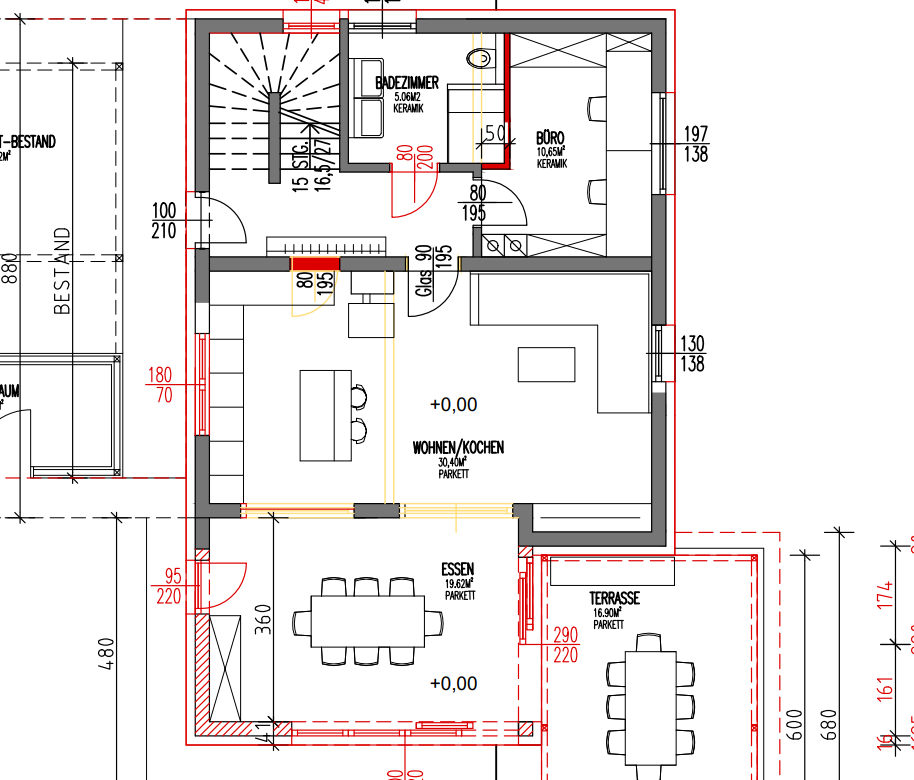
Plan unten ist das finale Ziel, derzeit ohne den Anbau, Küche ist im Büro und derzeitiges Büro wird zuknftige Küche. WZ bleibt wo es ist.

Fragen: 
FBH ist derzeit für das gsamte EG geplant, sprich der Etsrich überall raus, FBH rein, Estrich drauf, Fußboden. Hieße auch, dass das gesamte EG leer sein muss, inklusive Küche.
Ich hab etwas respekt davor mit Family mehrere Wochen in einem Haus ohne echtes EG und Küche zu wohnen - gibts hier Erfahrungen?
Wir könnten auch qua Karenz wohl zwei Wochen zu meinen Eltern, aber das Haus samt Baustelle ganz alleine stehen zu lassen ist mir auch nicht ganz Geheuer. 

Lösung wäre noch dass das zukünftige Büro/ akteulle Küche nicht angefasst wird und wir so zumindest die Küche noch hätten. Ist die Frage, ob die FBH FBH [Fußbodenheizung] später im Büro vermisst wird - auch hier Erfahrunge  vorhanden? Frau und ich sind ca, 1 bis 2 Tage pro Woche im HO.

Last but not least: Jemand Erfahung mit der zusätlichen Höhe des Fußboden nach dem Einbau der FBH FBH [Fußbodenheizung]? Stören etwaige Stufen?

Und letzte Frage: Architektin meinte, dass beim Fenstertausch wohl erst alle Fenster rauskommen und anschließend erst alle eingesetzt werden und nicht einzeln der Austaisch stattfindet. Thema werde ich eh noch mit dem Fensterbauer besprechen aber spricht per se erstmal was dagegen jedes Fenster raus zu nehmen und direkt wieder das neue einzusetzen, um nicht mehrere Tage in einem Haus ohne Fenster wohnen zu müssen?

  
Schönen Gruß aus Kärnten!

_aktuell/20250117721741.png

  •  Nela
18.1.2025  (#1)
Zum Thema Fenster- das ging bei uns tatsächlich Zug um Zug, altes Fenster raus und neues rein. Hat 3 Tage gedauert im ganzen Haus (Ausbesserungsarbeiten leider bis heute offen), wir haben auch durchgehend im Haus gewohnt.

1
  •  Akani
18.1.2025  (#2)
Mit dem Estrich wenn ihr drin bleiben wollt wird das mit allen Arbeiten bis Estrich trockengeheizt und Böden verlegt sind mindestens 2Monate wenn nicht sogar 3 vergehen bei Anhydrit, Zementestrich noch länger

1
  •  feer9200
18.1.2025  (#3)
Danke erstmal für eure Rückmeldungen!

@Nela: wie viele Fenster hattet ihr? 3 Tage hört sich für mich ja Recht fix an.

@Akani: ja mit 3 Monaten in Summe hatten wir gerechnet. Anbau mit graben, Fundament, mauern, Estrich, Schiebetüren rein, Dach etc. Hoffen halt das insbesondere die Zeit des "offenen Hauses" so kurz wie möglich ist qua Sicherheit aber auch weil's in Villach im April und teilweise auch Mai noch Recht kühl werden kann 

1


  •  Nela
18.1.2025  (#4)
14 Positionen, davon x 3 HST HST [Hebeschiebetür]

1
  •  feer9200
18.1.2025  (#5)
top, bei uns sind es 12, zwei HST HST [Hebeschiebetür] und einmal ein 1 x 5 meter große Glasbausteinwand im Stiegenhaus, die entfernt und ersetzt werden muss. Lässt ich hoffen, dass wir auch damit in einer Woche durch sind.

1


Beitrag schreiben oder Werbung ausblenden?
Einloggen

 Kostenlos registrieren [Mehr Infos]

Nächstes Thema: Schotter oder Kies für Hausumrandung