« Hausbau-, Sanierung  |

Rohbau Angebote erwünscht erbeten

Teilen: facebook    whatsapp    email
Zusammenfassung anzeigen
  •  optimus1978
27.10. - 30.10.2011
15 Antworten 15
15
Hallo
Zuerst einmal danke an alle, die sich die Mühe antun hier zu kommentieren und zu helfen.
Ich plane ein größeres Projekt in Graz.
Keller 190 mm,EG 110 OG 110 + Dachausgang auf ein Flachdach mit Dachterasse und eine Doppelgarage ist auch noch dabei, das ganze in Hanglage mit gutem Untergrund!
Ich bräuchte Angebote für einen Rohbau, mit Erdarbeiten, Dichtbeton (Schallung oder Fertigteil) Isolierung Innenputzarbeiten, Elektrik führe ich selbst durch, Heizung vergebe ich noch separat.
Mein Budget ist limitiert, ich packe auch natürlich selbst an mit 2-3 Helferlein wenn gewünscht.
Auch seperate Angebote für Keller sind willkommen da ich das Aufmauern selber durchführen kann.
Danke für die Beiträge

LG
Thomas

  •  BachManiac
  •   Gold-Award
27.10.2011  (#1)
wenige Infos - Rohbaupreis für 220m² + Keller und Garage: 150.000 - 250.000.

genauer kann erst kalkuliert werden, wenn es Pläne und mehr Infos gibt. Kleine Details können den Preis sehr beeinflussen.

Je nach Eigenleistung kommt dann weniger zustande.

Zum Rohbau gehören imho noch keine Elektrik oder Fenster.

Also nur Mauern, Decken und Dach.

Ohne jegliche Installationen.

1
  •  optimus1978
27.10.2011  (#2)
@bachmaniac - Wenn du mir deine emailadresse gibt dann kann ich dir gerne den Plan mailen.Oder du mailst mir einfach auf thomas.lovse(at)gmx.at dann kann ich dir den Plan direkt schicken
Danke im Voraus


1
  •  croy
  •   Bronze-Award
27.10.2011  (#3)
gibts entwürfe oder pläne ? - die könntest du reinstellen, dann kann man mal grob drüberschätzen....

1
  •  creator
  •   Gold-Award
27.10.2011  (#4)
ich hab' schon ein paar mal drauf verwiesen... http://www.emerx.at/

1
  •  optimus1978
27.10.2011  (#5)


1
  •  optimus1978
27.10.2011  (#6)
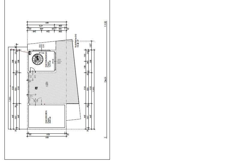
Plan Keller EG, OG und Dach -
2011/20111027976527.JPG

2011/20111027577525.JPG

2011/20111027187709.JPG

2011/20111027865870.JPG

1
  •  tipps
27.10.2011  (#7)
L. Thomas - Was verlangt die Fa. Steinberger Bau GmbH für die Rohbauleistungen und was hat dich der Einreichplan gekostet?

1
  •  optimus1978
27.10.2011  (#8)
@tipps - Woher weisdt du von der Firma Steinberger...habe ich hier nicht erwaehnt!!!!!

1
  •  tipps
28.10.2011  (#9)
L. Thomas - weis ich das Zufällig dass die Firma Steinberger ihnen einen Einreichplan und Kostenvoranschlag gemacht hat.

1
  •  Resi05
28.10.2011  (#10)
Kosten Rohbau - Rohbau: 100.000; Dach 20.000 und Dachstuhl 27.000 ; dazu kommt Wintergarten mit sichtbarem Dachstuhl 15.000; Fenster 25.000
Wir haben Wohnfläche inkl. Wintergarten 240m²;
Gesamte Wohnfläche inkl. Keller und Doppelgarage = 440m²
Ich glaube da sind wir ziemlich vergleichbar..
Wichtig ist Angebote einholen und versuchen zu Vergleichen... Und dann nur Fixpreise unterschreiben damit man keine blauen Wunder erwartet (uns leider so passiert) und dies bedeutet dann viel Ärger bis man beiderseits sich einig wird...


1
  •  optimus1978
28.10.2011  (#11)
@tipps - Ja dann musst du mich kennen, schätze ich mal??
Aber ich habe nur den Plan von einem Bekannten dort machen lassen, Kostenvoranschlag habe ich noch keine machen lassen weil die Firma nicht in der Nähe meines Bauvorhabens liegt.
Derzeit habe ich nur Angebote für den Rohbau vorliegend, das höchste 276000 was komplett absurd ist und das niedrigste (Keller, Aushub, Rohbau und Flachdach leigt bei 80000 Euro mit Selbstbeteiligung (stelle einen Maurer selbst)
lg Thomas

1
  •  optimus1978
28.10.2011  (#12)
@Resi05 - Danke für die detailierte SChilderung, bin froh dass es jemanden gibt der einen vernünftigen Preis gezahlt hat, bzw dass es Firmen gibt die noch ein gutes Preis/Leistungsverhältniss haben


1
  •  BachManiac
  •   Gold-Award
28.10.2011  (#13)
den preis von Resi05 - kann ich mir aber fast nur für das Material und sehr viel Eigenleistung, zumindest beim Rohbau, vorstellen.

1
  •  DM Massivbau
  •   Gold-Award
29.10.2011  (#14)
optimus1978 - in so fern Sie wirklich ein Angebot von 80.000€ haben weiß ich nicht worauf Sie länger warten.

1
  •  Resi05
30.10.2011  (#15)
Handeln - Leider ist der Preis stark verhandelt worden, wäre froh wenn die Firmen gleich ein gutes Angebot machen würden und man nicht so lange handeln müsste... Und wenig Geld ist es auch nicht was wir bezahlt haben..weil ich bin mir sicher dass da noch etwas drinnen ist. Eigenleistung haben wir selbst erbracht..3 Personen waren immer aktiv auf der Baustelle.auch ich als bauherrin habe voll gearbeitet.ziegel schleppen ... Das kann jeder...und das spart Geld..

1
Thread geschlossen Dieser Thread wurde geschlossen, es sind keine weiteren Antworten möglich.

Nächstes Thema: Estrichaufbau