« Heizung, Lüftung, Klima  |

Positionierung Zu- und Abluft KWL

Teilen: facebook    whatsapp    email
  •  Pfista
18.3.2026 0
0
Hallo zusammen,

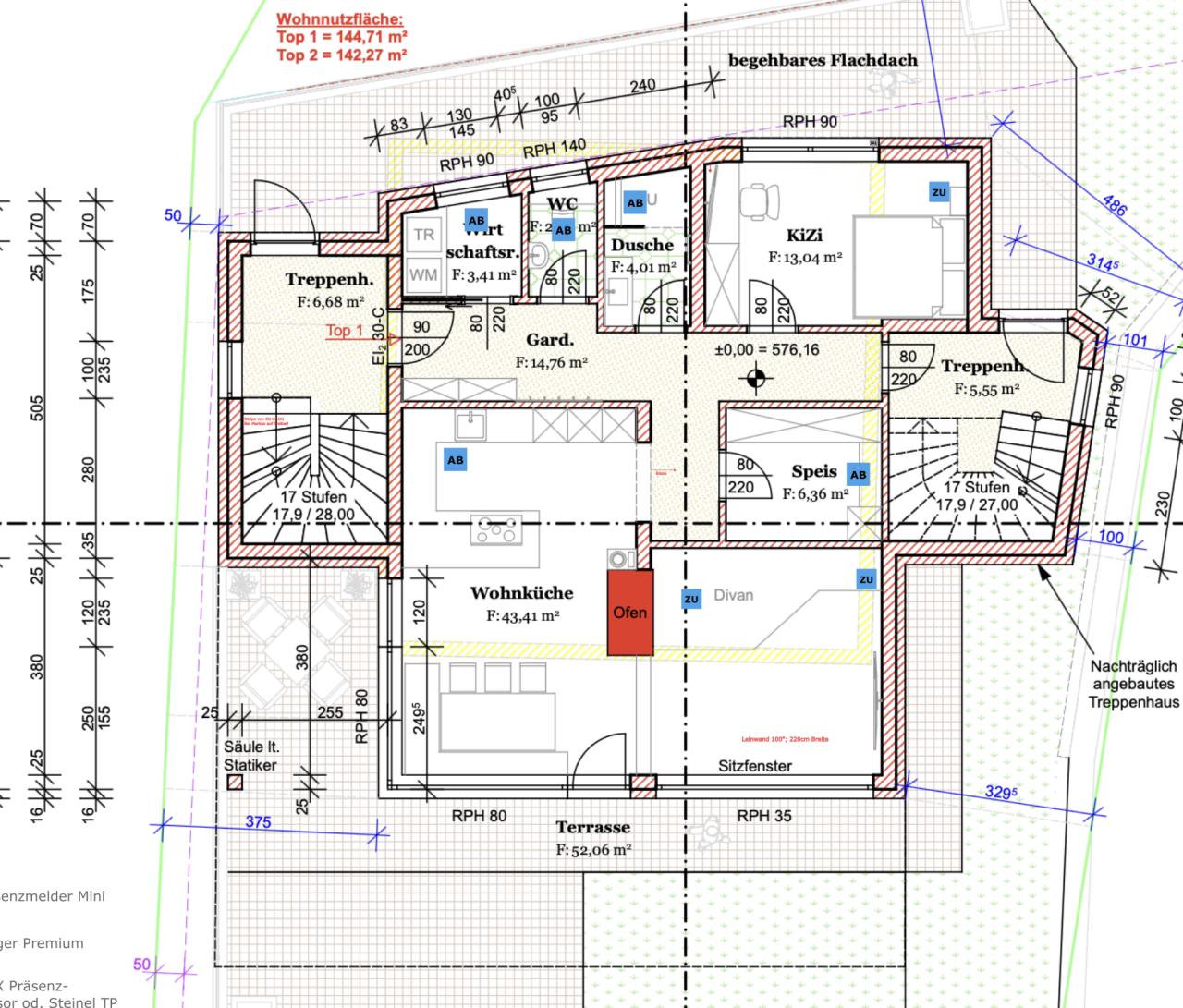
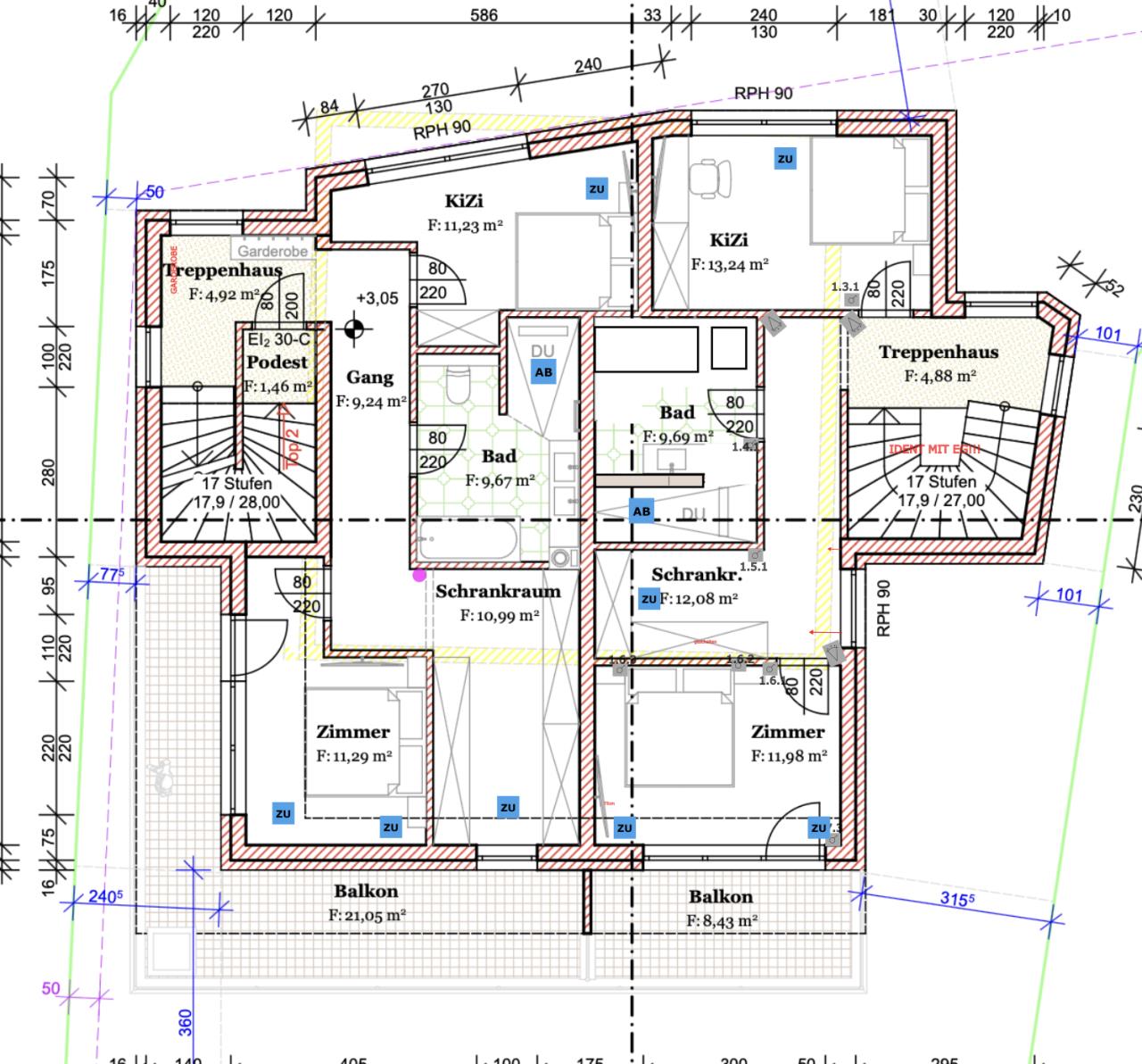
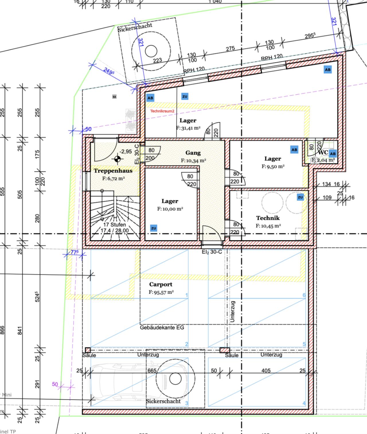
mein Bruder und ich sind gerade dabei ein Haus zu bauen. (Mehrfamilienhaus; 3 Stöcke + Keller; Top1: EG + Hälfte vom 1OG, Top2: Hälfte vom 1OG und 2OG) Wir wollen auch eine Wohnraumlüftung verbauen und werden eine Wernig Q600 dafür nehmen. (Installateur verwendet ausschließlich Wernig, deshalb haben wir beim Hersteller nicht lange überlegt)

Bis jetzt habe ich mir nicht so viele Gedanken darüber gemacht, aber nächste Woche wird die erste Decke betoniert bzw. morgen die ersten Lüftungsschläuche für den Keller verlegt und deshalb habe ich gedacht, ich schau mal kurz, wie das die anderen so machen. Nun bin ich über zahlreiche Beiträge gestolpert und bin nun unsicher, ob die Positionierung der Zu und Abluft so korrekt ist, bzw. zumindest in den richtigen Räumen vorgesehen ist. Die Planung dazu hat Wernig gemacht und die DN75 Schläuche und die Verteiler sind schon vor Ort.
Das KWL KWL [Kontrollierte Wohnraumlüftung] Gerät steht im Keller im Technikraum und dort an der Decke sind alle Verteiler angebracht. Von dort gehen dann 7 Schläuche in den Keller (eine Abluft ist in der Skizze nicht vorhanden, da nachträglich noch ein Technikraum dazugekommen ist.)
Die restlichen 26 Schläuche gehen über einen Technikschacht dann in die verschiedenen Stöcke. 

Nun wäre es sehr hilfreich für mich, wenn ihr mir kurz eure Meinung dazu sagen könntet und ob ich an der Platzierung etwas verändern sollte. Ich weiß nicht, ob an der Anzahl der Zu- und Abluftschläuche noch etwas verändert werden kann, da wie gesagt die Verteiler schon hier sind.

Im Anhang sind einmal die Skizze von Wernig und Fotos vom Plan, in denen ich die Zu- und Abluftauslässe eingezeichnet habe, wie ich sie von Wernig bzw. vom Installateur vorgeschlagen bekommen habe.

Danke vielmals schon für eure Hilfe!
Viele Grüße,
Markus


_aktuell/20260318250580.jpg


_aktuell/20260318868577.png

_aktuell/20260318818102.png

_aktuell/20260318835002.png


_aktuell/20260318467720.png

Hier noch die Bilder von der Platzierung, die mir vom Installateur gegeben wurde (hier wurde noch ein älterer Plan verwendet; im KG noch kein Technikraum2 und 2OG andere Raumaufteilung)


_aktuell/20260318255429.jpg
_aktuell/20260318602789.jpg
_aktuell/20260318115635.jpg
_aktuell/20260318641468.jpg



Beitrag schreiben / Werbung ausblenden?
Einloggen

 Kostenlos registrieren [Mehr Infos]