Meinungen zu Grundriß
|
|
||
|
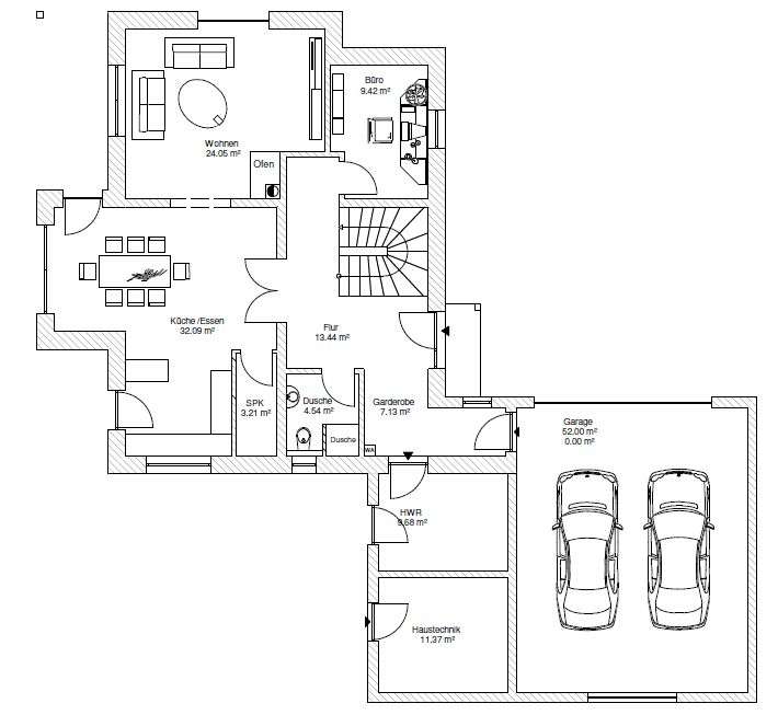
Beim ersten Drüberschauen - würd ich den Flur im Eg ein bissal kleiner machen, dafür das WC/DU ein bißchen größer. Das wird mMn öfter genutzt als das obere WC.
Das Büro evtl mit einer Türe unter der Stiege begehbar machen, dann kannst Ecke im Wohnzimmer auch begradigen und der Flur schrumpft nochmal... Ist der HWR-Raum gleichzeitig Lagerraum? Dann sollte an eine Türe zur Verbindung Garage - HWR-Raum gedacht werden Im OG würd ich den Abstellraum cancelen, dafür die Zwischenwand gerade durchlaufen lassen. Stellfläche ist dann halt im Bad... Und die Ankleide sollte imho eine Verbindung zum Gang oder (idealerweise) ins Bad haben. ng bautech |
||
|
||
|
Labyrinth - Hallo.
Möchte nicht all zu negativ klingen aber für mich ähnelt das ganze vor allem im OG einem Labyrinth. Die Ankleide Zentral und der rundum laufende Gang ist meines erachtens nicht optimal. Außerdem würde ich einen Zugang vom Schlafzimmer zum Bad empfehlen. Vorallem die Wege von den Schlafräumen zu den Bädern sind in diesem Plan maximiert. Im EG muss der Gast quer durchs ganze Haus um sich waschen zu können. Die Gaderobe im EG kann meines erachtens auch nicht wirklich genutzt werden, da ja Durchgang zur Garage und kein Stellplatz für Schrank oder ähnliches möglich. Es wird sehr viel Platz für Verkehrswege aufgewendet. Flur und Garderobe fast 20 m². Ich denke man könnte die Wege optimieren und dadurch mehr Wohnraum schaffen. |
||
|
||
|
Hab ich die Infos überlesen, oder wo ist Süden? Ich würde auf jeden Fall die Kinderzimmer südseitig anlegen, im Schlafzimmer hält man sich tagsüber eh nicht auf.
Also ich finde auch die Verkehrswege sehr üppig. Ich würde im OG den Schrankraum zum Balkon verlängern und den Eingang ins SZ neben dem Bad. Im EG würd ich die Speis anders anordnen. Ich habs in dieser Form schon öfters gesehen und finde, man kann den Platz so viel besser nutzen
|
||
|
|
||
|
||
|
Zugang Bad - Hi,
hab ich an Info noch vergessen: Den Zugang vom Schlafzimmer ins Bad möchte ich definitv nicht. Sowohl aus Schall-, als auch aus Feuchtigkeits- und Geruchsgründen. Es ist ja gleichzeitig das Eltern- und das Kinderbad. Wenn dann wäre es ja auch eine zusätzliche Tür, welche a) den Platz im Bad erheblich einschränken würde, und b) jedesmal vibriert wenn die andere Tür geöffnet wird (Unterdruck), wobei b) net sooo tragisch ist. Fast noch schlimmer wär ein Durchgang von der Ankleide ins Bad (Feuchtigkeit in der Ankleide? *brrrrr*) Den Weg im Erdgeschoss ins Bad find ich jetzt nicht schlimm, denn wie oft wäscht sich ein Gast am Tag? ;) Wie gesagt, so oft wird auch nicht jemand da schlafen daß ich das Haus darauf auslegen möchte. Da finde ich den Vorteil wesentlich höher daß man vom Fernseher bzw. Esstisch nicht die Klospülung gleich neben sich hat. @bautech: Wie gesagt, unter der Stiege kommt ein Abstellraum hin. Da geht nix mit Tür ins Büro. Hm. Wobei, wenn ichs mir recht überlege, klingt deine Variante doch auch sinnvoll. Dann muss aber die Abstellkammer oben zwingend sein. Das werd ich mit dem Planer nochmal besprechen. Kommt natürlich drauf an wie hoch die Treppe dort ist. Nicht daß es eine Alice-im-Wunderland Tür wird. Der HWR ist kein Lagerraum. Da kommt Waschmaschine, Trockner, Bügelbrett, Regal für Wäschwandl/Waschpulver rein. Ich hab den Abstellraum selber schonmal gecancelt gehabt oben, aber den Staubsaugerschlauch für den Zentralstaubsauger im Bad lagern? Hm.... Für Putzmittel etc. gings ja noch. Da bin ich selber noch immer am Hin und Her. größeres Bad oder Abstellkammer? Ich persönlich bin für die Badvariante, aber meine Frau meint sie braucht hier die Kammer, und das Bad wäre groß genug. Den Vorteil eines Gangzugangs zur Ankleide versteh ich jetzt nicht ganz. (Völlig ernst gemeint) @mihu: Zwecks der Garderobe: Bei der Eingangstür rein und dann links, an der Wand (die zum Bad) wird eine offene Garderobe angebracht, mit darunter einem kleinen Regal für Schuhe. Links und rechts (eher rechts) der Doppeltür zum EZ wäre angedacht für eine Kommode für Schuhe und darüber einen Spiegel. Generell: Ich bin mit dem oberen Gang auch nicht zu 100% zufrieden. Allerdings bin ich durch die Anforderung daß der Balkon vom Gang aus begehbar sein muss schon bissl eingeschränkt. Labyrinth find ich jetzt allerdings bissl übertrieben bei einem U-förmigen Gang. ;) |
||
|
||
|
Zusatz - @lea:
Danke für den Vorschlag mit der Speis, das werden wir mal näher beäugen. Obwohl ich diese Größe schon für arg winzig empfinde. Meine jetzige in der Wohnung ist größer, voll genutzt, und wir sind nur 2 Personen ;) Aber generell von der Anordnung her ev. bissl größer, hm... mal schaun, danke auf jeden Fall! Zur Anordnung: Die Pläne sind entsprechend ausgerichtet daß Norden oben ist. Die Anordnung bedingt sich dadurch daß nordöstlich die Zufahrt ist. Außerdem soll unbedingt ein Wäscheschacht vom Bad zum HWR führen. Dann ist da ja noch der Balkon und die Terasse die zum Garten hin sollen, das Wohnzimmer, welches ich nicht südseitig haben möchte (muss ich im Sommer zum Fernschaun ununterbrochen verdunkeln, bzw. wegen Aufheizen die Jalousien runterlassen...) Moment, Plan Anhängen... Die Variante mit dem Schrankraum zum Balkon hin verlängert hatten wir auch schonmal, lass mich überlegen warum die weggekommen ist... Hm. Ahja. a) Meine Frau möchte keine asymmetrische Optik bei der Balkontür / Fenster b) Um das zu Beheben müßte man die Balkontür außermittig, und dafür ein entsprechendes Fenster im Ankleideraum einplanen. Das Fenster im Ankleideraum möchte ich wiederrum nicht (Da schaut mir der Nachbar genau in den Ankleideraum ;) ) Es stimmt schon, speziell da links beim Balkon ist Platz verschenkt. Allerdings sollte es durch den Lichteinfall und das offene Eck am Gang bissl heller und nicht so "schlauchig" wirken. Alles wär so viel einfacher wenn der **** Balkon nicht wär, aber diese Diskussion hat in 2 Jahren noch nicht gefruchtet, und wirds wohl auch nimmer. Edit: Noch ein Zusatz, nicht damit mich wer falsch versteht: Wenn ich Gegenargumente zu den Vorschlägen bringe, ist das nicht weil ich beratungsresistent bin, sondern weil wir auch schon viele Überlegungen angestellt haben, und ich einfach erklären will warum für uns das so oder so besser passt, oder auch nicht. Also net eingschnappt sein ;) |
||
|
||
|
Zugang von Garage über Heizraum - Dann hättest du nicht zwei türen nebeneinander ins Haus und würdes den Platz besser nutzen können. ist meine Meinung. Ausserdem könntest von der Garage direkt in den Garten und nicht übers Haus.
Sonst gefällts mir ganz gut! LG |
||
|
||
|
Ausrichtung - hat es bestimmte Gründe, warum ihr das Haus nicht nach Süden, sondern westlich ausrichtet? edit: hab ich in deinem letzten Beitrag überlesen. Seit ihr euch da sicher? Also mMn wäre der Garten anders besser nutzbar. @Fernsehen: gerade im Sommer hast du tagsüber eh kein Problem, erst abends, wenn die Sonne flacher steht, knallt sie dir auf der Westseite voll rein, und du musst erst recht verschatten. Die solaren Gewinne über die Südfenster solltest auch nicht vergessen. Kann leider beim Editieren kein Bild anhängen. |
||
|
||
|
Lageplan - so könnt ich mir das vorstellen: So, dann bin ich schon still, ich kenne ja euer Grundstück nicht. |
||
|
||
|
@mopa - a) weil wir eben auf einer Seite die Zufahrt machen müssen. Dann brauchen wir vor der Garage eine Umkehrmöglichkeit bzw. Parkmöglichkeit für Besucher auf unserem Grund. Und von der Garage möchten wir innen ins Haus rübergehen können. Das beengts schon mal ein wenig, aber dazu kommt
b) dass das nordwestliche Eck aufgrund der Häuser rundum das sonnigste ist. Augrund von a) und den einzuhaltenden Fluchtlinien würde sich eine wirkliche Südausrichtung nur ergeben wenn ich das Haus praktisch an die Südkante stelle. Dann schattiere ich mir aber meinen eigenen Garten. Das waren so unsre Überlegungen. Weiß grad net ob noch was mit Schuld war. Edit: So, grad noch deinen Vorschlag gesehen. Selbst wenn man das weit genug in die Mitte rückt um die Baufluchtlinien einzuhalten, fällt die Umkehr/Parkmöglichkeit vor der Garage weg. Die grau auf der Nachbarparzelle eingezeichnete Zufahrt ist kein öffentlicher Grund sondern eine von mir herzustellende Zufahrt auf diesem Grundstück (das momentan noch den Schwiegereltern gehört, und dann dem Schwager vererbt oder verkauft wird). Hab ich vergessen dazuzusagen. Ich könnt höchstens die Garage ungefähr dort stehen lassen wie im Original, nur ein wenig nördlicher, und dann das Haus so drehen wie du es gemacht hast. Noch n Edit: Das mit den solaren Gewinnen muss ich erst mal ausrechnen wieweit das wirklich ins Gewicht fällt. Weil Westseite ist ja ungefähr Faktor 0.7 zu Südseite in der Beziehung. Muss mir mal anschaun wieviel das dann in wirklichem Geld ist, ob das viel Unterschied macht. Ich hatte schonmal ne Wohnung mit großem südseitigem Fenster ohne Jalousie, da wars im Sommer unerträglich. Und wenn man immer die Jalousie zu macht, dann bringts ja auch nix sich dorthin auszurichten. Aber ich muss da nochmal hirnen, ev. war auch aussichtsmäßig noch ne Begründung dabei |
||
|
||
|
@zed - Die Tür ins Büro:
Wenns mit den Höhen funktioniert, würd ich die WZ-Wand beim Ofen gerade durch den Gang durchziehen, dass die Wand neben der Stiege anschließt. Anschließend die Tür unter die Stiege rein (dass die Tür nach außen hin zur Wand öffnet) und ums Eck ins Büro - aber so was bedarf einer guten Planung. Und warum die Verbindung von der Ankleide in den Gang oder ins Bad: Ich überleg mir bei sowas immer die täglichen Wege. Mein morgendlicher Ablauf: # Aufstehen # Gewand schnappen # ab ins Bad zur Katzenwäsche Deswegen die Verbindung SZ - Ankleide - Bad (am Abend ist es übrigens gegengleich - rauf ins Bad, Kleider entledigen, Pflege, dann durch Ankleide - Gewand fallen lassen - und ab ins Heia-bettchen :) ) Aber just my 2 cents... ng bautech |
||
|
||
|
BalkonZuerst mal Gratulation zu den bisherigen (sehr detaillierten) Überlegungen - anhand der Rückmeldungen deinerseits merkt man, dass es schon ein "paar" gemeinsame Planungsstunden gegeben hat.
Wir haben annähernd den gleichen Grundriss wie ihr - nur war die herausfordernste Aufgabe bei uns, dass wir unbedingt eine gerade Stiege vom Wohnzimmer aus ins OG haben wollten. Anstatt des Balkons im OG haben wir den Erker mitgemauert und an der Vorderseite ein großes Panoramafenster. Dadurch haben wir einerseits jederzeit die Möglichkeit ein drittes Kinderzimmer zu machen und gleichzeitig das ganze Jahr die Möglichkeit uns im Hängesessel in die Sonne zu setzen (gerade wenn's draußen noch nicht sooo warm ist). Ich bin grundsätzlich der Meinung, dass man einen Balkon im OG nicht in dem Sinne nutzt, wie man es sich immer "ausmalt". Wenn es nämlich draußen schön ist, dann geh' ich eh in den Garten und setz mich auf die Terrasse oder leg mich auf der Wiese in die Sonne. |
||
|
||
|
so schaut das bei uns aus - |
||
|
||
|
so schaut das bei uns aus - @Adles
Wenn das Haus noch nicht gebaut ist - überlegt Euch nochmals den Übergang Fensterrahmen zu Aussendämmung. So jedenfalls ist das nicht optimal. In diesem Bereich hat es so ein Dämmstärke von – vieleicht – 5 cm! Ein der möglichen Lösungen wäre den Fensterrahmen bis auf die Flucht Aussenwand zurücknehmen und die Aussendämmung über den Fensterrahmen ziehen. Beispiel: In diesem Sinne HDE |
||
|
||
|
Also grundsätzlich finde ich den Plan sehr interessant, unten die Tür zum Büro würd ich vorziehen, das macht den Raum größer.
am meisten stört mich das rumlaufen zum Schlafzimmer, da würde ich eher einen Zugang von vorne bei der Stiege machen. |
||
|
||
|
wurde eh schon vieles gesagt, möcht 2 sachen bekräftigen:
die KiZis nach Süden!!! echt schade sonst. zB bad und SZ mit den beiden KiZis tauschen. wenn natürlich die Wäschrutsche unbedingt sein muss, hauts natürlich nicht hin. naja, wer auf einen unsortierten, unkontrollierten wäscheberg im EG steht, noch dazu gleich beim eingang... soll aber jetzt keine diskussion pro/kontra WR WR [Wechselrichter] sein. wir habens nicht, hat sicher auch so manchen vorteil. und der weg vom SZ ins bad bzw. zum WC (vor allem in der nacht) tät mich wahnsinnig nerven. |
||
|
||
|
TW4010 - zwecks dem Wäscheschacht:
Du scheinst da was falsch zu verstehen. Der Wäscheschacht geht über das Eck in dem das Kästchen jetzt eingezeichnet ist in den HWR wo die Waschmaschine steht. Sonst wärs ja wohl ein wenig stumpfsinnig. Beim letzten Planupdate wurde dieser auch noch ein wenig verrutscht so dass er jetzt glaub ich gar nimmer die Gangdecke beeinträchtigt. Muss ich aber nochmal nachgucken wenn ich ihn hab. Und ja, die Tür wurde entsprechend angepasst so dass der Haufen nicht vor der Tür liegt ;) Und so einen Wäscheschacht direkt zur WM find selbst ich als Mann sehr praktisch. Zwecks dem Weg zum Bad, da habt ihr alle Recht, wer weiß, vielleicht kommt bei mir im Alter auch mal eine Zeit wo ich in der Nacht aufs Klo muss... Muss ich nochmal behirnen ob ich doch den Zugang zum SZ von der andren Seite mach. |
||
|
||
|
Kloweg - Wobei, wenn wir mal realistisch bleiben, soo viel kürzer wär der Weg zum Klo auch mit einem Eingang rechts nicht. Wie gesagt eine direkte Tür vom SZ oder der Ankleide ins Bad kommt generell nicht in Frage.
Und wenn ich so vergleiche, gehts da um Lappalien. Was spar ich mir da, 4m? 5m? Also die reine Entfernung kann wohl nicht der Grund sein. Ich nehm an ihr stört euch alle daran daß der Großteil des Weges dann am Gang zurückzulegen ist? Zwecks Bad und SZ mit KiZi tauschen: Ganz so einfach wärs nicht getan. Das zieht schon bissl einen Schwanz nach, denn wenn man den Plan betrachtet sind zur Zeit alle Wasserleitungen und Abflüsse in einem kleinen Bereich des Grundrißes (links unten). Aus mehreren Gründen, unter anderem: * um Installationskosten zu sparen * um Fließgeräusche gering zu halten * um den Schadensbereich bei einem Wasserschaden zu begrenzen * um den Weg fürs Warmwasser möglichst gering zu halten, damit kurze Reaktionszeiten an den Entnahmestellen erreicht werden Das würd dann wieder ins Wasser fallen... |
Dieser Thread wurde geschlossen, es sind keine weiteren Antworten möglich.Nächstes Thema: Stirnseitige Deckenrisse wie ausbessern?
