Massiv EFH161qm Planungshilfe benötigt
|
|
||
Wir haben es so ähnlich gelöst wie du. Vielleicht hilft dir diese Anregung :) |
||
|
||
|
Ankleide - Wand mit der Tür von Zi. 107 nach links verschieben, Ankleide etwas verkleinern und Tür neben die der Ankleide.
Wieviele Stunden am Tag steht ihr in der Abkleide? Wenn man nicht gerade in der Modebranche tätig ist... Ich würde nie separate Ankleideräume vorsehen, da viel zuviel Platzverlust durch zusätzliche Verkehrswege. Wenn Innenwandseiten für Einbauschränke benutzt werden spart man diese Wegflächen und es ist günstiger. Andreas Teich |
||
|
||
|
Schön Grundriss Jen, magst vielleicht auch das EG Posten? :) |
||
|
|
||
|
||
|
Schlafzimmer kann bei vorhandenem schrankraum statt 340cm auf 300 cm reduziert werden, da hast trotzdem 1m um beim Bett vorbeigehen zu können.
Schrankraum als durchgangszimmer planen, dann gehst von der fensterstopper ins Schlafzimmer. Schrankraum kannst auf 60+60+120=240cm breite verringern. Mach das Fenster schmäler, sonst kannst den schrankraum gar nicht gescheit möblieren. Somit kannst die gang wand durchziehen, die Wand zwischen zi 106 und 107 wandert Richtung zi 106 und um einen Ausgleich zu schaffen wandert die Wand von zi 108 Richtung 107. Wir haben so ähnlich gelöst, unsere Räume sind viel kleiner und wir lieben es. Im schrankraum übrigens trotzdem Türen vorsehen - wegen Staub und Optik. Die meisten unserer Freunde haben in ihren schrankraum Türen nachgerüstet.
|
||
|
||
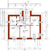
Danke für das Lob. Poste hier mal unseren EG Grundriss.
![]() |
||
|
||
Vielen Dank für die vielen Vorschläge. Wir haben den Grundriss nun folgendermaßen geplant.
![]()
In den kommenden Wochen haben wir einen Termin mit einem Planer, wir sind schon auf weiteren Input gespannt. MfG |
Dieser Thread wurde geschlossen, es sind keine weiteren Antworten möglich.Nächstes Thema: NÖ EFH-Projekt 185m² - Einreichphase!!!





