« Hausbau-, Sanierung  |

Kosten Zubau Holzriegel

Teilen: facebook    whatsapp    email
  •  pezip
21.1.2026 1
1
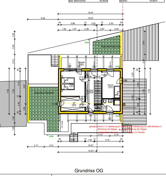
Wir planen heuer einen Holzriegel Zubau da wir das Dach sowieso sanieren müssen und auch eine neue Fassade benötigen. 
Jetzt fürchte ich mich vom ersten Angebot und möchte einerseits einmal fragen, was ihr schätzt wie hier die Kosten liegen werden, wobei ich selbst unterstützend mitarbeiten kann, vor allem bei der Fassade und diversen Hilfsarbeiten. 
Grundsätzlich was zu tun ist:
Dach runter
Holzriegel mit 65m2 rauf
Kamin vom EG 
PV 
Fassade alles Holz mit vertikaler Lattung in Weißtanne und mit hiterlüfteter Dämmung
Diverse Träger zur Stabilisierung einziehen
Stiege uns OG 
Obiger Ausbau würde dann nur bis innen verschalt gemacht werden und Trockenbau dann selbst. 

Wir waren jetzt bei 2 lokalen Unternehmen und ich bin noch zwigespalten. Macht es Sinn hier zu einem kleinen Bauunternehmen zu gehen weil ich hätte auch gesehen, dass z.B. Hartlhaus solche Arbeiten macht. Weiß nicht ob das günstigster ist oder eher Probleme macht. Was sind hier eure Erfahrungen und was schätzt ihr Kosten technisch?


_aktuell/20260121376281.png

_aktuell/20260121252318.png

  •  Fadergeschmack
21.1.2026  (#1)
Mit den vorhanden Infos tendiere ich zu 1000€/m2 des Bestande und mit 4000€/m2 für den Zubau. Hoch angesetzt, da anscheinend das ganze Haus neu überdacht gehört. 
Zur Haustechnik wurde z.b. nichts gesagt. 

1


Beitrag schreiben / Werbung ausblenden?
Einloggen

 Kostenlos registrieren [Mehr Infos]

Nächstes Thema: Intelligente Innenanstriche - Erfahrungen