Kondensat in beheiztem Keller
|
|
||
|
Das hat mit beheizt und unbeheizt "nicht direkt" etwas zu tun. Wenn ich ihn beheize und bewohne kann/wird es sein, dass die Feuchtigkeit höher ist als im unbeheizten unbewohnten Zustand. Betonwände erwärmen sich nicht so schnell wie zB ziegelwände, da sie wesentlich mehr masse haben. da kanns schon mal passieren, dass warme feuchtere Luft an den kühleren wänden kondensiert. |
||
|
||
|
Das verstehe ich eben nicht. Es gibt ja auch Häuser die aus Beton gebaut werden. Die werden im Frühling ja innen auch nicht nass, solange die Oberflächentemperatur - durch eine ausreichende Dämmung außen (entweder Vollwärmeschutz im EG oder XPS im Keller) nicht zu niedrig wird. Jetzt im Juni haben wir in der Nacht 95 % Feuchtigkeit bei 15 °C. D.h. ein Taupunkt von etwa 14 Grad. Werte vom März - Mai finde ich leider nicht. Es muss doch nur die Isolierung gut genug sein, dass der Taupunkt nicht unterschritten wird. Aber warum bildet sich vor allem oben Tauwasser und nicht unten. Unten müsste es doch noch kälter sein (etwa 5 ° im März in 2,5 Meter Tiefe). |
||
|
||
|
@norbach - Korrekt.
Der Keller ist oben logischerweise wärmer als unten, darum ist das Kondensat eher unten zu finden. Rigips würde ich im Keller nicht machen. |
||
|
|
||
|
||
|
Oben vielleicht deshalb weil nicht korrekt gebaut wird, rundum sockelbereich und kg decke jede menge wärmebrücken bleiben. In übergangszeit, wenn langsam die heizung abgedreht wird, diese bereiche abkühlen. Die "theorie" würde gegen die qualität der ausführung sprechen.
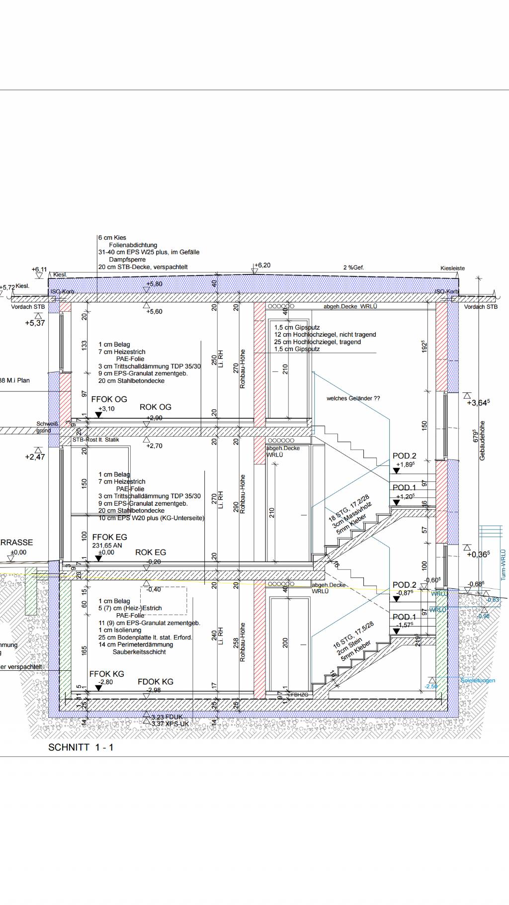
Wir haben einen beheizten und belüfteten keller (haus in fertigstellung) mit 24cm xps perimeterdämmung. Ohne wärmebrücken werden wir ca. 400w an heizleistung brauchen, um keller auf temperatur zu halten (~21°). Das erreichen wir rein durch die belüftung, technikraum/waschküchegerätschaften.. Ich werde ab sept berichten.. |
||
|
||
|
Machst du KWL KWL [Kontrollierte Wohnraumlüftung]? Die würde das Problem gewaltig entschärfen. Ich denke dass die Kondensatbildung in etwa so entstehen kann: Die Heizung wird im Frühling abgeschaltet Die Betonwände kühlen ab (die aussenleigende Isolierung kann das nur verzögern aber nicht verhindern) Wird gelüftet kommt warme feuchte Luft in den Raum, sammelt sich oben und kondensiert an den kälteren Betonwänden. |
||
|
||
|
das problem ist die sogenannte sommerkonvektion. im winter wird geheizt und die oberflächen werden dadurch erwärmt. zusätzlich ist die luftfeuchte grundsätzlich geringer. im sommer (und den angränzenden warmen zeiten) ist die luft im keller warm und voll mit relativer luftfeuchte. die kellerwand ist jedoch kalt. auch mit der besten dämmung, weil eben keine wärme dazu kommt. kühle kommt jedoch einerseits durch das kühlere erdreich und falls das grundwasser hoch genug ist, noch mehr durch das kühle grundwasser. daher kondensiert die luftfeuchte genau an diesen stellen = an den außenwänden glücklicherweise ist die sommerkonvektion grundsätzlich leicht in griff zu bekommen: zugluft. grundsätzlich deshalb, weil es oft nicht möglich ist in allen wandbereichen für eine entsprechende luftbewegung zu sorgen. da wo es jedoch möglich ist, nimmt einerseits die warme luft liebend gerne wieder feuchtigkeit auf und andererseits wird die wand erwärmt. |
||
|
||
|
Also, wenn der Keller außen eine thermische Isolierung hat, kann ich mir nicht vorstellen, dass es da Probleme gibt.
Probleme kann es vielleicht geben, wenn der Keller zyklisch verwendet wird also viele Leute in kurzer Zeit (Party) und der Keller auch nur temporär beheizt wird und die Betonwand sich nicht durchwärmen kann. p.s. Der Taupunkt kann an schwülen Sommertagen 19°C erreichen, Ein Keller sollte da auf 21°C beheizt werden. Lüften in den Vormittagsstunden und Fenster Dicht in den Nachmittagsstunden funktioniert aber auch! |
||
|
||
|
Also standardmässig packt wimberger die bopla nicht in die thermische hülle sondern schlägt vor bopla innen zu dämmen, dadurch wohl auch mehr wärmebrücken und vielleicht auch mehr schlechte erfahrungen. |
||
|
||
|
Ja, so hätte ich es mir auch erklärt; aber der Berater war sich sicher, dass es nicht unten an der Wand (da sind ja die Wärmebrücken) zum Rinnen beginnt, sondern oben. Von Glasschaumschotter hat er mir eher abgeraten. KWL im Keller hätte ich eigentlich nicht vor; wenn dann zum Nachrüsten über eine abgehängte Decke im Vorraum. |
||
|
||
|
ich würd mir da eher eine andere Firma suchen.... |
||
|
||
|
wir haben die KWL KWL [Kontrollierte Wohnraumlüftung] genau wie Brink sehr wohl auch in den Keller gezogen...genau dort hat man oft die größten Probleme mit Kondensat/zuwenig Frischluft, wenn man den Keller teilweise als Wohnraum benutzt |
||
|
||
|
:) melly
--- Apropos thermische hülle.. solange du nicht besondere bodenverhältnisse hast, sondern eine bodenplatte auf dämmung machen kannst, ist das einpacken des hauses in die thermische hülle meiner meinung nach das einzige vernünftigste. Kwl rohre in der abgehängten decke hier mein projekt.. http://www.energiesparhaus.at/forum/40243_8 |
||
|
||
|
Aufgrund unserer Hanglage nutzen wir das unterste Geschoß zu Wohnzwecken. Würde daher nicht unbedingt Keller dazu sagen, aber 3/4 der Wände sind hier aus Beton und erdanliegend. Wir haben kein Problem mit Kondensat. Aktuell zwischen 20.5° und 21° RT. KWL vorhanden. Wände schön mit 20cm XPS eingepackt. BoPl mit 10cm XPS. |
||
|
||
Kondensat in beheiztem Keller - Genauso ist es! Wenn Du das Gebäude, wie @brink (gratuliere zu der vorbildlichen Lösung) rundum "wärmebrückenfrei" baust, hast Du - mit oder ohne KWL KWL [Kontrollierte Wohnraumlüftung] - keine Kondensat-Probleme. Der Knackpunkt ist die Bauphysik.
In diesem Sinne HDE |
||
|
||
|
danke! |
||
|
||
|
Also selben Aufbau wie brink. Ergänzen möchte ich noch, dass wir im gesamten Haus auf gipshaltigen Putz verzichtet haben und sehr diffusionsoffenen Kalk- sowie Lehmputz verwendet haben. Ist sicher kein muss, aber unsere rel.LF bewegt sich konstant zwischen 40-60 % (abhängig von Jahreszeit). Selbst an schwülen Tagen kommen wir nicht wesentlich über 60% und im kalten Winter unterschreiten wir die 40% trotz KWL KWL [Kontrollierte Wohnraumlüftung] nicht. Die rel.LF hat natürlich Einfluss auf den Taupunkt. |
||
|
||
|
im keller sind betonwände/decken nur gespachtelt, vollflächig. und wir haben eine silikatfarbe mit niedrigst möglichem kunsstoff-verbindungsanteil genommen (alergikerfreundlich). putz an innenwänden im keller ist kalk/zement.
|
||
|
||
|
Widerspruch.
Auch ohne Wärmebrücken wird der Keller im Sommer "kalt". Er passt sich (ohne Beheizung) an die Temperatur der umgebenden Erde an, welche kälter ist, als die Luft, die das Haus umgibt. Auf Kellerwände fällt auch selten Sonne von außen. Knackpunkt ist die richtige Belüftung. KWL alleine ist da auch kein Allheilmittel, denn sie kann die Luft nicht entfeuchten. Was hilft ist im Sommer kaum zu belüften. Wenn man ihm Keller wohnt ist das keine Alternative. Wenn man im Keller wohnen will und 100% auf Nummer sicher gehen will, dann: - Klimaanlage (die entfeuchtet die Luft) oder - Lufttrockner oder - Kellerwände mit Feuchtepuffer (eben zb Vormauern mit Ziegel) und Lüftungskonzept, welches dafür sorgt, dass die Puffer nicht voll werden. Nur die Isolierung unter der Bopla gibt hingegen keine Sicherheit auf einen staubtrockenen Wohnkeller. |
||
|
||
|
wie viel wärme (kW) gehen an die erde? wie viel wärme wird zugeführt? (ich habe es für mich gerechnet) deine pauschalmeinung ist korrekt. meist trifft sie zu, weil man den keller nie so gut dämmt. da meint jeder, das sei nicht nötig |
||
|
||
|
Du schreibst, dass Du den Keller auf 21°C Lufttemperatur halten willst durch Belüftung und Geräte, die Wärme an die Luft abgeben. Daraus folgt, dass die Wände deutlich kälter sein werden. Wie es eben ist, wenn man die Luft "heizt". Und 15-17°C "kalte" Wände können im Sommer zu dem führen was der im Eingangsposting erwähnte Baumeister hier beschreibt. Natürlich ist gute Dämmung ein wichtiger Bestandteil für einen Wohnkeller. Aber es gibt auch gute Dämmung unter dem Standard den Du ausführst. Du hast eben das Topmodell gekauft. Das ist toll, aber zu einem Wohnkeller gehört mehr als Dämmung und es funktioniert auch, wenn man nicht das Topmodell kauft. |
||
|
||
|
Hallo Norbach, hier gibt es dazu Erfahrungen und Preise: Kondensat in beheiztem Keller |
||
|
||
Wir haben es auch wie Brink, Dämmung unter der Bopla und aussen an den Kellerwänden mit XPS Ich denke mit einem gut eingepackten Keller plus KWL KWL [Kontrollierte Wohnraumlüftung] ist die reale Gefahr daß man Kondensat-Probleme bekommt schon sehr gering. |
Dieser Thread wurde geschlossen, es sind keine weiteren Antworten möglich.