« Bauplan & Grundriss  |

Grundrissplanung EFH 170m² - Meinungen, Verbesserungsvorschläge

Teilen: facebook    whatsapp    email
  •  hausbau2026
26.9. - 3.10.2025
7 Antworten | 5 Autoren 7
7
Hallo zusammen,
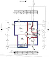
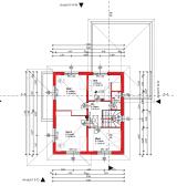
wir befinden uns gerade in der finalen Planungsphase unseres Neubaus. 

Unser Grundstück ist eine Südhanglage, daher planen wir mit Keller. Im Süden und West befinden sich Nachbarhäuser (Bungalows) und im Norden und Osten einstöckige Nachbarhäuser.

Nachdem wir uns selber schon sehr viele Gedanken gemacht haben, würden uns noch weitere Meinungen und Verbesserungsvorschläge freuen. Konkret sind wir noch nicht hunderprozentig zufrieden mit dem Eingangsbereich (zu klein?) und mit der Breite von Büro bzw. Schlafzimmer. Die Kinderzimmer und der Keller sind dagegen sehr groß, das müsste nicht unbedingt sein. Aus Gründen der Kostenoptimierung möchten wir es nicht mehr größer planen. Die Fensterbreiten möchten wir auf jeden Fall noch reduzieren (160-180), das ist im Plan noch nicht berücksichtigt.

Zur Haustechnik: es ist ein RGK RGK [Ringgrabenkollektor] geplant und eventuell KWL KWL [Kontrollierte Wohnraumlüftung].

Wir freuen uns auf euer Feedback!

_aktuell/20250926143779_th.png

_aktuell/20250926514320_th.png

_aktuell/20250926272718_th.png

_aktuell/20250926725252_th.png

_aktuell/20250926124854_th.png

_aktuell/20250926721101_th.png

_aktuell/20250926854190_th.png

_aktuell/20250926770646_th.png

  •  sudo
26.9.2025  (#1)

zitat..
hausbau2026 schrieb: eventuell KWL KWL [Kontrollierte Wohnraumlüftung]

das "eventuell" würd ich gleich streichen ;)

Garagentor mindestens 5,5m breit, wir haben 6m und ich würds keinen cm kleiner machen wollen.

Bad im OG ist halt im kältesten Eck vom Haus, das Eltern-SZ dafür im wärmsten, könnte man tauschen. Oder Eltern mit Kind 1 tauschen.


1
  •  Neubau2022
26.9.2025  (#2)
Wenn ihr schon mit Keller plant und dieser sogar einen eigenen Zugang von außen hat, dann würde ich gleich ein Bad im Keller vorbereiten. Falls ein Kind zum Nesthocker wird, könnt ihr Euch wenigstens aus dem Weg gehen. Dann natürlich auch die Räumlichkeiten dementsprechend planen. 

1
  •  hausbau2026
2.10.2025  (#3)
Danke für eure Tipps, Garagentor werden wir anpassen. Bei den Bädern haben wir darauf geachtet, dass sie übereinander sind und über dem Technikraum, um die Wege kurz zu halten.
Den Gedanken mit dem Bad im Keller hatten wir tatsächlich auch schon, wir werden es zumindest vorbereiten.

1


  •  ds50
  •   Gold-Award
2.10.2025  (#4)
Durch 12er Mäuerchen hörst zwischen den Zimmern alles durch. Vielleicht mit Kästen wie bei dir besser, aber das war - neben der nicht vorhandenen KWL KWL [Kontrollierte Wohnraumlüftung] - wohl einer der größeren Baufehler bei uns.

1
  •  nestbau
3.10.2025  (#5)

zitat..
ds50 schrieb:

Durch 12er Mäuerchen hörst zwischen den Zimmern alles durch. Vielleicht mit Kästen wie bei dir besser, aber das war - neben der nicht vorhandenen KWL KWL [Kontrollierte Wohnraumlüftung] - wohl einer der größeren Baufehler bei uns.

Denkst du, dass eine dickere Mauer dieses Problem schon ausreichend behebt oder bräuchte es da nicht andere Maßnahmen, wie zb Schalldämmplatten? 


1
  •  hausbau2026
3.10.2025  (#6)
Die Bedenken mit der 12er Wand im Elternschlafzimmer hatten wir tatsächlich auch schon, allerdings verlieren wir sonst nochmal ein paar Zentimeter Breite in diesem Raum. Und aufgrund der Baufluchtlinie können wir da nicht mehr breiter werden.
Im Kinderzimmer wärs platztechnisch kein Problem, würdet ihr dort statt der 12er eine 25er Mauer machen?

1
  •  ds50
  •   Gold-Award
3.10.2025  (#7)
Ich erkenne es schlecht, aber für mich sieht der Plan so aus, als ob du beim Elternschlafzimmer nur zum Gang eine 12er Mauer hast, aber zum KiZi eh eine dickere. Dann wäre das für mich ok.

Ich hab halt den direkten Vergleich: Bei einem Zimmer bei uns schließt ein anderes mit 12er Mauer an, auf der anderen Seite das Bad mit einer tragenden 25er Mauer. Wenn der Große einen Film ansieht hört man das leider im anderen Zimmer. Im Bad hingegen ist es ausreichend still.

Eine 25er Mauer muss man sich auf jeden Fall statisch anschauen, die hat schon ein ordentliches Gewicht. Als Kompromiss gibt es auch 17er Ziegel - aber auf jeden Fall alles besser als die 12er.

Ich würde mir bei wenig Platz ernsthaft schlau machen, ob nicht eine Trockenbauwand bei gleicher Dicke den Schall besser schluckt, aber da kenn ich mich nix aus.

1


Beitrag schreiben oder Werbung ausblenden?
Einloggen

 Kostenlos registrieren [Mehr Infos]

Nächstes Thema: Unterbau Terrasse