« Bauplan & Grundriss  |

Feedback zu Grundriss - leichte Hanglage

Teilen: facebook    whatsapp    email
  •  Lernender
26.3. - 28.3.2025
2 Antworten | 2 Autoren 2
2
Liebes Forum,

ich würde um euer Feedback zu unserem Grundriss bitten...

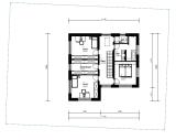
Grundstück: 
  • leichte Hanglage (ansteigend nach Norden und Westen bzw. die Straße davor auch nach Westen)
  • ca. 510 m² (25,...m Ost-West und 20 m Nord-Süd -> rechteckig)
  • Tirol (min. 4 m Abstand zu Nachbargrundstücke)
  • Osten und Westen wird gerade bebaut (W: Hügel/Berg mit Ruine --> keine lange Abendsonne)
  • Süden schmale Straße (Sackgasse, gegenüberliegend bebaut), Norden bisschen Hang und anschließend Fels bzw. darüber wieder Wald)
  • Erschließung nur über Süden möglich

Anforderungen:
  • Doppelgarage (mit Platz für Fahrräder, Müll, Reifen, Werkbank, Gartengeräte, etc.)
  • KG: HW, TR, Platz für Therapieraum oder Einliegerwohnung oder alternative Nutzung...
  • EG: großzügige Küche mit Essbereich und abgentrenntem Wohnzimmer
  • OG: 2x KiZi, 1x SZ, 1x SR, Bad und Klo separat (SZ und KiZi nach Möglichkeit getrennt)
  • genug Platz im Haus, aber möglichst viel Garten/Terrasse/Freifläche auf begrenztem Grund
  • Terrasse und Garten gut von EG erreichbar
  • bauliche Beschattung gegen Überhitzung
  • PV (ist am Dach geplant), Zisterne für Regenwasser (wird noch geplant), etc.
  • Kubatur soll kein Quader sein...

Entwurf:
  • auf dem gegenwärtigen Entwurf ist ein Flachdach oder verstecktes Pultdach eingeplant
  • die Westseite soll, soweit wie noch nötig, aufgeschüttet werden, um eine möglichst große, ebene, zusammenhängede Terrassen- und Gartenfläche zu bekommen
  • Einliegerwohnung im KG ist ein Beispiel (Platzhalter), gefällt uns so noch nicht wirklich (wird vllt. auch nie entstehen - Anschlüsse müssen aber geplant werden...) -> Türe von Haupteingangsbereich innen in EW sollte auch noch kommen...
  • Bad im OG ist auch noch nicht stimmig für uns
  • KiZi im NW und SZ werden eventuell getauscht
  • Sitzfenster bei Küche wird´s wahrscheinlich nicht, eher große Fixverglasung - wir wissen aber noch keine gute Gestaltung der Terrasse (Essmöglichkeit sowie Entspannung)
  • Bauweise steht noch nicht fest (Auskragungen sollten laut BM kein großes Problem sein)
  • die strichlierten Linien sind die Konturen der darüberliegenden Geschosse

Der folgende Entwurf traf sehr viele unserer Anforderungen. Er wirkt stimmig, modern und offen auf uns, aber hat trotzdem ein "abgetrenntes" WZ und vergisst auch nicht auf eine gewisse praktische Ausrichtung (soweit es die Gegebenheiten zulassen...). 

Bedenken/Überlegungen:
  • Anordnung EG nach Himmelsrichtungen (Plan --> Haus ist nach unten
    genau gesüdet...) -> WZ im Osten und Küche im NW (...ist sicherlich eine individuelle Entscheidung mit Vor- und Nachteilen: Morgensonne vs. Zugang zu Terrasse von Küche, keine Abendsonne/Hitze im WZ, usw.) -> bekommt der Koch-/Essbereich trotz baulicher Beschattung genug Helligkeit (HST und Fixverglasungen sind momentan bei Esstisch und Küche eingeplant). Bezüglich Anordnung und Helligkeit bin ich momentan schwer am Grübeln...
  • Terrasse tlw. auf KG bzw. WZ tlw. auf Garage --> technisch/baulich sehr kompliziert?
  • Dachbegrünung gegen Hitze?
  • ...

Neben meinen Bedenken und Überlegungen wäre ich auch über eure allgemeinen Gedanken/Anregungen/Bedenken dankbar. Im großen und ganzen gefällt uns der Entwurf sehr gut (einiges wird noch geändert oder im Detail geplant und angepasst), aber vielleicht haben wir ja noch etwas Wichtiges übersehen...

Liebe Grüße und vielen Dank!


_aktuell/2025032555644_th.png


_aktuell/20250326760803_th.png


_aktuell/20250326273540_th.png

  •  mycastle
  •   Gold-Award
27.3.2025  (#1)
mir kommt der Gehbereicht zur Stiege zu knapp vor,
EUer Bad brauht noch mehr Input, und ich würde nicht so weit vom SZ ins Bad gehen wollen (Krankheit)
Gibt es Ansichten auch?

1
  •  Lernender
28.3.2025  (#2)
Danke fürs Feedback mycastle!
Die Gänge mit Stiege sind ca. 2,1 - 2,2m, der Bereich von Esstisch zwischen Stiege und HST HST [Hebeschiebetür] hab ich jetzt nicht genau im Kopf ( im Plan Tisch 1m, Stühle je 40cm und zur Stiege und HST HST [Hebeschiebetür] dann noch je ca. 80cm).
Bad passt noch nicht...
Wir sind beim Überlegen, ob wir SZ und hinteres Zimmer tauschen (KiZi Süden und wir zum Schlafen in den Norden sowie näher zu Bad, Wc und SR).
Ansichten:

_aktuell/20250328692591_th.jpg


_aktuell/20250328902153_th.jpg

1


Beitrag schreiben oder Werbung ausblenden?
Einloggen

 Kostenlos registrieren [Mehr Infos]

Nächstes Thema: EFH Hanglage in Graz-Umgebung, Feedback & Optimierung Grundriss