« Bauplan & Grundriss  |

eigener Entwurf EFH 140m2 mit Keller

Teilen: facebook    whatsapp    email
  •  pernegg
11.3. - 12.3.2015
9 Antworten 9
9
Hallo zusammen,

Wir lesen schon seit einiger Zeit mit und schauen uns auch immer wieder die geposteten Grundrisse an.
Sobald das Umwidmen unseres Baugrundes über die Bühne gegangen ist, wollen wir uns ebenfalls den Traum vom Haus verwirklichen.
Der Plan ist von keinem Planer, wir haben uns selber einfach ein bisschen gespielt und würden jetzt gerne eure Meinungen, Anregungen und Verbesserungsvorschläge anhören.
Geplant ist ein EFH in Massivbauweise mit 50er Ziegeln, Keller und Doppelgarage. Dach soll ein Pultdach werden. Heizung wird eine Erdwärmepumpe mit Flächenkollektoren werden.
Die Grundstücksgröße beläuft sich auf ca. 1500m2.
Im EG haben wir eine lichte Raumhöhe von 2,8 bis 2,9m geplant.
Wir bedanken und schon mal für euer Feedback
LG Ulli + Domi

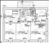
EG:

2015/20150311523051_th.JPG


2015/20150311252803_th.JPG


OG:

2015/2015031188420_th.JPG


Nordseite:

2015/2015031123571_th.JPG

Südseite:

2015/20150311184154_th.JPG

Weststeite:

2015/20150311485683_th.JPG

Ostseite:

2015/2015031155721_th.JPG

  •  nobody4yu
  •   Bronze-Award
11.3.2015  (#1)
Mein Input zu deinem Plan:

EG:
Vorraum wirkt beengt. Wo habt ihr die Garderobe vorgesehen? Ich würde ein Fenster streichen um Platz für eine Garderobe vorzusehen. Das WC ist in meinen Augen viel zu groß. Ich würde (max.) 1,20x1,80m innen vorsehen. Dadurch wird der Eingangsbereich großzügiger. Tür zum KG muss nach aussen gehen und beim hinuntergehen sollte eine Tiefe von 40cm vorhanden sein, ehe die Stiege bergab geht. Wohnbereich ist ok, nur die Mini-Speis würde ich ehrlich gesagt weglassen. Sehe wenig Sinn nach derzeitiger Planung. WoKü mit nur 3,60m Breite ist in meinen Augen etwas zu wenig. Würde um die 4,00m empfehlen. Die Terrasse würde ich von Mauerflucht bis Mauerflucht gestalten.

OG:
Das ganze Geschoss wirkt sehr verwinkelt. Ich würde versuchen hier mehr in Fluchten zu denken. Damit ersparst du dir die Mauersprünge. So würde ich Gang mit Mauerflucht WC gleichsetzen. Den Sprung beim AR nach unten schieben bis Flucht KiZi. Damit würden die Türen WC/AR nicht mehr anschlagen können. Die Wand zw. Bad und AR könnte eventuell auch noch adaptiert werden. Hängt aber davon ab, wie das Bad möbliert werden soll. Ich nehme an SZ und Schrank ist ein Raum und nicht getrennt.

Ein wichtiger Ratschlag: bitte möbliere dein gesamtes Haus ein. Dann wird man draufkommen das manches zu klein ist.

Im Modell ist nur ein Flachdach eingezeichnet. Beim Pultdach musst du drauf achten, dass du kein Problem mit der Gebäudehöhe bekommst. Je nach Dacheindeckung hast du 3% (Folie) und 5°-7° (Blech). Kommt auf dein Bundesland an.

Zuletzt solltest du einen Blick auf die Fassade werfen. Die verschiedenen Größen und Höhen in den Geschossen wirken auf mich sehr unruhig. Versuch hier etwas System einzubringen. Das eine oder andere könntest du dir auch sparen.

Viel Erfolg bei der weiteren Planung!

1
  •  pernegg
12.3.2015  (#2)
Hallo nobody4yu,
Danke fürs Feedbak.
Die Garderobe kommt in den Nordosten des Eingangsbereiches.
Die Fenster haben wir als Oberlichten vorgesehen, weil wir uns gedacht haben, dass sonst der Eingangsbereich zu finster ist und wir es gerne hell haben.
Wir sind aber wie gesagt keine Planer und haben einfach selber probiert.

Mit Vorraum wirkt beengt, meinst du da den Gang der zum Gästezimmer geht? Wir sind uns nämlich nicht sicher, ob der Gang dorthin nicht zu schmal ist.

Die Küche wird in u Form mit breiter "halb Kücheninsel" werden und ist mit 7 Arbeitsplattenlaufmeter unserer Meinung nach groß genug.

Was meinst du mit Bad und Arbeitsraum adaptieren bzw. wie würdest du das machen?

Der Schrankraum ist eigentlich kein richtiger Schrankraum. In den Raum werden wir eine dünne Holzwand mit Schiebetür einziehen und dahinter ein Schranksystem verbauen. Haben wir in einem Griffner Haus gesehen und hat uns gut gefallen und die Wand braucht kaum Platz.

Wie meinst du das mit verschiedenen Höhen in den Geschossen? Die Fensterhöhen???

Das Dach und die Terrasse passen nicht, dass war uns klar, aber mit Homebyme kann man das nicht besser zeichnen.
Eingerichtet haben wir. Für uns scheint alles groß genug zu sein, aber wir sind halt keine Profis :o)

Haben mal die Fotos angehängt.

LG und Danke Ulli

EG

2015/20150312639918_th.JPG

OG

2015/2015031226333_th.JPG


eg neu

2015/20150312326244_th.JPG

og neu

2015/2015031295348_th.JPG




1
  •  BK1982
  •   Gold-Award
12.3.2015  (#3)
Hallo Ulli,

das EG ist unserem sehr ähnlich, hier noch ein paar Inputs:

- Du hast ein Gästezimmer im EG aber nur ein WC. Gehen die Gäste wenn sie bei dir übernachten in euer Bad ins OG um zu Duschen etc...?
Das wäre für uns ein NoGo gewesen und deshalb haben wir eine Dusche und ein Waschbecken ins EG-WC integriert.
Hier siehst du wie wir unser EG realisiert haben. In die Nische hinter der Tür passt genau ein 1m-PAX (genügend Stauraum) und im WC hat somit noch eine Dusche in der entstandenen Nische platz. Hängegarderobe ist an der Wand zur Treppe hin. Licht kommt in den Vorraum durch einen Glasausschnitt in der Eingangstür und durch eine Glasschiebetür zum Wohn-Essbereich hin.

2015/20150312126689_th.PNG


- Wie bereits geschrieben muss beim Stiegenabgang in den Keller ein Podest gemacht werden bevor die Treppenstufen anfangen.

- Bitte überdenke unbedingt die Breite des Wohnbereiches.
Mit den 3,66m wirst du nicht glücklich werden. Wir haben 4,2m und weniger dürfte es auf keinen Fall sein! Wir haben unter anderem deshalb auch die Treppe hinausgeschoben.

- Die Speis ist sehr klein, da wirst du kaum was unterbringen.
Wir hatten ursprünglich auch eine kleine Speis dort in dem Eck geplant, sie aber dann wieder verworfen und stattdessen große Küchen-Vorratsschränke gemacht. Fotos von Küche und Haus in meiner Galerie.

Zum OG:
Euer OG ist unserem in den Ansätzen auch ähnlich, jedoch SEHR verwinkelt.
So haben wir es im OG:

2015/2015031276091_th.PNG

Abstellfläche haben wir im großen Schrankraum genug.

Auf die 140m2 komme ich bei deinem Plan jedoch nicht wenn ich die m2 zusammenrechne.... eher auf unter 130m2....

LG BK

2


  •  nobody4yu
  •   Bronze-Award
12.3.2015  (#4)
Selber probieren und entwerfen ist nicht schlecht. So haben die meisten hier angefangen. Die neuen Plänen gefallen mir schon besser.

Vorraum muss nicht dunkel wirken. Du kannst Eingangstüren mit Glasausschnitt vorsehen oder bei genügend Breite auch ein Seitenteil. Bei Oberlichtfenster muss die Parapethhöhe so hoch sein, dass eine anständige Garderobe sich darunter ausgeht. Licht bekommst du auch, wenn die (Schiebe-)Tür zur WoKü ebenfalls Glasausschnitte hat.

Das mit dem Vorraum wirkt bezieht sich auf den Eingangsbereich und Gang bei den Stiegen. Darum mein Vorschlag mit einem etwas kleinerem WC. So wie du es geändert hast wirkt es für mich auf alle Fälle besser. Den Tipp von BK1982 mit Dusche und WC würde ich befolgen. Gangbreite von 1m ist eigentlich fast du wenig - 1,10-1,20m würde ich machen. Wieviel Gangbreite habt ihr in eurer derzeitigen Wohnung / Haus?

Das mit der Wand adaptieren meinte ich je nach Möblierung kann man die Wände auf das notwendige Maß verbreitern oder verschmälern. Z.B. In die Nische kommt eine Walk-In-Dusche. Schaut euch in Schauräumen um, welche Dimensionen diese Dusche haben. Je nach Abmessung kannst die Wand auf notwendige Maß ändern. Im AR wiederum planst du die Nischen so ein, um die gewünschte Schranktiefe zu erreichen. Irgendwas stört mich aber noch beim AR. Vielleicht fällt den anderen dazu noch was ein.

Die Fensterhöhen oder Parapethe habe ich gemeint - ja.

Achja, VR im OG wird nur die blaue Fläche gezählt.

@BK1982:
sehr schöner Grundriss - wenn ich pernegg wäre würde ich ihn einfach übernehmen ;)

Beste Grüße,
Danijel

1
  •  pernegg
12.3.2015  (#5)
Hi,

Danke für eure Tipps.
Der Plan ist wirklich super und wir werden uns das am abend noch mal in Ruhe anschauen.
Danke fürs Einstellen

Wir haben uns bewusst gegen das Bad im EG entschieden, weil wir ein Bad mit Wellnessraum im Keller machen werden. Drei Bäder sind meiner Meinung nach zu viel. Ist aber ein guter Einwurf mit den Gästen. Ich werde aber so frei sein und die dann einfach in den Keller schicken :o)
Das Bad im Keller ist auch deshalb entstanden weil wir einen Hund haben und wir dann bei schmutzigen Wetter durch den Abgang in der Garage mit ihm direkt in den Keller flitzen werden um ihn sauber zu bekommen.

Die derzeitige Gangbreite liegt bei unserer Wohnung bei 1,10m was ich im Kopf hab.

Das mit den m2 war mir nicht bewusst :o) Muss ich noch mal mit meinem Mann schimpfen ;o)



1
  •  pernegg
12.3.2015  (#6)
achja und die Kellerstiege haben wir nicht angepasst, weil das in dem Programm so kompliziert mit den Stiegen ist :o)

1
  •  csi13
12.3.2015  (#7)
Hallo pernegg,
find es schade das man das Garagendach nicht nützen kann z.B. als Terasse.
Ansonsten fällt mir auf, dass du in den Kinderzimmern jeweils zwei Fenster eingezeichnet hast.
Ich weiß nicht ob seitlich diese zwei unbedingt notwendig sind.
Da wäre sicher etwas Sparpontezial drinnen, wenn man das geschickt plant.
Ähnlich im EG. Wäre es nicht besser gleich eine große Glasschiebetür einzuplanen anstatt der einzelnen
Balkontüren und dann das eine Fenster links weglässt.



1
  •  pernegg
12.3.2015  (#8)
Hallo sci13
Danke für den Input.
Wie gesagt wir wollten es einfach hell haben. Dein Einwurf ist sicher gut mit der Glasschiebetür. Werden wir mit überdenken.

@bk1982
Euer Haus ist wirklich wunderschön. Würd ich auf der Stelle so kaufen wie es dasteht. Wir haben offensichtlich den gleichen Geschmack.


1
  • ▾ Anzeige
    Energiesparhaus.at ist Teilnehmer des Amazon-Partnerprogramms, das zur Bereitstellung eines Mediums für Webseiten konzipiert wurde, mittels dessen durch die Platzierung von Partner-Links zu Amazon.de Entgelte verdient werden können.
Hallo pernegg,
hier gibt es dazu Erfahrungen und Preise: eigener Entwurf EFH 140m2 mit Keller

  •  BK1982
  •   Gold-Award
12.3.2015  (#9)

zitat..
pernegg schrieb: Wir haben offensichtlich den gleichen Geschmack.


Danke, ist wohl so emoji
Wir haben auch Pultdach, Erdwärmepumpe m. Flächenkollektoren, 50er Ziegel u. 2,83m Raumhöhe - also genau wie von dir beschrieben *g*

Unser Haus hat 131m2 Wohnfläche im EG u. OG und nochmal ca. 70m2 im Keller.

Im Keller befindet sich eine Werkstatt, Technikraum, Abstellraum, Waschküche m. Nebeneingangstür ins Freie, noch ein extra Zimmer und ein kleines WC mit Dusche u. Waschbecken. Haben also in Summe schon auch 3 Bäder, wobei die im EG und im Keller aber recht klein sind. Das Kellerbad ist dafür da, wenn man wirklich mal ganz schmutzig aus dem Garten kommt oder für den Hund (meine Eltern haben einen und sind oft zu Besuch). Oder evtl. auch falls in dem extra Zimmer irgendwann mal jmd. wohnen sollte....

Unser Plan ist auch selbst von uns entworfen, bis auf ein paar kleine Ideen von unserem Planer. Die Planungszeit hat 1 Jahr in Anspruch genommen, war es aber auf jeden Fall wert - wir wohnen seit 1 Jahr im Haus und würden aktuell nichts anders haben wollen, es ist für uns perfekt.

LG BK

1

Thread geschlossen Dieser Thread wurde geschlossen, es sind keine weiteren Antworten möglich.

Nächstes Thema: Fassadengestaltung - vorschläge?