« Bauplan & Grundriss  |

EFH Plan

Teilen: facebook    whatsapp    email
  •  dynamite
28.4. - 5.5.2014
5 Antworten 5
5
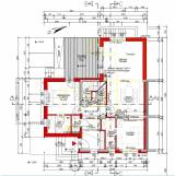
Liebe Forumsgemeinde,
wir beabsichtigen noch heuer mit dem Bau zu beginnen und bitten daher um zahlreiches Feedback betreffend unseres "Einreichplans".

2014/201404288373_th.JPG


2014/20140428298183_th.JPG


Danke
lg
dynamite

  •  StefanP
  •   Bronze-Award
29.4.2014  (#1)
Sieht grundsätzlich für einen Bestandumbau ganz gut aus.
Was mir absolut nicht gefällt, ist, dass das Bad im EG nur über das Gästezimmer erreichbar ist.

1
  •  dynamite
29.4.2014  (#2)
Danke für deine Meinung!
Deshalb haben wir noch ein seperates WC im Eingangsbereich.
Das Gästezimmer wird warscheinlich eh nur ein "Abstell/Trainingraum" werden und für später ein Elternschlafraum.

1
  •  csi
30.4.2014  (#3)
Unser Bad im EG ist auch nur über das Gästezimmer zu erreichen. Wir bekamen dafür Lob, weil Gäste dann wirklich ihren eigenen Bereich haben. Ich würde es wieder so lösen.

Wenn Gäste im Haus sind, kann ich es eh nicht benutzen und sonst ist es egal.

1


  •  balkonin4040
3.5.2014  (#4)
Himmelsrichtungen und Stiegenhaus Belichtung - Hallo also grundsätzlich finde ich die L Form eine gute Idee. Kenne das Grundstück nicht aber derzeit verbaut der Südseite Eingang die Küche dh ab 13 Uhr wird's dort relativ dunkel da die Raumtiefe vom Wohnzimmer für Belichtung nicht ausreicht. Stiegenhaus braucht auch ein größeres Fenster und liegt westseitig dh hier nehmt's ihr euch die Abendsonne mit Verkehrsflächen weg...

1
  •  dynamite
5.5.2014  (#5)
Im Stiegenhaus haben wir im oberen Bereich ein 2,60m Fenster, jedoch kann das licht nur schwer in die Küche.
Es war zuerst eine Schräge Terrasse im Gespräch damit das Licht besser einfallen kann bis in die Küche, wäre jedoch empfindlich teurer gewesen als diese Lösung.
Danke für ein Feedback.

1

Thread geschlossen Dieser Thread wurde geschlossen, es sind keine weiteren Antworten möglich.

Nächstes Thema: Sanitäranlagen in Bestand