EFH 170 m2 - Verbesserungsvorschläge?
|
|
||
|
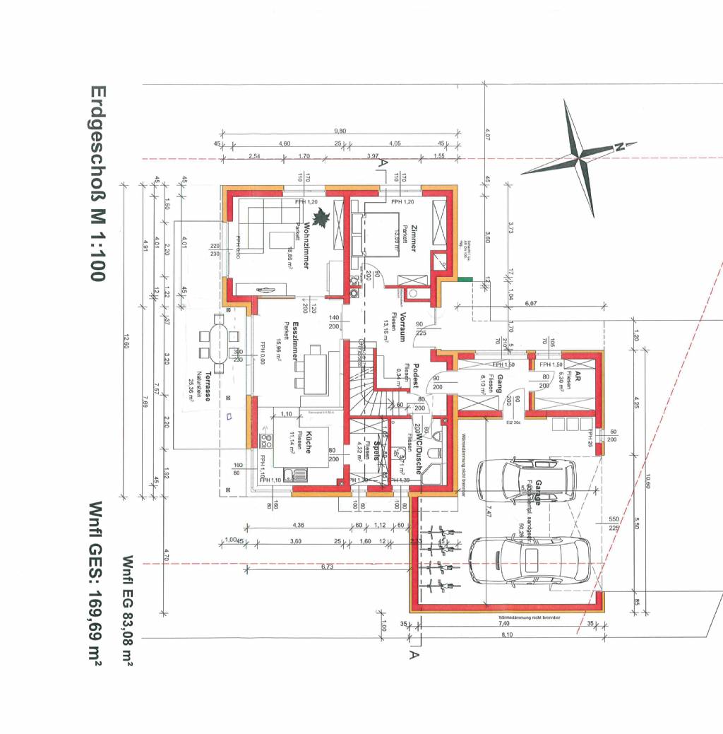
Das Erdgeschoß finde ich ganz gelungen, was ich noch ändern würde wäre die Stiege bzw. der verschenkte Platz im OG Flur. Schonmal eine Wendeltreppe oder besser Podeststiege eingezeichnet?
Schrankraum auf der Südseite ist auch etwas verschenktes Potential, aber wenns nicht anders geht von der Aufteilung könnte man das noch akzeptieren. Wie sieht die Zufahrt aus bzw. wo sind die Grundgrenzen? |
||
|
||
|
@Executer
Wendeltreppe oder Podeststiege wollten wir nicht unbedingt. Obwohls sicher platzsparender wäre. Podeststiege gemauert wäre aber vl. eine Option irgendwie. Hast du Ideen dazu? Schrankraum hat sich auch so ergeben. Da wir mit dem Schlafzimmer nicht direkt neben dem Kinderzimmer sein wollten. Vor der Garage sind noch zwei Parkflächen angedacht. Seitlich davon sind wir auf 1m zur Grundgrenze. Auf der Seite vom Wohnzimmer sind 4m Platz um vorbeifahren zu können. :) |
||
|
||
mein verbesserungsvorschlag wäre den thread in das grundriss forum zu verschieben |
||
|
|
||
|
||
|
Es gibt natürlich viele Möglichkeiten div. Stiegenformen zu verwenden. Ich habe folgenden Grundriss als hilfreich empfunden. Ich könnte mir sogar vorstellen, dass eine gerade Treppe bei dir möglich wäre. Dazu müssten man aber einiges ändern.
Bei den Programmen gibt es eine große Palette an verschiedenen Produkten. Profi-Programme wie ArchiCAD oder normale für den einfachen Häuslbauer: 3D Hausplaner, Ashampoo, sweethome 3d, uvm. Mein Input zu deinem Plan: EG: Da ihr ein Vordach habt, sehe ich nicht wirklich die Notwendigkeit, hier noch eine Nische vorzusehen - aber ok. Das die Garagenwand 1m weg von der Grundgrenze steht ist für mich ungewöhnlich. Habt ihr das mit der Baubehörde abgeklärt? In welchem Bundesland seid ihr daheim? Ich kenne nur direkt an der Grundgrenze oder 3m weit weg. Ich fürchte nur, dass du keine Freude mit der Tür ins SZ haben wirst. Du stößt direkt ans Bett. Der Durchgang neben dem Bett wird reduziert ausfallen. Vergleicht diesen Entwurf mit eurer derzeitiger Situation in eurer Wohnung. Kamin wirkt etwas verloren und im Gang eher unpassend. Egal was man anschliessen würde, es würde im Weg stehen. Würde ich nochmal überlegen an eurer Stelle. Was ist das für ein Rohr in der Dusche/WC das auch im OG sichtbr ist? Mit der Möblierung wäre ich auch nicht ganz zufrieden. Beim Öffnen direkt das WC und Urinal zu sehen ist nicht so toll. Ihr habt euch noch nicht über die Türöffnung entschieden. Ich sehe nur nach innen Richtung Waschbecken als empfehlenswert an. In der Küche ist ein grafischer Fehler passiert - die Küchenplatte muss im Bereich zum Speis unterbrochen sein. OG: Ich würde die Aussenwände nicht vor- und zurückspringen lassen. Was bringen die? Aus Energiesicht sicher nichts. Die Überdachung ist mir nicht klar. Im EG sieht man Stützen, doch im OG scheint das nur eine Platte zu sein. Verstehe den Sinn dahinter nicht. Normal macht man hier Balkone oder das OG kragt drüber und man hat mehr Wohnfläche. Riesiger Flur aufgrund der Stiegenwahl. Wie schon angeregt entweder gewendelte Treppe oder ihr nutzt die Fläche als "Leseecke" oder ähnliches. Viel Gangfläche geht auch für die Erschliessung der KiZi verloren. Ist das riesige Bad wirklich erforderlich? Schrankraum müsste mit SZ getauscht werden. Vorschlag: OG-Wände in L-Form wie EG ausbilden (oder auch mit Auskragung über Terrasse). Bad etwas kleiner, dadurch ergibt sich ein kleiner Gang für die KiZi. SZ und SR tauschen. |
||
|
||
|
@nobody4yu
Danke für deine Vorschläge ;) Wie würdest du die lange Treppe einplanen? Mit deinem Grundriss können wir leider nicht so viel anfangen, da wir Wohnen und Essen getrennt haben wollen. Ebenso soll die Treppe im Vorraum bleiben. Das Vordach im EG ist schon weg. Es war als Terrassenüberdachung geplant, welche in dieser Form aber nicht wirklich sinnvoll gewesen wäre. 1m an der Grundgrenze ist kein Problem, da dort keine Fenster sind. Ganz an die Grenze zu rücken erscheint mir nicht als sinnvoll. Und 3m wären zu viel, da sich dann die Durchfahrt auf der anderen Seite nicht mehr ausgeht. Welche Tür im Schlafzimmer meinst du? Die Eingangstür oder die Tür zum Schrankraum? Das müsste sicher aber ausgehen mit Eingangstür und Bett (lt. Plan). Was meinst du damit, dass der Kamin verloren aussieht? Das Rohr soll die Kanalstrangentlüftung sein. Soll jetzt aber in der Wand geführt werden. Die Vorsprünge sind zum Teil zur Optik, zum Teil aus Platzmangel. Welche Überdachung meinst du? Sie Steher bei der Terrassen waren noch von der Terrassenüberdachung. Sind jetzt aber weg. Schrankraum und Schlafzimmer wurden bewusst so gelegt, da wir wie schon oben erwähnt mit dem Schlafzimmer nicht neben dem Kinderzimmer sein wollten. Danke für deine Skizze. Aber weniger Gang entsteht dadurch auch nicht, oder? |
||
|
||
|
Bezüglich Treppe werde ich mir bei Gelegenheit etwas überlegen und es hier posten.
Ich meinte die Tür vom EG Vorraum ins SZ. Ich rechne immer links und rechts 80cm freien Durchgang neben dem Bett. An den Kamin wirst du vermutlich einen Ofen anschliessen. Dieser steht dann im Vorraum und kann max. vom Esszimmer gesehen werden. Wenn die Steher weg sind dann ist das erledigt. Das mit dem Gang stimmt leider. Dafür wären aber alle Zimmer nebeneinander (was du für das SZ nicht haben möchtest). |
||
|
||
Danke
Ich finde wenn man die Tür ganz aufmacht, kann man eh schön vorbeigehen. :) Oder täusch ich mich da? Der Kamin/Kachelofen ist ja bereits im Wohnzimmer eingezeichnet?! :) |
||
|
||
|
Ich finde den Platz nach Öffnen der Türe zu knapp. Am besten selbst ausmessen und "reinfühlen".
Ich habe mir erlaubt einen Vorschlag mit Raumprogramm zu machen. Ist nur eine Spielerei. Fenster und Türen müssten natürlich angepasst werden. Ich denke alles ist selbst erklärend. Hier findest du ein gelungenes Beispiel - wie ich finde - für eine gerade Treppe: http://www.energiesparhaus.at/forum/37788 |
||
|
||
|
Danke fürs umzeichnen.
Wofür stehen die grünen und gepunkteten Linien? |
||
|
||
|
Grün ... Vorschläge für Türen
Gepunktet ... eventuell AR |
||
|
||
Ok. Speis ist jetzt aber keine mehr dabei in deinem Entwurf, oder? |
||
|
||
|
Nö, ist nicht drin. Aber man kann das noch adaptieren indem die Wand unterhalb der Dusche noch Richtung Küche verschiebt.
Du hast ja nur gefragt ob gerade Stiege möglich wäre. Man muss natürlich noch seinen Gehirnschmalz anwerfen und sich noch was überlegen. Ich kann aus eigener Erfahrung sagen, ich habe über die Jahre an die 100 verschiedene Entwürfe gezeichnet ehe ich auf ein zufriedenstellendes Endergebnis für mein Eigenheim kam. Ich hatte eine Phase, wo ich auch unbedingt eine gerade Treppe haben wollte, doch am Ende wurde es eine zweiläufige Treppe mit Podest. Viel Glück bei der weiteren Planung! |
||
|
||
|
Noch vorschläge? :) |
Dieser Thread wurde geschlossen, es sind keine weiteren Antworten möglich.Nächstes Thema: Silikonabdichtung Dachbodenluke
